Mô tả
-
Mã Sản Phẩm
BT910077
-
Số Tầng
Thiết kế nhà 1 tầng
-
Phong Cách
Hiện Đại
-
Chiều Cao Tầng
Chiều cao tầng: 3,6m- Chiều cao mái: 3,2m- Tổng chiều cao: 6,8m
-
Mặt Tiền
4.5m
-
Chiều Sâu
15m
-
Diện Tích
150m2
-
Kinh Phí Đầu Tư
Khoảng 1 tỷ đồng
-
Kích Thước Đất
350m2
-
Phương Án Móng
Móng Băng
-
Cấu Tạo Mái
Vì Kèo
-
Cấu Tạo Thang
Trống
-
Lát Sàn
T1: Gạch
-
Chất Liệu Cửa
Cửa chính, Thông phòng gỗ, Kính
-
Trần Giả
Thạch Cao
-
Phòng Khách
26m2
-
Phòng SHC
Không có phòng SHC
-
Phòng Ngủ
3 phòng ngủ con 12,7m2, phòng ngủ con 2 12,8m2, phòng ngủ bố mẹ 20,8m2
-
Phòng Thờ
Trống
-
Phòng Vệ Sinh
phòng vệ sinh khép kín 5,1m2, vệ sinh chung 5m2.
-
Gara ô tô
Không có gara ô tô trong nhà
-
Phòng bếp ăn
26m2
-
Quy cách hồ sơ
Khổ A3, khoảng 100 trang

Hình ảnh phối cảnh nhà biệt thự chữ L đẹp
Đôi điều về thiết kế biệt thự chữ l 150m2
Nhà chữ L là kiểu nhà bị khuyết góc. Mà theo phong thủy, những ngôi nhà khuyết góc thường không có lợi cho gia chủ. Bởi đồ hình Bát quái trong Phong Thủy Bát Trạch chia ngôi nhà ra làm tám phương vị khác nhau. Mỗi cung nào trên đó bị khuyết hãm sẽ ảnh hưởng tới từng mặt của đời sống gia chủ.
Nếu nói thiết kế biệt thự chữ L không được nhiều người lựa chọn cũng không đúng, bởi nhà chữ l từ trước đến nay vẫn được nhiều gia đình lựa chọn thiết kế với những kiến trúc đẹp mắt không kém gì các mẫu thiết kế nhà vuông, chữ U khác.
Thiết kế nhà chữ l bởi hình dáng ngôi nhà trông giống như là con dao phay với vị trí đại hung nằm ở phần lưỡi dao. Nếu như sắp xếp không đúng vị trí của các phòng ốc thì phần vị trí của “Lưỡi dao” có thể gây ra những ảnh hưởng xấu tới các thành viên trong gia đình.
Và xét trên góc độ phong thủy sẽ thấy mối liên đến việc mất cân bằng giữa cạnh dài chiều rộng của ngôi nhà. Nhưng không có nghĩa là không có cách hóa giải quan tới tụ khí, bởi đạo của phong thủy chính là “tụ thủy” và “tàng phong”. Thủy tụ để sinh ra khí và tàng phong để tránh tán khí. Ngôi nhà, hay tòa nhà biết áp dụng phong thủy đúng đắn, sẽ có thể đạt được yêu cầu tụ khí, tức tích tụ trường năng lượng tốt. Tất nhiên chúng ta có thể có sự hiểu khác nhau giữa năng lượng thông thường, và nguồn năng lượng trong phong thủy.

Phối cảnh nhà chữ L 1 tầng được view từ trên cao
Trong phong thủy nhà chữ L có nhiều kiêng kỵ?
“Xét từ cả lý thuyết, lẫn thực hành, trong hàng ngàn, hàng vạn sách phong thuỷ từ cổ điển đến hiện đại, không có lấy một trang hoặc một chương sách khiêm tốn nào đá động đến phong (gió). Tất cả chỉ đề cập tới cặp âm dương sơn (núi) và thuỷ (nước). Theo đó, sơn chính là vật dùng để tàng phong và cùng với dòng nước luôn song hành với nó tạo thành những chỗ tụ thuỷ theo quan điểm của Quách Phác (đời Tấn), người được các học trò về sau xưng tụng là ông tổ của khoa phong thuỷ”.
Thật ra mà nói phong thủy là một bộ môn khoa học nó cũng không nhất thiết phải tuân thủ 100%, và đôi khi nhiều gia đình một mực tuân thủ theo phong thủy quá mưc dẫn đến xung đột giữa nhiều yếu tố trong ngôi nhà.
Với các kiến trúc sư việc xem phong thủy là tìm ra những phương án nào tốt trong cách đặt hướng nhà, hướng bếp, hay hướng bàn thờ… là chính. Còn ngoài ra mới xét đến các yếu tố khác, vì nếu địa thế đất đã đúng hướng sẵn rồi thì việc bố trí hướng nhà trở nên đơn giản còn đôi khi những nhà mà thế đất xấu việc bố trí hướng nhà là bất di bất dịch không thể thay đổi khi đó việc hóa giải hướng xấu sẽ bằng cách hướng ban thờ, bếp và phòng ngủ… ngoài ra người ta cũng dùng các vật phẩm trong phong thủy để khống chế các hướng xấu trong ngôi nhà.
Thiết kế biệt thự chữ L 1 tầng vẫn được xem là kiểu nhà không mấy tốt đẹp bởi nó không vuông vắn, không đồng đều ở 2 cạnh vậy nên được thiết kế theo những gì sẵn có của nó.
“Vẽ cái gì, ra cái nấy” hoặc “thiết kế nào, diễn biến ấy” là chuẩn tắc, đồng thời là giá trị thực của khoa kiến trúc phong thuỷ. Thiết kế kiến trúc phong thuỷ học không chỉ giải quyết phần không gian (ưu thế của kiến trúc phương tây xưa nay) mà còn giải quyết phần thời gian còn lại!
Người phương Đông xưa nay gọi nó là kiến trúc an cư.
Đơn giản vậy thôi. theo người viết bài này thì không thể có cái gọi là “bản vẽ phong thuỷ” cho một căn nhà lại khác biệt hoàn toàn, thậm chí mâu thuẫn với bản thiết kế kiến trúc của căn nhà đó. Phong thuỷ thực ra không có gì bí ẩn.

Thiết kế nhà biệt thự chữ L được thiết kế vô cùng đẹp
Chiêm ngưỡng vẻ đẹp của ngôi biệt thự 1 tầng chữ l ở Ninh Bình
Thiết kế nhà biệt thự chữ l 1 tầng 150m2 đẹp được thiết kế với khuôn đất khá ríc rắc, phía trước là 1 khoảng sân là đất dự phòng để dành cho sau này, do đó cổng được mở ra ở 1 góc phía bên trái người nhìn, nhưng nó cũng khá rộng để có thể dễ dàng cho xe ô tô di chuyển. Và khoảng sân cũng tạo cho ngôi nhà biệt thự chữ L1 tầng có khoảng rộng, thoáng đãng và mát mẻ, đón nhưng cơn gió mát từ bên ngoài.
Sát ngay cạnh là ngôi nhà thờ 3 gian ngói đỏ truyền thống có sẵn nên gia chủ muốn thiết kế xây sao cho ăn nhập với nhà hiện trạng đã có mà không bị phá vỡ khuôn viên ngôi nhà. Thiết kế nhà biệt thự chữ l diện tích 150m2 1 tầng đẹp được thiết kế với xung quanh là cả một cánh đồng thoáng đãng và mát mẻ đem đến cho gia chủ 1 không gian yên tĩnh và nhận được những cơn gió mát từ thiên nhiên.

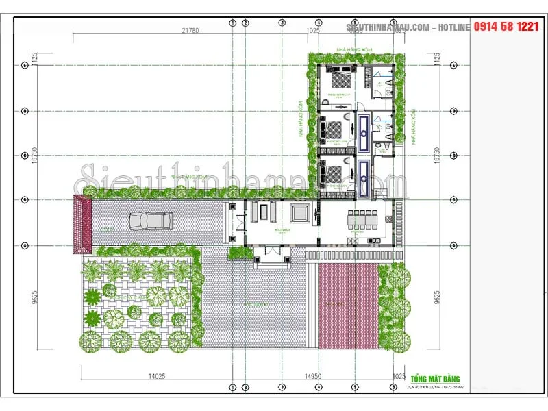
Tổng mặt bằng nhà biệt thự chữ L diện tích 150m2
Quy hoạch tổng mặt bằng nhà biệt thự hình chữ L 1 tầng diện tích 150m2
Muốn xây mẫu biệt thự 1 tầng đẹp để tính chất khu vực lập quy hoạch, xác định phạm vi ranh giới, nói lên chỉ tiêu dự kiến về dân số, hạ tầng kỹ thuật…. Ngoài ra bản đồ này còn dùng để xác định chức năng sử dụng đất cho từng khu vực một, các nguyên tắc tổ chức không gian và cảnh quan. Trong các dự án lớn việc công tác quy hoạch là nền tảng để giải quyết các vấn đề như đền bù, di dân, giải phóng mặt bằng….
Thiết kế và quy hoạch này sẽ là cơ sở để xác định mục tiêu phát triển trong dài đoạn dài các định hướng trong tương lai. Mặt khác,Đối với nhà ở dân dụng khi thiết kế sẽ được các kiến trúc sư quy hoạch định hướng tổng thể cách quy hoạch trong thiết kế biệt thự chữ l 1 tầng 150m2 nói riêng là quy hoạch để định vị khu xây dựng chỗ nào, cây cối có phá bỏ hay giữ lại những cây cối tránh phá vỡ khuôn viên vì nếu gia đình muốn giữ lại cây cối, cây ăn quả thì khi thi công sẽ không bị ảnh hưởng.
Còn đối với nhiều gia đình muốn thiết kế cả sân vườn tiểu cảnh để đồng bộ cả 1 khu diện tích lớn như nhà nghỉ dưỡng, khu du lịch cần phải có định vị về cod, độ cao nền sử dụng súng bắn mia thì mới có thể quy hoạch chi tiết và chính xác được và việc làm này cũng sẽ làm cho gia chủ tốn thêm chi phí.
Cách chữa đơn giản nhất là làm tượng trưng vuông lại mẫu thiết kế nhà hình chữ L kích thước 4.5x30m. Bên ngoài, ngay tại vị trí khuyết ta làm bồn phun nước, trồng cây, đặt bức tượng hay một đèn pha chiếu lên mái nhà để làm tượng trưng.
Mẫu thiết kế biệt thự chữ L 1 tầng có chiều cao tầng: 3,6m, chiều cao mái: 3,2m và tổng chiều cao nhà: 6,8m. Như vậy chiều cao nhà vừa thoáng mát lại làm cho ngôi nhà có tỉ lệ đẹp và thanh thoát.

Mặt bằng nội thất nhà biệt thự chữ L 1 tầng
Thiết kế không gian nội thất biệt thự 1 tầng chữ L 150m2
Thiết kế phòng khách biệt thự nhà chữ L 1 tầng
Các kiến trúc sư thiết kế rất nhiều mẫu thiết kế biệt thự chữ l đẹp cho rằng không gian phòng khách là không gian chung cả người lớn lẫn trẻ em đều bị hút vào những thiết bị máy tính, điện thoại thì việc sở hữu không gian chung giúp công tác kết nối các thành viên trong gia đình tốt hơn. Có những sinh hoạt chung, có những buổi chuyện trò… sẽ hạn chế được việc từng thành viên cô độc trong những khoảng riêng, say mê đời sống ảo.
Không gian sinh hoạt chung biệt thự 1 tầng chữ l là nơi sum họp, thư giãn và giải trí của gia đình. Mô hình gia đình của người Việt được chia thành hai bậc, một là vợ chồng, cha mẹ, con cái; hai là họ hàng, những người thân quyến, tạo nên mô hình đại gia đình.
Do đó, chúng ta luôn cần không gian sinh hoạt chung để có thể tổ chức các hoạt động kết nối các thành viên, họ hàng.nhưng nội thất thông minh trong căn hộ sẽ khiến không gian ấy hết sức linh hoạt. Chủ nhân hoàn toàn có thể tuỳ biến, điều chỉnh để biến không gian chung thành phòng ngủ tiện nghi, hiện đại, sẵn sàng chào đón thêm thành viên mới hay bạn bè tới chơi nhà. Tất nhiên, khi không có khách, những phòng ngủ “cơ động” ấy sẽ được thu về, nhường chỗ cho việc tạo khoảng chung ấm áp.
Không gian bếp trong nhà biệt thự chữ L diện tích 150m2
Có thể nói không gian bếp là nơi phụ nữ chiếm nhiều thời gian và được đánh giá gia đình đó có êm ấm hay không cũng đều dựa vào tiêu chí này không gian bếp có ngăn nắp, sạch sẽ hay không sẽ nhận ra gia đình đó có chỉn chu hay luộm thuộm…
Không gian bếp ngày nay đã được nhiều gia chủ chăm chút hơn thiết kế bàn bếp bằng bàn gỗ lỏng lẻo thì nay đã thay thế bằng bàn bếp bằng đá, chạn tủ bát đều được đầu tư mang đến không gian hiện đại, nhiều ngăn có thể chứa đựng được các đồ nội trợ một cách gọn gàng và ngăn nắp
Có thể thấy cách bố trí không gian trong ngôi biệt thự chữ L gồm 3 phòng ngủ chính được thiết kế lùi về phía sau (Cạnh dài chữ L) còn khu bếp và khách được “phô” ra phía ngoài (cạnh ngắn của chữ L).
Thiết kế nhà chữ L nhà anh Kiên- Ninh Bình mang phong cách hiện đại với kinh phí đầu tư khá và việc xây sử dụng các vật liệu như gỗ, kính được thiết kế với những kiến trúc đẹp mắt đem đến cho gia chủ 1 sự yên tâm và
Mảng tường ngoài sân với các chậu cây xung quanh sẽ tạo góc nhìn xanh khi đi từ trong nhà ra sân. Khoảng sân sau với một ít cây trồng, áp sát tường nhưng cũng ít nhiều mang lại hiệu quả xanh mát. Khi đứng nấu ăn trong bếp, ngồi từ phòng ăn luôn nhìn thấy mảng vườn trước. Đặc biệt buổi sáng có thể ngồi bên ngoài uống cà phê hưởng chút không khí mát mẻ.
Xem thêm mẫu thiết kế nhà 1 tầng 180m2 chữ U
Bếp nhà chữ l nên đặt ở hướng nào?
Thiết kế biệt thự chữ l theo quan niệm dân gian, nguyên tắc đầu tiên cần phải tính đến khi chọn hướng cho bếp là tọa hung, hướng cát (đứng trên cái dữ, hướng về cái lành). Như vậy bếp vừa trấn áp được hung thần vừa hút được khí lành. Trước kia hỏa môn (cửa bếp) là nơi đốt lửa nhưng ngày nay sử dụng bếp điện, bếp gas thì núm điều chỉnh lửa chính là hỏa môn, đặt quay về hướng lành là được. Cần tránh đặt bếp ở gần cửa sổ, càng không nên đặt bếp ngay trước bên dưới cửa sổ, ô thông gió.
Nhiều người vẫn có quan niệm đặt bếp ở gần cửa sổ cho sáng và thuận tiện cho việc nấu nướng. Tuy nhiên, điều này lại không hợp lý. Gió mưa, bụi bặm từ bên ngoài dễ làm bẩn đồ ăn, thức uống khi đang đun nấu. Vì thế, cần tránh đặt bếp ở gần cửa sổ, càng không nên đặt bếp ngay trước bên dưới cửa sổ, ô thông gió. Nếu muốn nhà bếp thông thoáng thì phương án dùng quạt hút mùi là hợp lý hơn cả.
Trong một số trường hợp, do hạn chế về diện tích, khu vực đun nấu thường được bố trí ở gần ban công. Nếu nhà bạn có bếp rơi vào trường hợp này thì cần che chắn bớt ban công cho kín đáo “ông táo”.
Thiết kế không gian phòng ngủ của nhà ông Kiên mặt tiền 4.5m nội thất thiết kế biệt thự chữ L được thiết kế 3 phòng ngủ con 12,7m2, phòng ngủ con 2 12,8m2, phòng ngủ bố mẹ 20,8m2, 1 phòng khách 26m2, 1 phòng thờ, 1 phòng bếp ăn 26m2, 1 phòng vệ sinh khép kín 5,1m2, vệ sinh chung 5m2.
Thiết kế biệt thự chữ l 1 tầng không gian phòng ngủ mang chức năng là phòng riêng tư là không gian nghỉ ngơi và giải trí của từng cá nhân. Việc thiết kế đem đến 1 không gian thoáng đãng cho tất cả các thành viên thì không gian phòng ngủ cần phải bố trí đồ đạc theo một logic nhất định. Khác với kiểu kê giường ở góc ngày xưa mà kê ngay ở giữa phòng đi theo nó là hệ thống điện và ổ cắm cũng được thiết kế đi theo nó chứ không phải nối dây điện chằng chịt. hay bất cập khi kê giường vào góc nhà sẽ rất bất tiện rất khó lưu thông và khi đó không gian phòng ngủ bí, dẫn đến nhiều chỗ khó vệ sinh gây ra ẩm thấp hôi hám.
Không gian phòng ngủ cần được trang trí ấm áp, đèn cũng cần thiết kế nhiều cấp độ để có thể thay đổi khi cần thiết như đèn lúc đi ngủ nàu vàng, đèn sử dụng bạn ngày sẽ đèn sáng và yếu tố cần thiết nhất là phải đủ ánh sáng. Nhiều gia đình có người già nên cứ hay tiết kiệm điện không bật chỉ tận dụng việc ánh sáng bên ngoài là đủ như vậy là phản khoa học. Việc đủ ánh sáng mới làm cho thần kinh con người trở nên thoải mái, như vậy giấc ngủ mới sâu và sức khỏe mới tốt.
Bên trong phòng ngủ cũng chú ý đưa chi tiết thiên nhiên với các họa tiết trên những khung cửa hình và các cành cây tạo cảm giác liền lạc với thiên nhiên bên ngoài.
Cách bố trí nội thất thiết kế biệt thự chữ L ở Ninh Bình phòng khách rộng để cả nhà nhiều thế hệ sum họp. Một dọc sảnh khá lớn để có thể di chuyển tới được không gian các phòng như một lối thiết kế hiện đại và sang trọng.
Cùng chung vui với gia chủ niềm vui sở hữu một ngôi nhà đầu tay ưng ý và đẹp mắt gia chủ gửi lời cảm ơn tới toàn thể công ty với lời mời đến dự tân gia thay cho lời cảm ơn sâu sắc tới đội ngũ thiết kế của siêu thị nhà mẫu chúng tôi, và đây cũng là niềm vui chung của toàn thể đội ngũ kiến trúc sư vì đã đem đến một mẫu thiết kế biệt thự chữ l diện tích 150m2 hoàn chỉnh đạt những yêu cầu mà gia chủ đưa ra.
Bạn và gia đình cũng muốn sở hữu cho mình một ngôi nhà cấp 4 1 tầng chữ L đẹp hãy liên hệ ngay Hotline: 0914581221 để sở hữu những không gian đậm chất của riêng bạn nhé!




Đánh giá
Chưa có đánh giá nào.