Mô tả
- Mã Sản Phẩm: Mẫu biệt thự BT361077
- Số Tầng: Nhà biệt thự 2 tầng
- Phong Cách: Hiện Đại
- Mặt Tiền: 9m
- Chiều Sâu: 14m
- Diện Tích: 100m2
- Kinh Phí Đầu Tư: Khoảng 1.1 đến 1.2 tỷ đồng
- Kích Thước Đất: 13x20m2
- Phương Án Móng: Móng Cọc
- Cấu Tạo Mái: Vì Kèo
- Cấu Tạo Thang: Tay vịn gỗ, mặt gỗ, cổ đá
- Lát SànT1: Gạch, T2: Gạch
- Chất Liệu Cửa: Cửa chính, Thông phòng gỗ, Kính
- Phòng Khách: 34m2
- Phòng Ngủ: N1: 14m2, N2: 14.5m2, N3:29.5m2
- Phòng Thờ: 7m2
- Phòng Vệ Sinh: wc1:4m2,wc2:3m2,wc3:5m2
- Phòng khác: Phòng bếp ăn: 14.5m2
- Quy cách hồ sơ: Khổ A3, khoảng 100 trang

Thiết kế nhà 2 tầng đẹp với mặt tiền 9m
Bản vẽ thiết kế nhà 2 tầng mặt tiền 9m được thiết kế với hình khối hiện đại.
Đa phần nhiều gia đình rất thích phong cách hiện đại. Phong cách hiện đại sử dụng các gam mè trung tính như màu ghi, màu be màu đen hoặc màu trắng, màu kem… những màu sắc này mang lại cảm giác thoải mái khi nhìn vào. Đường nét kiến trúc là những hình khối được thể hiện rõ qua việc phối màu đậm nhạt thích hợp.
Để không gian có thêm sự mới mẻ, ngoài gam màu trung tính, các màu sắc tươi sáng cũng được dùng để tạo điểm nhấn cho không gian. Sự kết hợp màu sắc khác nhau giúp tạo ra một không gian tổng thể hài hòa không làm mất đi sự hiện đại.
Việc lựa chọn gam màu chủ đạo cho mẫu thiết kế nhà 2 tầng hiện đại rất cần thiết bởi màu sắc đó sẽ làm tăng vẻ đẹp và sự rộng rãi cho ngôi nhà. Với mẫu thiết kế nhà 2 tầng 9x14m này có thể cảm nhận được vẻ đẹp và sự thoáng đãng, rộng rãi của nó qua cách thiết kế lược bỏ những chi tiết cầu kỳ, rườm rà để tạo ra những đường nét thẳng băng, phóng khoáng đó là điểm nổi bật của phong cách hiện đại và nó còn phù hợp đến ngày nay và cả mai sau nữa.
Cảm nhận đầu tiên khi nhìn ngắm mẫu nhà 2 tầng 9x12m là sự “sạch sẽ” đẹp mắt bởi cách thiết kế vô cùng tinh tế và chắc tay của đội ngũ thiết kế của siêu thị nhà mẫu. Với mặt tiền 9m kts đã thiết kế với lối đi vào thóng đãng với khoảng sân được thiết kế sạch sẽ. Với những kiến trúc hiện đại thì việc trang trí hay cầu kì là điều không cần thiết.

Góc view phần hông nhà 2 tầng 100m2 mặt tiền 9x14m đẹp
Mẫu thiết kế nhà 2 tầng diện tích 100m2 2 tầng đẹp
Thiết kế nhà 9x14m 2 tầng mặt tiền 9m với một không gian thoáng đãng mát mẻ, được cây xanh che chắn vô cùng mát mẻ không khí quanh năm. Khoảng sân được thiết kế rông rãi, sân được lát gạch màu sẫm chống trơn trượt. Xung quanh được thiết kế bồn để trồng hoa, thoáng đãng góc view đẹp không bị giới hạn bởi các ngôi nhà khác.
Trong lĩnh vực thiết kế, phong cách luôn là lựa chọn hàng đầu của các gia chủ. Không chỉ thể hiện cái “hiện đại”, cá tính của nhà, mà phong cách hiện đại còn góp phần lớn giúp cải thiện không gian, xóa bỏ điểm hạn chế trong thiết kế thô, nhấn mạnh vẻ đẹp thẩm mỹ và tính công năng của ngôi nhà.
Xuất hiện cuối thế kỷ 19, phong cách Hiện đại sớm gây ảnh hưởng lớn lên xã hội đương thời. Trào lưu Modernism nhanh chóng phát triển thành một xu hướng, lối sống mang tính đột phá. Như lời đoạn tuyệt mạnh mẽ với kiến trúc Cổ điển, các công trình theo phong cách Hiện đại đơn giản trong bố trí hình khối, tự do trong tổ chức mặt bằng và mang tính phi đối xứng
Đặc trưng của phong cách hiện đại nhà 2 tầng mặt tiền 9m
Thứ nhất: màu sắc
Mẫu thiết kế nhà 2 tầng 100m2 sử dụng phong cách hiện đại ưa chuộng các gam màu trung tính như trắng, đen, xám, màu be..làm tôn lên vẻ sang trọng, phóng khoáng đậm chất thành thị. Một điểm cộng cho phong cách này chính là bạn không cần quá cứng nhắc lựa chọn những tone màu trầm. Thay vào đó bạn có thể thể hiện sự phá cách trong việc mix một số màu sắc tương phản để tạo điểm nhấn cho một góc không gian đặc biệt. Đây cũng là chi tiết mà khó có phong cách thiết kế nào làm được.
Thứ hai: Vật liệu
Đối lập với các vật liệu đá hoa cương, da, nỉ,…của phong cách Cổ điển, chất liệu mà phong cách Hiện đại sử dụng linh hoạt hơn, không bị gò bó như: kính, thép, bê tông, gỗ…làm cho không gian tăng thêm nét sang trọng, lịch lãm.
Thứ ba: Không gian và ánh sáng
Phong cách thiết kế nội thất Hiện đại luôn hướng đến các không gian mở và thiết kế nhà 9x14m hướng sáng. Một nhà thiết kế tinh tế sẽ biết cách làm nổi bật những vật dụng nội thất cao cấp giữa một không gian thoáng đãng và giản lược. Ánh sáng được tận dụng tối ưu từ hệ khung cửa lớn, giếng trời kết hợp với sự liền mạch trong không gian. Từ đó mang đến nguồn năng lượng tích cực cho ngôi nhà và giúp gia chủ giảm tải điện năng.
Thứ tư: Tiết kiệm và phù hợp với công năng
Mẫu thiết kế nhà 9x14m 2 tầng diện tích 100m2 được tư vấn là phù hợp với phong cách hiện đại sẽ giúp khai thác tối đa các “góc chết”. Những đường “gờ” được loại bỏ triệt để, tạo không gian mở và tiếp nhận ánh sáng tự nhiên nhiều hơn. Đồ nội thất được bố trí giản lược, đề cao tính tiện nghi. Hãy xem mỗi vật dụng nội thất, vật dụng decor như một tác phẩm riêng biệt và cần có không gian riêng của nó, nổi bật khi đứng một mình và hòa hợp với tổng thể.

Mẫu thiết kế nhà 9x14m được thiết kế với những kiến trúc hiện đại
Thiết kế nhà 2 tầng diện tích 9x14m giá thiết kế với phần mái ấn tượng
Không chỉ là lớp khiên bảo vệ ngôi nhà trước các điều kiện thời tiết, mái nhà còn là bộ phận quan trọng quyết định tính thẩm mỹ tổng thể của công trình. Mỗi kiểu mái sẽ ảnh hưởng tới độ bền, chi phí xây dựng, bảo dưỡng cũng như sự thoải mái của các thành viên trong gia đình. Do đó, trước khi quyết định lựa chọn, bạn cần tìm hiểu thật kỹ về mái nhà.
Vai trò và ý nghĩa của mái nhà
Mái nhà được hiểu là bộ phận bao phủ phần trên cùng của một ngôi nhà, có chức năng bảo vệ người sống trong nhà cũng như các không gian nột thất tránh khỏi những tác động từ môi trường bên ngoài như mưa gió…. với vai trò này, bạn nên chọ vật liệu làm mái có khả năng chống thấm, chống ẩm, rêu mốc, cách nhiệt tốt và độ bền cao.
Bên cạnh đó, phần mái cũng đóng vai trò vô cùng quan trọng trong việc gia tăng tính thẩm mỹ cho nhà 2 tầng mái thái. Bởi lẽ, khi nhìn vào thiết kế của ngôi nhà, chi tiết này sẽ gây ấn tượng với người nhìn ngay từ lần đầu tiên. Có thể nói, mái nhà góp phần tạo nên diện mạo và linh hồn của công trình kiến trức.
Về mặt phong thủy, mái nhà chính là nơi tụ khí của toàn bộ ngôi nhà. Vậy nên, một thiết kế mái đẹp không chỉ đảm bảo cả về công năng, tính thẩm mỹ còn phải hợp phong thủy để mang lại sức khỏe dồi dào, tài lộc tấn tới cho gia chủ.
Cấu tạo của mái nhà
Hai bộ phận chính của mái nhà là kết cấu chịu lực và lớp lợp. Dưới mái còn có trần treo tạo thành hầm mái. Kết cấu mái nhà nói chung cần đáp ứng yêu cầu về công năng, tiết kiệm được chi phí và dễ thi công
Kết cấu chịu lực của phần mái có thể là ngói, bê tông, tôn…. được ốp trên kết cấu chịu lực, chức năng chính của lớp là chống nóng và chống thấm dột. Do đó, lớp lợp phảu đảm bảo không thấm nước, đồng thời có khả năng cách nhiệt tốt.
Các kiểu mái nhà phổ biến tại Việt Nam
Mái ngói
Tại Việt Nam, mái ngói là loại mái nhà truyền thống, phổ biến từ trước tới nay. Tùy vào phong cách thiết kế, mái ngói có thể mang đến vẻ đẹp thanh lịch, nhã nhặn, đề cao yếu tố truyền thống hay tạo sự trẻ trung, hiện đại cho công trình. Ưu điểm vượt trội của mái ngói là mang đến bầu không khí thoáng mát, dễ chịu cho người sống trong nhà bởi ngói được làm bằng đất sét nên tính dẫn nhiệt rất thấp, hiệu quả cao trong việc chống nóng. Đồng thời, kiểu mái này cũng có khả năng chống thấm tốt, phù hợp với điều kiện nóng ẩm mưa nhiều tại Việt Nam.
Mái bê tông cốt thép
Mái bê tông cốt thép là một trong những loại mái phổ biến nhất tại Việt Nam với đặc trưng là một mái liền phủ toàn bộ phần mái của ngôi nhà. Do được lắp ghép các cấu kiện bê tông và đổ bê tông toàn khối nên khối lượng khá nặng Xem ngay mẫu thiết kế nhà 9x15m có gì khác biệt không nhé !.U
Ưu điểm của mẫu thiết kế nhà 9x14m 2 tầng sử dụng mái bê tông cốt thép là khả năng chịu lực cao, chống nóng, chống cháy tốt, góp phần tạo nên một khối liên kết tổng thể vững chãi cho công trình. Gia chủ có thể tận dụng bề mặt sàn của mái để làm sân phơi, sân thượng. Đồng thời, bạn hoàn toàn có thể tùy thích lắp đặt đèn chiếu sáng, phụ kiện trang trí trên trần nhà hoặc dàn nước nóng lạnh, bồn trữ nước.

Mặt bằng tổng thể mẫu nhà 2 tầng đẹp
Tổng mặt bằng tổng quan được thiết kế mang đến tổng thể khuôn viên đẹp được thiết kế mang đến cho gia chủ 1 không gian bài bản, sạch sẽ gọn gàng. Với cổng hàng rào được thiết kế miễn phí bảo vệ khuôn viên ngôi nhà của mình một cách an toàn, chắc chắn. Thiết kế nhà 9x14m sở hữu lô đất là lô đất góc rất thuận tiện cho việc giao thông và có thể sử dụng để kinh doanh buôn bán tốt. Với diện tích đất không được vuông vắn thì việc tìm đến các đơn vị tư vấn thiết kế là sự lựa chọn sáng suốt. Qua đây có thể nắm được kinh nghiệm và tay nghề của đội ngũ kiến trúc sư thiết kế ngôi nhà của mình có được ưng ý không.

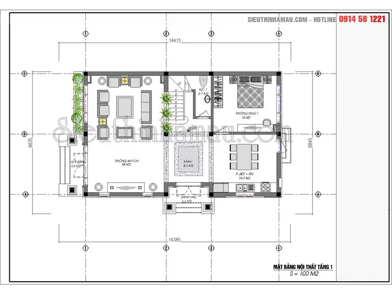
Bản vẽ nội thất tầng 1 mẫu thiết kế nhà 2 tầng mặt tiền 9m
Thiết kế nhà 2 tầng diện tích 100m2 được thiết kế với công năng linh hoạt
Mặt bằng tầng 1 mẫu thiết kế nhà 9x14m 2 tầng đẹp được thiết kế với không gian tầng 1 vô cùng ấn tượng, có thể thấy được nhà với diện tích khá rộng nên có lối vào từng khu vực 1. Đó chính là tiền sảnh là sảnh chính để gia chủ có thể đi từ sân vào phòng khách riêng, tiếp đó đến sảnh giữa thiết kế làm lối đi để vào khu vực bếp. Với lối thiết kế vô cùng thông minh của các kts, có thể tách biệt không gian phòng khách sang trọng, lịch sự để tiếp khách và giữ cho không gian sạch sẽ. Đối với không gian bếp gia chủ đi chợ có rất nhiều đồ lỉnh kỉnh do vậy sẽ không phải “khuôn” đồ từ trước nhà ra sau nhà như trước đây. Với lối đi riêng này sẽ gia chủ không phải đi qua phòng khách nữa vừa rút ngắn được quãng đường di chuyển lại vừa thuận tiện, vừa giúp cho người nấu nướng đỡ vất vả bởi đó là 2 không gian chính của tầng 1.
Phòng khách hưởng trọn diện tích 34m2 nhà 2 tầng 9x14m hướng mặt tiền phía ngoài nơi có tầm nhìn đẹp hướng ra sân với góc view thoáng đẹp nhất. Bởi đây sẽ là không gian mà gia chủ có thể sum họp quây quần mọi sinh hoạt hàng ngày sẽ diễn ra tại không gian này nhiều nhất. Bàn ghế với kích thước lớn được đặt sát vào bên tường, nhằm tạo ra một khoảng trống rất rộng, con cái tha hồ nô đùa vui chơi ngay tại không gian này.
Phần sảnh thang là khu vực rộng rãi và thoáng đãng, nơi này có đôi khi gia đình có cỗ bàn có thể tận dụng trải chiếu và bày cỗ bàn anh em bạn bè ngồi quân quần cũng rất đầm ấm và vui vẻ, nó là cách sử dụng phổ biến nhất của nhiều gia đình ở Việt Nam.
Tiếp sau là không gian phòng bếp là nơi để chế biến những món ăn ngon và là không gian để có thể chế biến những món ăn ngon và được thiết kế với những trang thiết bị hiện đại và nó phục vụ cho người nấu nướng một cách nhanh chóng và dễ dàng.

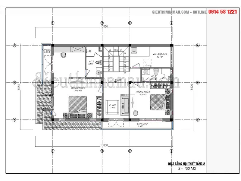
Mặt bằng nội thất tầng 2 nhà 2 tầng mái thái diện tích 100m2
Thiết kế nội thất được thiết kế nhà 2 tầng được thiết kế không gian phòng ngủ rất yên tĩnh
Thiết kế nhà 2 tầng 9x14m với bất kỳ một ngôi nhà nào thì việc ngủ nghỉ đều là những không gian quan trọng bởi 2/3 thời gian con người dành để ngủ có được nghỉ ngơi thì mới tái tạo được sức lao động. Và được thiết kế với những kiến trúc đẹp mắt đem đến cho gia chủ một không gian yên tĩnh phục vụ cho nghỉ ngơi và thư giãn.
Với nhà cao tầng thì việc thiết kế các phòng ngủ sẽ được bố trí lên các tầng trên, bởi sự thông thoáng, sạch sẽ. Rất ít gia đình thiết kế phòng ngủ dưới tầng 1, và nếu có 1 trí phòng ngủ ở tầng 1 thì chỉ có dành cho người già cao tuổi đi lại kém và phòng ngủ cho người giúp việc. Mẫu thiết kế nhà 2 tầng 9x14m 2 phòng ngủ được bố trí ở trên tầng 2 vô cùng hợp lý nhằm kết nối giữa các thành viên trong gia đình, nơi nâng niu tình thương và gieo mầm cảm xúc chính là giá trị mà siêu thị nhà mẫu chúng tôi hướng đến trong mỗi thiết kế. Phong cách Hiện Đại với đặc điểm về không gian, ánh sáng là lựa chọn hoàn hảo cho các mái nhà mang phong cách hiện đại này.
Tóm lại
Tổng thể 1 bộ hồ sơ thiết kế nhà đầy đủ sẽ bao gồm tất cả các mặt bằng mặt bằng mặt đứng, mặt cắt, phối cảnh 3D sẽ được triển khai một cách chi tiết lên đến 100 tờ khổ A3 và sẽ tùy vào diện tích và công năng của ngôi nhà đó mà triển khai bản vẽ kỹ thuật sẽ khác nhau và nếu diện tích lớn thì tất nhiên bản vẽ cũng sẽ rất dày. Do đó, bạn và gia đình có thể yên tâm khi đặt niềm tin vào siêu thị nhà mẫu chúng tôi không những thiết kế nhà 2 tầng 9x14m đẹp mà tất cả các mẫu thiết kế nhà biệt thự đẹp nói chung đều được khách hàng đánh giá rất tích cực.
Để được tư vấn thiết kế vui lòng liên hệ Hotline: 0914 58 1221




Đánh giá
Chưa có đánh giá nào.