Tuyển tập các mẫu thiết kế nhà biệt thự vườn 150m2 không gian xanh mát được các kiến trúc sư của Siêu thị nhà mẫu thiết kế với sự tâm huyết mong sẽ đem đến cho khách hàng không chỉ là một ngôi nhà đẹp, đầy đủ tiện nghi mà nó còn phải “có hồn” người sinh sống trong ngôi nhà đó phải cảm thấy vui vẻ và thoải mái và tương tác với nhau lúc đó ngôi nhà mới trở nên ý nghĩa.
Việc thiết kế với những kiến trúc hiện đại, tân cổ đã trở nên phổ biến và nó trở thành
Nội thất
Các nghiên cứ chuyên ngành mới đây đã phát hiện việc lựa lựa và trang trí phòng ốc có ảnh hưởng đến tính khí của con người. Cách thiết kế và bố trí hướng cũng như sắp xếp không gian nội thất có thể giúp chúng ta thoải mái, tỉnh táo hay hứng thú, sáng tạo… Thậm chí còn có khả năng phòng và chữa được một vài dạng tâm thần.
Xem thêm nhà biệt thự vườn 1 tầng 150m2
Phòng ốc và tư duy
Ngày càng có nhiều phát hiện khoa học cho thấy cách thiết kế phòng ốc là nguyên nhân của một số bệnh tật như: Độ cao của trần nhà, hướng cửa sổ, sắc màu và vị trí đồ đạc, cách trang trí nội thất và cả mức độ ánh sáng tự nhiên mà căn phòng nhận được. giữ vai trò chính đối với sực khở và tính khí của chủ nhân.
Phòng ốc và tính khí
Từ lâu, các kiến trúc sư đã linh cảm được sự tác động của nhà cửa, phòng ốc đối với suy nghĩ cảm xúc và cả hành vi con người tìm ra các hướng và dựa theo những căn cứ của phong thủy và khoa học bố trí các không gian hợp lý, đón nhận được ánh sáng và không khí tự nhiên của môi trường bên ngoài. Điều dễ nhận ra rằng, khi môi trường hoặc không gian bí bách thiếu không khí và ánh sáng cũng sẽ ảnh hưởng đến tinh thần cũng như tính cách của người sống trong ngôi nhà đó. Vì vậy, các không gian được các kiến trúc sư bố trí sẽ đem lại cho gia đình một công năng tối ưu nhất khi thuê các đơn vị tư vấn thiết kế như Siêu thị nhà mẫu chúng tôi.
Mối quan hệ hữu cơ
Tương tác giữa con người với môi trường xây dựng đã được nhận thức từ năm 1950 khi một số công trình khoa học phát hiện cách thiết kế bệnh viện có ảnh hưởng đến hiệu quả trị bệnh, đặc biệt bố trí phòng ốc tại những bệnh viện tâm thần có tác động mạnh mẽ đến thái độ và hành vi bệnh nhân.
Các chuyên gia về khoa học hành vi cũng thừa nhận rằng trần nhà cao hơn khuyến khích người ta suy nghĩ tự do hơn, có thể đưa đến sự liên kết trừu tượng hơn. Hay nói cách khác, cảm giác bị giam hãm do trần nhà thấp có thể làm cho con người ta có cách nhìn mang tính thống kê và chi tiết hơn.
Không gian có tác động rất lớn đến dạng nhiệm vụ mà bạn thực hiện nó còn chỉ ra rằng cảm giác của chủ nhân về độ cao thật sự quan trọng. Chỉ cần khéo léo một chút trong nhận thức không gian bằng việc sử dụng các loại sơn màu sáng hay kính phản quan cũng có có thể làm cho không gian phòng rộng và cao hơn.
cảnh quan
Thiết kế nhà biệt thự đẹp hướng tới công trình xây dựng cũng ảnh hưởng đến sự tinh thông về trí tuệ, đặc biệt kích thích sự tập trung của chủ nhân. Mặc dù khi nhìn qua cửa sổ có vẻ làm chứng ta xao nhãng và mất tập trung, nhưng thực tế thì việc đưa tầm nhìn vào những cảnh quan tự nhiên như vườn tược, cây cối…lại giúp cải thiện khả năng tập trung của con người. Đặc biệt trạng thái tinh thần cũng tốt hơn với những đối tượng so sánh chỉ nhìn toàn những cấu trúc do con người tạo ra.
Và ánh sáng tự nhiên
Cùng với màu xanh cây cỏ, tự nhiên còn mang đến cho chúng ta một tài sản quý khác là ánh sáng. Anhs sáng ban ngày luôn gắn liền với chu kỳ ngủ thức (hay nhịp ngày đêm) của cơ thể, tạo cho chúng ta sự tỉnh táo suốt ngày và buồn ngủ vào ban đêm. Tuy nhiên, nhiều cao ốc và cơ quan không được thiết kế cho mục đích khai thác tối đa ánh sáng tự nhiên ban ngày vấn rất cần cho cơ thể và đầu óc chúng ta.
Xem thêm thiết kế nhà biệt thự 2 tầng mái thái
Thiếu ánh sáng trời là vấn đề đặc biệt xấu đối với hoạt động trí óc ví dụ: nếu một đứa trẻ không có đủ thời gian nghỉ ngơi đến lớp học có rất ít ánh sáng ngày và đoán xem điều gì xảy ra. Nó sẽ mệt hơn và ngủ gục ngay trên bàn. Tương tự, hiệu ứng ánh sáng trời cũng xảy ra đối với những nhà dưỡng lão. Trí nhớ của các đối tượng hưu trí sẽ trở nên tồi tệ hơn khi ở trong môi trường quá tối. Hay nói cách khác, nhịp sinh học cơ thể họ nhanh chóng do môi trường sống thiếu ánh sáng tự nhiên.
Các nhà nghiên cứu khuyến cáo nên sử dụng loại đèn Led xanh dương và các loại thiết bị bổ sung ánh sáng có quanh phổ và huỳnh quang, vì cả hai đều có đủ lượng ánh sáng xanh kích thích tăng gia hệ nhịp ngày- đêm và chúng giữ cho cơ thể chúng ta tỉnh táo năng động đặc biệt vào ban ngày các cao ốc và khu dân cư tập thể nên khai thác tối đa, ánh sáng trời. Và, ban đêm nên sử dụng các loại đèn chiếu có bước sóng dài hơn, càng ít khả năng tạo ánh sáng càng tốt, để nhịp sinh học cơ thể phát hiện được có sự can thiệp vào giấc ngủ ban đêm.
Nội thất bàn ăn cần phải lựa chọn những vật liệu chắc chắn, thoải mái vì mọi người tụ tập, tán gẫu trò chuyện vui vẻ với nhau. Những chiếc ghế phải hết sức thoải mái và vừa vặn quanh bàn ăn miễn sao. Xem thêm biệt thự 3 tầng đơn giản
Ngoại thất, là hình ảnh 3D các mặt của ngôi nhà thường từ 3 ảnh trở lên tùy thuộc vào nhà có nhiều mặt tiền hay không, và thể hiện được màu sắc, chất liệu của của hình ảnh ngôi nhà. Thiết kế ngoại thất là phần bề ngoài, bề nổi để gia chủ có thể hình dung được công trình sẽ được xây dựng với hình khối ra sao và màu sắc như thế nào có cân đối về tỷ lệ hay không đó là điều mà các kiến trúc sư nào cũng đều phải làm đúng và hài lòng cho các chủ đầu tư.
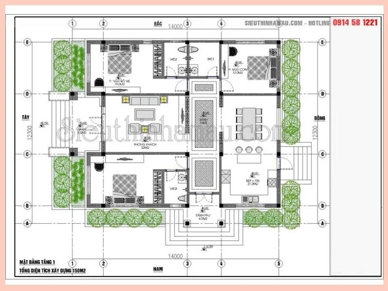
Mẫu số 1: Mẫu thiết kế nhà cấp 4 mái ngói đỏ diện tích 150m2- Mã Sản Phẩm BT113077
- Số Tầng Nhà biệt thự 1 tầng
- Phong Cách Biệt thự vườn
- Chiều Cao Tầng Trống
- Mặt Tiền 20m
- Chiều Sâu 8m
- Diện Tích Diện tích nhà: 150m2 – Diện tích bếp: 40m2
- Kinh Phí Đầu Tư Khoảng 1 – 1.2 tỷ đồng ( cả bếp)
- Kích Thước Đất 25x40m
- Phương Án Móng Móng Băng
- Cấu Tạo Mái Vì Kèo
- Lát Sàn T1: Gạch
- Chất Liệu Cửa Cửa chính, Thông phòng gỗ, Kính
- Trần Giả Thạch Cao
- Phòng Khách 50m2
- Tiền sảnh 20m2
- Phòng Ngủ phòng ngủ 1: 21.1m2, Phòng ngủ 2: 21.1m2
- Phòng Thờ Phòng thờ kết hợp khách
- Phòng Vệ Sinh WC1 (7,2m2), WC 2 (7,2m2)
- Gara ô tô Không có gara ô tô trong nhà
- Nhà ăn Diện tích 40m2 – Phòng ăn: 15.4m2, Bếp gas: 8.3m2, Bếp củi: 9.6m2
- Quy cách hồ sơ Khổ A3, khoảng 100 trang

- Mã Sản Phẩm BT809077
- Số Tầng Thiết kế nhà 1 tầng đẹp
- Phong Cách Hiện Đại
- Mặt Tiền 11.5m
- Chiều Sâu 13m
- Diện Tích 150m2
- Kinh Phí Đầu Tư Khoảng 900 triệu- 1 tỷ đồng
- Kích Thước Đất 6000m2
- Phương Án Móng Móng Băng
- Cấu Tạo Mái Vì Kèo
- Cấu Tạo Thang Trống
- Lát Sàn T1: Gạch
- Chất Liệu Cửa Cửa chính, Thông phòng gỗ, Kính
- Phòng SHC Không có phòng SHC
- Phòng Ngủ 3 phòng ngủ
- Gara ô tô Không có gara ô tô trong nhà
- Quy cách hồ sơ Khổ A3, khoảng 100 trang
Mẫu số 3:
- Mã Sản Phẩm BT910077
- Số Tầng Thiết kế nhà 1 tầng
- Phong Cách Hiện Đại
- Chiều Cao Tầng Chiều cao tầng: 3,6m- Chiều cao mái: 3,2m- Tổng chiều cao: 6,8m
- Mặt Tiền 4.5m
- Chiều Sâu 15m
- Diện Tích 150m2
- Kinh Phí Đầu Tư Khoảng 1 tỷ đồng
- Kích Thước Đất 350m2
- Phương Án Móng Móng Băng
- Cấu Tạo Mái Vì Kèo
- Lát Sàn T1: Gạch
- Chất Liệu Cửa Cửa chính, Thông phòng gỗ, Kính
- Trần Giả Thạch Cao
- Phòng Khách 26m2
- Phòng SHC Không có phòng SHC
- Phòng Ngủ 3 phòng ngủ con 12,7m2, phòng ngủ con 2 12,8m2, phòng ngủ bố mẹ 20,8m2
- Phòng Vệ Sinh phòng vệ sinh khép kín 5,1m2, vệ sinh chung 5m2.
- Phòng bếp ăn 26m2
- Quy cách hồ sơ Khổ A3, khoảng 100 trang
biệt thự 3 tầng
- Mã Sản Phẩm: Mẫu nhà BT116077
- Số Tầng: Mẫu nhà 2 tầng
- Phong Cách: Biệt thự mang phong cách hiện đại
- Mặt Tiền: 12.5m
- Chiều Sâu: 12m
- Diện Tích: 140m2
- Kinh Phí Đầu Tư: Khoảng 1.6- 1.7 tỷ
- Kích Thước Đất: 500m2
- Phương Án Móng: Móng băng
- Cấu Tạo Mái: Bê tông
- Cấu Tạo Thang: Tay vịn gỗ, mặt gỗ, cổ đá
- Lát SànT1: Gạch, T2: Gạch
- Chất Liệu Cửa: Cửa chính, Thông phòng gỗ, Kính
- Phòng khác: Có tầng áp mái
- Quy cách hồ sơ: Khổ A3, khoảng 100 trang
Mẫu số 4: Thiết kế mẫu nhà biệt thự vườn 3 tầng diện tích 150m2 tân cổ điển
Mã Sản Phẩm: BT523013
Số Tầng: Mẫu biệt thự 3 tầng
Phong Cách: Thiết kế biệt thự phong cách tân cổ điển
Mặt Tiền: 10m
Chiều Sâu: 16m
Diện tích 150m2
Thiết kế mặt bằng nội thất tầng 2 nhà biệt thự vườn 150m2 tân cổ điển
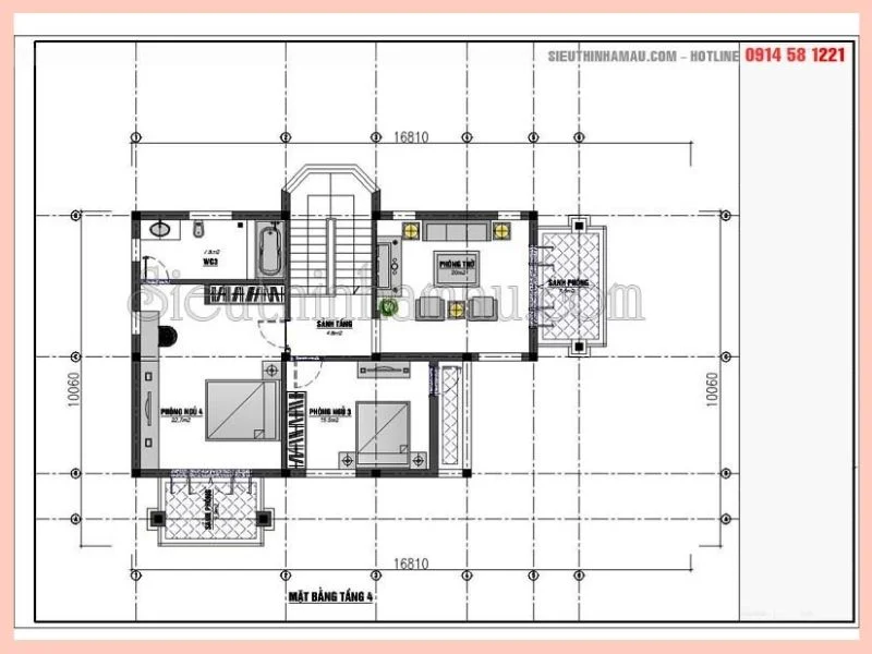
Thiết kế nội thất tầng 3 biệt thự nhà vườn 3 tầng



