Nhà 1 tầng có gác lửng hiện nay đang là xu hướng được nhiều gia đình mong muốn xây dựng và lựa chọn. Đây được xem là giải pháp xây dựng phù hợp và hiệu quả kể cả về chi phí xây dựng lẫn nhu cầu sử dụng khi mà chủ đầu tư muốn nới rộng khoảng không gian sử dụng cho gia đình mình, tăng thêm không gian sống bằng việc sử dụng thêm tầng gác lửng. Hiện nay, các mẫu thiết kế nhà 1 tầng có gác lửng không chỉ được xây dựng ở nhiều vùng nông thôn mà ngay cả thành phố cũng có nhiều gia đình lựa chọn loại hình nhà ở như thế này để xây dựng cho gia đình mình: vừa đảm bảo tính tiện nghi về mặt công năng sử dụng, vừa đảm bảo yêu cầu về mặt kiến trúc, thẩm mỹ.
Những lưu ý khi thiết nhà nhà 1 tầng có gác lửng cần ghi nhớ
Nhà có gác lửng là gì? Hay gác lửng, gác xép trong xây dựng và thiết kế thi công nhà ở được hiểu là một tầng nhà ở trong kiến trúc nhà hay căn hộ thông thường. Đối với nhà 1 tầng, tầng gác lửng được đặt bên trên tầng 1, tương tự như tầng 2 của nhà 2 tầng tuy nhiên, chiều cao tầng gác lửng thường thấp hơn. Trong kiến trúc, tầng gác lửng được thiết kế nhằm mục đích tăng thêm không gian sử dụng cho ngôi nhà theo chiều cao tầng. Việc thiết kế thêm tầng gác lửng phù hợp với những ngôi nhà hẹp mặt tiền, chiều sâu dài tương tự như nhà ống. Hoặc thích hợp với các ngôi nhà bị hạn chế chiều cao. Hay đơn giản là chủ nhà muộn tận dụng không gian của tầng lửng, không gian áp mái để phục vụ cho hoạt động sống thường ngày. Việc sử dụng tầng gác lửng cũng cho phép tạo ra không gian đẹp và thoáng dù cho diện tích ngôi nhà cũng đã tương đối lớn.
Một số công dụng bất ngờ khi tận dụng sử dụng tầng gác lửng mà bạn không thể ngờ đến bao gồm:
+) Khi diện tích nhà ở không rộng lắm, mà cần mặt bằng tầng để kinh doanh hoặc làm không gian để xe, nhà kho thì có thể sử dụng tầng lửng để làm tăng diện tích sử dụng của ngôi nhà trong khi sử dụng.
+) Khi công trình nhà ở bị giới hạn chiều cao tầng, mà cần mặt bằng rộng để sử dụng thì có thể sử dụng thêm tầng gác lửng. Trường hợp tầng lửng đủ diện tích thì có thể đưa các phòng sinh hoạt chung như khách, bếp, không gian phòng ăn…có thể được đưa lên tầng lửng tùy theo nhu cầu sử dụng của các thành viên trong gia đình.
+) Thiết kế tầng lửng với các phòng ngủ, phòng đọc sách, phòng làm việc có hiệu quả sử dụng cao.
+) Chiều cao tầng lửng thường từ 2.5 đến 2.8m là tối thiểu. Nếu thấp hơn, sẽ gây ra cảm giác chật chội, bí bức cho ngôi nhà. Gác lửng thường có chiều sâu bằng 2/3 chiều sâu của căn nhà.
+) Xây nhà 1 tầng có gác lửng được ưa chuộng không chỉ bởi giúp căn nhà tăng thêm diện tích sử dụng mà còn là phương án thiết kế tận dụng tối đa diện tích, tối ưu hóa không gian với giá thành dành cho việc xây dựng cũng khá tiết kiệm. Tiết kiệm diện tích, tiết kiệm chi phí. Có thể tận dụng thêm một số diện tích nhỏ và vừa để làm không gian phòng ngủ hoặc phòng thờ, phòng đọc tùy ý.
Tư vấn chi phí nhà 1 tầng có gác lửng đẹp cần chuẩn bị xây dựng
Về mẫu thiết kế nhà 1 tầng có gác lửng đẹp, chúng tôi nhận thấy được rằng, chi phí xây dựng và hoàn thiện của ngôi nhà biệt thự 1 tầng có gác lửng được thực hiện khá đầy đủ với chi phí xây dựng hợp lý. Với khoản đầu tư các ngôi nhà 1 tầng dưới đây từ 700 triệu đến khoảng 1 tỷ, bạn sẽ có được những mẫu thiết kế nhà như ý với vẻ đẹp sang trọng, hiện đại và phù hợp với nhu cấu sử dụng của các thành viên trong gia đình. Thêm vào đó, chúng tôi còn nhận được rất nhiều yêu cầu tư vấn thiết kế của chủ đầu tư về việc làm sao để có thể tiết kiệm được chi phí xây dựng nhà ở một cách tối ưu nhất.
Với những mẫu thiết kế nhà 1 tầng có gác lửng đẹp như thế này, chúng tôi hi vọng rằng sẽ mang đến cho bạn những sản phẩm thiết kế nhà đẹp, ấn tượng và phù hợp với chi phí xây dựng của nhiều gia đình hiện nay. Trong suốt quá trình thi công và làm việc, chúng tôi luôn cố gắng đem đến những sản phẩm thiết kế nhà ở ấn tượng nhất. Chi phí xây dựng và hoàn thiện mẫu thiết kế nhà 1 tầng có gác lửng được đưa ra khá phù hợp với diện tích, thực tế xây dựng hiện nay ở nhiều công trình. Đối với khách hàng, hi vọng rằng những sản phẩm thiết kế của chúng tôi sẽ thực sự khiến bạn hài lòng và ưng ý.
Tham khảo kiến trúc và mặt bằng công năng những mẫu thiết kế nhà 1 tầng có gác lửng đẹp
Những sản phẩm thiết kế nhà 1 tầng có gác lửng đẹp dưới đây được chúng tôi thực hiện và triển khai khá đồng bộ dành cho những chủ đầu tư ở nông thôn. Với vẻ đẹp gần gũi, truyền thống mà cũng không kém nét mộc mạc, giản dị, chúng tôi hi vọng rằng, các mẫu thiết kế nhà 1 tầng có gác lửng đẹp này thực sự mang đến cho bạn những cảm giác thân thuộc nhất dành cho gia đình mình.
- Mã Sản Phẩm
BT314077
- Mặt Tiền
8m
- Chiều Sâu
17m
- Diện Tích
100m2
- Kinh Phí Đầu Tư
Khoảng 900 triệu- 1 tỷ
- Kích Thước Đất
11mx31m
- Phòng Khách
21m2
- Phòng Bếp ăn
21m2
- Phòng Ngủ
N1: 14m2, N2: 14m2, N3:14m2, N4: 14m2
- Phòng Thờ
7m2
- Phòng Vệ Sinh
WC1: 2.8m2, WC2: 3.6m2, WC3: 3.6m2

Hình ảnh phối cảnh: Mẫu thiết kế nhà 1 tầng có gác lửng ở nông thôn
Đa số, những thiết kế nhà 1 tầng có gác lửng này được chúng tôi triển khai thực hiện cho những chủ đầu tư ở nông thôn. Thường thì đối với chủ đầu tư ở nông thôn, các mẫu thiết kế nhà 1 tầng có gác lửng được thực hiện với mặt tiền khá hẹp, dưới 10m. Hình dạng tương tự như những thiết kế nhà ống 1 tầng. Chính vì thế, kiến trúc 1 mặt tiền thường được áp dụng tuyệt đối cho mỗi ngôi nhà.
Bản vẽ mặt bằng bố trí nhà 1 tầng có gác lửng ra sao?
Cách bố trí mặt bằng công năng sử dụng của mỗi ngôi nhà cũng rất quan trọng. Mặt bằng công năng sử dụng của ngôi nhà 1 tầng có gác lửng được triển khai khá hợp lý với nhu cầu sử dụng của gia đình. Ở đây, kiến trúc sư đã chỉ định việc sắp xếp, đưa ra ý tưởng vị trí và diện tích, kích thước các phòng sao cho phù hợp nhất với kiến trúc, kết cấu của mỗi công trình. công năng sử dụng của mẫu nhà 1 tầng 100m2 có gác lửng này được triển khai với các yêu cầu phù hợp với mong muốn của chủ nhà.

Mặt bằng tầng 1: Thiết kế nhà 1 tầng có gác lửng đẹp
Phòng khách, phòng bếp ăn, 2 phòng ngủ,… trong mẫu thiết kế nhà 1 tầng có gác lửng được thực hiện với đầy đủ các phòng, diện tích sử dụng và độ thông thoáng, tiện nghi trong mỗi phòng chức năng. Các phòng sinh hoạt chung ( phòng khách + phòng bếp ăn) được đặt ở vị trí ngoài, phù hợp với mong muốn và yêu cầu của khách hàng về không gian sống đơn giản của nhà 1 tầng có gác lửng đẹp.

Mặt bằng tầng 2: Thiết kế nhà 1 tầng có gác lửng đẹp 100m2
Diện tích tầng gác lửng nhỏ hơn so với tầng 1, 2 phòng ngủ đẹp diện tích 14m2, cộng với 1 phòng thờ nhỏ 7m2 cho không gian tầng lửng thêm thoải mái và tiện nghi hơn khi sử dụng.
Mẫu 2: Hồ sơ thiết kế nhà 1 tầng có gác lửng đẹp hiện đại ở nông thôn
- Mã Sản Phẩm
BT606077
- Mặt Tiền
7m
- Chiều Sâu
15m
- Diện Tích
100m2
- Kinh Phí Đầu Tư
Khoảng 1 đến 1.2 tỷ đồng
- Kích Thước Đất
10x35m
- Phòng Khách
22m2
- Phòng Ngủ
N1: 14m2, N2: 16m2, N3: 12m2
- Phòng Thờ
8.4m2
- Phòng Vệ Sinh
WC: 5m2
Kiến trúc hiện đại của mẫu thiết kế nhà 1 tầng có gác lửng này thể hiện ở kiến trúc mái, cách sử dụng vật liệu hiện đại, cho đến các chi tiết trang trí đơn giản, sơn tường, mái ngói giật cấp….

Hình ảnh: Mẫu thiết kế nhà 1 tầng có gác lửng đẹp
Kích thước của mẫu nhà 1 tầng có gác lửng 7x15m, trong khi đó, diện tích sử dụng của ngôi nhà khoảng 100m2, rộng rãi cho việc thiết kế kiến trúc mặt tiền. Khối kiến trúc chính của ngôi nhà cho phép thể hiện được sự sang trọng, bề thế và gần gũi trong cách bố trí ngoại thất kiến trúc đơn giản. Ngôi nhà với vẻ đẹp mái ngói, kết cấu giật cấp mái phần mặt tiền tầng 1 khiến ngôi nhà thêm sang trọng và ấn tượng vô cùng.
Cách thức bố cục công năng sử dụng mẫu nhà 1 tầng có gác lửng đẹp

Mặt bằng tầng 1: Mẫu nhà 1 tầng có gác lửng
Ngôi nhà không có thiết kế gara ô tô bên trong, vì thế mà đặt gara ô tô bên ngoài cũng rất thuận tiện cho việc di chuyển cất giữ. Phần này trong kiến trúc được sử dụng hệ thống lam trang trí, sau đó lợp mái che bằng kính hiện đại che chắn vừa giúp bảo quản kĩ hơn, vừa có tác dụng trong việc tạo kiến trúc, thẩm mỹ sang trọng, hiên đại cho mẫu thiết kế nhà 1 tầng có gác lửng đẹp

Mặt bằng tầng 2: Mẫu thiết kế nhà 1 tầng có gác lửng đẹp
2 phòng ngủ 1 phòng thờ được đặt trên tầng gác lửng. Khu vực cầu thàng được đặt bên cạnh của phòng thờ, tiện cho việc di chuyển giữa các tầng nhà và cũng tiết kiệm diện tích sử dụng cho ngôi nhà đẹp 1 tầng này.

Bản vẽ mặt bằng mái: Mẫu thiết kế nhà 1 tầng có gác lửng đẹp ở nông thôn
Mẫu 3: Tư vấn thiết kế nhà 1 tầng có gác lửng đẹp diện tích 100m2
- Mã Sản Phẩm
BT908077
- Mặt Tiền
7m
- Chiều Sâu
15m (chưa bao gồm sảnh)
- Diện Tích
100m2
- Kinh Phí Đầu Tư
Khoảng 700 triệu đồng
- Kích Thước Đất
10m x 21m= 210m2
- Phòng Khách
18.5m2
- Phòng Ngủ
Phòng ngủ 1- 10m2; Phòng ngủ 2- 9,5m2- Phòng ngủ 3- 12m2
- Phòng Thờ
10.7m2
- Diện tích mái
90m2
Với chi phí xây dựng và hoàn thiện khoảng 700- 800 triệu đồng là bạn có thể sở hữu một ngôi nhà có tầng gác lửng như thế này!

Hình ảnh: Mẫu nhà 1 tầng có gác lửng đẹp
Không gian sân vườn, cổng, và hàng rào bao quanh mỗi mẫu thiết kế cũng được đơn vị tư vấn thiết kế thực hiện rất đầy đủ và chỉn chu trong bộ hồ sơ thiết kế chi tiết. Bạn sẽ nhận được ngôi nhà hài hòa nhất trong tổng thể kiến trúc, đẹp và hoàn thiện từ ngoài vào trong công trình. Không gian của cổng, hàng rào cũng góp phần tạo nên sức hấp dẫn trong tổng thể kiến trúc ngôi nhà đẹp 1 tầng có gác lửng này.
Mặt bằng bố trí công năng sử dụng mẫu nhà 1 tầng có gác lửng đẹp 100m2

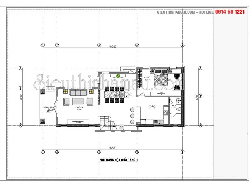
Mặt bằng tầng 1: Thiết kế nhà 1 tầng có gác lửng đơn giản mà sang trọng
Mặt bằng tầng 1: Tư vấn thiết kế nhà 1 tầng có gác lửng đẹp được triển khai với đầy đủ công năng sử dụng bao gồm 1 phòng khách và 2 phòng ngủ. Không gian phòng ốc đơn giản, hiện đại, tuy không có nhà ăn khép kín bởi không gian bếp ăn đã được xây dựng từ trước đó ở bên cạnh nhà rồi, nên trong nhà không có phòng bếp ăn như nhiều công trình hiện đại ngày nay.

Mặt bằng tầng lửng: Tư vấn thiết kế nhà 1 tầng có gác lửng đẹp 100m2 hiện đại
Mặt bằng tầng lửng bao gồm 1 phòng thờ, 1 phòng ngủ và 1 WC. Các phòng trên tầng lửng đều có bố trí cửa sổ thông phòng, các không gian sử dụng thoáng, đẹp phù hợp với mong muốn, nhu cầu sử dụng của nhiều gia đình hiện nay.
Mẫu số 4: Tư vấn thiết kế nhà 1 tầng có gác lửng hiện đại 100m2
- Mã Sản Phẩm
BT309077
- Số Tầng
1.5 tầng
- Mặt Tiền
7.7m
- Chiều Sâu
17.5m
- Diện Tích
100m2
- Kinh Phí Đầu Tư
Khoảng 600 – 700 triệu đồng
- Kích Thước Đất
10,5x25m= 262m

Hình ảnh ngoại thất: Tư vấn thiết kế nhà 1 tầng có gác lửng phong cách hiện đại
Mặt bằng mẫu nhà 1 tầng có gác lửng tiện nghi

Mặt bằng tầng 1: Mẫu thiết kế nhà 1 tầng có gác lửng hiện đại đẹp

Mặt bằng tầng 2: Vẻ đẹp mặt bằng công năng mẫu nhà 1 tầng có gác lửng đẹp
Tầng gác lửng này cũng được đặt 2 phòng ngủ và 1 phòng thờ. Phòng thờ nhỏ, diện tích 6.5m2 hướng ra bên ngoài cùng với hướng của ngôi nhà đẹp 1 tầng hiện đại này!
Mẫu 5: Tư vấn thiết kế nhà ở 1 tầng có gác lửng đẹp đơn giản
- Mã Sản Phẩm
Mẫu thiết kế nhà BT111077
- Mặt Tiền
7m
- Chiều Sâu
18m
- Diện Tích
100m2
- Kinh Phí Đầu Tư
Khoảng 1 tỷ đồng
- Kích Thước Đất
7x26m

Hình ảnh phối cảnh: Mẫu nhà 1 tầng có gác lửng đẹp
Thiết kế nhà 1 tầng có gác lửng này được thực hiện cho gia đình anh Lò Văn Cu ở Điện Biên, công trình với kiến trúc mái giật cấp, xếp chồng ấn tượng để tạo được kiến trúc bề thế, hoành tráng cho ngoại thất hiện đại, sang trọng hơn. Các chi tiết dưới đầu hồi mái được sơn màu nâu sẫm, đối lập với gam màu trắng của tường nhà ngoại thất.

Phối cảnh: Mẫu thiết kế nhà 1 tầng có gác lửng phong cách hiện đại đẹp
Mái xanh sẫm tạo nên sức hấp dẫn vô cùng đối với kiến trúc nhà biệt thự 1 tầng có gác lửng đẹp. Bạn sẽ thực sự bị cuốn hút bởi gam màu mái ấn tượng này. Hiện nay, công nghệ và sự đa dạng trên thị trường cung cấp vật tư xây dựng cho phép bạn có nhiều sự lựa chọn cho màu sắc mái của mỗi công trình.
Mặt bằng: Mẫu tư vấn thiết kế nhà 1 tầng có gác lửng đẹp hiện đại

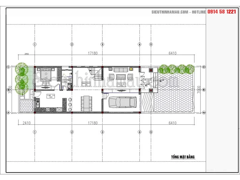
Tổng mặt bằng: tư vấn thiết kế nhà biệt thự 1 tầng hiện đại đẹp ở nông thôn

Mặt bằng tầng 2: Mẫu nhà 1 tầng có gác lửng vô cùng ấn tượng
Mẫu 6: Tư vấn thiết kế nhà 1 tầng có gác lửng phong cách hiện đại đẹp
- Mã Sản Phẩm
BT710077
- Chiều Cao Tầng
Chiều cao T1: 3,3m- Chiều cao tầng lửng: 3,3m- Chiều cao mái: 2,8m- Chiều cao tổng thể: 9,4m
- Mặt Tiền
7m
- Chiều Sâu
17m
- Diện Tích
110m2
- Kinh Phí Đầu Tư
Khoảng 700-800 triệu đồng
- Kích Thước Đất
182m2
- Phòng Khách
20m2
- Tiền sảnh
7.5m2
- Phòng Ngủ
phòng ngủ 1 13m2, Phòng ngủ 2 13m2, phòng ngủ 3 17,5m2
- Phòng Thờ
8.5m2
- Phòng Vệ Sinh
WC1: 4.5m2, wc2: 2.5m2
- Gara ô tô
14.5m2

Hình ảnh: Tư vấn mẫu thiết kế nhà 1 tầng hiện đại có gác lửng sang trọng

Hình ảnh: Mẫu nhà 1 tầng có gác lửng đơn giản mái thái
Bản vẽ chi tiết mặt bằng của mẫu tư vấn nhà 1 tầng có gác lửng đẹp

Mặt bằng tầng 1: Tư vấn thiết kế nhà 1 tầng có gác lửng đẹp

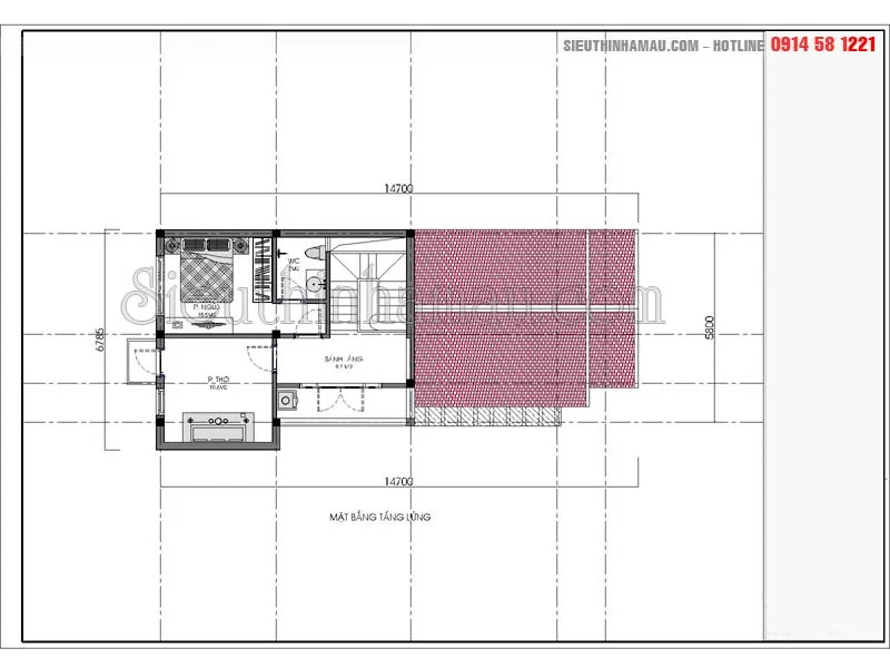
Mặt bằng tầng gác lửng: Thiết kế nhà 1 tầng có gác lửng
2 phòng ngủ 1 phòng thờ được đặt ở trên tầng gác lửng này. Mẫu thiết kế nhà 1 tầng có gác lửng cũng có ban công khá rộng rãi và thoáng mát phù hợp với nhu cầu sử dụng của mọi gia đình hiện nay.
Mẫu 7: Tư vấn thiết kế nhà 1 tầng có gác lửng hiện đại đẹp
- Mã Sản Phẩm
BT514077
- Chiều Cao Tầng
Trống
- Mặt Tiền
14m
- Chiều Sâu
13m
- Diện Tích
170m2
- Kinh Phí Đầu Tư
Khoảng 1.7 tỷ đồng
- Kích Thước Đất
1000m2
- Phòng Khách
26.5m2
- Phòng Ngủ
N1: 18m2, N2: 17m2, N3:18m2
- Phòng Thờ
15m2
- Phòng Vệ Sinh
phòng vệ sinh chung: (17m2), Vệ sinh 1: (5.2m2), phòng vệ sinh 2: (4.6m2)

Hình ảnh: Mẫu nhà 1 tầng có gác lửng đẹp
Mẫu nhà này có 2 tầng, trong đó, tầng hầm được tận dụng làm không gian ăn uống rộng rãi. Kiến trúc ngôi nhà giống như những thiết kế nhà sàn truyền thống.

Hình ảnh: Mẫu nhà vườn 1 tầng có gác lửng đẹp
Chi tiết mặt bằng của mẫu nhà vườn 1 tầng có gác lửng đẹp

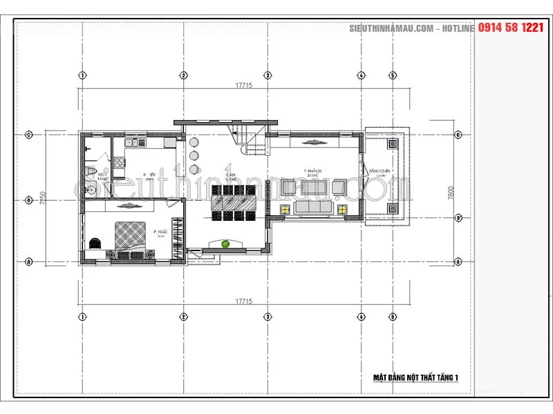
Mặt bằng tầng 1: Tư vấn thiết kế nhà 1 tầng có gác lửng hiện đại đẹp

Mặt bằng tầng 2: Mẫu nhà 1 tầng có gác lửng
Khác với những mẫu thiết kế nhà 1 tầng có gác lửng trước, ở thiết kế này, không gian tầng 2( tầng lửng) được bố trí công năng sử dụng tương tự như không gian sinh hoạt chính với đầy đủ không gian sử dụng giống như những mẫu thiết kế nhà ở với kiến trúc hiện đại, đẹp và tiện nghi vô cùng.
Mẫu số 8: Tư vấn thiết kế nhà 1 tầng có gác lửng hiện đại đẹp
- Mã Sản Phẩm
BT211077
- Mặt Tiền
11m
- Chiều Sâu
Chưa tính sảnh 11m; tính cả sảnh 12,5m
- Diện Tích
120m2
- Kinh Phí Đầu Tư
Khoảng 700- 800 triệu đồng
- Kích Thước Đất
14x26m
- Phòng Khách
14m2
- Sảnh trung tâm
14m2
- Phòng Thờ
8m2
Ngôi nhà 1 tầng có gác lửng (tầng áp mái) này có diện tích sử dụng rộng, lên đến 120m2. Nhìn ở ngoại thất kiến trúc, bạn sẽ không thể tưởng tượng được rằng lại có một tầng áp mái ẩn dấu bên trong tầng áp mái như thế! Thực sự là điều khác biệt và ấn tượng đối với công trình nhà ở 1 tầng đẹp như thế này!

Hình ảnh ngoại thất: Mẫu nhà 1 tầng có gác lửng hiện đại 120m2 đẹp
Cách bố trí mặt bằng công năng mẫu nhà 1 tầng có gác lửng đẹp hiện đại

Mặt bằng tầng 1: Mẫu thiết kế nhà 1 tầng có gác lửng đẹp hiện đại
Khu vực cầu thang của nhà 1 tầng có gác lửng này được đặt ở vị tri trung tâm của ngôi nhà. Vị trí cầu thang thông tầng mang lại cho ngôi nhà sự cân đối, hợp lý về phong thủy. Phòng thờ được đặt ở chính giữa, thể hiện sự trang trọng, tôn kính của con cháu đối với ông bà tổ tiên.

Mặt bằng tầng áp mái: Mẫu thiết kế nhà 1 tầng có gác lửng 120m2 đẹp
Tầng áp mái của mẫu thiết kế nhà đẹp 1 tầng 120m2 hiện đại bao gồm không gian phòng ngủ, phòng sinh hoạt chung và không gian rộng rãi cho phòng tập thể dục. Đây cũng chính là cách bố trí công năng sử dụng đơn giản, mới mẻ áp dụng phù hợp với nhu cầu sử dụng củ các thành viên trong gia đình hiện nay.
Kết luận về những mẫu thiết kế nhà 1 tầng có gác lửng đẹp
Tư vấn mẫu thiết kế nhà 1 tầng có gác lửng đẹp, với kiến trúc hiện đại, sang trọng, và công năng sử dụng đầy đủ, tiện nghi, mới mẻ hứa hẹn sẽ mang đến cho bạn những ý tưởng thiết kế nhà ở đẹp và ấn tượng nhất.
Như vậy, bạn hoàn toàn có thể tham khảo những thiết kế nhà 1 tầng diện tích 120m2 đẹp này cho ý tưởng thiết kế và xây dựng nhà ở của gia đình mình.
Mọi yêu cầu tư vấn thiết kế và xây dựng nhà ở đẹp 1 tầng bạn có thể liên hệ trực tiếp với kiến trúc sư của chúng tôi để nhận được sự tư vấn chính xác nhất dành cho gia đình mình!
Chúc bạn sớm có được thiết kế nhà ở và ngôi nhà như ý muốn!
Hotline: 0914 58 1221



