Mô tả
- Mã Sản PhẩmMẫu nhà BT651077
- Số Tầng2 tầng
- Phong CáchHiện Đại
- Chiều Cao TầngTrống
- Mặt Tiền11.5m
- Chiều Sâu13m
- Diện Tích130m2
- Kinh Phí Đầu TưKhoảng 1.8 tỷ đồng
- Kích Thước Đất265m2
- Phương Án MóngMóng Cọc
- Cấu Tạo MáiVì Kèo
- Cấu Tạo ThangTay vịn gỗ, mặt gỗ, cổ đá
- Lát SànT1: Gạch, T2: Gạch
- Chất Liệu CửaCửa chính, Thông phòng gỗ, Kính
- Trần GiảThạch Cao
- Phòng Khách33.2m2
- Phòng SHCTrống
- Phòng NgủN1: 16.6,3m2, N2: m2, N3: m2
- Phòng ThờTrống
- Phòng Vệ SinhTrống
- Gara ô tôTrống
- Phòng khácTrống
- Quy cách hồ sơKhổ A3, khoảng 100 trang
Một số nội dung đề cập trong bài viết
Như thế nào là diện tích xây dựng
Chắc ai cũng biết được nhà ở có những không gian nào như phòng bếp, khách, ngủ … nhưng để nói về diện tích xây dựng thì còn rất nhiều người không biết hoặc không quan tâm. Diện tích xây dựng là phần diện tích phủ bì để tính mật độ xây dựng tính từ mép tường bên ngoài phía bên kia sang mép tường bên ngoài phía bên này, đơn vị đo là m2 (mét vuông). Diện tích xây dựng thiết kế biệt thự hay nhà phố đều được quy định trong giấy phép xây dựng và phê duyệt trong quy hoạch.
(Nếu bạn chưa biết diện tích phủ bì là gì thì đây là phần diện tích sở hữu của công trình nhà ở dân dụng gồm cả tường bao).
Cách tích diện tích sử dụng và diện tích xây dựng khác nhau. Diện tích sử dụng là tổng phần diện tích chính (các phòng để ở, tủ tường, phần bố trí dưới cầu thang, nếu mặt nền đến mặt dưới cầu thang cao dưới 1,6m thì không tính) và diện tích phụ (bếp, phòng tắm, ban công, nhà kho, lối đi, hành lang, một nửa diện tích ban công và lô gia) ngoại trừ cột, tường được đưa vào sử dụng sau khi hoàn thiện. Trong khi đó, cách tính diện tích xây dựng nhà dân dụng là phần phủ bì gồm toàn bộ phần đất để xây dựng công trình.

Chiêm ngưỡng vẻ đẹp hút hồn từ mẫu biệt thự 2 tầng diện tích 130m2
Thiết kế nhà biệt thự 2 tầng đẹp diện tích 130m2
Tìm hiểu về sàn diện tích xây dựng
Định nghĩa diện tích sàn xây dựng là gì? Đây là diện tích của các tầng, gồm cả ban công, cầu thang. Diện tích sàn xây dựng được dùng để tính toán dự toán xây dựng, kinh phí sự trù nên cần đo chuẩn xác.
Có sự khác nhau về định nghĩa diện tích xây dựng và diện tích sàn xây dựng. Diện tích xây dựng bao gồm diện tích sàn.
Cách tính diện tích sàn xây dựng trong giấy phép xây dựng được quy định:
– Diện tích sàn một tầng: tính từ mép ngoài tường bao thuộc tầng, gồm diện tích hành lang, ban công, lô gia,…
– Tổng diện tích sàn xây dựng: tổng diện tích các tầng, gồm tầng nửa tầng hầm, tầng hầm, tầng kỹ thuật, tầng mái.
* Diện tích sàn xây dựng được tính như thế nào?
Quy định tiêu chuẩn cách tính diện tích sàn xây dựng nhà ở, căn hộ, biệt thự,… như sau:
Diện tích sàn xây dựng = Diện tích sàn sử dụng + Diện tích khác (Phần móng, mái, sân, tầng hầm)
Trong đó, diện tích sàn sử dụng là diện tích sử dụng có mái (bao gồm cả ô cầu thang, giếng trời…) tính 100%.
Diện tích tim tường thường được sử dụng để xác định diện tích chung cư, nó chính là diện tích xây dựng, bao gồm cả tường phân chia các căn hộ, tường bao chung cư, diện tích sàn có cột, hộp kỹ thuật.
Diện tích thông thủy căn hộ là gì? Như tên gọi của nó, diện tích thông thủy đo theo những nơi nước có thể đi qua, trong đó gồm toàn bộ diện tích sàn ở mép tường trong, tính cả diện tích tường ngăn các phòng, sàn ban công, lô gia của căn hộ, ban công có tường chung thì tính diện tích ở mép bên trong tường. Không tính tường bao nhà, tường ngăn các căn hộ, cột, hộp kỹ thuật. Diện tích thông thủy cũng áp dụng cho nhà phố, biệt thự, nhà liền kề.
Cách tính diện tích căn hộ thông thủy sẽ không bao gồm phần tường phân chia giữa các căn hộ, tường bao nhà, diện tích sàn có cột. Diện tích thông thủy vì vậy luôn nhỏ hơn diện tích tim tường và là diện tích chuẩn ghi trong hợp đồng mua bán nhà ở.

Phối cảnh 3D mặt tiền và chiều sâu của ngôi nhà 2 tầng 130m2
Khung cảnh mẫu thiết kế nhà biệt thự 2 tầng mặt tiền 130m2
Khung cảnh ngôi nhà 2 tầng diện tích 130m2 được phối hợp với gam màu sắc xanh của thiên nhiên và cây cối xung quanh vườn, ánh sáng của buổi sớm mai làm cho ngôi nhà có một sắc tím nhẹ nhàng và ấn tượng. Không gian làm dịu đi sự mệt mỏi của gia chủ, tinh thần phấn trấn muốn việc thiết kế với những kiến
Phương pháp tính diện tích xây dựng nhà ở trong xây dựng để xin phép xây dựng, diện tích xây nhà cấp 4, nhà cao tầng 2-3 tầng, biệt thự, 1 trệt 1 lầu, 1 trệt 2 lầu,… theo m2 áp dụng nhiều hiện nay, được tính bằng diện tích các phần như sàn, trần,… nhân với hệ số phần trăm tính diện tích quy

Phối cảnh tổng thể nhà biệt thự 2 tầng diện tích 130m2
Góc view từ trên cao được các kiến trúc sư thể hiện rõ qua hình ảnh thiết kế là sự cân đối cả về màu sắc lẫn tỷ lệ, việc thiết kế những bức tường được thiết kế với đường gờ, mi và rãnh để tạo hình khối cho ngôi nhà, đồng thời cách thiết kế với những kiến trúc hiện đại. được thiết kế với những những kiến

Góc view bên hông trái của ngôi nhà biệt thự
Thiết kế nhà 2 tầng diện tích 130m2 đẹp với các thành phần trong hồ sơ thiết kế
Phối cảnh là một cách vẽ trong hội họa, hay tạo hình, dùng để thể hiện các hình ảnh 3 chiều một cách gần đúng trên một bề mặt 2 chiều (giấy hay vải) nhờ vào các quy luật phối cảnh. Các quy luật phối cảnh được xây dựng trên các quy tắc hình học chặt chẽ.
Theo giai đoạn thiết kế:
Bản vẽ thiết kế sơ bộ
(Bản vẽ thiết kế kĩ thuật)
Bản vẽ thiết kế thi công
Theo cấu trúc hồ sơ bản vẽ:
Bản vẽ mặt bằng tổng thể
Bản vẽ các hình chiếu của ngôi nhà
Bản vẽ triển khai các chi tiết cấu tạo của ngôi nhà
Theo từng bộ môn:
Bản vẽ về kiến trúc
Bản vẽ về kết cấu
Bản vẽ về hệ thống điện
Bản vẽ cấp thoát nước
Bản vẽ phòng cháy chữa cháy
Bản vẽ về thông hơi, cấp nhiệt, cấp gaz …

Mặt bằng tổng thể nhà 2 tầng 130m2 đẹp mê ly
Mặt bằng tổng thể được thiết kế bao gồm
Bản vẽ địa hình khu vực xây dựng: bản vẽ mặt bằng khu vực xây dựng, trên đó thể hiện các đường đồng mức, đường giao thông, hệ thống điện, sông ngòi và chỉ ra vị trí công trình sẽ xây dựng.
Bản vẽ mặt cắt địa chất công trình: thể hiện các tầng địa chất, mực nước ngầm, bảng kết quả thí nghiệm sức chịu tải của đất nền.
Bản vẽ tổng mặt bằng công trình: là hình chiếu bằng hay bản vẽ mặt bằng của toàn bộ công trình chính và phụ trợ được vẽ với tỉ lệ lớn hơn so với bản vẽ địa hình khu vực xây dựng.
Giai đoạn thiết kế thi công:
Trên cơ sở của phương án thiết kế đã được chọn ở giai đoạn thiết kế sơ bộ, người thiết kế sẽ đi sâu về các mặt kiến trúc và kết cấu cho toàn bộ công trình. Các bản vẽ trong giai đoạn này gồm: Nhà 2 tầng hiện đại mái thái đẹp
Bản vẽ về kiến trúc (mặt bằng, mặt đứng, mặt cắt, phối cảnh, chi tiết thang, chi tiết vệ sinh, chi tiết cửa, chi tiết trang trí)
Bản vẽ về kết cấu (móng, khung, sàn, mái, ô văng, cầu thang, sê nô)
Bản vẽ về hệ thống điện (sơ đồ nguyên lý phân phối điện, mặt bằng điện các tầng, thống kê vật liệu điện)
Bản vẽ cấp thoát nước (mặt bằng cấp thoát nước các tầng, sơ đồ cấp thoát nước các khu vực vệ sinh, toàn nhà, thống kê vật liệu nước)
Ngoài ra, đối với các công trình phức tạp, thông thường có thêm một số bản vẽ triển khai việc thi công như: bản vẽ dàn giáo, cốp pha xây dựng, bảng tiến độ thi công cho công trình…
Mặt bằng quy hoạch
Là bản vẽ hình chiếu bằng một khu đất, thể hiện rõ vị trí đất được xây dựng, ranh giới đất xây dựng, chỉ giới đỏ. Thường bản vẽ này được trích ra từ bản đồ địa chính thành phố, hoặc trong bản vẽ quy hoạch tổng thể.
Tỷ lệ thường từ 1:2000 – 1:10.000.
Mặt bằng tổng thể
Là bản vẽ hình chiếu bằng các công trình trên tổng thể khu đất xây dựng. Trên đó thể hiện rõ lối giao thông bên ngoài, bố trí cây xanh, cổng, lối vào …
Đặc biệt là cần phải có hướng Bắc Nam, hoặc hoa gió.
Tỷ lệ bản vẽ thường là 1:200, 1:500, 1:1000 …
CÁC HÌNH BIỂU DIỄN CỦA MỘT NGÔI NHÀ
Nhằm thể hiện hình dáng và cấu tạo một ngôi nhà, thông thường sử dụng các bản vẽ sau:
Hình cắt bằng: mặt bằng.
Hình chiếu đứng, hình chiếu cạnh.
Hình cắt ngang và dọc.
Hình trích.
MẶT BẰNG
Mặt bằng ngôi nhà là hình cắt bằng của ngôi nhà, trên đó thể hiện vị trí, kích thước các tường, vách, cửa và các thiết bị đồ đạc.
Thông thường mặt phẳng cắt lấy cách mặt sàn nhà 1m – 1.5m.
Mỗi tầng nhà được vẽ với một mặt bằng riêng. Nếu 2 tầng có trục đối xứng, cho phép vẽ một nửa mặt bằng tầng này kết hợp với một nửa mặt bằng tầng kia. Nếu các tầng có kết cấu giống nhau thì vẽ tầng điển hình.
Tỷ lệ: 1:50, 1:100, 1:200.
Đường nét: nét liền đậm thường dùng 0.6 – 0.8 mm vẽ các đường bao của cột, tường và vách ngăn bị mặt phẳng cắt qua. Dùng nét liền mảnh để vẽ các đường bao của các bộ phận nằm sau mặt phẳng cắt và vẽ các thiết bị vật dụng trong nhà. Mặt bằng còn vẽ nét cắt để biểu thị vết của mặt phẳng cắt. Xem ngay các mẫu nhà 2 tầng 130m2
Kích thước: bao gồm
Dãy kích thước sát đường bao mặt bằng ghi kích thước các mảng tường và các lỗ cửa sổ, cửa đi …
Dãy kích thước thứ 2 ghi khoảng cách các trục tường, trục cột.
Dãy ngoài cùng ghi kích thước giữa các trục tường biên theo chiều dọc hay chiều ngang ngôi nhà.
Các trục tường và trục cột được kéo dài ra ngoài và tận cùng bằng các vòng tròn đường kính khoảng từ 8 – 10mm, trong đó ghi các số thứ tự 1, 2, 3… cho các trục ngang, tính từ trái qua phải, và ghi các chữ A, B, C… theo chiều rộng ngôi nhà, từ dưới lên trê
Bên trong mặt bằng có ghi kích thước chiều dài và chiều rộng mỗi phòng, bề dày các vách tường và diện tích từng phòng.
Cao độ mặt sàn được ký hiệu và được đặt ngay tại vị trí có cao độ ấy.
Đặc biệt trong thiết kế thi công cần ghi đầy đủ kích thước cần thiết cho việc thi công và lắp đặt thiết bị.
Ngoài ra, trong những công trình có yêu cầu cao, có thể vẽ thêm mặt bằng lát nền, mặt bằng trần, mặt bằng định vị cột và móng…

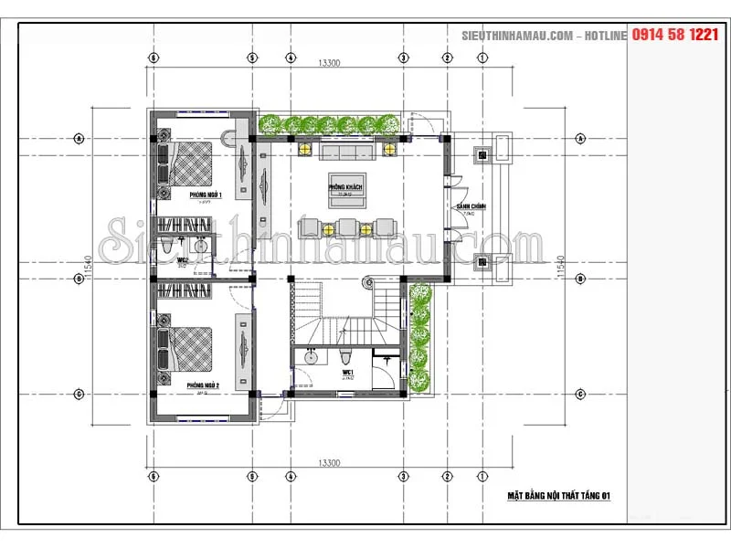
Mặt bằng nội thất tầng 1 nhà 2 tầng 130m2
Kết cấu phần móng:
Móng nhà là thành phần liên kết với nền đất chống đỡ các yếu tố của công trình và không gian bên trên.
Móng bao gồm tường móng, trụ móng và đế móng.
Phần móng còn bao gồm các thành phần kỹ thuật như bể nước ngầm, bể phốt, các đường ống cấp thoát nước, đôi khi đường điện, đường điện thoại (trong khu vực các đường kỹ thuật này đều chôn ngầm).
Két cấu phần thân:
Cột: là kết cấu chống đỡ lực nén thẳng đứng.
Dầm: là thành phần nằm ngang, chống đỡ lực tác dụng thẳng góc theo chiều dài của dầm. Dầm là cấu kiện vượt qua không gian giữa các cột. Cột và dầm hình thành hệ kết cấu khung và liên kết các cột lặp đi lặp lại trong không gian.
Tường: là thành phần thẳng đứng, có nhiệm vụ ngăn cách các phòng với nhau và với bên ngoài, đỡ những tấm sàn, mái che và truyền xuống móng trọng lượng của bản thân chúng và của những cấu kiện.
Theo vị trí, tường được chia ra:
Tường bao: có nhiệm vụ che kín ngôi nhà, bảo vệ bên trong đối với thời tiết.
Tường ngăn: có nhiệm vụ ngăn cách giữa các phòng.
Theo chức năng, tường được chia ra:
Tường chịu lực: tường chịu lực tác dụng từ trên xuống dưới. Tường ngăn thường hỗ trợ tường chịu lực để tăng tính ổn định.
Tường không chịu lực: Tường chỉ chịu tải bản thân nó và không liên kết với kết cấu khung để trở thành hệ thống chịu tải. Chúng tự do bố trí, thay đổi để phù hợp với ý thích, hoàn cảnh.
Sàn: là tấm bê tông cốt thép đặt nằm ngang và phẳng, có nhiệm vụ phân cách giữa các tầng và đỡ lớp ván sàn. Sàn tựa trên các tường chịu lực hay lên các dầm của khung chịu lực.
Cầu thang: là bộ phận dùng cho việc đi lại giữa các tầng nhà (cầu thang trong) hay giữa sân với trong nhà (cầu thang ngoài).

Mặt bằng nội thất tầng 2
Mặt bằng nội thất tầng 2 được thiết kế với không gian 2 phòng ngủ 1 khoang thang và 1 phòng thờ một phòng vệ sinh. khoảng hành lang gần khoang thang được thiết kế thông thoáng. Xem thêm mẫu biệt thự 9x10m2 2 tầng

Mặt bằng tầng áp mái mẫu nhà 2 tầng diện tích 130m2
Tầng áp mái chủ yếu thiết kế để làm kho chứa đồ hoặc làm để chứa bình nước và lỗ thăm lên trên mái nhà. Việc có tầng áp mái cũng có lợi ích khác như tận dụng phòng ngủ hay khu sân chơi cho trẻ em. Ở một số nước ngoài xứ lạnh thường tận dụng tầng áp mái làm phòng ngủ với không gian mở lợp kính cường lực vừa có thể nhìn ngắm sao và ban đêm… còn ở Việt Nam xứ nóng đôi khi sẽ thấy nóng bức khó chịu và không hợp lý.

Bản vẽ mặt bằng nhà 2 tầng 130m2
Kết cấu phần mái
Mái nhà: là bộ phận che chở cho ngôi nhà.
Mái đua: là phần mái đưa ra phía trước công trình để không cho nước mưa rơi từ trên mái xuống mặt trước. Nước được tập trung vào hệ thống máng tôn, sau đó chảy vào ống đứng và đổ vào hệ thống thoát.
Cửa trời: cửa để chiếu sáng tầng giáp mái.
Bản vẽ nhà chủ yếu trình bày cách thể hiện bản vẽ kiến trúc của công trình trong giai đoạn thiết kế kỹ thuật.
biểu diễn các cấu kiện chịu lực, cấu kiện bao che, kích thước giữa các cột, các trục chia, kích thước nhịp, độ cao sàn nhà …
Ngoài ra, bản vẽ còn thể hiện các chi tiết móng, các tường, panen mái và các kết cấu đặc biệt khác.
Mọi chi tiết về mẫu thiết kế nhà biệt thự 2 tầng 130m2 bạn có thể liên hệ trực tiếp qua Hotline: 0914 581221




Đánh giá
Chưa có đánh giá nào.