Mô tả
- Mã Sản PhẩmMẫu nhà BT816077
- Số TầngMẫu biệt thự 2 tầng
- Phong CáchBiệt thự mang phong cách hiện đại
- Chiều Cao TầngChiều cao tầng 3.6m, 3.3m- Chiều cao mái 3m
- Mặt Tiền8m
- Chiều Sâu13m
- Diện Tích100m2
- Kinh Phí Đầu TưKhoảng 900- 1 tỷ đồng
- Kích Thước Đất28x30m=840m2
- Phương Án MóngMóng băng
- Cấu Tạo MáiBê tông
- Cấu Tạo ThangTay vịn gỗ, mặt gỗ, cổ đá
- Lát SànT1: Gạch, T2: Gạch
- Chất Liệu CửaCửa chính, Thông phòng gỗ, Kính
- Trần GiảTrống
- Phòng KháchTrống
- Phòng SHCTrống
- Phòng NgủTrống
- Phòng ThờTrống
- Phòng Vệ SinhTrống
- Gara ô tôTrống
- Phòng khácTrống
- Quy cách hồ sơKhổ A3, khoảng 100 trang
Mẫu thiết kế nhà 2 tầng kích thước 8x13m hình chữ l do ông Nhân ở Thái Bình là chủ sở hữu mong muốn ông gian kiến trúc hiện đại. Không gian không quá cầu kì, rườm rà mà mẫu thiết kế nhà 2 tầng 100m2 còn tạo cho người nhìn cảm giác thanh thoát dễ chịu. Điểm nhấn trong mẫu nhà 2 tầng này là khoảng sân chơi ở tầng 2 những khoảng trống trồng cây xanh nhỏ.

Mẫu thiết kế nhà chữ L 2 tầng diện tích 120m2
Thiết kế nhà 2 tầng chữ L 100m2 ở Thái Bình thiết kế đơn giản
Hình ảnh thiết kế nhà 2 tầng đẹp 8x13m hình chữ L được sử dụng với gam màu trắng tạo cảm giác tinh tế, thanh lịch, giúp mở rộng không gian cho những căn nhà hẹp. Màu trắng được sử dụng rộng rãi vì màu sắc làm cho ngôi nhà lúc nào trông cũng luôn như mới.
Hình ảnh ngoại thất cũng cho ta thấy sự chăm chút tỉ mỉ của các kiến trúc sư về trang trí mặt tiền, tuy hình khhối đơn giản nhưng điểm qua thì vẫn có một vài điểm nhấn để tạo tránh sự nhàm chán và giúp cho ngôi nhà được thiết kế với những kiến trúc đẹp mắt ết hợp khéo léo những mảng màu trắng, màu nâu nhẹ nhàng, đậm nhạt và uyển chuyển, đồng thời giúp phân biệt không gian và đạt được tính thẩm mỹ góp phần tạo nên vẻ đẹp hiện đại cho ngôi nhà. Bản vẽ kiến trúc nhà 8x13m hiện đại được đội ngũ kiến trúc sư giàu kinh nghiệm phụ trách lên ý tưởng và triển khai với tinh thần trách nhiệm cùng chuyên môn nghiệp vụ vững chắc tạo được sự khác biệt so với những mẫu nhà cùng được xây dựng trước đó.
Tất cả hệ cửa chính của công trình mẫu nhà 2 tầng đẹp 8x13m diện tích 100m2 được làm bằng cửa gỗ + kính, mang đến sự chắc chắn, với chất liệu kính việc lấy sáng cho phòng chủ động tạo cho căn phòng luôn có sự thông thoáng mang lại cảm giác tràn ngập năng lượng, đồng thời làm giảm tiếng ồn và bụi bẩn vào nhà. Kính nhiều ô cửa sổ rèm để có thể ánh nắng đi được về nhà hầu hết các chỗ của ngôi nhà giúp ngôi nhà luôn khô ráo và thông thoáng.

Nhà 2 tầng chữ L đẹp kích thước 8x13m được thiết kế gọn ghẽ
Hình ảnh tổng thể mẫu nhà 2 tầng 8x13m của ông Nhân
Hình ảnh nhà 2 tầng diện tích 100m2 ở Thái Bình được thiết kế với hình khối hiện đại, khá đơn giản sạch sẽ. Với thiết kế kiểu kiến trúc hiện đại thường sẽ tiết kiệm được chi phí thiết kế.
Thiết kế nhà biệt thự 1 tầng:
- Thiết kế nhà biệt thự 1 tầng diện tích dưới 120m2 (<120m2):16.000.000đ/Bộ hồ sơ thiết kế chi tiết
- Thiết kế nhà biệt thự 1 tầng diện tích 120m2 – 150m2: 18.000.000đ/Bộ hồ sơ thiết kế chi tiết
- Thiết kế nhà biệt thự 1 tầng diện tích 150m2 – 200m2: 20.000.000đ/Bộ hồ sơ thiết kế chi tiết
- Thiết kế nhà biệt thự 1 tầng diện tích trên 200m2 (>200m2): 25.000.000đ/Bộ hồ sơ thiết kế
Đối với thiết kế nhà 2 tầng:
- Thiết kế biệt thự phong cách hiện đại: 100.000đ/m2
- Thiết kế biệt thự phong cách tân cổ điển: 120.000đ/m2
- Thiết kế biệt thự theo phong cách cổ điển: 150.000đ/m2
Ngoài ra chúng tôi có những ưu đãi khi bạn lựa chọn siêu thị nhà mẫu là vị thiết kế nhà ở như sau.
- Công trình có diện tích > 500m2, Giảm 10% so với báo giá thiết kế nhà ở.
- Giá trị hợp đồng tối thiểu 1 công trình : 16.000.000đ
- Thiết kế > 1 công trình , Giảm 10% so với báo giá thiết kế nhà ở.
Miễn phí 100% giá thiết kế nhà ở cho các phần sau.
- Quy hoạch về mặt định hướng cảnh quan sân vườn
- Hồ sơ thiết kế cổng, hàng rào.
Đối với những khách hàng thực hiện gói thiết kế kiến trúc, chúng tôi luôn bảo đảm về chất lượng hồ sơ cũng như tính chính xác của toàn bộ những chi tiết thiết kế của công trình.
Chi phí xây dựng nhà chữ L 2 tầng diện tích 100m2 như sau:
Đơn giá xây dựng nhà 2 tầng tính trên 1 mét vuông
+ Đơn giá nhân công xây dựng nhà 2 tầng từ 1.4-1.7 triệu/m2
+ Chi phí xây nhà 2 tầng phần thô + nhân công hoàn thiện dao động từ 3,2 – 3,5 triệu/m2
+ Chi phí xây nhà 2 tầng trọi gói (nhà ở thường)
- Vật tư trung bình: 5.000.000 đồng/m2
- Vật tư khá : 5.500.000 đồng/m2
- Vật tư tốt: 6.000.000 đồng/m2
Lưu ý: Đây là đơn giá dành cho nhà ở thường trọn gói phổ biến hiện nay mang tính tham khảo. Tùy thuộc vào công trình thực tế, diện tích xây dựng, vị trí địa lý, vật liệu hoàn thiện….. sẽ có những giá khác nhau.
Ví dụ những ngôi nhà ở thành thị thì giá vật liệu và thao tác vận chuyển, nhân công sẽ cao hơn so với những khu vực nông thôn. Mặt khác ngôi nhà sử dụng vật liệu hoàn thiện như gạch, sơn nước hay nội thất đắt tiền thì chắc chắn xây nhà 2 tầng 100m2 hết bao nhiêu tiền sẽ khác với gia đình sử dụng vật liệu rẻ.
Thường những phần thô sẽ có mức giá dao động gần bằng nhau, khác biệt nhất là phần hoàn thiện bởi vì tùy thuộc vào kinh phí của từng gia đình mà các công ty đưa ra những phương án thi công xây dựng nhà 2 tầng mái ngói phù hợp.
Thường trước khi tiến hành xây dựng nhà cửa các gia chủ thường đến tìm các thầy phong thủy, nhất là những gia đình làm ăn kinh doanh. Ngày nay, khi xã hội phát triển thì các việc các gia đình quan tâm hơn về vấn đề phong thủy không còn quá xa lạ. Ngoài xem hướng nhà, ngày giờ xây dựng thì kiến trúc và hình dáng nhà cũng rất quan trọng do vậy họ quan tâm đến hình khối nhà chữ l có tốt không.
Thiết kế nhà 2 tầng chữ L 100m2 hiểu theo phong thủy
Nhà chữ L còn được gọi theo 1 cách khác là nhà số 7 rất phổ biến ở Việt Nam hiện nay, lý do người mẫu nhà này được nhiều người lựa chọn có thể vì họ thích thiết kế sự đơn giản của nó, cũng có thể vì nó phù hợp với lô đất họ đang sở hữu. Chính vì thế, từ lâu anh đã mong muốn có một nơi an nhiên, tự tại, để gác sang bên những lo toan của cuộc sống hằng ngày, tìm đến sự bình yên, lấy lại sự cân bằng và tái tạo năng lượng mới.
Nhà chữ L là kiểu nhà khuyết góc và góc cạnh nên thường bị xem là không tốt về mặt phong thủy, không có lợi cho gia chủ về cuộc sống hôn nhân, sự sung túc hay sức khỏe. Tuy nhiên, nhiều gia đình do điều kiện về địa hình cũng như nhu cầu sử dụng đã xây nhà hình chữ L để sinh hoạt.
Công trình nhà 2 tầng đẹp 8x13m được thiết kế gồm khối chức năng bố trí vuông góc với nhau tạo thành hình chữ L nằm ngay bên cạnh. Bố cục tách khối tạo ra nhiều góc nhìn đa dạng từ trong ra ngoài và ngược lại, vừa thông thoáng, vừa giúp phân bố ánh sáng tự nhiên đến mọi không gian
Xét về mặt thiết kế, những ngôi nhà chữ L sẽ giúp việc phân bố các phòng, không gian bên trong trở nên dễ dàng hơn. Đặc biệt, gia chủ có thể tách biệt các phòng với nhau nhưng vẫn tạo tính thống nhất trong cùng một ngôi nhà, đây là điểm cộng lớn của kiểu nhà này. Xét về mặt phong thủy, nhiều ý kiến cho rằng, nhà chữ L có hình dạng chiếc dao, đặc biệt vị trí “đại hung” chính là phần lưỡi dao. Khi phần lưỡi dao này bố trí các phòng ốc sẽ ảnh hưởng trực tiếp đến những ai sinh hoạt trong căn phòng đó.

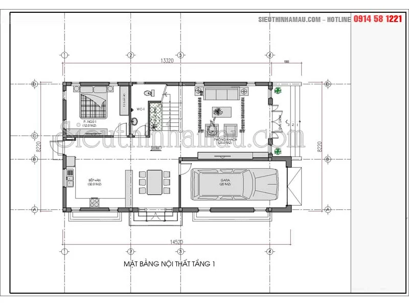
Mặt bằng nội thất tầng 1 nhà 2 tầng chữ L 100m2
Mẫu thiết kế nội thất tầng 1 nhà 2 tầng diện tích 100m2
Tầng 1: 1 phòng khách, 1 phòng bếp, 1 phòng ngủ, 1 phòng vệ sinh chung, 1 gara.
Thiết kế nhà 2 tầng đẹp 8x13m 2 ctiền với 2 cửa, cửa chính dắt vào phòng khách, cửa phụ lối vào gara để vào phòng bếp và với kích thước rộng phù hợp với nhu cầu sử dụng khác nhau của từng thành viên trong gia đình. Phòng bếp rộng 32m2, rộng rãi, thoải mái cho hoạt động nấu ăn, thưởng thức ẩm thực của các thành viên trong gia đình. Đối với nhiều người, không gian ăn uống, ẩm thực của của ngôi nhà là khu vực quan trọng nhất trong khi thiết kế và xây dựng nhà ở. Bởi bếp ăn có ấm cúng, có tiện nghi thì mới phục vụ được cuộc sống của gia đình tốt nhất. Chính vì thế, mà không gian bếp được thiết kế với diện tích rộng thoáng, đủ để mang lại không gian sử dụng hiện đại và tiện nghi nhất.
Đối diện với nhà bếp có bố trí một phòng ngủ diện tích 12m2 và ở bên dưới gầm cầu thang nhằm tiết kiệm diện tích và tạo được sự sạch sẽ cho ngôi nhà. Việc có phòng vệ sinh ở tầng 1 sẽ giúp cho sự di chuyển của con người thuận tiện hơn.

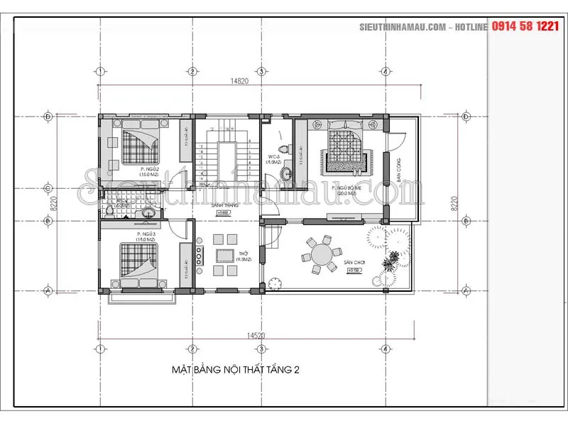
Hình ảnh bản vẽ nội thất tầng 2 nhà 2 tầng mặt tiền 8m
Mặt bằng nội thất tầng 2 được thiết kế với 3 phòng ngủ cực yên tĩnh
Tầng 2: 3 phòng ngủ, 1 phòng thờ, 1 sân chơi, 2 phòng vệ sinh.
hiết kế mặt tiền với 2 cửa, cửa chính dắt vào phòng khách, cửa phụ lối vào phòng bếp với kích thước rộng phù hợp với nhu cầu sử dụng khác nhau của từng thành viên trong gia đình. Phòng bếp rộng 19m2, rộng rải, thoải mái cho hoạt động nấu ăn, thưởng thức ẩm thực của các thành viên trong gia đình. Đối với nhiều người, không gian ăn uống, ẩm thực của của ngôi nhà la quan trọng nhất trong khi thiết kế và xây dựng nhà ở. Bởi bếp ăn có ấm cúng, có tiện nghi thì mới phục vụ được cuộc sống của gia đình tốt nhất. Chính vì thế, mà không gian bếp được thiết kế với diện tích rộng thoáng, đủ để mang lại không gian sử dụng hiện đại và tiện nghi nhất.
Bên cạnh sự thoải mái và tiện lợi đương nhiên phải làm được, vấn đề thể hiện cá tính gia chủ sao cho nổi lên không khí ấm cúng gia đình, dấu ấn cá nhân được đặt ra và xử lý khá hiệu quả. Tương tự với hệ sàn nhà, bên cạnh tạo màu sắc tương đồng với hệ tường bê tông, việc không sử dụng gạch lát vừa giúp giảm chi phí xây dựng, vừa tạo cảm giác thư thái dễ chịu khi bước đi. Chính sự tương đồng về màu sắc và chất cảm bề mặt của tất cả các yếu tố cấu tạo nên ngôi nhà đã tạo ra một không gian trầm lắng, yên tĩnh, hài hòa với cảnh quan xung quanh.

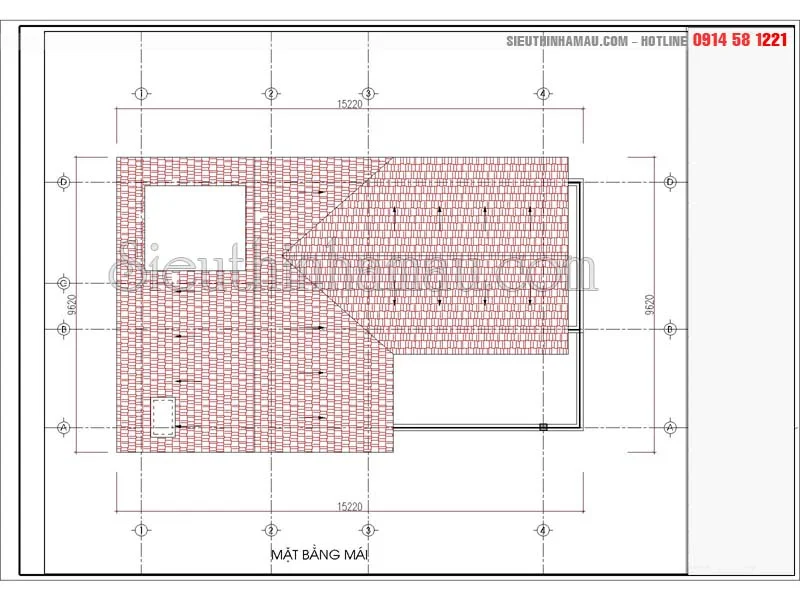
Mặt bằng mái nhà 2 tầng chữ L diện tích 100m2
Nhà 2 tầng diện tích 100m2 ở Thái Bình sử dụng mái ngói
Về ưu điểm xây nhà mái ngói thì mẫu nhà 2 tầng đẹp 8x13m, việc đầu tiên nhắc đến bất cứ một sản phẩm nào chính là độ thẩm mỹ, về thẩm mỹ mái ngói là điều không phải bàn cãi. Thứ nhất chính luôn nằm trong top tìm kiếm từ khóa hàng đầu về kiến trúc là đủ để chứng minh một phần về thẩm mỹ của thiết kế này. Điểm lôi cuốn thứ hai khi nhắc về thẩm mỹ của những thiết kế mái ngói này đó chính là màu sắc đa dạng: xanh dương, xanh rêu, rêu đậm, đỏ thanh long, đỏ nhạt, màu cà phê, … Mỗi màu sắc lại đem đến sự khác nhau về mặt thẩm mỹ.
Tổng diện tích: 100m2. – Chiều cao tầng 3.6m, 3.3m- Chiều cao mái 3m – Diện tích mái 120m2
Hệ mái ngói nhà 2 tầng đẹp 8x13m được phủ bên trên bằng một hệ mái thái, đây là hình thức mái đặc trưng của kiến trúc của Thái Lan, tạo cảm giác thân thuộc, gần gũi và giúp công trình hòa mình vào thiên nhiên. Bên dưới lớp mái tôn là hệ trần gỗ hoàn thiện. Nhờ hệ mái 2 lớp như vậy làm giảm phần lớn nhiệt độ trong nhà so với bên ngoài.
Độ đốc mái từ 30 đến 40 độ thì ngói chồng lên nhau có độ dốc tối thiểu là 10 cm và chiều dài mái gói tối đa tính từ đỉnh mái là 10m. Còn đối với mái có độ dốc lớn hơn 40 độ thì ngói chồng lên nhau có độ dốc tối thiểu là 8 cm, bắt buộc phải có đinh vít vào mái để đảm bảo độ an toàn.
Khi tiến hành thi công phần ngói cần đảm bảo an toàn cho chính người thợ, tránh việc dẫm chân lên ngói vừa thực hiện gây mất an toàn, hư hỏng phần ngói vừa làm. Sau khi thi công xong phần ngói hãy tiến hành vệ sinh ngói lại một lần nữa, một số ngôi nhà được quét một lớp sơn bảo vệ để tăng độ thẩm mỹ cũng như tăng độ bền cho mái ngói sử dụng.
Để được tư vấn thiết kế nhà 2 tầng đẹp 8x13m một cách chi tiết hơn vui lòng liên hệ Hotline: 0914 58 1221
Xem ngay mẫu nhà đẹp 2 tầng đẹp 8x15m




Đánh giá
Chưa có đánh giá nào.