Trước hết khi bạn muốn sở hữu một ngôi nhà ưng ý bạn phải tìm đến các đơn vị tư vấn bản vẽ thiết kế nhà ở để họ tính toán và thiết kế nhà theo ý thích cũng như công năng và mặt bằng kiến trúc sao cho hợp lý và tiết kiệm nhất cho gia chủ
Hồ sơ bản vẽ thiết kế nhà ở là gì?
Bản vẽ thiết kế nhà ở gia đình là gì? Bản vẽ nhà là bản vẽ thiết kế nhà ở trong xây dựng, bản vẽ nhà được dùng trong thiết kế và thi công nhà. Để hiểu rõ hơn chúng ta nắm bắt và tìm hiểu sâu hơn về bản vẽ nhà là gì nhé!
Theo cấu trúc hồ sơ bản vẽ nhà ở thường sẽ bao gồm:
Bản vẽ mặt bằng tổng thể:

Mặt bằng tổng thể nhà 1 tầng đẹp
Bản vẽ các hình chiếu của ngôi nhà

Hình ảnh phối cảnh nhà 2 tầng – mẫu
Bản vẽ triển khai các chi tiết cấu tạo của ngôi nhà
Theo từng bộ môn:
Bản vẽ về kiến trúc:
Bản vẽ về kết cấu
Bản vẽ về hệ thống điện

Mặt bằng chiếu sáng trong nhà được thiết kế vô cùng chi tiết
Bản vẽ cấp thoát nước
Bản vẽ phòng cháy chữa cháy
Bản vẽ về thông hơi, cấp nhiệt, cấp gas …
CÁC GIAI ĐOẠN VÀ HỒ SƠ THIẾT KẾ:
Giai đoạn thiết kế sơ bộ: thiết kế hồ sơ sơ bộ được lên phương án mặt bằng tại siêu thị nhà mẫu chúng tôi
Căn cứ vào nhu cầu của bên A, điều kiện địa hình, điều kiện vật liệu và trình độ thi công, người thiết kế sẽ đưa ra nhiều phương án thích hợp. Các bản vẽ trong giai đoạn này gồm:
Thiết kế bản vẽ nhà ở phải trải qua khá nhiều công đoạn: Xem thêm biệt thự 1 tầng đẹp
Bản vẽ địa hình khu vực xây dựng: bản vẽ mặt bằng khu vực xây dựng, trên đó thể hiện các đường đồng mức, đường giao thông, cây cối, hệ thống điện, sông ngòi và chỉ ra vị trí công trình sẽ xây dựng.
Bản vẽ mặt cắt địa chất công trình: thể hiện các tầng địa chất, mực nước ngầm, bảng kết quả thí nghiệm sức chịu tải của đất nền.
Bản vẽ tổng mặt bằng công trình: là hình chiếu bằng hay bản vẽ mặt bằng của toàn bộ công trình chính và phụ trợ được vẽ với tỉ lệ lớn hơn so với bản vẽ địa hình khu vực xây dựng.
Giai đoạn thiết kế thi công:
Trên cơ sở của phương án thiết kế đã được chọn ở giai đoạn thiết kế sơ bộ, người thiết kế sẽ đi sâu về các mặt kiến trúc và kết cấu cho toàn bộ công trình. Các bản vẽ trong giai đoạn này gồm: được thiết kế với những điều
Bản vẽ về kiến trúc (mặt bằng, mặt đứng, mặt cắt, phối cảnh, chi tiết thang, chi tiết vệ sinh, chi tiết cửa, chi tiết trang trí)
Bản vẽ về kết cấu (móng, khung, sàn, mái, ô văng, cầu thang, sê nô) được thiết kế với những kiến trúc đẹp mắt đem đến cho gia chủ được thoải mái và đem đến sự thất vọng được
Bản vẽ về hệ thống điện (sơ đồ nguyên lý phân phối điện, mặt bằng điện các tầng, thống kê vật liệu điện)

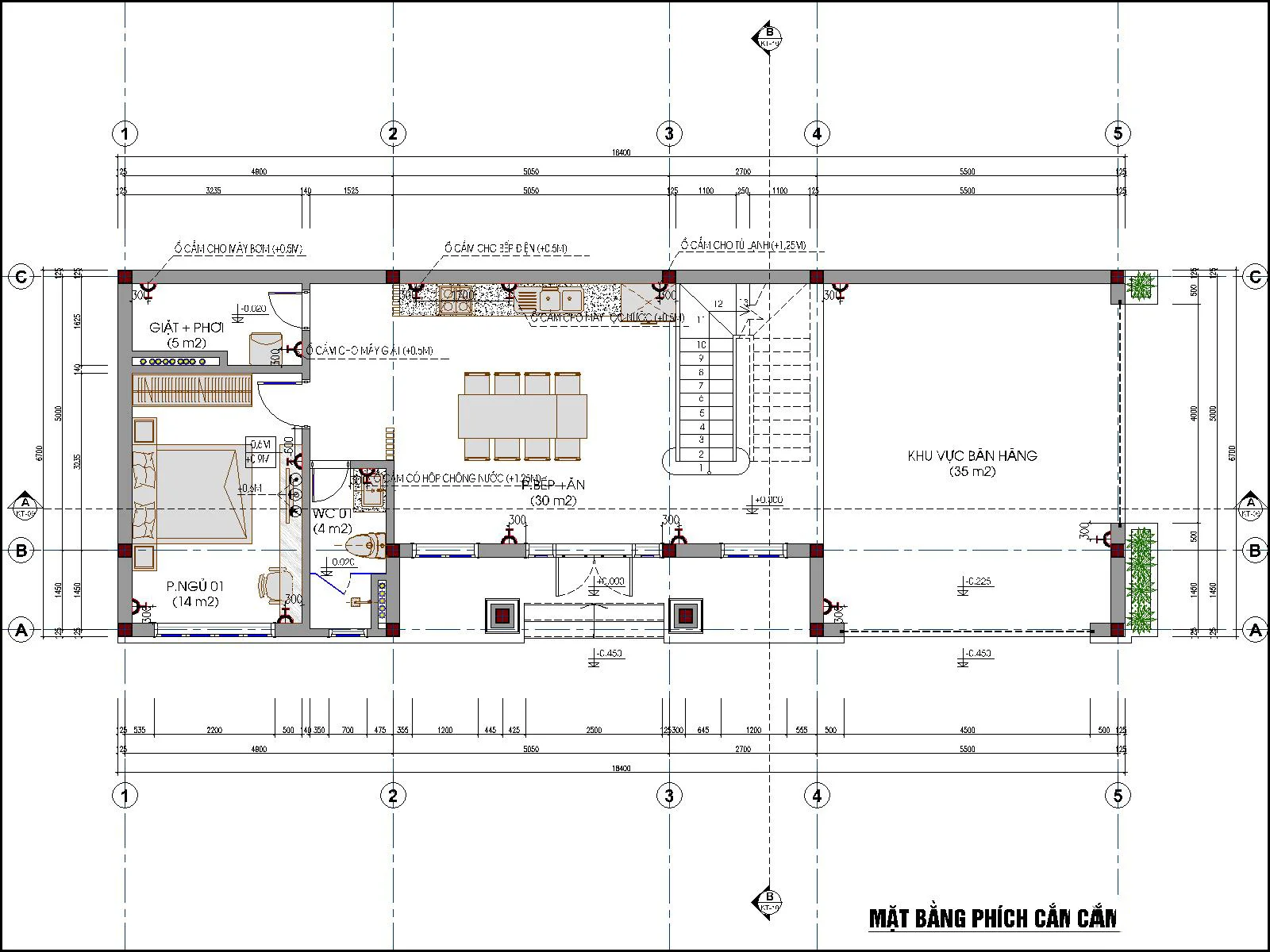
Mặt bằng phích cắm nhà ở gia đình
Bản vẽ cấp thoát nước (mặt bằng cấp thoát nước các tầng, sơ đồ cấp thoát nước các khu vực vệ sinh, toàn nhà, thống kê vật liệu nước)

Sơ đồ thoát nước nhà ở gia đình
Ngoài ra, đối với các công trình phức tạp, thông thường có thêm một số bản vẽ triển khai việc thi công như: bản vẽ dàn giáo, cốp pha xây dựng, bảng tiến độ thi công cho công trình…
CẤU TRÚC NGÔI NHÀ
Kết cấu phần móng:
Móng nhà là thành phần liên kết với nền đất chống đỡ các yếu tố của công trình và không gian bên trên.
Móng bao gồm tường móng, trụ móng và đế móng.
Phần móng còn bao gồm các thành phần kỹ thuật như bể nước ngầm, bể phốt, các đường ống cấp thoát nước, đôi khi đường điện, đường điện thoại (trong khu vực các đường kỹ thuật này đều chôn ngầm).
Xem thêm cách đọc bản vẽ nhà thiết kế biệt thự 2 tầng
Két cấu phần thân:
Cột: là kết cấu chống đỡ lực nén thẳng đứng.
Dầm: là thành phần nằm ngang, chống đỡ lực tác dụng thẳng góc theo chiều dài của dầm. Dầm là cấu kiện vượt qua không gian giữa các cột. Cột và dầm hình thành hệ kết cấu khung và liên kết các cột lặp đi lặp lại trong không gian.
Tường: là thành phần thẳng đứng, có nhiệm vụ ngăn cách các phòng với nhau và với bên ngoài, đỡ những tấm sàn, mái che và truyền xuống móng trọng lượng của bản thân chúng và của những cấu kiện.
Theo vị trí, tường được chia ra:
Tường bao: có nhiệm vụ che kín ngôi nhà, bảo vệ bên trong đối với thời tiết.
Tường ngăn: có nhiệm vụ ngăn cách giữa các phòng.
Theo chức năng, tường được chia ra:
Tường chịu lực: tường chịu lực tác dụng từ trên xuống dưới. Tường ngăn thường hỗ trợ tường chịu lực để tăng tính ổn định.
Tường không chịu lực: Tường chỉ chịu tải bản thân nó và không liên kết với kết cấu khung để trở thành hệ thống chịu tải. Chúng tự do bố trí, thay đổi để phù hợp với ý thích, hoàn cảnh.
Sàn: là tấm bê tông cốt thép đặt nằm ngang và phẳng, có nhiệm vụ phân cách giữa các tầng và đỡ lớp ván sàn. Sàn tựa trên các tường chịu lực hay lên các dầm của khung chịu lực.
Cầu thang: là bộ phận dùng cho việc đi lại giữa các tầng nhà (cầu thang trong) hay giữa sân với trong nhà (cầu thang ngoài).
Kết cấu phần mái:

Mặt bằng mái nhà ở gia đình
Mái nhà: là bộ phận che chở cho ngôi nhà còn mái đua là phần mái đưa ra phía trước công trình để không cho nước mưa rơi từ trên mái xuống mặt trước. Nước được tập trung vào hệ thống máng tôn, sau đó chảy vào ống đứng và đổ vào hệ thống thoát.
Cửa trời: cửa để chiếu sáng tầng giáp mái.
Bản vẽ nhà chủ yếu trình bày cách thể hiện bản vẽ kiến trúc của công trình trong giai đoạn thiết kế kỹ thuật.
Thường bao gồm hai bản vẽ chính:
BẢN VẼ MẶT BẰNG TỔNG THỂ:
Mặt bằng quy hoạch
Là bản vẽ hình chiếu bằng một khu đất, thể hiện rõ vị trí đất được xây dựng, ranh giới đất xây dựng, chỉ giới đỏ. Thường bản vẽ này được trích ra từ bản đồ địa chính thành phố, hoặc trong bản vẽ quy hoạch tổng thể.
Tỷ lệ thường từ 1:2000 – 1:10.000.
Mặt bằng tổng thể
Là bản vẽ hình chiếu bằng các công trình trên tổng thể khu đất xây dựng. Trên đó thể hiện rõ lối giao thông bên ngoài, bố trí cây xanh, cổng, lối vào …
Đặc biệt là cần phải có hướng Bắc Nam, hoặc hoa gió.
Tỷ lệ bản vẽ thường là 1:200, 1:500, 1:1000 …
Các hình biểu diễn của một bản vẽ thiết kế nhà ở gia đình
Nhằm thể hiện hình dáng và cấu tạo một ngôi nhà, thông thường sử dụng các bản vẽ sau. Xem thêm biệt thự phố là gì
Hình cắt bằng: mặt bằng.
Hình chiếu đứng, hình chiếu cạnh.
Hình cắt ngang và dọc.
Mặt bằng ngôi nhà là hình cắt bằng của ngôi nhà, trên đó thể hiện vị trí, kích thước các tường, vách, cửa và các thiết bị đồ đạc.
Thông thường mặt phẳng cắt lấy cách mặt sàn nhà 1m – 1.5m.
Mỗi tầng nhà được vẽ với một mặt bằng riêng. Nếu 2 tầng có trục đối xứng, cho phép vẽ một nửa mặt bằng tầng này kết hợp với một nửa mặt bằng tầng kia. Nếu các tầng có kết cấu giống nhau thì vẽ tầng điển hình.
Tỷ lệ: 1:50, 1:100, 1:200.
Đường nét: nét liền đậm thường dùng 0.6 – 0.8 mm vẽ các đường bao của cột, tường và vách ngăn bị mặt phẳng cắt qua. Dùng nét liền mảnh để vẽ các đường bao của các bộ phận nằm sau mặt phẳng cắt và vẽ các thiết bị vật dụng trong nhà. Mặt bằng còn vẽ nét cắt để biểu thị vết của mặt phẳng cắt.
Kích thước: bao gồm
Dãy kích thước sát đường bao mặt bằng ghi kích thước các mảng tường và các lỗ cửa sổ, cửa đi …
Dãy kích thước thứ 2 ghi khoảng cách các trục tường, trục cột.
Dãy ngoài cùng ghi kích thước giữa các trục tường biên theo chiều dọc hay chiều ngang ngôi nhà.
Các trục tường và trục cột được kéo dài ra ngoài và tận cùng bằng các vòng tròn đường kính khoảng từ 8 – 10mm, trong đó ghi các số thứ tự 1, 2, 3… cho các trục ngang, tính từ trái qua phải, và ghi các chữ A, B, C… theo chiều rộng ngôi nhà, từ dưới lên trên.
Bên trong mặt bằng có ghi kích thước chiều dài và chiều rộng mỗi phòng, bề dày các vách tường và diện tích từng phòng.
Cao độ mặt sàn được ký hiệu và được đặt ngay tại vị trí có cao độ ấy.
Đặc biệt trong thiết kế thi công cần ghi đầy đủ kích thước cần thiết cho việc thi công và lắp đặt thiết bị.
Ngoài ra, trong những công trình có yêu cầu cao, có thể vẽ thêm mặt bằng lát nền, mặt bằng trần, mặt bằng định vị cột và móng…
Mặt đứng
Mặt đứng của ngôi nhà là hình chiếu thể hiện hình dáng bên ngoài của ngôi nhà.
Nét vẽ: vẽ bằng nét liền mảnh
Khi mặt đứng được vẽ chung và đặt đúng vị trí chiếu liên hệ với mặt bằng thì không cần ghi ký hiệu trục và kích thước. Khi nó được vẽ riêng ra so với mặt bằng hoặc vẽ ở bản vẽ khác thì cần ghi thêm tên các trục tương ứng trên mặt bằng nhằm cho ta biết hướng nhìn vào mặt đứng cần vẽ.
Trong giai đoạn thiết kế sơ bộ, mặt đứng thể hiện như trên.
Trong giai đoạn thiết kế thi công, ngoài việc thể hiện mặt đứng như trên, ta còn phải thể hiện thêm các bản vẽ mặt đứng với tỷ lệ lớn hơn (thường là mặt đứng trích đoạn), trong đó thể hiện và ghi chú rõ các kích thước chi tiết, các ghi chú về màu sắc cùng chất liệu cấu tạo mặt ngoài của nhà.
Mặt cắt:
Hình cắt ngôi nhà là hình cắt đứng thu được khi dùng một hay nhiều mặt phẳng thẳng đứng song song với các mặt phẳng hình chiếu cơ bản cắt qua, thông thường được gọi là mặt cắt
Theo hình thức thể hiện, mặt cắt bao gồm 2 dạng: mặt cắt ngang và mặt cắt dọc, được gọi tương ứng với các trục ngang và trục dọc của ngôi nhà.
Mặt cắt thể hiện không gian bên trong ngôi nhà. Trên mặt cắt thể hiện chiều cao các tầng, các cửa sổ, cửa đi, cầu thang, các vị trí cấu tạo của tường, vách kín, các chi tiết vì kèo, sàn, mái cho đến móng…, hình dáng bên trong các phòng cùng chi tiết trang trí.
Theo quy ước, mặt cắt phải cắt qua các vị trí có cấu tạo phức tạp cần thể hiện rõ, không được cắt dọc qua tường, trục cột hoặc khoảng giữa hai cánh thang.
Tỷ lệ: tùy theo mức độ phức tạp ngôi nhà mà hình cắt có thể thể hiện tỷ lệ theo mặt bằng hoặc lớn hơn.
Đường nét trên bản vẽ: quy định giống như trên mặt bằng. Xem thêm các kiến trúc sư tư vấn xây nhà 1 tầng 1 tum hết bao nhiêu tiền để có thể tính toán xây dựng cho ngôi nhà của mình một cách tiết kiệm nhé
Cao độ: nền nhà tầng một thường được lấy là 0.00, độ cao ở dưới mức chuẩn này mang dấu âm, độ cao trên mang dấu dương. Đơn vị ghi độ cao là m, và được ghi trên giá nằm ngang.
Trong giai đoạn thiết kế thì mặt cắt chia ra làm 2 dạng và có cách thể hiện khác nhau: giai đoạn thiết kế sơ bộ thì vẽ hình cắt trên đó thể hiện không gian bên trong, có chú ý đến các chi tiết trang trí bên trong ngôi nhà, còn các bộ phận kết cấu như kèo, móng, cấu tạo mái, sàn, … thì chỉ vẽ đơn giản. Trong giai đoạn thiết kế thi công thì vẽ hình cắt cấu tạo cần thể hiện rõ các cấu tạo trên, các lớp cấu tạo của nó và được ghi kích thước đầy đủ.
Bạn và gia đình có nhu cầu tư vấn và thiết kế vui lòng liên hệ Hotline: 09814 581221



