Kiến trúc luôn được tạo nên bởi những vật liệu chắc chắn và có tải trọng lớn bởi vậy tổng hợp các mẫu nhà mặt tiền 7m đẹp cũng là một trong những kiến trúc mang hình khối dày dặn, chắc chắn được các kiến trúc sư xử lý hợp lý. Các mẫu nhà mặt tiền 7m 2 tầng đẹp mắt đem đến cho gia đình bạn một không gian sống lý tưởng và thoải mái.
Trong xu hướng xây nhà của con người mỗi ngày một rộng lớn hơn, những hình ảnh kiến trúc tiêu biểu cũng cần được treo lên như bức tranh cho nhiều người chiêm ngưỡng. Tự thân mỗi công trình, từng tác phẩm kiến trúc tốt đều có nhu cầu được phổ biến, thay đổi để phù hợp hơn với thời cuộc.
Trên lộ trình từng bước hoàn thiện, nâng cao chất lượng chốn ở cho con người, mỗi tác phẩm kiến trúc lại đặt ra một định đề, chốt lại như dấu mốc và mở dẫn con đường mới cho những xu hướng, trào lưu, phong cách. Đặc biệt tổng hợp các mẫu nhà mặt tiền 7m đến 8m 2 tầng dưới đây sẽ là một trong những mẫu nhà tiêu biểu cho nét đẹp và sự tiện nghi đó mời quý vị và các bạn cùng được chúng tôi cùng tham khảo nhé!
Mẫu nhà số 1: Mẫu nhà mặt tiền 7m 2 tầng do bà Hoàn ở Quảng Ninh làm chủ đầu tư
-
Mã Sản Phẩm
Mẫu biệt thự BT717077
-
Số Tầng
2 tầng
-
Phong Cách
Biệt thự kiến trúc hiện đại
-
Chiều Cao Tầng
Trống
-
Mặt Tiền
7m
-
Chiều Sâu
14m
-
Diện Tích
105m2
-
Kinh Phí Đầu Tư
Khoảng 800-900 triệu đồng
-
Kích Thước Đất
150m2
-
Phương Án Móng
Móng Cọc
-
Cấu Tạo Mái
Vì kèo
-
Cấu Tạo Thang
Tay vịn gỗ, mặt gỗ, cổ đá
-
Lát Sàn
T1: Gạch, T2: Gạch
-
Chất Liệu Cửa
Cửa chính, Thông phòng gỗ, Kính
-
Trần Giả
Thạch cao
-
Quy cách hồ sơ
Khổ A3, khoảng 100 trang

Phối cảnh 3D – Các mẫu nhà mặt tiền 7m ở Hưng Yên
Mẫu nhà mặt tiền 7m 2 tầng phong cách hiện đại ở Quảng Ninh
Một bản vẽ thiết kế nhà 2 tầng mặt tiền 7m nổi bật lên với phong cách hiện đại sang trọng qua cách thiết kế một cách tối giản, không quá cầu kỳ và rườm rà.
Đơn giản màu sắc các mẫu nhà mặt tiền 7m 2 tầng ở Hưng Yên được sử dụng màu sắc sơn với tone màu trắng vô cùng sạch sẽ, sáng sủa và tươi tắn (trắng không tì vết) giúp cho người nhìn cảm thấy an toàn, an tâm khi sinh sống trong ngôi nhà sạch sẽ lại tươm tất như vậy.
Mẫu biệt thự đẹp không chỉ đơn thuần về màu sắc trang nhã mà các hình khối khi thiết kế các kiến trúc sư cũng rất khéo léo trong việc xử lý. Kiến trúc nhà mặt tiền 7m 2 tầng không sở hữu được mặt tiền lớn nhưng với cách thiết kế 7x19m đã tạo nên một ngôi nhà đẹp phù hợp với sở thích của gia chủ.
Mọi sự trang trí đối với phong cách đơn giản này hoàn toàn không phù hợp bởi sự tối giản là vẻ đẹp vững cửu và phù hợp với mọi độ tuổi và trong thời đại nào.
Tổng hợp mẫu thiết kế các mẫu nhà mặt tiền 7m đẹp với với những kiểu sang trọng lịch lãm mà ít gia đình nào có thể cảm nhận hết được nét đẹp của phong cách hiện đại này. Với những kiểu được thiết kiến trúc hiện đại đem đến sự cân đối về hình khối và kiến trúc.
Mẫu bản vẽ nhà 2 tầng mặt tiền 7m không chỉ sang trọng về vẻ bề ngoài mà nó còn mang đến được thiết kế với kiểu kiến trúc không thể tự ý dịch chuyển xa hơn hay ngẫu hứng thoát ly khỏi nền móng. Nhưng kiến trúc cũng có nhu cầu giao tiếp, đối thoại, lan tỏa.
Cho gia chủ sự an toàn và chắc chắn về hình khối kiến trúc cũng như các vật dụng trang trí được thiết kế với những hình khối vuông vắn và cân đối. Tổng hợp tất cả các mẫu thiết kế nhà 2 tầng mặt tiền 7m, 8m đẹp phù hợp với các gia đình có nhu cầu muốn xây nhà biệt thự nhưng lại hạn chế về mặt tiền.
Mẫu bản vẽ nhà biệt thự 2 tầng mặt tiền 7m mái thái đẹp
Không phải ai cũng sở hữu được mảnh đất rộng mặt tiền lớn, do đó các mẫu nhà mặt tiền 7m đến 8m đẹp cũng là một trong những cũng tạo nên một nét đẹp riêng của nó. Không nhất thiết là phải cầu kỳ hay nhà nhỏ thì làm đơn giản cho nó gọn gàng, với thiết kế mang phong cách hiện đại của gia đình ông Thái ở Hưng yên đem đến cho người nhìn một nét phóng khoáng và thoải mái với kiểu kiến trúc vô cùng đẹp mắt.
Bộ sưu tập các mẫu nhà mặt tiền 7m không những giải quyết được về mặt hình khối mà cả kiến trúc đều thể hiện được ý tưởng của chủ nhà.
Gia chủ sẽ cảm thấy vô cùng yên tâm khi mẫu nhà 2 tầng của gia đình mình vô cùng chắc chắn và an toàn khi thiết kế cổng và hàng rào xung quang kín đáo qua cổng sắt được uốn lượn vô cùng tinh tế và cào.
Với phong cách hiện đại hay cổ điển kiểu mái nhà được thiết kế đều được thiết kế với những kiểu kiến trúc vô cùng đẹp mắt đồng thời mái thái được sử dụng cho hầu hết tất cả các công trình và đều rất đẹp về thẩm mỹ cũng như đem đến một cấu trúc hoàn hảo cho toàn bộ ngôi nhà.

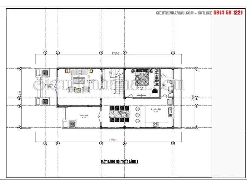
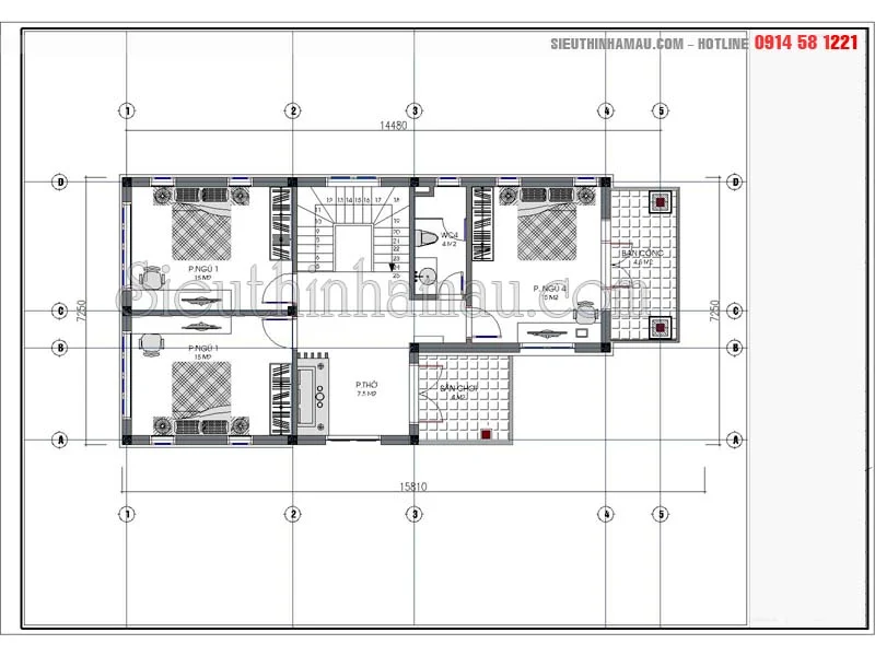
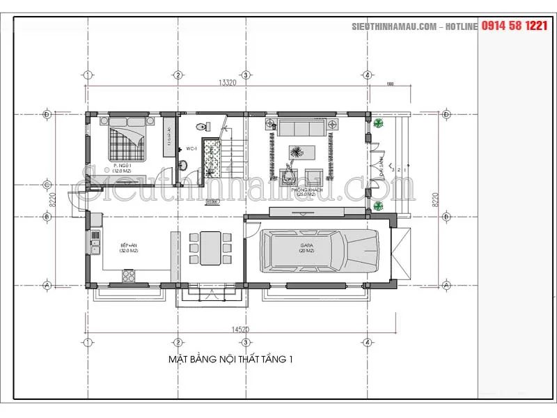
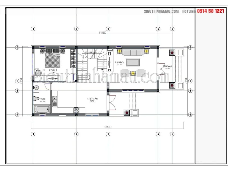
Mẫu 1 mặt bằng nội thất tầng 1 các mẫu nhà mặt tiền 7m

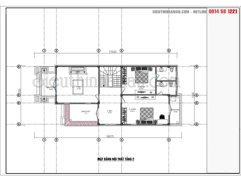
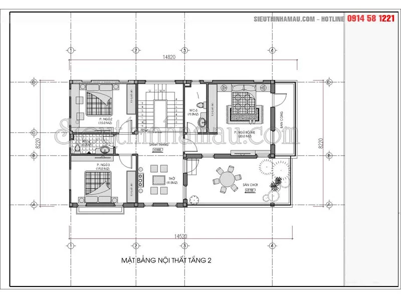
Mẫu 1- mặt bằng nội thất tầng 2 các mẫu nhà mặt tiền 7m
Thiết kế nhà mặt tiền 7m tuy diện tích không quá lớn nhưng các kiến trúc sư vẫn bố trí được 2 phòng ngủ trên tầng 2 cùng với các không gian khác như phòng vệ sinh, sân chơi và sân phơi, và phòng thờ ở phía trước mặt tiền nhằm tạo được sự trang trọng và lịch sự cho khu phòng thờ.
Mẫu số 2: Tổng hợp các mẫu nhà mặt tiền 7m đẹp diện tích 120m2
-
Mã Sản Phẩm
Mẫu biệt thự BT419077
-
Số Tầng
2 tầng
-
Phong Cách
Biệt thự mang phong cách tân cổ điển
-
Chiều Cao Tầng
Trống
-
Mặt Tiền
7m
-
Chiều Sâu
19m
-
Diện Tích
120m2
-
Kinh Phí Đầu Tư
Khoảng 1.2- 1.3 tỷ đồng
-
Kích Thước Đất
800m2
-
Phương Án Móng
Móng Cọc
-
Cấu Tạo Mái
Vì kèo
-
Cấu Tạo Thang
Tay vịn gỗ, mặt gỗ, cổ đá
-
Lát Sàn
T1: Gạch, T2: Gạch
-
Chất Liệu Cửa
Cửa chính, Thông phòng gỗ, Kính
-
Trần Giả
Thạch cao
-
Phòng Khách
Trống
-
Phòng SHC
Không có phòng SHC
-
Phòng Ngủ
N1: 20m2, N2: 15m2, N3: 20.5m2
-
Quy cách hồ sơ
Khổ A3, khoảng 100 trang

Mẫu số 2- các mẫu nhà mặt tiền 7m 2 tầng được thiết kế phong cách tân cổ điển
Vẻ bề ngoài dày dặn chắc chắn qua cách thiết kế nhà 2 tầng mặt tiền 7m đẹp
Hình thức của một vật gì đó tạo cho ta có cảm tình với nó, do vậy hình thức cũng là một vấn đề rất quan trọng khi muốn tạo được ấn tượng đem đến cho người nhìn cảm giác khó quên.
Tổ ấm là không gian giúp gợi lên xuất xứ địa phương của người sử dụng, trong mẫu thiết kế nhà mặt tiền 7m diện tích xây dựng 120m2 này đem đến cho gia chủ cảm giác thiên về sự hoài cổ mang chút âm hưởng của cái cũ bởi nó pha chút tân cổ điển qua cách sử dụng gam màu vàng kem của màu sơn ngoại thất.
Thiết kế các mẫu nhà mặt tiền 7m 2 tầng cũng vậy được thiết kế với những đường nét thiết kế vuông vắn và trông rất dày dặn bên cạnh đó một hình ảnh nửa bán nguyệt ở các ô cửa sổ và các cột trụ tròn làm ta gợi nhớ về một chút gì đó cổ điển và chắc chắn, cách sử dụng các cột tròn sẽ tạo nên sự mềm mại điệu đà cho ngôi nhà chứ không cứng nhắc, phẳng lì đó là điều tạo nên nét nổi bật trong ngôi nhà mặt tiền 7m x 19m này.
Sự cân đối trong biệt thự 2 tầng mặt tiền 7m trở nên ấn tượng
Các mẫu nhà mặt tiền 7m 2 tầng đẹp được thiết kế với hình khối vuông vắn và cân đối tạo cho người nhìn sự chắc chắn và tạo cảm giác an tâm cho người sử dụng.
Một mẫu nhà 2 tầng đẹp măt tiền 7m vừa cân đối về cả hình khối lẫn màu sắc sẽ là một sự lựa chọn hoàn hảo cho những gia đình nào thích phong cách tân cổ và mới mẻ. Những đường nét và hình khối cột trụ hình vuông ở những góc tường, hay cột đều được thiết kế một cách chắc chắn, vững trãi. Tô điểm thêm cho sự sang trọng của ngôi nhà qua những viên gạch ốp chân tường hay những viên gạch ốp trang trí để tạo điểm nhấn làm tăng thêm sự chắc chắn cũng như về tính thẩm mỹ cho ngôi nhà
Công năng nội thất các mẫu nhà nhà mặt tiền 7m 2 tầng đều giải quyết nhu cầu ở và sinh hoạt một cách thoải mái, thông thoáng và phù hợp với yêu cầu của mỗi gia đình. Các chức năng cơ bản như phòng khách, phòng ăn, phòng ngủ, vệ sinh… đều phải đem đến sự thoải mái và thuận tiện cho gia chủ khi sử dụng.

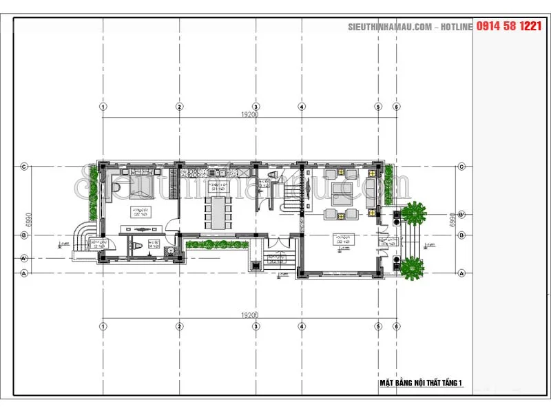
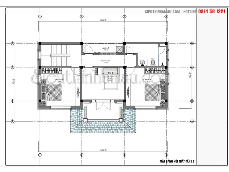
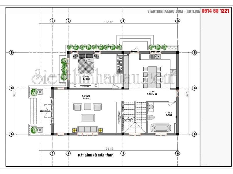
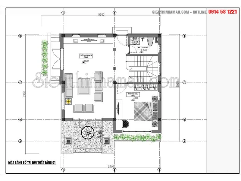
Nội thất tầng 1 các mẫu nhà mặt tiền 7m- mẫu 2
Xét về mặt công năng các mẫu nhà mặt tiền 7m đẹp công năng hơi hướng theo phong cách tân cổ điển pha trộn chút hoài niệm do đó tạo cho ngôi nhà sự mềm mại và uyển chuyển.

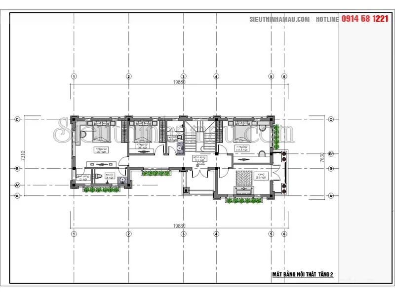
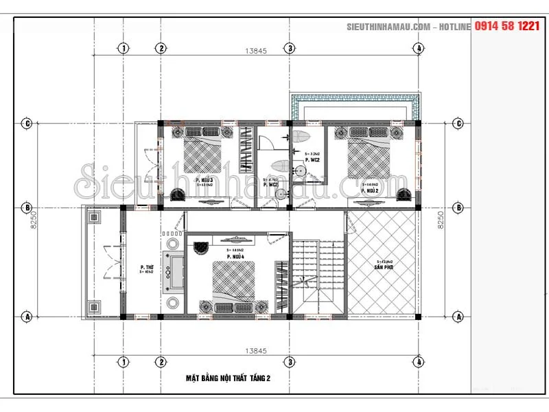
Nội thất tầng 2 nhà mặt tiền 7m – mẫu 2
Ta có thể thấy các mẫu nhà mặt tiền 7m chiều sâu 19m được bố trí nhiều không gian cây xanh ở khắp các ban công làm cho ngôi nhà trở nên mát mẻ, đồng thời cây xanh còn là yếu tố điều hòa không khí vừa làm cho con người cảm thấy an tâm bởi màu xanh tạo sự yên bình, thanh thản.
Mẫu số 3: mẫu nhà mặt tiền 7m x16m diện tích 100m2 hiện đại
-
Mã Sản Phẩm
Mẫu nhà đẹp BT161077
-
Số Tầng
Nhà biệt thự 2 tầng
-
Phong Cách
Biệt Thự Hiện Đại
-
Chiều Cao Tầng
Trống
-
Mặt Tiền
7m
-
Chiều Sâu
16m
-
Diện Tích
100m2
-
Kinh Phí Đầu Tư
Khoảng 900 Triệu- 1 tỷ đồng
-
Kích Thước Đất
400m2
-
Phương Án Móng
Móng Cọc
-
Cấu Tạo Mái
Vì Kèo
-
Cấu Tạo Thang
Tay vịn gỗ, mặt gỗ, cổ đá
-
Lát Sàn
T1: Gạch, T2: Gạch
-
Chất Liệu Cửa
Cửa chính, Thông phòng gỗ, Kính
-
Trần Giả
Thạch Cao
-
Phòng Khách
21m2
-
Phòng SHC
Không có phòng SHC
-
Phòng Ngủ
N1: 15m2, N2: 15m2, N3:15m2, N4: 15m2
-
Phòng Thờ
7.5m2
-
Phòng Vệ Sinh
wc1:4.9m2, wc2: 4m2
-
Gara ô tô
Không có gara ô tô trong nhà
-
Phòng khác
Phòng bếp ăn 20m2
-
Quy cách hồ sơ
Khổ A3, khoảng 100 trang

Phối cảnh 3D mẫu nhà mặt tiền 7x 16m diện tích 100m2
Thiết kế các mẫu nhà mặt tiền 7m diện tích 100m2 hình chữ L đẹp
Một mẫu nhà không kém phần ấn tượng với thiết kế hình chữ L, mẫu nhà cấp 2 tầng mặt tiền 7m được xử lý những khối giật cấp tiết kiệm được không gian.
Bản vẽ nhà 2 tầng mặt tiền 7m diện tích 100m2 tuy thiết kế không quá cầu kỳ, không nhiều chi tiết nhưng nó đem đến cho gia chủ một sự thanh thoát, tinh tế cảm giác mát mẻ và dễ chịu với gam màu ghi nhạt trung tính dễ chiếm được cảm tình của người nhìn.
Đứng trên tầng 2 gia chủ có thể nhìn ngắm được cảnh quan xung quanh, một không gian sẽ thu hút được những cơn gió mát và toàn bộ bên trong nhà mặt tiền 7m đẹp này. Diện tích không quá lớn nhưng các đường nét trang trí cơ bản như qua ban công đồng thời cũng tạo ra khoảng không gian thoáng đãng mát mẻ.
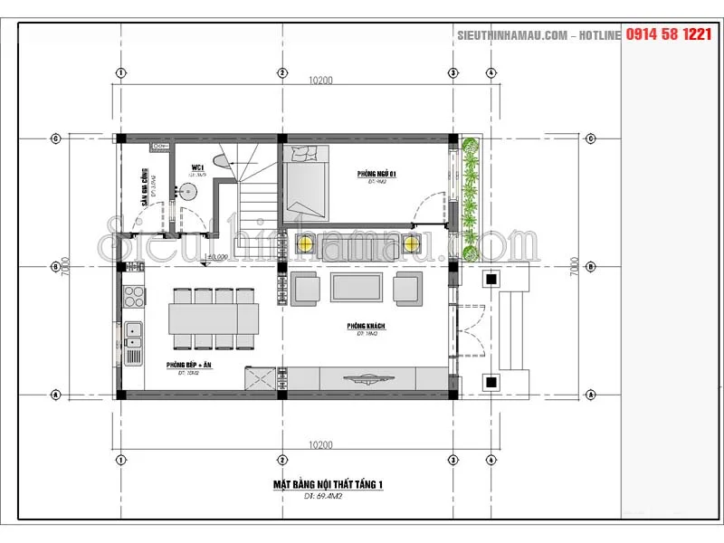
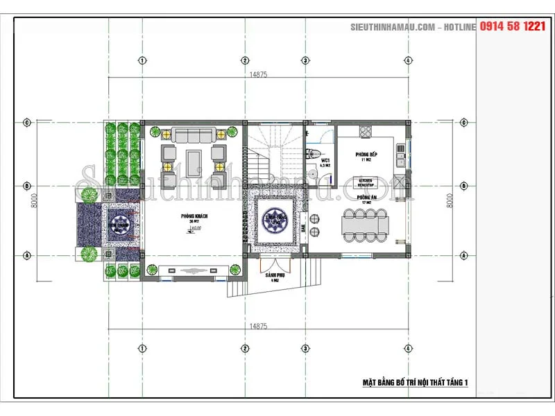
Nội thất tầng 1 nhà mặt tiền 7m-mẫu số 3

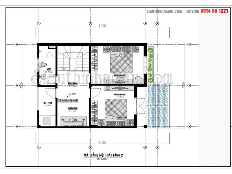
Nội thất tầng 2 các mẫu nhà mặt tiền 7m đẹp- mẫu số 3
Mẫu số 4: Thiết kế nhà 2 tầng mặt tiền 7m hiện đại đẹp
-
Mã Sản Phẩm
Mẫu biệt thự BT141077
-
Số Tầng
Nhà biệt thự 2 tầng
-
Phong Cách
Biệt thự theo phong cách hiện đại
-
Chiều Cao Tầng
Tầng 1 – 3,6(m), Tầng 2 – 7,1(m), Mái – 9,6(m).
-
Mặt Tiền
8m
-
Chiều Sâu
9m
-
Diện Tích
65m2
-
Kinh Phí Đầu Tư
Khoảng 700 – 800 triệu VND đồng
-
Kích Thước Đất
645m2
-
Phương Án Móng
Móng Cọc
-
Cấu Tạo Mái
Vì kèo
-
Cấu Tạo Thang
Tay vịn gỗ, mặt gỗ, cổ đá
-
Lát Sàn
T1: Gạch, T2: Gạch
-
Chất Liệu Cửa
Cửa chính, Thông phòng gỗ, Kính
-
Trần Giả
Trống
-
Phòng Khách
28m2
-
Phòng SHC
Không có phòng SHC
-
Phòng Ngủ
N1: 14m2, N2: 14m2, N3: 14m2
-
Phòng Thờ
12.5m2
-
Phòng Vệ Sinh
wc1: 3.3m2, wc2: 3.3m2
-
Gara ô tô
Không có gara ô tô trong nhà
-
Phòng khác
Trống
-
Quy cách hồ sơ
Khổ A3, khoảng 100 trang

Thiết kế các mẫu nhà mặt tiền 7m 2 tầng đẹp
Thiết kế nhà 2 tầng mặt tiền 7m được các kiến trúc sư thiết kế công năng theo phương ngang, nhằm mục đích tận dụng được chiều sâu để có thể giải quyết công năng theo một phương án hợp lý nhất. Một mẫu nhà kích thước 8m x 9m 2 mặt tiền. Đậm phong cách kiên trúc hiện đại và đây là mẫu nhà được gia chủ vô cùng ưng ý, ế với những kiểu kiến trúc vô cùng đẹp mắt.
Kiến trúc sư đã rất khéo léo khi sử dụng 2 gam màu tương phản đen – trắng để tạo sự nổi bật cho ngôi nhà. Màu sắc đen sẽ tạo điểm nhấn cho màu trắng và thông thường những gì đẹp nhất sẽ sơn màu trắng trông nó sạch sẽ và màu đen sẽ che đi những khuyết điểm.
Với cấu trúc tường dày dặn ngôi các mẫu nhà mặt tiền 7m 2 tầng diện tích 100m2 sẽ rất mát mẻ vào mùa hè và ấm cúng vào mùa đông tạo nên không gian thân thiết gần gũi.
>>> Xem ngay mẫu nhà 1 trệt 1 lầu 2 mặt tiền diện tích 100m2 qua cách xử lý kiến trúc của các kiến trúc sư

Mẫu nhà 2 tầng mặt tiền 7m- mẫu 4
Tổng mặt bằng nhà mặt tiền 7m 2 tầng diện tích 100m2 được bao bọc bởi hàng cây xanh mát, điều hòa không khí trong lành cũng như đem đến một cảm giác thư thái khi sống trong môi trường xanh, sạch đẹp này.

Mặt bằng tầng 2 mẫu nhà mặt tiền 7m đẹp – Mẫu số 4
Bạn cho rằng không gian nào là quan trong nhất trong một ngôi nhà ? Nội thất hay ngoại thất?
Tôi cho rằng về mặt ngoại thất nó tạo cho ta cảm giác vui vẻ, thích thú và tự hào khi sở hữu một ngôi nhà ưng ý. Và tất nhiên sẽ còn hoàn hảo hơn khi nội thất cũng được thiết kế đồng bộ và ăn khớp cùng với gu thẩm mỹ (ngoại thất) và tất cả không gian trong ngôi nhà đó bạn đều yêu thích nó.
Trong các mẫu nhà mặt tiền 7m 2 tầng phòng khách thì sang trọng, lịch sự để đón tiếp khách, khu vực bếp để nấu nướng hay bày biện những món ăn mà mình thích, hay tuyệt vời hơn nữa khu phòng ngủ là không gian cá nhân riêng tư thích được ngủ nướng, được mở nhạc to đáp ứng được nhu cầu của từng cá nhân. Do đó sở hữu được ngôi nhà ưng ý cần phải được thiết kế hài hòa và cân đối các không gian đều tạo nên một ý nghĩa và đều có tác dụng riêng của nó.
Bạn chắc hẳn cũng đang muốn sở hữu một ngôi nhà tuyệt vời như các mẫu nhà mặt tiền 7m này?
Mẫu 5: Mẫu thiết kế nhà mặt tiền 7x11m đẹp ở Mường Lay – Điện Biên
-
Mã Sản Phẩm
BT261077
-
Số Tầng
Nhà biệt thự 2 tầng
-
Phong Cách
Biệt thự kiến trúc hiện đại
-
Chiều Cao Tầng
Trống
-
Mặt Tiền
7m
-
Chiều Sâu
11m
-
Diện Tích
70m2
-
Kinh Phí Đầu Tư
Khoảng 1 tỷ đồng
-
Kích Thước Đất
Khoảng 300m2
-
Phương Án Móng
Móng Cọc
-
Cấu Tạo Mái
Vì Kèo
-
Cấu Tạo Thang
Tay vịn gỗ, mặt gỗ, cổ đá
-
Lát Sàn
T1: Gạch, T2: Gạch
-
Chất Liệu Cửa
Cửa chính, Thông phòng gỗ, Kính
-
Trần Giả
Trốngo
-
Phòng Khách
15m2
-
Phòng SHC
Không có phòng SHC
-
Phòng Ngủ
Phòng ngủ nhỏ: 9m2, Ngủ 2: 13.6m2, Ngủ 3: 14m2,
-
Phòng Thờ
5.5m2
-
Phòng Vệ Sinh
wc1:3.5m2, wc2:4.4m2
-
Gara ô tô
Không có gara ô tô
-
Phòng khác
Phòng bếp ăn: 15m2, Phòng giặt: 4.3m2
-
Quy cách hồ sơ
Khổ A3, khoảng 100 trang

Các mẫu nhà mặt tiền 7m x11m ở Điện Biên
Một trong những mẫu nhà không thể bỏ qua đó là thiết kế nhà 2 tầng mặt tiền 7m của bà Nhung – Mường Lay – Điện Biên
Xác định nhu cầu ở ít gia đình chị Nhung muốn thiết kế một ngôi nhà khang trang sạch đẹp để cho gia đình và con cái.
Nói chung các mẫu nhà mặt tiền 7m mục đích tạo nên những giá trị gia tăng cho đời sống văn hóa, tinh thần. Kiến trúc tập hợp đa dạng những công trình với hình khối, đường nét, công năng, hướng tới sắp xếp những phối cảnh có thể biến đổi đường chân trời. Từ không gian thực của kiến trúc, trong một hình ảnh hai chiều phẳng, nhỏ, mỏng, nhẹ. Từ những khoảng cách vật lý, tâm lý hay nhận thức, bằng cách lựa chọn những góc nhìn sáng tạo, dần tiến đến trình bày những quan niệm về kiến trúc của kiến trúc sư hay của một thời đại.
Trong điều kiện, hoàn cảnh cụ thể, các nhà kiến trúc ghi lại từng dấu ấn thị giác, mỗi không gian sống không chỉ tự soi rọi, ngắm nghía bản thân một cách thụ động. Xuất phát từ nhu cầu phát triển, kiến trúc ngày càng trở thành một kênh thông tin quan trọng để nhìn nhận cái hiện trạng, phản biện cái đã có, rồi từ từ thay đổi quan niệm cũ, hướng đến nhận thức mới về kiến trúc.

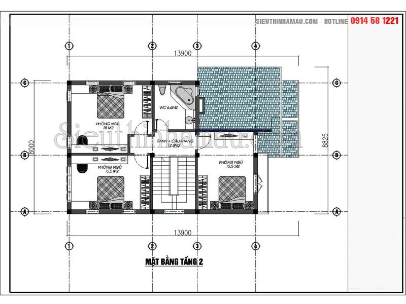
Công năng tầng 1 nhà mặt tiền 7mx11m- mẫu 5

Công năng tầng 2 nhà mặt tiền 7mx11m – mẫu 5
>> Tham khảo ngay các mẫu nhà mặt tiền 8m đẹp để phù hợp hơn với diện tích đất của gia đình bạn
Mẫu số 6: Mẫu nhà 2 tầng mặt tiền 8m kinh điển được nhiều gia đình lựa chọn nhất
-
Mã Sản Phẩm
Mẫu nhà BT816077
-
Số Tầng
Mẫu biệt thự 2 tầng
-
Phong Cách
Biệt thự mang phong cách hiện đại
-
Chiều Cao Tầng
Chiều cao tầng 3.6m, 3.3m- Chiều cao mái 3m
-
Mặt Tiền
8m
-
Chiều Sâu
13m
-
Diện Tích
100m2
-
Kinh Phí Đầu Tư
Khoảng 900- 1 tỷ đồng
-
Kích Thước Đất
28x30m=840m2
-
Phương Án Móng
Móng băng
-
Cấu Tạo Mái
Bê tông
-
Cấu Tạo Thang
Tay vịn gỗ, mặt gỗ, cổ đá
-
Lát Sàn
T1: Gạch, T2: Gạch
-
Chất Liệu Cửa
Cửa chính, Thông phòng gỗ, Kính
-
Trần Giả
Trống
-
Phòng Khách
Trống
-
Phòng SHC
Trống
-
Phòng Ngủ
Trống
-
Phòng Thờ
Trống
-
Phòng Vệ Sinh
Trống
-
Gara ô tô
Trống
-
Phòng khác
Trống
-
Quy cách hồ sơ
Khổ A3, khoảng 100 trang

Mẫu thiết kế nhà mặt tiền 8m diện tích 100m2 đẹp
Mỗi khi đứng trước kiến trúc đương đại, bạn có lờ mờ cảm thấy những ý đồ, mong muốn và cả khát vọng của người chủ đầu tư? Từ kiến trúc không gian lớn rộng, khác biệt, đầy thách thức bí ẩn.
Mỗi khi đứng trước từng chi tiết nhỏ của kiến trúc, ví dụ như những chiếc cầu thang, hãy tự hỏi mình đã cất trữ những gì trong kho dữ liệu cá nhân về một không gian chức năng này? Có khi nào bạn đặt ra một câu hỏi nhỏ: Giá trị nào của cầu thang có thể tạo thành điểm nhấn trang trí.
Vị trí của cầu thang có mang tính chất quyết định trong việc phân bổ các không gian bên trong ngôi nhà? Nhịp điệu, chất liệu có tạo nên những biến đổi về các mảng sáng tối, đậm nhạt trong từng hình ảnh? Và đằng sau tất cả những chi tiết nhỏ, lẻ, hơi “lặt vặt” ấy, người kiến trúc sư có thể sáng tạo và sưu tầm đưa ra các ý tưởng làm mới không gian cho cả ngôi nhà.

Mẫu nhà đẹp 2 tầng mặt tiền 8m – mẫu 6

Nội thất tầng 2 nhà mặt tiền 8m – Mẫu số 6
Mẫu số 7: Kiến trúc bản vẽ các mẫu nhà mặt tiền 8m 2 tầng đẹp
-
Mã Sản Phẩm
Mẫu biệt thự BT221077
-
Số Tầng
2 tầng
-
Phong Cách
Biệt thự theo phong cách hiện đại
-
Chiều Cao Tầng
Trống
-
Mặt Tiền
8m
-
Chiều Sâu
15m
-
Diện Tích
110m2
-
Kinh Phí Đầu Tư
Khoảng 1.3 tỷ đồng
-
Kích Thước Đất
18×17.3m
-
Phương Án Móng
Móng Băng
-
Cấu Tạo Mái
Vì kèo
-
Cấu Tạo Thang
Tay vịn gỗ, mặt gỗ, cổ đá
-
Lát Sàn
T1: Gạch, T2: Gạch
-
Chất Liệu Cửa
Cửa chính, Thông phòng gỗ, Kính
-
Trần Giả
Trống
-
Phòng Khách
30m2
-
Phòng SHC
Không có phòng SHC
-
Phòng Ngủ
N1: 18.5m2, N2: 14.5m2, N3: 13.5m2, N4: 14.5m2,
-
Phòng Thờ
10m2
-
Phòng Vệ Sinh
wc1: 9m2, wc2: 4.7m2
-
Gara ô tô
Không có gara ô tô trong nhà
-
Phòng khác
Phòng bếp ăn: 19m2
-
Quy cách hồ sơ
Khổ A3, khoảng 100 trang

Mẫu nhà 2 tầng mặt tiền 7m đẹp hiện đại
Mẫu số 7: các mẫu nhà mặt tiền 8m có gì khác so với các mẫu nhà 7m không?
Hầu hết tất cả các mẫu nhà mặt tiền 7m đến 8m đều hướng đến các chỉ số, các hạng mục: Hình khối kiến trúc, kết cấu của ngôi nhà và đặc biệt là công năng của ngôi nhà đó. Số nhiều công ty thiết kế chỉ tập trung vào hình khối kiến trúc mà quên mất đi công năng phục vụ gia chủ, người sống trong ngôi nhà đó có cảm thấy quanh những nơi chốn xôn xao, ồn ào.
Không mấy ai đủ tĩnh tại để đối thoại một cách chỉn chu, nghiêm túc, chuyên nghiệp với kiến trúc. Nhịp điệu có thể thấy ẩn hiện qua những hàng cột, đôi khi thấp thoáng ở những ô cửa sổ. Tiết tấu nhanh chậm đôi khi cũng thay đổi theo không gian, thậm chí theo cả màu sắc. Màu trầm cho ta thấy một tiết tấu chậm rãi. Màu nóng và rực rỡ dễ gợi đến một tiết tấu vui tươi…

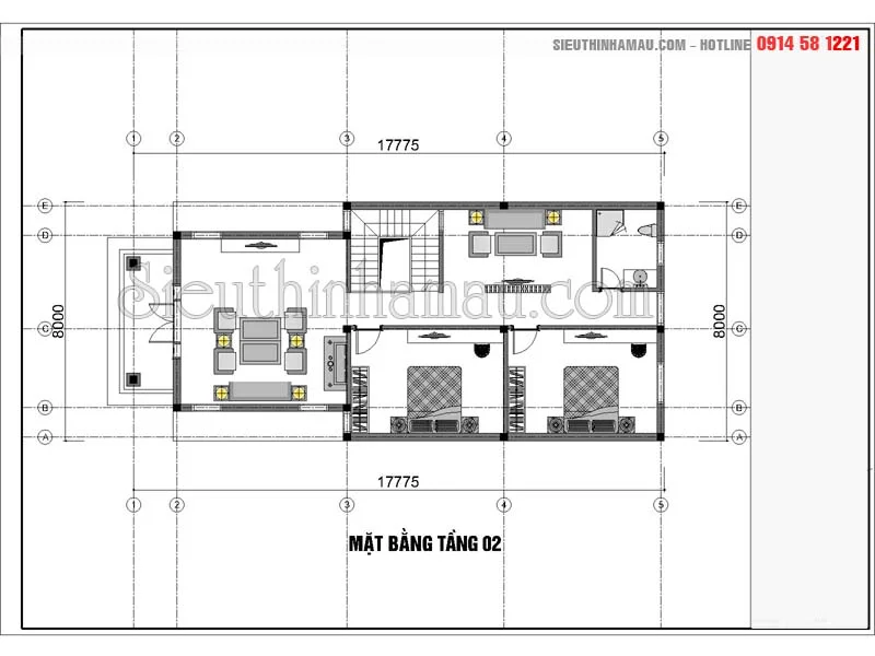
Mặt bằng tầng 2 nhà 2 tầng 8x15m đẹp – Mẫu 7

Công năng tầng 2 bản vẽ nhà mặt tiền 8x15m 2 tầng – Mẫu 7
Mẫu số 8: Mẫu nhà mặt tiền 8x15m 2 tầng kinh phí 900 triệu đồng
-
Mã Sản Phẩm
Mẫu biệt thự BT631077
-
Số Tầng
Nhà biệt thự 2 tầng
-
Phong Cách
Biệt thự hiện đại
-
Chiều Cao Tầng
Trống
-
Mặt Tiền
8m
-
Chiều Sâu
15m
-
Diện Tích
120m2
-
Kinh Phí Đầu Tư
Khoảng 800- 900 triệu đồng
-
Kích Thước Đất
410m2
-
Phương Án Móng
Móng Cọc
-
Cấu Tạo Mái
Vì kèo
-
Cấu Tạo Thang
Tay vịn gỗ, mặt gỗ, cổ đá
-
Lát Sàn
T1: Gạch, T2: Gạch
-
Chất Liệu Cửa
Cửa chính, Thông phòng gỗ, Kính
-
Trần Giả
Trống
-
Phòng Khách
50m2
-
Phòng SHC
22m2
-
Phòng Ngủ
N1: 16m2, N2: 18m2, N3: 14m2
-
Phòng Thờ
10m2
-
Phòng Vệ Sinh
wc1: 4m2, wc2: 4m2, wc: 3m2
-
Gara ô tô
Không có gara ô tô trong nhà
-
Phòng khác
Phòng ăn: 17m2, Phòng bếp: 15m2
-
Quy cách hồ sơ
Khổ A3, khoảng 100 trang

Thiết kế nhà mặt tiền 7m 2 tầng đẹp
Có thể thấy các mẫu nhà mặt tiền 7m 2 tầng đều có những cách thiết kế kiến trúc khác nhau Trong thiết kế đô thị, một trong những yếu tố rất quan trọng là bạn biết tìm ra đâu là “điểm vàng” của không gian. Nơi đó, có thể là một mái nhà thờ vút cao, cũng có thể là một bức điêu khắc nho nhỏ, thậm chí đơn giản chỉ là một dòng nước xanh bên bờ cỏ êm đềm.

Thiết kế nhà 2 tầng mặt tiền 8m đẹp – Mẫu số 8

Mặt bằng nội thất tầng 2 mẫu nhà mặt tiền 8m – Mẫu 8
Mẫu số 9: Biệt thự mini mặt tiền 8x9m diện tích 65m2 đẹp hút hồn
-
Mã Sản Phẩm
Mẫu biệt thự BT141077
-
Số Tầng
Nhà biệt thự 2 tầng
-
Phong Cách
Biệt thự theo phong cách hiện đại
-
Chiều Cao Tầng
Tầng 1 – 3,6(m), Tầng 2 – 7,1(m), Mái – 9,6(m).
-
Mặt Tiền
8m
-
Chiều Sâu
9m
-
Diện Tích
65m2
-
Kinh Phí Đầu Tư
Khoảng 700 – 800 triệu VND đồng
-
Kích Thước Đất
645m2
-
Phương Án Móng
Móng Cọc
-
Cấu Tạo Mái
Vì kèo
-
Cấu Tạo Thang
Tay vịn gỗ, mặt gỗ, cổ đá
-
Lát Sàn
T1: Gạch, T2: Gạch
-
Chất Liệu Cửa
Cửa chính, Thông phòng gỗ, Kính
-
Trần Giả
Trống
-
Phòng Khách
28m2
-
Phòng SHC
Không có phòng SHC
-
Phòng Ngủ
N1: 14m2, N2: 14m2, N3: 14m2
-
Phòng Thờ
12.5m2
-
Phòng Vệ Sinh
wc1: 3.3m2, wc2: 3.3m2
-
Gara ô tô
Không có gara ô tô trong nhà
-
Phòng khác
Trống
-
Quy cách hồ sơ
Khổ A3, khoảng 100 trang
>>> Xem ngay kiến trúc nhà mặt tiền 7m

Mẫu thiết kế biệt thự mini nhỏ xinh mặt tiền 8m đẹp

Nội thất tầng 1 biệt thự mini mặt tiền 8m – Mẫu 9

Nội thất tầng 2 biệt thự mini mặt tiền 8m đẹp – Mẫu 9
>>> Bất ngờ với thiết nhà 1 trệt 1 lầu 3 phòng ngủ bạn không thể bỏ qua
Mẫu số 10: Các mẫu nhà mặt tiền 8x14m 2 tầng diện tích 100m2 đẹp mê ly
-
Mã Sản Phẩm
Mẫu biệt thự BT119077
-
Số Tầng
2 tầng
-
Phong Cách
Biệt thự hiện đại
-
Chiều Cao Tầng
Trống
-
Mặt Tiền
8m
-
Chiều Sâu
14m
-
Diện Tích
100m2
-
Kinh Phí Đầu Tư
Khoảng 1.2 đến 1.3 tỷ đồng
-
Kích Thước Đất
15x20m
-
Phương Án Móng
Móng Cọc
-
Cấu Tạo Mái
Vì kèo
-
Cấu Tạo Thang
Tay vịn gỗ, mặt gỗ, cổ đá
-
Lát Sàn
T1: Gạch, T2: Gạch
-
Chất Liệu Cửa
Cửa chính, Thông phòng gỗ, Kính
-
Trần Giả
Thạch cao
-
Phòng Khách
45m2
-
Phòng SHC
Không có phòng SHC
-
Phòng Ngủ
N1: 12,8m2, N2: 15.5m2, N3: 15.5m2
-
Phòng Thờ
Phòng thờ kết hợp phòng khách 45m2
-
Phòng Vệ Sinh
wc1: 4m2, wc2: 4m2
-
Gara ô tô
Không có gara ô tô trong nhà
-
Phòng khác
Phòng ăn: 15.5m2
-
Quy cách hồ sơ
Khổ A3, khoảng 100 trang

Mẫu nhà mặt tiền 8m chiều sâu 14m 2 tầng đẹp

Mặt bằng nội thất tầng 1 mẫu nhà mặt tiền 8m x 14m 2 tầng

Mặt bằng nội thất tầng 2 mẫu nhà mặt tiền 8m
Mẫu nhà số 11: Mẫu thiết kế nhà 2 tầng 8x17m đẹp long lanh
-
Mã Sản Phẩm
Mẫu biệt thự BT418077
-
Số Tầng
Mẫu biệt thự 2 tầng
-
Phong Cách
Biệt thự mang phong cách hiện đại
-
Chiều Cao Tầng
Trống
-
Mặt Tiền
8m
-
Chiều Sâu
17m
-
Diện Tích
130m2
-
Kinh Phí Đầu Tư
Khoảng 1.2 tỷ đồng
-
Kích Thước Đất
180m2
-
Phương Án Móng
Móng Cọc
-
Cấu Tạo Mái
Vì kèo
-
Cấu Tạo Thang
Tay vịn gỗ, mặt gỗ, cổ đá
-
Lát Sàn
T1: Gạch, T2: Gạch
-
Chất Liệu Cửa
Cửa chính, Thông phòng gỗ, Kính
-
Trần Giả
Trống
-
Phòng Khách
Trống
-
Phòng SHC
Trống
-
Phòng Ngủ
Trống
-
Phòng Thờ
Trống
-
Phòng Vệ Sinh
Trống
-
Gara ô tô
Không có gara ô tô trong nhà
-
Phòng khác
Trống
-
Quy cách hồ sơ
Khổ A3, khoảng 100 trang
>>> Xem ngay bộ sưu tập biệt thự 2 tầng 130m2

Tổng hợp các mẫu thiết kế nhà mặt tiền 8m 2 tầng vô cùng đẹp mắt

Mặt bằng tầng 1 mẫu nhà mặt tiền 8m

Mặt bằng tầng 2 các mẫu nhà mặt tiền 8m đẹp
Biệt thự mini mặt tiền 8m vô cùng ấm cúng qua phòng sinh hoạt chung
Nội thất nhà 2 tầng mặt tiền 8m được thiết kế với 2 phòng ngủ 1 phòng vệ sinh chung, các công năng đều có thể di chuyển một cách dễ dàng qua các không gian khác.
Bên ngoài được thiết kế một không gian để làm việc hoặc cũng có thể làm không gian để gia đình sum họp và quây quần bên nhau và những ngày cuối tuần. Đây là không gian quan trọng nhất ở thời buổi công nghiệp ngày nay. Một số gia đình chỉ gặp nhau trong bữa cơm và sau đó phòng ai về phòng nấy sẽ không tạo được sự gắn kết tình thân giữa các thành viên với nhau. Do đó việc xây nhà rộng quá 70% cũng chỉ là dư thừa, quan trọng là không gian ấm cúng và đoàn kết mới là tiêu chí của việc xây nhà hiện nay.
Qua bài viết tổng hợp các mẫu nhà mặt tiền 7m đến 8m của siêu thị nhà mẫu chúng tôi hy vọng sẽ đem đến cho bạn và gia đình một sự lựa chọn tinh tế và hoàn hảo nhất khi thiết kế một ngôi nhà mang dấu ấn và sở thích của bản thân vào trong một không gian không hề đơn giản.
Nhằm tạo ra các không gian lý tưởng tạo sự vui vẻ và thoải mái cho các gia đình khi xây một ngôi nhà ở lâu dài bạn có thể tìm đến đơn vị thiết kế nhà uy tín để được tư vấn. Chúng tôi hy vọng các bạn đang sở hữu các mẫu nhà mặt tiền 7m đến 8m mà chưa biết phải xử lý công năng ra sao thì siêu thị nhà mẫu chúng tôi là một địa chỉ uy tín và tin cậy để đặt niềm tin về thiết kế.
Mọi chi tiết vui lòng liên hệ Hotline: 0914581221




