Mô tả
- Mã Sản PhẩmMẫu biệt thự BT517077
- Số TầngMẫu nhà 2 tầng
- Phong CáchBiệt thự mang phong cách tân cổ điển
- Chiều Cao TầngTrống
- Mặt Tiền8.5m
- Chiều Sâu12.5m
- Diện Tích105m2
- Kinh Phí Đầu TưKhoảng 1.3 tỷ đồng
- Kích Thước Đất584m2
- Phương Án MóngMóng Cọc
- Cấu Tạo MáiVì kèo
- Cấu Tạo ThangTay vịn gỗ, mặt gỗ, cổ đá
- Lát SànT1: Gạch, T2: Gạch
- Chất Liệu CửaCửa chính, Thông phòng gỗ, Kính
- Trần GiảThạch cao
- Phòng KháchTrống
- Phòng SHCTrống
- Phòng NgủTrống
- Phòng ThờTrống
- Phòng Vệ SinhTrống
- Gara ô tôKhông có gara ô tô trong nhà
- Phòng khácPhòng karaoke
- Quy cách hồ sơKhổ A3, khoảng 100 trang

Kiến trúc ngoại thất mẫu nhà 2 tầng mặt tiền 8.5m
Mặt tiền nhà là nơi để nghênh đón Khí – Tài – Lộc cho gia đình
Bản vẽ thiết kế mẫu nhà mặt tiền 8.5m ở Quảng Ninh là vô cùng ấn tượng sở hữu mặt tiền được hiểu được hiểu là phần phía trước ngôi nhà, là nơi đầu tiên mà người nhìn sẽ chú ý đến ngôi nhà của bạn. Mặt tiền là phía mặt có cửa chính, mặt hậu là phần đối xứng với mặt tiền hay còn gọi là lưng nhà. Theo phong thủy mặt tiền và mặt hậu của ngôi nhà đại diện cho âm dương nên có sự cân bằng. Xem ngay các mẫu thiết kế nhà 2 tầng 1 mặt tiền
Khi nhìn vào ngôi nhà 2 tầng măt tiền 8.5m đẹp 105m2 người ta sẽ thấy mặt tiền trước tiên vì thế mặt tiền của nhà đóng vai trò vô cùng quan trọng không thể xem nhẹ được. Mặt tiền nhà có đẹp thì mới gây ấn tượng được với khách đến chơi nhà, và nó còn là nơi để thể hiện đẳng cấp, sự chỉn chu của chủ nhà, còn theo phong thủy, mặt tiền nhà còn ảnh hưởng đến sự may mắn, công danh sự nghiệp tài lộc của các thành viên trong gia đình. Do đó, không lạ gì khi xây dựng mặt tiền nhà gia chủ thường rất coi trọng vấn đề phong thủy. Những mảnh đất có vị trí đẹp thường được nhiều người săn đón vì nó sẽ đảm bảo được yếu tố mặt tiền nhìn nhà nhìn đẹp và giá trị sơn so với các ngôi nhà cùng diện tích mà mặt tiền xấu.
Việc sở hữu một mẫu nhà mặt tiền 8.5m là khá là rộng lớn vì vậy việc thiết kế làm sao cửa cổng phải cân đối tỷ lệ đẹp mắt để nghênh đón tài lộc cho gia đình, và đồng thời phần cửa cổng cũng cần được thiết kế với một phần là bê tông và phần trên là bằng những lam sắt được sơn tĩnh điện màu trắng vừa tạo độ bền cũng như độ thông thoáng, vừa phô ra được vẻ đẹp của ngôi nhà.

Biệt thự nhà 2 tầng mặt tiền 8.5m được thiết kế với màu sắc tươi tắn
Màu sắc được các kiến trúc sư sử dụng một cách tinh tế
Màu sắc tạo cho người nhìn có thiện cảm hay không, màu sắc còn thể hiện gu và tính cách của chủ nhà. Với mẫu nhà mặt tiền 8.5m 2 tầng sử dụng màu sắc trắng là một tông nền hoàn hảo để tôn vinh những màu sắc khác nhau cùng kết hợp, màu trắng rất dễ phối màu, nó có thể làm việc tốt với bất kì một gam màu nào trong bảng màu để tạo nên hiệu ứng tốt nhất. Mẫu nhà mặt tiền 8.5m được sử dụng với gam màu trắng làm chủ đạo vừa tinh tế, hoàn hảo. Mang đặc điểm pha lẫn chút tân cổ điển nhẹ qua những lan can hoa sắt màu đen ở phần ban công tầng 2 như tạo điểm nhấn hút mắt cho người nhìn.
Ngoài ra, màu trắng có độ quang phổ mạnh vì thế luôn mang cảm giác tươi sáng. Màu trắng kết hợp cùng ánh sáng sẽ sẽ tạo nên một sự công hưởng hoàn hảo để làm bừng sáng không gian sống của bạn.
Màu trắng có thể sử dụng như một tông đơn sắc, có thể đứng một mình hoặc kết hợp thêm với nhiều tông màu khác. Những không gian được trang trí với một mình tông trắng thường gây ấn tượng mạnh mẽ về cảm nhận sự sang trọng và thanh lịch, thoáng mát. Bên cạnh đó để nhấn mạnh thêm hoặc tạo nên sự tươi mới, năng động hơn kết hợp nó với một vài gam màu yêu thích cũng là một gợi ý lý tưởng. Hoặc thử nghiệm màu trắng cho các ý tưởng màu sắc tương phản cũng là một trải nghiệm mới mẻ đầy thú vị cho không gian.

Góc view tổng thể nhà biệt thự 2 tầng mặt tiền 8.5m được
Tổng thể kiến trúc nhà 2 tầng mặt tiền 8.5m diện tích 105m2
Góc nhìn từ trên cao nhà mặt tiền 8.5m 2 tầng được thiết kế với một tổng thể hài hòa, từ những hình khối kiến trúc đến màu sắc vật liệu, sự dung hòa về không gian đều mang đến cho người nhìn cảm giác thích thú và ấn tượng.
Xung quanh đều thoáng đãng và nhiều cây xanh do vậy không khí vô cùng mát mẻ, cây xanh có tác dụng như một màng lọc không khí giúp cho không khí trở nên mát mẻ.
Thiết kế nhà mặt tiền 8.5m mang vẻ đẹp của kiến trúc hững kiến trúc độc đáo từ sân vườn, tiểu cảnh đều được thiết kế một chi tiết. Thiết kế luôn được việc thiết kế với những kiến trúc đẹp đem đến cho gia chủ một không gian hiện đại thông minh.
Tổng thể kiến trúc từ trên cao mẫu thiết kế nhà 2 tầng mặt tiền 8.5 thể hiện rõ nét chi tiết của bản vẽ thiết kế của các kiến trúc sư với tay nghề cao, cách xử lý hình khối cũng như màu sắc đến tỷ lệ vô cùng “hoàn hảo” qua đó ta có thể khẳng định rằng các mẫu thiết kế nhà 2 tầng mái thái cuả siêu thị nhà mẫu là sự tận tâm chuyên nghiệp luôn mang đến cho gia chủ sự ưng ý hài lòng.

Tổng mặt bằng định vị quy hoạch tổng mặt bằng nhà mặt tiền 8.5m
Nhìn cách thiết kế bản vẽ mẫu nhà mặt tiền 8.5m 2 tầng diện tích 105m2 được thiết kế với không gian tươi tắn, xanh mát, sở hữu một không gian ưng ý và hài lòng gia chủ sẽ cảm thấy yêu thích và luôn muốn được về nhà để ngắm, để chăm sóc cây cối hay đơn giản là nhớ một không gian hay một góc nhỏ của ngôi nhà đó mỗi khi đi công tác xa nhà. được thiết kế với những với những trúc đẹp các kiến trúc sư đã quy hoạch mặt bằng định vị một cách chi tiết với những công năng đi kèm như sân vườn. Để nhà có không gian có ánh sáng thì không gian phải rộng, thoáng đãng và có cây cối kết hợp. Việc trồng cây có thể giúp cho ngôi nhà vừa tạo tiểu cảnh lại có chức năng giảm nhiệt và điều hòa không khí cho không gian.
Để định vị được tổng mặt bằng chính xác hơn các gia chủ cần phải đo trắc đạc địa hình để biết được cốt của địa hình cây cối, đường đi… để tìm ra các đường đồng mức. Như vậy sẽ tạo cảnh quan đẹp và tự nhiên, nhưng đối với những nhà có diện tích lớn muốn thiết kế đồng bộ và đồng thời sẽ tốn khá nhiều chi phí. Nhưng đối với những mẫu nhà mặt tiền 8.5m 2 tầng này thì chỉ cần định vị bằng 2D để biết được vị trí của cây cối là đủ.

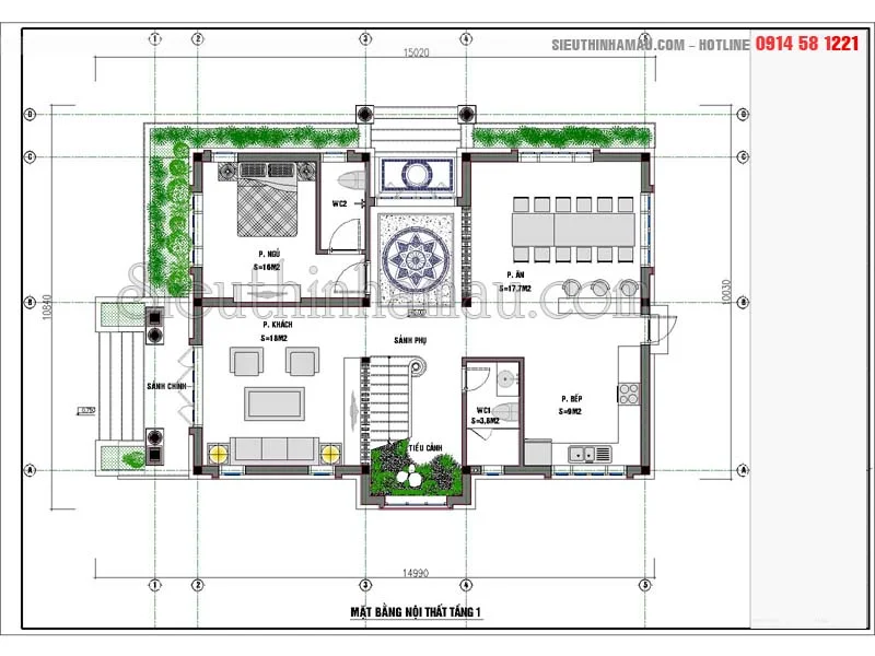
Mặt bằng nội thất tầng 1 được thiết kế với không gian nội thất linh hoạt
Nội thất luôn là tâm hồn của ngôi nhà
Thiết kế mẫu nhà mặt tiền 8.5m phần nội thất được xem là “hồn cốt” của ngôi nhà,việc thiết kế nội thất đem đến cho gia chủ sự đồng bộ cũng như thể hiện độ chăm chút và đầu tư của chủ nhà cho ngôi nhà đó.
Những trang thiết bị nội thất chủ yếu phục vụ cho nhu cầu sinh hoạt là không thể thiếu như: bàn ghế, kệ, giường, tủ, chạn… những đồ trong nhà đa phần các gia chủ lựa chọn đồ nội thất bằng gỗ. Đây là chất liệu khá phổ biến và cũng khá đắt đỏ bởi những vật liệu gỗ đang ngày trở nên hiếm hoi. Với những loại gỗ quý thì chất kỵ
Nội thất mẫu nhà mặt tiền 8.5m 2 tầng ở Quảng Ninh được thiết kế được thiết kế với những không gian 1 phòng ngủ, 1 phòng khách, bếp, và phòng ăn. Thiết kế biệt thự 2 tầng mặt tiền 8.5m được thiết kế với những thiết kế thì được các kiến trúc đẹp và đem đến cho gia chủ một không gian nội thất sang trọng các không gian như phòng bếp, khách, và phòng ngủ đều được thiết kế một cách hợp lý, liên thông và được thiết kế với những kiến trúc tân cổ nhẹ. Cũng có thể linh động và tùy vào sở thích của gia chủ có thể bố trí nội thất theo gu riêng của chủ nhà.
Không gian thiết kế nhà biệt thự 2 tầng tầng 1 bao gồm 1 phòng khách được đặt ngay ở vị trí trung tâm sát bên là một khoảng được trang trí thêm tiểu cảnh vô cùng bắt mắt tạo điểm nhấn cho vị trí trung tâm này, khách đến nhà chắc hẳn không có ai bỏ qua khu vườn nhỏ đáng yêu này.
Bên ngoài, phòng bếp mẫu nhà mặt tiền 8.5m 2 tầng ở Quảng Ninh được bố trí sát khu sảnh phụ là khu vực bếp ăn, nơi được coi là giữ lửa cho gia đình. Với không gian này ngoài được trang bị các trang thiết bị hiện đại để giúp người phụ nữ nấu ăn nhanh chóng hơn và đỡ vất vả hơn thì không gian này còn được các kiến trúc sư đặc biệt chú ý đến thông gió và ánh sáng để cho không gian bếp không bị ám mùi vào các không gian khác.

Mặt bằng nội thất tầng 2 nhà 2 tầng diện tích 120m2 ở Quảng Ninh
Thiết kế nội thất 2 tầng nhà biệt thự 2 tầng mặt tiền 8m
Không gian nội thất mẫu nhà 2 tầng mặt tiền 8.5m những không gian như phòng ngủ, phòng thờ và phòng giải trí được sắp xếp một cách hợp lý. Được thiết kế với 1 phòng ngủ Master với đầy đủ công năng như phòng thay đồ, vệ sinh khép kín, bồn tắm được trang bị một cách đầy đủ tiện nghi. Với điều kiện mà gia chủ đầu tư cho không gian nội thất là được đánh giá có kiều kiện. Thật ra, nội thất là quá trình gắn bó, sử dụng gắn liền với con người nhiều nhất nên việc bố trí, mua sắm những trang thiết bị phục vụ cho cuộc sống để có thể giúp con người nghỉ ngơi, giải trí là hoàn toàn xứng đáng. Do vậy, việc trang bị nội thất cao cấp của những gia đình có điều kiện kinh tế là hoàn toàn dễ hiểu.

Thiết kế mặt bằng mái nhà biệt thự 2 tầng mặt tiền 8.5m
Thiết kế phần mái nhà biệt thự mặt tiền 8.5m ở Quảng Ninh
Phần mái mẫu nhà mặt tiền 8.5m nhà là phần quan trọng nhất trong cả quá trình thi công và hoàn thiện bởi mái nhà là phần trên cùng để che chắn và bảo vệ cho toàn bộ các không gian bên trong, do đó phần mái là phần cần được thi công đúng cách nhất nhằm tránh được các tác động của thời tiết đồng thời là phần thiên về phong thủy nhiều nhất.
Nói đến tầm quan trọng của phần mái thì có lẽ nên hình dung bằng câu nói “con không cha như nhà không nóc”. Mái nhà vừa là nơi trú ngụ vừa là nơi tụ khí của toàn thể căn nhà, bít kín thì bế khí và trống trải thì tán khí. Theo quan niệm phong thủy ảnh hưởng đến đời sống con người trong ngôi nhà đó vì vậy để mái nhà hài hòa phong thủy cần lưu ý những vấn đề sau:
An toàn và bền vững
Để bảo vệ phần trên mái nhà tạo thêm luồng không khí thông suốt và trong lành từ trên cao xuống, khi làm mái cần theo nguyên tắc truyền thống là Bài thủy nhiệt – Triệt lôi.
Vai trò của mái nhà 2 tâng 102m2 là che chở và thoát nước của mái nhà cần uư tiên hàng đầu nên phải tạo độ dốc thoát nước mưa hợp lý (bài thủy). Nếu là mái bằng lại càng phải chú ý các giải pháp kỹ thuât giảm
Ở nông thôn nước ta, phần lớn mái mẫu nhà mặt tiền 8.5m thường được chọn là mái nhà hình tam giác, bởi theo độ dốc của mái nhà sẽ khiến nước mưa chảy xuống một cách dễ dàng, tránh tình trạng nước mưa bị ứ đọng lại trên mái nhà, xét về tính thực tiễn lẫn trong quan niệm phong thủy đều tốt, đặc biệt là kiểu mái thái có ưu điểm vượt trội, rất đẹp mắt, nhưng mái thái hiện nay được tạo hình rất đa dạng không còn đơn thuần là mái dốc tam giác truyền thống.
Y nhiên mái nhà hình tam giác của bạn sẽ ảnh hưởng đến những nhà kề bên nếu bạn không chú ý đến phong thuỷ. Do đó, tốt nhất khi xây nhà tránh để đỉnh tam giác nhà mình chĩa thẳng vào cửa nhà người khác. vì nóc nhà có hình tam giác thuộc hành Hỏa mà theo ngũ hành thì hành hỏa khắc Kim (tiền tài) nên nhiều người lo ngại nếu bị chĩa Hỏa sang nhà mình thì tiền tài sẽ hao tổn.
Theo như quan niệm thì phần mái nhà là phần âm một ngôi nhà hoàn thiện là sự tổng hợp tổng thể của 3 phần đó là : phần móng – phần thân – phần mái.
Phần móng:
Thể hiện sự chắc chắn của phần khối đế, kết cấu chịu lực chịu tải của ngôi nhà, việc thiết kế móng đủ tải trọng thì khả năng nâng đỡ các phần trên của ngôi nhà mới được đảm bảo an toàn, đồng thời việc móng chắc mới giúp ngôi nhà bền và chắc theo thời gian.
Phần thân:
Đối với mẫu nhà mặt tiền 8.5m và rất nhiều kiểu nhà khác nữa được thiết kế với các bức tường được tính toán kết cấu được hình thành bằng gạch và bê tông nên tạo được độ bền và chắc chắn. Kể cả khi có mưa gió hay lốc mạnh cũng sẽ không ảnh hưởng đến các nội thất bên trong.
Phần mái:
Ở phần mái cách độ dốc của mái tối thiểu là 17 độ, tối đa 90 độ. Độ dốc được coi là chuẩn ở khoảng 30-35 độ. Với khoảng cách đó thì mới thoát nước nhanh trên mái nhà. Trường hợp không làm đúng theo quy chuẩn, nước sẽ bị ứ đọng khiến mái nhà bị rong rêu, thấm dột nhanh.
Màu sắc mái nhà biệt thự 2 tầng 8.5m
Hiện nay, chúng ta dễ dàng nhìn thấy những mái nhà có nhiều màu sắc khác nhau. Với mái tôn, bạn có thể sơn màu theo ý thích của mình, còn với nhà lợp ngói thì ngoài màu ngói đất nung truyền thống thì cũng có các loại ngói màu với nhiều màu sắc khác nhau cho bạn lựa chọn.
Siêu thị nhà mẫu là đơn vị tư vấn thiết kế với trên 15 năm trong lĩnh vực tư vấn thiết kế. Để lựa chọn được thiết những mẫu thiết kế độc đáo ấn tượng mang một chất riêng thì hãy liên hệ với chúng tôi qua Hotline: 0914 551 221 để được tư vấn miễn phí nhé!
Đừng bỏ lỡ mẫu nhà mặt tiền 8m cũng là một mẫu thiết kế đáng để quý vị tham khảo đó ạ!




Đánh giá
Chưa có đánh giá nào.