Mô tả
-
Mã Sản Phẩm
BT908077
-
Số Tầng
1.5 tầng
-
Phong Cách
Hiện Đại
-
Chiều Cao Tầng
Trống
-
Mặt Tiền
7m
-
Chiều Sâu
15m (chưa bao gồm sảnh)
-
Diện Tích
100m2
-
Kinh Phí Đầu Tư
Khoảng 700 triệu đồng
-
Kích Thước Đất
10m x 21m= 210m2
-
Phương Án Móng
Móng Băng
-
Cấu Tạo Mái
Vì Kèo
-
Cấu Tạo Thang
Trống
-
Lát Sàn
T1: Gạch
-
Chất Liệu Cửa
Cửa chính, Thông phòng gỗ, Kính
-
Trần Giả
Trống
-
Phòng Khách
18.5m2
-
Phòng SHC
Không có phòng SHC
-
Phòng Ngủ
Phòng ngủ 1- 10m2; Phòng ngủ 2- 9,5m2- Phòng ngủ 3- 12m2
-
Phòng Thờ
10.7m2
-
Phòng Vệ Sinh
Trống
-
Gara ô tô
Không có gara ô tô trong nhà
-
Diện tích mái
90m2
-
Quy cách hồ sơ
Khổ A3, khoảng 100 trang
Có 3 việc hệ trọng trong đời đó là “tậu trâu, xây nhà cấp 4 7x15m đẹp, dựng vợ gả chồng” trong đó việc xây dựng nhà cửa là vấn đề gian nan không kém của một đời người. Ông cha ta thường nói “an cư mới lạc nghiệp” do đó mỗi gia đình cần phải ổn định nơi ăn chốn ở thì mới yên tâm đi làm ăn được.
Với nhà cấp 4 7x15m diện tích 100m2 là mẫu nhà do ông Thuấn ở Thanh Hóa làm chủ đầu tư cũng xuất phát từ những khó khăn ban đầu đó, ông và gia đình dành dụm được khoản tiền kha khá để xây nhà cấp 4 7x15m khang trang sạch sẽ để gia đình có chốn ăn ở đàng hoàng vừa cũng là công trình mà cả đời gây dựng được.
Tự hào về những cố gắng mà mình đã đạt được ông đã thuê đơn vị thiết kế siêu thị nhà mẫu chúng tôi để thiết kế nhà cấp 4 7x15m diện tích 100m2 của mình với nhu cầu chính là ở và là nơi nghỉ ngơi thư giãn với 1 phòng khách, 3 phòng ngủ và 1 phòng thờ ở trên gác lửng. Kiến trúc sư phải tính toán làm sao đủ công năng vừa vặn vừa tiết kiệm được chi phí cho gia đình.

Phối cảnh bản thiết kế nhà cấp 4 7x15m diện tích 100m2 của gia đình ông Thuấn
Tiếp nhận nhu cầu gia chủ kiến trúc sư lên phương án kiến trúc cho mẫu nhà cấp 4 7x15m
Mẫu nhà cấp 4 7x15m với mặt tiền 7m do đó kiến trúc sư thiết kế theo phương dọc (phát triển ý tưởng theo chiều sâu), nhưng không vì thế mà ngôi nhà bị bí bách hay chật chội. Khoảng sân phía trước vẫn tha hồ để được các phương tiện xe cộ của gia đình, vừa là khoảng thông gió phía mặt tiền.
Xung quanh là tường rào bao quanh, với thiết kế thoáng đãng, các khe hở của hàng rào sẽ là nơi hút gió vào không gian bên trong, một sự thiết kế rất nhạy bén của các kiến trúc sư đối với mẫu thiết kế nhà cấp 4 7x15m đẹp này.
Bạn cho rằng đã xây nhà là phải rộng lớn, hoành tráng như vậy mới “oai” với hàng xóm láng giềng.
Chưa chắc! ông Thuấn chia sẻ.
“Nhà rộng và lớn thứ nhất là phải phù hợp với điều kiện của chủ nhà, thứ hai là nhà rộng phải có khuôn viên rộng (có sân vườn tiểu cảnh) thứ ba phải ở ngay mặt tiền, mặt phố thì mới gọi là hoành tráng và sang trọng.
Chứ tôi thấy nhiều gia đình ở quê cũng gọi là có điều kiện nhưng điều kiện mà không biết tính toán, cứ xây xong hết được phần thô mà vẫn để tô hô ra hỏi ra thì mới bảo rằng hết tiền sang năm hoàn thiện. Như vậy, liệu đã được coi là có điều kiện chưa? việc xây và hoàn thiện nhà tuy nhỏ như mẫu nhà 7x15m này cũng khá để nể phục rồi, bởi nếu so đo và tính toán ra thì nhiều người có điều kiện hơn tôi và cũng còn nhiều người còn phải đi thuê nhà ý chứ.
Như tôi tôi có bao nhiêu tôi xây bấy nhiêu nhà tuy nhỏ cũng là mồ hôi nước mắt tôi làm ra thế hệ tôi làm được nhà như này (mẫu nhà cấp 4 7x15m) là tự hào lắm rồi …ông Thuấn cười”.
Thiết kế nhà căp 4 7x15m đẹp diện tích 100m2 đem đến một không gian hiện đại mới mẻ và tạo nhiều cảm xúc cho người ở qua từng không gian. Điều kiện kinh tế cũng có hạn nên thiết kế sao cho phù hợp với yêu cầu của chủ nhà để gia chủ có thể yên tâm và tiết kiệm được khoản chi phí nào đó cho phần nội thất của công trình.

Mẫu nhà cấp 4 7x15m đẹp ở Thanh Hóa với mặt tiền đủ lớn
Mặt tiền nhà luôn là cả bộ mặt của ngôi nhà 7x15m của ông Thuấn
Khi xét về mặt tổng quan của ngôi nhà cấp 4 7x15m thì phần nào lộ diện nhiều nhất là phần đó sẽ là phần chính, nếu phần chính mà không thiết kế đẹp mắt thì quả là ngôi nhà đó thật không có gì đặc biệt, mà còn bị chê là quá xấu.
Trong mẫu thiết kế nhà cấp 4 7x15m này các kiến trúc sư chăm chút cho mặt tiền của ngôi nhà trở nên hoàn hảo và đẹp mắt. nó đại diện cho tổng thể của ngôi nhà vì nó là nơi thu hút ánh mắt của người nhìn là trước tiên đã.
Nhìn ngắm từ xa mẫu nhà cấp 4 kích thước 7x 15m này đem đến cho người nhìn cảm giác nhỏ nhắn và xinh xắn, nhưng vô cùng chất và khỏe khoắn. Nhìn nó khỏe bởi các kiến trúc sư thiết kế phần mái của ngôi nhà bằng bê tông đúc rất dày dặn và chắc chắn những lớp mái xếp chồng nối tiếp nhau tạo nên những cung bậc hay tượng trưng cho những thăng trầm của cuộc sống, mang ý nghĩa vô cùng sâu sắc.
Thiết kế nhà cấp 4 7x15m ở Thanh Hóa là một mẫu nhà tuy nhỏ nhưng chứa chan tình cảm của gia đình, những gì ông Thuấn gây dựng nên ông muốn gói gọn trong ngôi nhà này và được các kiến trúc sư truyền tải thật đúng ý tưởng của gia đình.

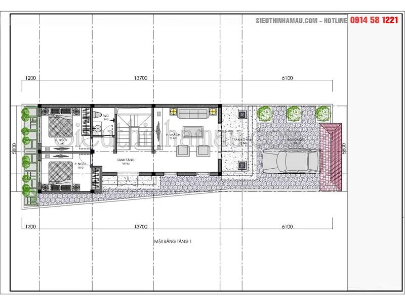
Xử lý mặt bằng tầng 1 mẫu nhà cấp 4 mặt tiền 7m chiều sâu 15m
Nội thất tầng 1 mẫu nhà cấp 4 7x15m với khuôn viên đất nở hậu
“Phong thủy” đã trở thành một thuật ngữ hết sức quen thuộc trong cuộc sống. Phong thủy được nhắc đến ở hầu hết mọi nơi: phong thủy cho nhà ở, phong thủy cho văn phòng hay thậm chí, phong thủy cho nhân tướng. Tuy nhiên, để chủ nhà có thể hiểu về phong thủy là điều không hề dễ…..Do đó, đề tài phong thủy vẫn còn rất phức tạp khi đề cập trong quá trình tạo dựng không gian sống.
Nhưng trong mẫu nhà cấp 4 7x15m này lại có đất nở hậu. Theo quan niệm về phong thủy thì đất nở hậu là khá tốt so với đất thóp hậu.
Kích thước đất 10x21m nhưng với cách tính toán và cân đối theo kiểu nhà ống của các kiến trúc sư làm cho mẫu nhà này trở nên vừa vặn và vẫn đủ diện tích để đáp ứng hết nhu cầu của gia đình.
Hai sảnh để dẫn lối vào trong nhà, một sảnh chức năng dùng để phục vụ cho nhu cầu tiếp khách (sảnh chính) khác với thế hệ nhà nhà xưa cửa nhà đi vào cùng một lối bên trong phòng khách đang tiếp khách, vợ con đi chợ xách đồ đạc lỉnh kỉnh đi qua ảnh hưởng đến cuộc tiếp khách của người chồng….
Nhưng ngày nay khi xã hội phát triển nhà cấp 4 7x15m cũng được phân chức năng ra cho từng khu vực, phòng khách chỉ là để tiếp khách, hay những đồ vật đẹp, quý báu, hay nhưng những vật lưu niệm mới mang ra trưng bày ở phòng khách, hay nói cách khác là “đẹp thì phô ra xấu xa thì đậy lại”. Bây giờ xu hướng xây nhà khác xưa nhiều rồi nhà cũng phải văn minh lên. Khi đó lối cho các bà các mẹ đi chợ là vào lối sau lối phụ vào bếp vào buồng phía sau để phòng khách tăng thêm tính văn minh lịch sự.
Vì nhà cấp 4 diện tích 100m2 đất không đủ lớn để cho gara vào trong nhà 1 tầng đẹp nên phương tiện của gia chủ như xe ô tô để bên ngoài sân do vậy các công năng như phòng bếp, 2 phòng ngủ và phòng khách mới có thể bố trí đầy đủ được. Có thể nói tuy nhìn có vẻ hơi bất tiện nhưng xe ô tô để ở ngoài và cũng có thể dùng vật dụng như bạt để che chắn đó cũng là một giải pháp cho nhà chật. Còn xe máy vẫn có thể tận dụng tối đưa vào để ở phòng khách và sáng bỏ ra cũng rất gọn ghẽ.
Kiến trúc sư dựa trên những nhu cầu thực tế chứ không tư vấn những gì quá xa vời mà chỉ đạt được cái “phiêu” của mình, mà phải đặt mình vào vị trí của chủ nhà khi sống trong ngôi nhà đó sẽ cảm thấy như thế nào là hợp lý và tư vấn cho khách để khách làm theo mình 2 bên cùng hợp tác vui vẻ và kết quả làm việc sẽ tốt hơn.
Tuy không gian tầng 1 nhà cấp 4 7x15m khá nhỏ nhưng có đầy đủ những tiện ích cơ bản cho một gia đình gồm 2 thế hệ nhờ cách bố trí nội thất hợp lý cũng như có những thiết bị nhỏ gọn được sản xuất riêng cho loại nhà này. Đơn cử trong không gian phòng khách 18.5m2 được thiết kế cũng vừa phải với một bộ bàn ghế sofa kích thước vừa đủ để kê được bàn uống nước và đôi cái ghế đôn đặt bên cạnh.
Phòng khách không trang trí gì nhiều gây bí bách rườm rà ngoài 2 bóng đèn trang trí để ở 2 bên ghế sofa đèn này để thắp sáng vào ban đêm với ánh sáng vàng ấm áp sẽ thắp lên cho căn phòng này một cảm giác ấm cúng, gần gũi mà ai đi đâu cũng nhớ về nó.
Chiếc tivi màn hình Led cũng làm tăng thêm độ tiện nghi cho mẫu nhà cấp 4 7x25m ở Thanh Hóa này thêm phần long trọng hay là mức tiện nghi vừa phải của gia đình ông Thuấn. Đó cũng là vật trang trí và cũng là 1 thứ tài sản đáng quý của gia đình, với những giây phút quây quần sum họp cả gia đình cùng xem chung 1 chương trình hay một bộ phim trên tivi. Thời buổi hiện nay để cả gia đình cùng sum họp quả là hơi khó đối với những người ở thành phố nhưng với những gia đình ở quê thì họ có thừa.
Đi sâu vào bên trong qua khu vực khoang thang là 2 phòng ngủ chính trong nhà cấp 4 7x15m gia chủ thiết kế cho 2 người con trong gia đình. 2 phòng ngủ được thiết kế hơi hạn chế phòng ngủ 1- 10m2; phòng ngủ 2- 9,5m2 với 2 đứa con nhỏ thì phòng 10m2 cũng đủ chúng nó chơi đùa thoải mái mà chỉ cần bố trí đầy đủ ánh sáng và trang thiết bị phục vụ cho việc học hành như bàn học, tủ quần áo và cả tivi cũng được trang bị phục vụ cho các chương trình thiếu nhi cho các con là đủ. Hai bên tường đều được thiết kế cửa sổ để thu đón ánh sáng bên ngoài vào căn phòng và giúp cho không khí lưu thông giúp cho trẻ phát triển khỏe mạnh hơn.
2 không gian ngủ này được thiết kế sẽ cùng sử dụng chung 1 phòng tắm và nhà vệ sinh ở cạnh khoang thang, có bố trí như vậy mới tiết kiệm được diện tích được.

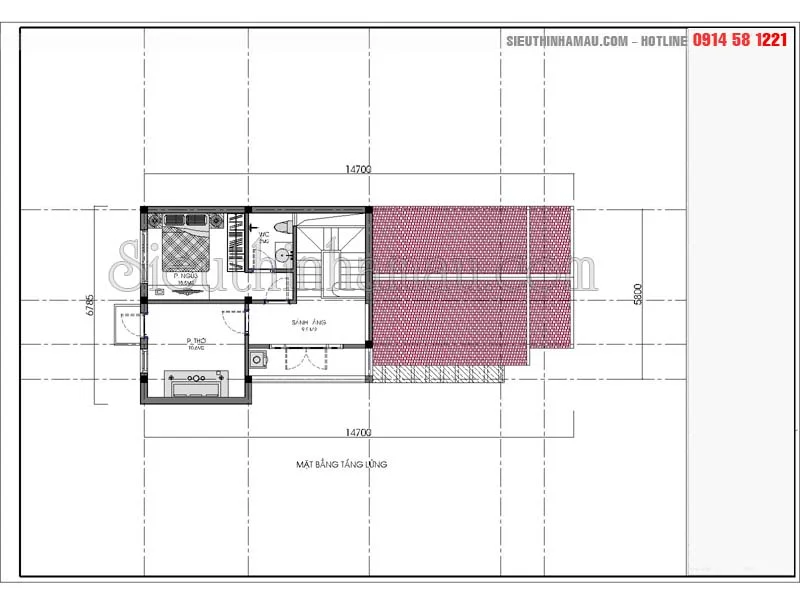
Mặt bằng tầng lửng mẫu nhà cấp 4 7x15m được thiết kế vừa vặn đẹp mắt
Thiết kế mẫu nhà cấp 4 7x15m được thiết kế với chức năng ở và nghỉ ngơi là chính
Điều đặc biệt trong ngôi nhà cấp 4 7x15m diện tích 100m2 này là không bố trí phòng bếp, bởi lý do gia đình có sẵn một nhà ăn ở phía bên ngoài nhà do đó trong bản vẽ thiết kế này chúng tôi không đề cập đến.
Khi thiết kế phòng ngủ trên tầng 2 thì không gian sẽ trở nên thoáng đãng và không bí bách như dưới tầng 1 do đó nó rất yên tĩnh và thảnh thơi. Xây nhà có gác lửng cấp 4 7x15m được gia chủ yêu cầu xây tầng để giải quyết nhu cầu ở cho gia đình, ở đây gia chủ sẽ bố trí một phòng ngủ và 1 phòng thờ và một sảnh tầng (hành lang) khá rộng để nghỉ chân cho gia chủ.
Một không gian phòng ngủ nữa, đây mới chính là không gian riêng tư của vợ chồng ông Thuấn phòng được thiết kế rộng rãi hơn so với 2 phòng ngủ dưới tầng 1 bởi gia chủ có thể đua ra 1 chút ít ở phía sau và bên hông nhà. Phòng ngủ 3 có diện tích 12.5m2 với diện tích này cũng vừa vặn được 1 chiếc giường đôi kê 1 cái tủ quần áo bên cạnh và 1 kệ ti vi đối diện giường ngủ vẫn còn diện tích để lưu thông đi lại cho căn phòng này.
Gia chủ nhà cấp 4 7x15m cần một khoảng không gian ấm cúng gần gũi chứ không cần rộng rãi để “trống trải” do đó ông Thuấn cảm thấy “hài lòng” với phương án thiết kế này. Không gian phòng ngủ trên tầng 2 lúc nào cũng đón được những con gió mát từ bên ngoài qua ô cửa sổ, gia chủ sẽ không cần phải bật điện vào những thời gian ban ngày giúp gia chủ tiết kiệm được điện năng hơn.
Việc thiết kế nhà cấp 4 7x15m được thiết kế như vậy nhằm tiết kiệm được chi phí cũng như diện tích. Nhìn chung đối với các mẫu thiết kế nhà có kích thước mặt tiền 7m cũng đều đem đến được sự ưng ý cho khách hàng vì đa số những nhà có diện tích hẹp và không thể xử lý phương án nào khác cho gia chủ cả. Đối với mẫu nhà cấp 4 7x15m đem đến cho người nhìn cảm giác được chia thành 2 phần với được
Phòng thờ nhà cấp 4 7x15m có diện tích 10.5m2 được bố trí sát phòng ngủ 3 đây cũng chính là không gian linh thiêng nhất
Để có thêm thông tin về những mẫu nhà cấp 4 7x15m của chúng tôi mời bạn liên hệ qua Hotline: 0914581221 bạn sẽ được các kiến trúc sư tư vấn hoàn toàn miễn phí.
Trân Trọng!




Đánh giá
Chưa có đánh giá nào.