Mô tả
- Mã Sản PhẩmBT311077
- Phong CáchHiện Đại
- Mặt Tiền10m
- Chiều Sâu17m (cả sảnh: 18.5m)
- Diện Tích120m2
- Kinh Phí Đầu TưKhoảng 800 triệu đồng
- Kích Thước Đất32x20m
- Phương Án MóngMóng Băng
- Cấu Tạo MáiVì Kèo
- Lát SànT1: Gạch
- Chất Liệu CửaCửa chính, Thông phòng gỗ, Kính
- Trần GiảThạch Cao
- Phòng Khách23m2
- Sảnh chính9m2
- Phòng Ngủphòng ngủ 1 : 15m2 phòng ngủ 2 : 15m2, phòng ngủ 3: 15m2.
- Phòng ThờPhòng thờ kết hợp phòng khách: 23m2
- Phòng bếp ăn19m2
- Quy cách hồ sơKhổ A3, khoảng 100 trang

Thiết kế nhà vườn 1 tầng diện tích 120m2
Bài toán môi trường cư trú không chỉ mới đặt ra hiện nay, mà đã từ thế kỷ trước, khi xu hướng đô thị hóa hình thành nên những dòng lao động nhập cư dịch chuyển thiếu cân đối về tài nguyên, năng lượng, với vô số áp lực của đời sống xã hội mà những con số tăng trưởng kinh tế không miêu tả được. Để rồi cũng như lẽ tất yếu tiếp theo, stress từ áp lực đời sống, công việc và không khí ngột ngạt của đô thị mà cũng có rất nhiều người trẻ khác hình thành nên dòng chảy ngược “về quê” như dạng “phản đề” của nhóm người đang mải miết “ra phố”. Về quê hôm nay nhiều dạng nhiều kiểu, người tìm chốn thư nhàn, kẻ kết hợp khai thác làm ăn, bởi nông thôn vẫn đang rất cần nhiều sức lao động và trí tuệ, với nhiều lợi thế và không ít khó khăn chờ sẵn.
Nhưng đèn thành phố hàng đêm vẫn sáng, vẫn cầm chân bao triệu người trong cái chật hẹp của đất đai khan hiếm, của huyên náo phố phường. Người trên chung cư nhưng tâm trí thèm nhớ được trôi vào dòng sông thơ ấu. Kẻ tắm dưới vòi sen có thể chợt mơ thuở tắm giữa bình minh ven biển. Hay ai dắt con dạo phố có lúc mong mỏi hít thở chút hương đồng gió nội quê nhà… Muôn kiểu nhớ quê dù chẳng nói ra thì chắc ai cũng hiểu, nhất là khi đại dịch Covid 19 tràn đến khắp toàn cầu, và ngôi nhà thành nơi nương náu sau cùng, người “kẹt” trong phố càng thấm hơn nỗi nhớ mênh mang những góc quê chân chất trong lành. Không dễ từ bỏ tiến trình lập nghiệp nơi phố thị, thôi thì ráng thay đổi để sống tốt hơn. Chở quê vào phố, có thể lắm chứ!

Quê chính là nhà diện tích 120m2 ở quê
Thiết kế nhà vườn 1 tầng phong cách truyền thống với màu sắc đỏ của mái ngói
Cùng ngắm nhìn mẫu thiết kế nhà vườn 1 tầng được phối với gam màu sắc khá trầm nhưng rất ấm áp và sạch sẽ. Việc sử dụng màu tối trong cả thân tường cũng như chân tường tạo nên một vẻ đẹp thiên về chất
Căn hộ hiện đại ở thành phố có thể là nơi cất dấu nỗi nhớ đất đai, làng mạc bằng những chi tiết nhưng gợi nhớ rất nhiều. Tấm ván gỗ nơi góc phòng khách để thoải mái co chân rút cẳng xếp bằng lai rai chuyện xưa tích cũ với vài người bạn dạng “khách ở quê ra”. Hay bộ bàn với dáng chân xoãi nghiêng giản đơn làm chỗ ăn cho gia đình, thêm băng ghế dài đồng điệu gợi nhớ phiên chợ quê mùa. Tất nhiên sơ sơ mấy kiểu bàn ghế chưa thể nói gì nhiều, và nếu chọn gỗ khối thì khác chi tiếp tay kẻ phá rừng, cho nên góc gợi hồn quê nơi phố thị chắc chắn không đồng nghĩa với lạm dụng gỗ tự nhiên, đồ giả cổ, mà phải theo đúng tiêu chí tiện dụng mà không quên sinh thái, môi trường trong sử dụng chất liệu, cũng như tiện gọn phù hợp với điều kiện căn hộ tầng cao.
Cũng bởi “về quê” không đơn giản là làm ngôi nhà nơi thành phố như một bản sao “vá lỗi” nhằm tăng thêm chất quê mùa mộc mạc. Thực ra câu chuyện hồn quê này không riêng gì Việt Nam ưu tư, mà mọi nước đang phát triển đều gặp phải và khắc khoải kiếm tìm. Để được hương đồng gió nội vào nơi sống hiện đại trong lòng phố thị, ắt phải nhìn vấn đề bao quát từ chung đến riêng, từ bên ngoài, bao quanh nhà đến chi tiết nội thất, phong cách sống riêng tư. Về quê khi đó chính là trở về các giá trị cơ bản mà chính các đô thị ấy cách đây chưa lâu vẫn còn gìn giữ được, hoặc nay bị nhạt phai ít nhiều, cần khôi phục, trả lại.

Quê là mảng xanh trong phố
Nhà trên phố san sát bê tông hóa, hòa chung với vấn nạn biến đổi khí hậu khiến hầu như biệt thự hay nhà phố, chung cư cũ hay căn hộ tầng cao đều phải lắp máy điều hòa. Do không thể đảo ngược tiến trình đô thị hóa đi cùng bê tông hóa này, nên các mảng xanh, các thiết kế chú trọng đến quân bình của các khối đặc rỗng để hướng gió, hướng mặt trời, chú trọng đến các đặc tính của nguyên vật liệu xây dựng thì có thể giải nhiệt một cách tự nhiên cho nhà phố và các công trình đô thị.
Mảng xanh trong phố, dù quá cổ súy cho việc trồng cây lên mái gây nhiều tranh cãi về chuyên môn, hay thư thả điểm xuyết vài bồn hoa, góc vườn nho nhỏ, thì vẫn là “một màu xanh xanh”. Dĩ nhiên để màu xanh xanh ấy đích xác là màu gì, thế nào, ra sao, phù hợp với ai, cho ai… thì không thể nói ngay trong vài dòng quy định, hay thông qua mấy ngôi nhà đạt giải thưởng mà kết luận vội vàng. Nhưng không thể phủ nhận vai trò của cây xanh khi được chọn lọc hợp lý và sử dụng khéo léo, kinh tế, đúng kỹ thuật… nhằm nâng cao chất lượng môi trường sống. Khi nhìn cây xanh trong mối quan hệ đồng bộ với bản thân khối dáng kiến trúc, vị trí và phương hướng, tầng cao và mức độ nắng gió… thì sẽ nhận ra cây gì phù hợp, kiểu gì bất cập. Cây cũng như người, không ai giống ai, và không thể nhìn cục bộ hay tôn vinh thuần túy cây xanh mà bỏ qua yếu tố cảnh quan tự nhiên như dòng sông, kênh rạch, bến bờ… vốn là nền tảng làm nên điều kiện cư trú đặc thù của cư dân đất Việt.

Tổng mặt bằng nhà 1 tầng với nhiều cây xanh
Cây xanh luôn là một yếu tố cần thiết để tạo nên 1 ngôi nhà vườn
Tinh thần cơ bản của nếp nhà truyền thống, nhà vườn Việt là sự tao nhã và gần gũi, chứ không nằm ở chỗ phô trương cây cối quý hiếm hay tạo hình tạo dáng cầu kỳ.
Ngoài ra, cũng nên lưu ý đến tính thời điểm, bởi xứ mình cành sắc thay đổi theo mùa, hoặc các ngày lễ tết đều khác nhau về nghi thức, nên thay đổi tiểu cảnh, tìm cách sắp xếp khác để đem lại sinh khí mới cho ngôi nhà.
Cách quy hoạch và bố trí không gian của các kiến trúc sư giúp ngôi nhà trở nên khoa học và hiệu quả. Việc không thuê đơn vị tư vấn thiết kế sẽ không nắm bắt được xu hướng hay nhu cầu trước mắt cũng như định hình được diện tích đất còn lại sẽ sử dụng vào mục đích gì gây ra sự dàn trải và không đồng bộ gây ra sự lãng phí và sửa chữa gây mất mỹ quan.

Thiết kế mặt bằng nhà vườn 1 tầng
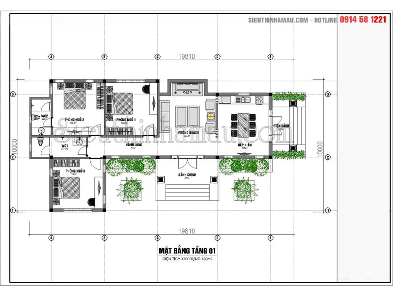
Mặt bằng tầng 1 được thiết kế với các nhu cầu cần thiết như phòng khách + thờ, 3 phòng ngủ, phòng bếp+ ăn. Với cách thiết kế kết hợp như phòng khách + thờ là một ví dụ điển hình cho sự kết hợp ăn ý và hoàn hảo bởi không gian phòng thờ thường phải đặt nơi yên tĩnh, sạch sẽ và trang nghiêm. Không gian phòng thờ cần tránh ở những khu vực ồn ào hay khu vực đông đúc qua lại. Vì vậy việc bố trí phòng khách với phòng thờ rất lich sự, trang trọng và rất ấm cúng. Gia chủ cũng dễ bề chăm sóc lau dọn ban thờ khi có dịp lễ tết hay những hoa quả quà cáp có thể đặt lên ban thờ cúng bái trước như vậy cảm giác vô cùng tiện.
Được thiết kế với không gian linh hoạt với các không gian được thiết kế với những không gian mở có kết nối với nhau
Ở Việt Nam chúng ta có nét đẹp mang tính Á Đông, đó là nhiều thế hệ chung sống cùng trong một mái nhà. Do vậy việc thiết kế không gian kết nối giữa với nhau trong ngôi nhà chung sống nhiều thế hệ ông bà, bố mẹ con cháu cần phải được thể hiện rõ nét nhất.
Yếu tố quan trọng nhất có thể kể đến là không gian công năng sử dụng phải linh hoạt để đáp ứng yêu cầu khác nhau các thế hệ. Ví dụ không gian phòng khách và bếp của nhà nhiều thế hệ thì sử dụng sẽ khác; chẳng hạn khi cần riêng tư phải đảm bảo riêng tư, khi cần chan hòa tất cả mọi người trong gia đình hay họ hàng đến thăm thì vẫn liên thông và chan hòa. Có thể sử dụng những giải pháp như vách ngăn di động, ngăn ước lệ; sử dụng công nghệ mới trong nội ngoại thất như giao thông đứng có thể sử dụng thang máy để kết nối các tầng trên-dưới giúp ông bà và con cháu kết nối với nhau dễ dàng. Nên kết hợp với các khoảng thông tầng, giếng trời kế bên các không gian chung như thư phòng, phòng làm việc, phòng sinh hoạt chung, phòng chơi trẻ em…; bố trí xen kẽ linh hoạt ngăn chia ước lệ cùng với không gian phòng ngủ để tạo các mối liên hệ “xa-gần” trong nội thất, giúp tạo ra hoạt động ấm cúng tương tác lẫn nhau trong gia đình.
Một số yếu tố khác cần lưu ý: không gian tâm linh thờ cúng gia tiên là một điểm nhấn trong nhà nhiều thế hệ, là nơi nêu cao truyền thống gia đình, thờ phụng tổ tiên, khi có công việc giỗ, tết thì làm nơi sinh hoạt cho con cháu tưởng nhớ ông bà tổ tiên (nhà phố rất cần những không gian như thế này nhưng thường không bố trí được). Vật liệu và chất liệu sử dụng trong nội thất thân thiện với người già và trẻ em.
Mọi chi tiết xin liên hệ Hotline: 0914 581221
Chúng tôi chuyên cung cấp các hồ sơ đã thiết kế với giá rẻ chỉ bằng 1/2 so với chi phí hồ sơ thiết kế mới.
Đánh giá
Chưa có đánh giá nào.