Bạn và gia đình mong chờ điều gì ở các kiến trúc sư khi thiết kế nhà biệt thự 2 tầng mái bằng đẹp? Để có thể xây dựng được một mẫu nhà vừa đẹp về hình khối kiến trúc và phù hợp nhu cầu sử dụng của gia đình thì những điểm gì đáng lưu ý nhất.
Mời quý vị và các bạn cùng chúng tôi cùng tìm hiểu qua bài viết này nhé hy vọng sẽ phần nào giúp ích cho các bạn trước khi xây một ngôi nhà mới.
Đôi điều về nhà biệt thự 2 tầng mái bằng

Thiết kế nhà 2 tầng mái bằng hiện đại đẹp
Kiến trúc nhà đẹp 2 tầng mái bằng đẹp hiện đại về mặt hình khối cũng giống như những mẫu nhà 2 tầng khác như nhà 2 tầng mái dốc, nhà 2 tầng mái thái… tuy nhiên kết cấu thi công và chất liệu mái lại khác nhau, do đó dấn đến những ưu điểm khác nhau.
Thiết kế nhà 2 tầng mái bằng hiện đại chính là những mẫu nhà có mái được đổ bê tông cốt thép trên tầng mái hay còn gọi là tầng thượng, mẫu mái này đã có từ rất lâu trong kiến trúc tại Việt Nam, và cho đến nay vẫn được ưa chuộng. Với sự phát triển và đi lên của kiến trúc đương đại, kiến trúc sư đã sáng tạo và thiết kế ra những mẫu nhà biệt thự 2 tầng mái bằng phá cách trong việc thiết kế mái bằng cho ngôi nhà.
Sự biến tướng này mang đậm dấu ấn tích cực, nhiều tính thẩm mỹ, hiện đại, đáp ứng nhu cầu thị hiếu ngày càng cao của cuộc sống hiện đại. Hàng loạt những mẫu nhà mái bằng phá cách như nhà 2 tầng mái lệch, nhà 2 tầng 1 tum, nhà 2 tầng mái chéo…. đã thực sự đưa kiến trúc Việt Nam sánh ngang tầm với thiết kế kiến trúc nước ngoài.
Chất liệu kính được sử dụng khá nhiều phía ngoài mặt tiền ngôi nhà. Toàn bộ hệ thống cửa ra vào cũng như cửa sổ của ngôi nhà đều sử dụng cửa kính mang lại không gian mở với sự sang trọng, tinh tế.
Bản vẽ thiết kế nhà biệt thự 2 tầng mái bằng được thiết kế với những đường nét sắc sảo và vuông vức. Cách sử dụng màu sắc tinh tế và các chất liệu trang trí đơn giản giúp cho không gian tổng thể của ngôi nhà nét khỏe khoắn tạo cảm giác bền vững của khối kiến trúc hiện đại.
Thông thường gia chủ sẽ phải xây phần mái ngói thay vào đó nhà mái bằng sẽ không phải mất chi phí xây phần mái đẹp được thiết kế với những kiến trúc đẹp. Thiết kế nhà biệt thự 2 tầng mái bằng đẹp được thiết kế nhà 2 tầng được thiết kế với những kiến trúc đẹp mắt đem đến sự thiết kế với những kiến trúc đẹp và được thiết kế
Thiết kế nhà 2 tầng mái bằng có những ưu điểm sau:
Xây nhà 2 tầng mái bằng đem đến tính thẩm mỹ cao
Không thể phủ nhận một điều rắng nếu như những mẫu nhà 2 tầng mái thái đem đến cho ngôi nhà sự bề thế, sang trọng thì những mẫu thiết kế nhà biệt thự 2 tầng mái bằng hiện đại (nhà phố) lại đem đến cho chúng ta cảm giác về sự đơn giản, thanh lịch, trang nhã và cực kỳ hiện đại. Chính những ưu điểm này đã và đang làm nên kiến trúc tinh tế cũng như sang trọng của những mẫu nhà 2 tầng mái bằng, nhất là những mẫu nhà ống 2 tầng mái bằng ở phố thị hiện nay. Một hiệu ứng kiến trúc lan truyền với quy mô rộng đang diễn ra và hứa hẹn sự bứt phá hơn nữa trong tương lai không xa.
Xây nhà 2 tầng mái bằng sẽ chắc chắn về mặt kết cấu

Kết cấu nhà 2 tầng mái bằng rất chắc chắn
Vì được cấu tạo bởi bê tông cốt thép nên mẫu bằng có kết cấu kiên cố, vững chắc nhất trong những mẫu mái hiện nay. Cũng bởi kết cấu chắc, nặng này do đó những mẫu nhà 2 tầng mái bằng thường được thiết kế kết cấu móng bền chắc để có thể chịu tải trọng của mái bê tông cốt thép.
An toàn về mặt chống mưa gió và giông bão
Thiết kế nhà biệt thự 2 tầng mái bằng là kiểu nhà được xây dựng và thiết kế mái theo kiểu đổ bằng bê tông. Kiểu mái nhà này thường được áp dụng trong những ngôi nhà mặt phố hiện đại hoặc một số nhà gia đình ở quê cũng sử dụng nhiều nhà mái bằng để giảm chi phí, sang trọng và cao cấp, toát lên vẻ đẹp hiện đại và thời thượng cho căn nhà.
Việt Nam là đất nước có tính chất khí hậu nhiệt đới gió mùa, mưa nhiều nắng lắm. Hàng năm ít nhất phải có chục cơn bão đi qua đất nước, thiên tai theo đó cũng khá nhiều. Trước nguy cơ mưa bão như hiện nay thì mẫu thi nhà 2 tầng mái bằng với kết cấu kiên cố, bền chắc, lại được thiết kế theo mặt sàn bằng phẳng, do đó sẽ tránh được nguy cơ bị gió bão tác động như những mẫu nhà mái thái, mái ngói. Chinh vì lý do này mà những gia đình thường xuyên nằm trong vùng thiên tai, luôn chọn cho mình mẫu nhà mái bằng để có thể chuẩn bị tốt nhất chống lại thiên nhiên khắc nghiệt.
Nếu gia đình tạm thời chưa có điều kiện, mà số lượng thành viên trong gia đình nhiều, nhu cầu sử dụng các phòng chức năng trong mẫu thiết kế nhà biệt thự 2 tầng mái bằng chưa đủ. Tuy nhiên vì điều kiện hiện tại bạn chỉ có thể xây được nhà 2 tầng, sau này có điều kiện bạn sẽ mở thêm lên thành 3 tầng, 4 tầng, 5 tầng… để đáp ứng thoải mái như cầu sử dụng cảu gia đình thì mẫu nhà 2 tầng sẽ là một dự án thi công hoàn thiện ở chế độ “chờ” cực kỳ hợp lý và khoa học cho bạn trong điều kiện muốn mở rộng không gian theo chiều cao.
Tuy nhiên để sau này có thế mở thêm tầng cho mẫu nhà 2 tầng thì bạn cần phải lưu ý:
+ Để thép chờ trên tầng thượng, để sau này quá trình thi công khoan cấy thép, mở rộng không gian và gia cố kết cấu công trình được thuận tiện và đảm bảo nhất.
+ Không được bít hố thang, vì sau nay sẽ mở rộng thêm tầng nên tạm thời bạn không được bít hố thang thông tầng.
+ Kết cấu móng phải được xây dựng bền chắc ngay từ đầu để đảm bảo chịu được tải trọng của nhà cao tầng sau này, điều này là vô cùng quan trọng nếu như bạn muốn xây dựng nhà cao tầng
Đối với những ngôi nhà truyền thống thì phần đỉnh mái nhà phải kéo từ đông sang tây. Còn hiện nay, thiết kế nhà biệt thự 2 tầng mái bằng đẹp hiện đại không còn phải mất thêm chi phí tốn tiền làm vì kèo hay lợp thêm ngói nữa.
Nếu như tầng mái của nhà mái ngói, mái tôn bạn không thể tận dụng để phục vụ sinh hoạt thì với những thiết kế nhà 2 tầng mái bằng bạn có thể sử dụng vào nhiều mục đích khác nhau như: để téc nước sinh hoạt, làm sân phơi, làm sân chơi, làm vườn trồng rau, hoa, cây cảnh….
Một số lưu ý khi xây nhà 2 tầng mái bằng
Thứ nhất: Kinh phí xây nhà 2 tầng mái bằng

Kinh phí xây nhà 2 tầng đẹp
Muốn xây dựng hay đầu tư trước hết phải có kinh phí. Muốn xây nhà mới, bạn phải dự trù được hiện mình có bao nhiêu kinh phí? Với số kinh phí như vậy thì đã đủ để hoàn thiện mẫu nhà hay chưa? Có cần huy động thêm vốn hay không? Mẫu nhà nào sẽ phù hợp với số tiền đầu tư hiện nay của gia đình bạn? Giải quyết những câu hỏi này xong, chính là bạn đang tự làm dự toán đầu tư cho ngôi nhà của chính mình.
Đối với nhà 2 tầng mái bằng phong cách hiện đại: đơn giá xây dựng hoàn thiện khoảng 5 triệu/m2 chưa kể nội thất
+ Đối với phong cách tân cổ điển kiểu Pháp: đơn giá xây dựng hoàn thiện khoảng 6 – 7 triệu/m2 tùy vào mức độ phức tạp và cách trang trí của mỗi công trình, hơn nữa vật liệu sử dụng cho kiến trúc tân cổ điển cũng cao cấp hơn.
Theo địa điểm và khu vực xây dựng thì giá nhân công và vật liệu cũng khác nhau, ví dụ như ngôi nhà xây dựng ở vùng nông thôn thì chi phí sẽ rẻ hơn là vùng thành phố hay đô thị.
Theo địa điểm và khu vực xây dựng thì giá nhân công và vật liệu cũng khác nhau, ví dụ như ngôi nhà xây dựng ở vùng nông thôn thì chi phí sẽ rẻ hơn là vùng thành phố hay đô thị.
Xét về chất lượng vật liệu đa số nhà 2 tầng mái bằng đều sử dụng chất liệu kính là chủ yếu hoặc sử dụng bê tông đơn giản và những vật liệu sử dụng sẽ quyết định rất lớn đến chi phí xây dựng.
Thứ hai: lựa chọn được những mẫu nhà phù hợp với nhu cầu sử dụng

Kiến trúc kiểu nhà 2 tầng mái bằng đẹp
Khi thiết kế nhà biệt thự 2 tầng mái bằng phù hợp với nhu cầu là điều vô cùng cần thiết và quan trọng. Với mức kinh phí từ 15 đến 20 triệu, bạn có thể sở hữu được mẫu nhà với thiết kế kiến trúc hoàn hảo và công năng sắp xếp khoa học, tối ưu trong tầm tay.
Còn nếu như gia đình bạn không có điều kiện, bạn muốn tiết kiệm chi phí thiết kế thi công, do đó bạn muốn tự mình làm mọi việc thì cũng không có vấn đề gì. Bạn chỉ cần chú ý và nhớ là chỉ nên chọn những mẫu thiết kế đơn giản, không cầu kỳ, không quá đồ sộ, phù hợp với số tiền đầu tư dự định là được. Hoặc bạn nên tham khảo những mẫu nhà thực tế của bạn bè, người thân đã xây dựng trước đó để có dự toán chính xác và thực tế hơn cho mẫu thiết kế nhà biệt thự 2 tầng mái bằng của gia đình một cách thuận lợi nhất.
Một phương án thứ 2 gia chủ có thể mua lại bộ hồ sơ thiết kế nhà biệt thự 2 tầng đã có sẵn do công ty thiết kế chi tiết đầy đủ với đơn giá chỉ bằng 50% so với đơn giá thiết kế mới.
Thứ 3: lựa chọn phương án thi công
Để thi công xây dựng chỉ có 2 phương án, một là bạn tự thi công tự mua nguyên vật liệu, rồi thuê nhân công xây dựng hoàn thiện theo thiết kế. Hai là bạn khoán thầu cho một đơn vì nào đó, có thể bạn tự lo nguyên vật tư hoặc đơn vị nhà thầu sẽ lo chọn gói cho bạn.
Theo những chuyên gia xây dựng cũng như kinh nghiệm của nhiều chủ nhà thì bạn nên lựa chọn gói xây dựng trọn gói của các công ty xây dựng uy tín, bởi họ là những người có nhiều chuyên môn và có thể cung cấp cho bạn gói dịch vụ chất lượng, điều bạn cần làm chỉ là tìm được một đơn vị uy tín có tầm và có tâm với nghề.
Tham khảo mẫu thiết kế nhà 2 tầng do siêu thị nhà mẫu thiết kế
Mẫu số 1: Bản vẽ thiết kế nhà 2 tầng mái bằng đẹp diện tích 115m2
-
Mã Sản Phẩm
BT951077
-
Số Tầng
2.5 tầng
-
Phong Cách
Nhà biệt thự phong cách hiện đại
-
Chiều Cao Tầng
Trống
-
Mặt Tiền
15m
-
Chiều Sâu
11m
-
Diện Tích
115m2
-
Kinh Phí Đầu Tư
Khoảng 1.6- 1.7 tỷ
-
Kích Thước Đất
800m2
-
Phương Án Móng
Móng Cọc
-
Cấu Tạo Mái
Mái bằng
-
Cấu Tạo Thang
Tay vịn gỗ, mặt gỗ, cổ đá
-
Lát Sàn
T1: Gạch, T2: Gạch, T2.5: Gạch
-
Chất Liệu Cửa
Cửa chính, Thông phòng gỗ, Kính
-
Phòng Khách
26m2
-
Phòng SHC
26m2
-
Phòng Ngủ
N1: 17.5m2, N2: 15m2, N3:17.5m2, N4: 15m2, N5:17.5m2,
-
Phòng Thờ
16m2
-
Phòng Vệ Sinh
wc1:4.2m2, wc2:3.5m2, wc3:3.5m2, wc4: 4.5m2,
-
Gara ô tô
18m2
-
Phòng khác
Phòng bếp + ăn: 16m2
-
Quy cách hồ sơ
Khổ A3, khoảng 150 trang

Thiết kế biệt thự 2.5 tầng mái bằng đẹp hiện đại

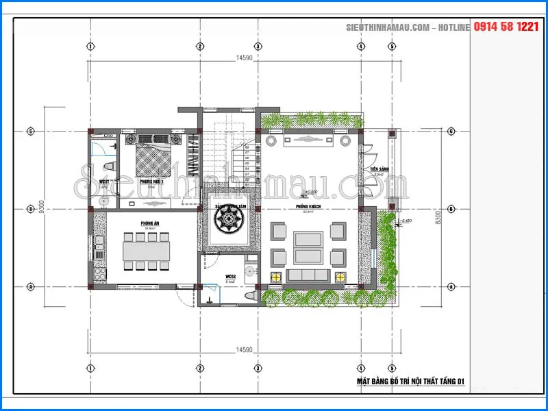
Thiết kế tầng 1 biệt thự mái bằng 2.5 tầng hiện đại

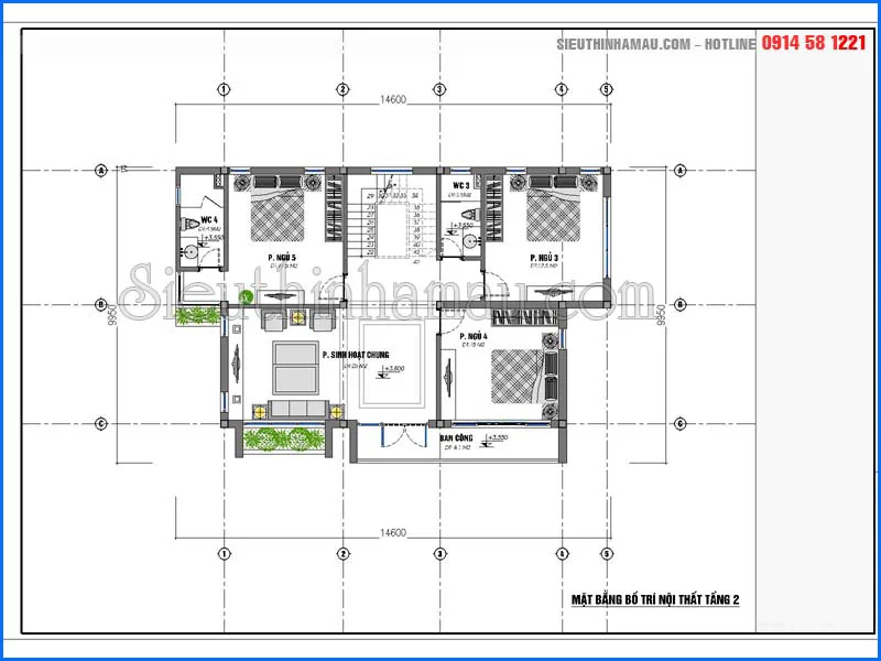
Mặt bằng tầng 2 biệt thự 2.5 tầng mái bằng hiện đại

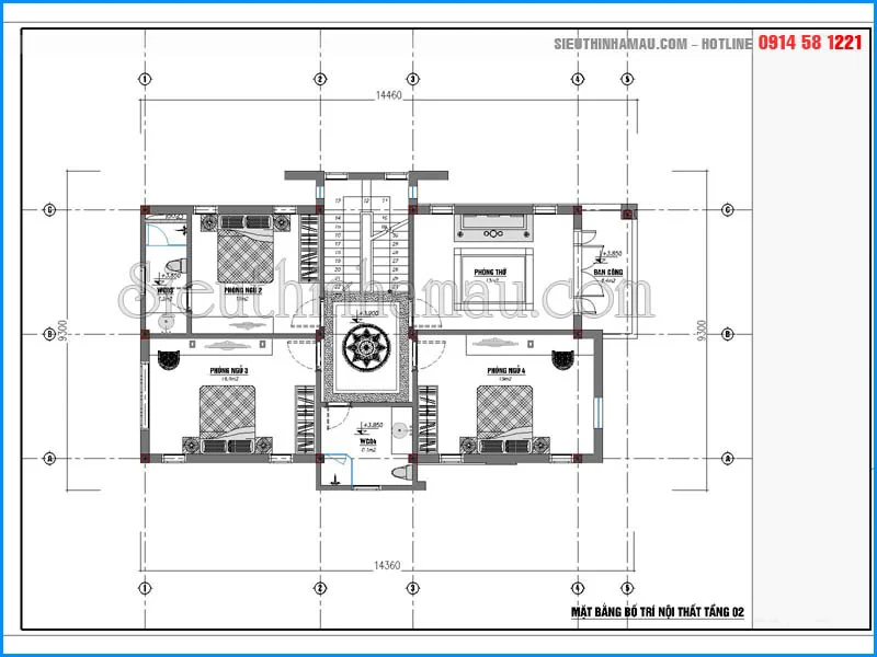
Mặt bằng biệt thự 2.5 tầng mái bằng hiện đại nội thất tầng tum
Mặt bằng tầng tum nhà 2 tầng hiện đại được thiết kế rất nhiều cây xanh và việc tận dụng làm sân chơi, sân phơi và vô cùng thoáng đãng và đón được ánh nắng cảm giác rộng rãi và khoảng sân được thiết kế để làm sân chơi cho gia đình mỗi khi có việc. Ngày nay việc ăn uống tụ tập thường được nhiều gia chủ lựa chọn ăn uống trên sân thượng vào buổi tối vừa mát mẻ, rộng rãi vừa làm tiện.
Không gian bên trong các kiến trúc sư thiết kế 1 phòng thờ để tiện việc cúng bái và một không gian kín đáo linh thiêng để đền đáp với tổ tiên không gian tâm linh vừa trang trọng vừa hiện đại.
Mẫu số 2: Thiết kế nhà biệt thự 2.5 tầng mái bằng đẹp
-
Mã Sản Phẩm
Mẫu biệt thự BT451077
-
Số Tầng
Biệt thự 2.5 tầng
-
Phong Cách
Biệt thự hiện đại
-
Chiều Cao Tầng
Trống
-
Mặt Tiền
9m
-
Chiều Sâu
14m
-
Diện Tích
100m2
-
Kinh Phí Đầu Tư
Khoảng 1.2 tỷ đồng
-
Kích Thước Đất
504m2
-
Phương Án Móng
Móng Cọc
-
Cấu Tạo Mái
Mái bằng
-
Cấu Tạo Thang
Tay vịn gỗ, mặt gỗ, cổ đá
-
Lát Sàn
T1: Gạch, T2: Gạch, T2.5: Gạch
-
Chất Liệu Cửa
Cửa chính, Thông phòng gỗ, Kính
-
Trần Giả
Trống
-
Phòng Khách
34m2
-
Phòng SHC
Không có phòng SHC
-
Phòng Ngủ
N1: 13m2, N2: 13m2, N3: 16m2, N4: 18m2
-
Phòng Thờ
13m2
-
Phòng Vệ Sinh
wc1: 4m2, wc2: 4m2, wc3: 4m2
-
Gara ô tô
Không có gara ô tô trong nhà
-
Phòng khác
Phòng ăn: 16.5m2
-
Quy cách hồ sơ
Khổ A3, khoảng 100 trang

Phối cảnh tổng thể nhà biệt thự hiện đại 2 mặt tiền mái bằng

Tầng 1 mẫu nhà 2 tầng mái bằng đẹp 2 mặt tiền

Tầng 2 mẫu thiết kế nhà 2 tầng mái bằng hiện đại 2 mặt tiền
Tổng kết: thiết kế nhà biệt thự 2 tầng mái bằng đẹp
Nhà 2 tầng mái bằng có những ưu và nhược điểm như sau.
-Ưu điểm
Kiến trúc gọn gàng, tiết kiệm diện tích đất xây dựng nhưng vẫn đảm bảo được không gian sinh hoạt thoải mái
Phần mái đổ bằng bê tông giúp căn nhà thêm vững chắc, có thể chống nắng, chống dột. Mặt sàn mái có thể làm sân phơi, vườn xanh, tiểu cảnh
Chịu áp lực của gió bão ít, kết cấu bền chắc, khả năng chống cháy cao.
Khả năng chống cháy cao
Toát lên vẻ đẹp trẻ trung, hiện đại, khỏe khoắn
-Nhược điểm nhà 2 tầng mái bằng
Nóng do lớp bê tông, lớp hồ dầu quét để chống thấm không đủ để tỏa nhiệt và cách nhiệt
Có thể bị thấm nước, tạo thành những vệt nước hay màu ố dưới trần
Kết cấu khá nặng
Theo như các kiến trúc sư đưa ra tư vấn thì việc xây các mẫu nhà 2 tầng mái bằng là những mẫu thiết kế đáp ứng được yêu cầu của đa số khách hàng về tính thẩm mỹ, kết cấu chịu lực cũng như chi phí xây dựng khá là rẻ. Hy vọng bài viết trên đã đem đến cho bạn những thông tin vô cùng quan trọng cùng những mẫu thiết kế đẹp nhất để bạn có thể dễ dàng sở hữu nhà 2 tầng mái bằng đẹp, độc đáo nhất.
Để biết thêm công năng nhà biệt thự 2 tầng mái bằng đẹp có thể tham khảo thêm nhà 1 trệt 1 lầu 3 phòng ngủ
Mọi chi tiết vui lòng liên hệ Hotline: 0914 58 1221



