Thiết kế nhà 2.5 tầng đẹp hay cách gọi khác là nhà 2 tầng rưỡi đem đến cho các gia chủ muốn tận dụng được chiều cao nhà và bố trí không gian phòng ở để đảm bảo được số lượng phòng ngủ sinh hoạt.
Thông thường để xây dựng các nhà ở thành thành thị khi xây dựng cần phải có giấy phép của sở ban ngành và một số khó khăn lớn nhất của các gia đình muốn xây cao tầng là sở sẽ hạn chế chiều cao tầng. Do vậy nhiều gia đình cũng rất cân nhắc.

Thiết kế nhà 2 tầng 1 tum đẹp
Vậy làm sao để lựa chọn phương án tối ưu cho gia đình mình đó chính là “biến hóa” nhà 3 tầng thành 2.5 tầng tức là: nếu giấy phép xây dựng không cho xây 3 tầng thì mình có thể “lách luật” bằng cách làm tum và tum này chỉ được xây 50% hoặc chỉ làm không được phép làm phòng để ở mà chỉ có chức năng như 1 cái kho, để bểnướ hoặc phòng thờ.
Thiết kế nhà 2.5 tầng đẹp rất thiết thực bởi một số gia đình rất cần tum thay vì làm mái bằng sẽ làm được. Vì nhà có thể tận dụng phần tum để làm kho chứa đồ, lỗ thăm lên mái hay có chỗ để phơi đồ rất tiện.
Thiết kế nhà 2.5 tầng có gì khác biệt với các mẫu nhà khác
Nói về thiết kế nhà 2.5 tầng đẹp thì chiều cao tầng cũng thường cho các gia đình có diện tích vừa phải thậm chí nhà có diện tích nhỏ như nhà phố sẽ tận dụng chiều cao để xây nhà phù hợp với số lượng thành viên của gia đình mình.
Chiều cao nhà cũng là một lợi thế bởi nó có góc view đẹp hơn so với các nhà thấp tầng, hầu như nhà cao tầng được nhiều người cho rằng nó thoáng và dễ chịu hơn bởi tầm không bị che khuất. Thiết kế nhà 2.5 tầng đẹp thực tế là tầng cuối cùng của ngôi nhà. Phần này thường được sử dụng như phần che chắn trong cầu thang.
Chi phí xây dựng nhà 2.5 tầng hết bao nhiêu
Điều làm nhiều gia chủ quan tâm đó là chi phí xây dựng
Diện tích móng (= 1/2 tổng): 50m2
Diện tích tầng trệt (= tổng): 100m2
Diện tích tầng lầu (= tổng): 100m2
Mái tùy vào từng loại mái, mái ngói hay mái tôn sẽ có mức chi phí khác nhau. Trong bài viết này lấy trung bình là 50%: 50m2
Đơn giá xây dựng phần thô: 2.800.000 đến 3.200.000 (VNĐ/m2)
Đơn giá xây dựng trọn gói: 4.000.000 đến 5.000.000 (VNĐ/m2)
Chi phí nhân công không có bao gồm vật tư: 800.000 (VNĐ/m2)
Chi phí nhân công trọn gói bao gồm vật tư dao động từ: 3.800.000 đến 4.200.000 (VNĐ/m2)
Lưu ý: Mỗi nhà thầu và từng loại công trình sử dụng vật liệu xây dựng sẽ có mức đơn giá khác nhau. Và mức chi phí này các gia chủ có thể thương lượng được.
Chi phí xây dựng phần thô: (50m2 + 100m2 + 100m2 + 50m2) x 2.800.000 = 840.000.000 (VNĐ)
Chi phí xây dựng trọn gói: (50m2 + 100m2 + 100m2 + 50m2) x 4.000.000 = 1.200.000.000 (VNĐ)
Qúy khách lưu ý: tùy thuộc vào thời giá vật tư và loại vật tư có cao cấp hay không mà đơn giá sẽ có phần thay đổi và đơn giá này chỉ mang tính chất tham khảo. Xem thêm bộ sưu tập biệt thự 2.5 tầng đẹp được thiết kế với những kiến trúc vô cùng độc đáo.
Tham khảo các mẫu thiết kế nhà biệt thự 2.5 tầng do siêu thị nhà mẫu thiết kế.
Mẫu số 1: Thiết kế nhà biệ thự 2.5 tầng đẹp phong cách tân cổ điển
-
Mã Sản Phẩm
Mẫu biệt thự BT641077
-
Số Tầng
Nhà biệt thự 2 tầng
-
Phong Cách
Biệt thự phong cách tân cổ điển
-
Mặt Tiền
10m
-
Chiều Sâu
12m
-
Diện Tích
100m2
-
Kinh Phí Đầu Tư
Khoảng 1.5 đến 1.7 tỷ đồng
-
Kích Thước Đất
13x16m
-
Phương Án Móng
Móng Cọc
-
Cấu Tạo Mái
Vì kèo
-
Cấu Tạo Thang
Tay vịn gỗ, mặt gỗ, cổ đá
-
Lát Sàn
T1: Gạch, T2: Gạch, T2.5: Gạch
-
Chất Liệu Cửa
Cửa chính, Thông phòng gỗ, Kính
-
Trần Giả
Thạch cao
-
Phòng Khách
31m2
-
Phòng Ngủ
N1: 16.5m2, N2: 16.5m2, N3: 17m2
-
Phòng Vệ Sinh
wc1: 3m2, wc2: 4m2
-
Phòng khác
Phòng ăn: 17.5m2
-
Quy cách hồ sơ
Khổ A3, khoảng 100 trang

Phối cảnh bản vẽ biệt thự 2.5 tầng 10×12 đẹp

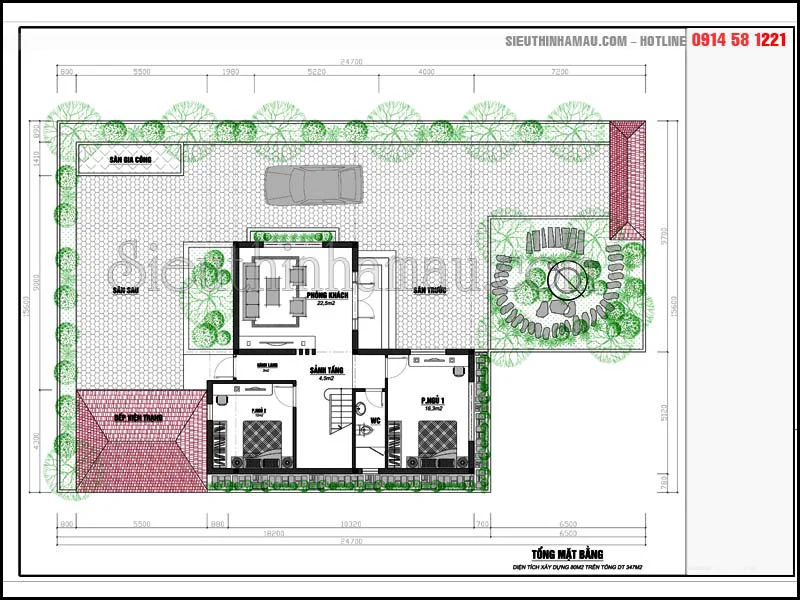
Tổng quan bản vẽ biệt thự 2.5 tầng kích thước 10x12m

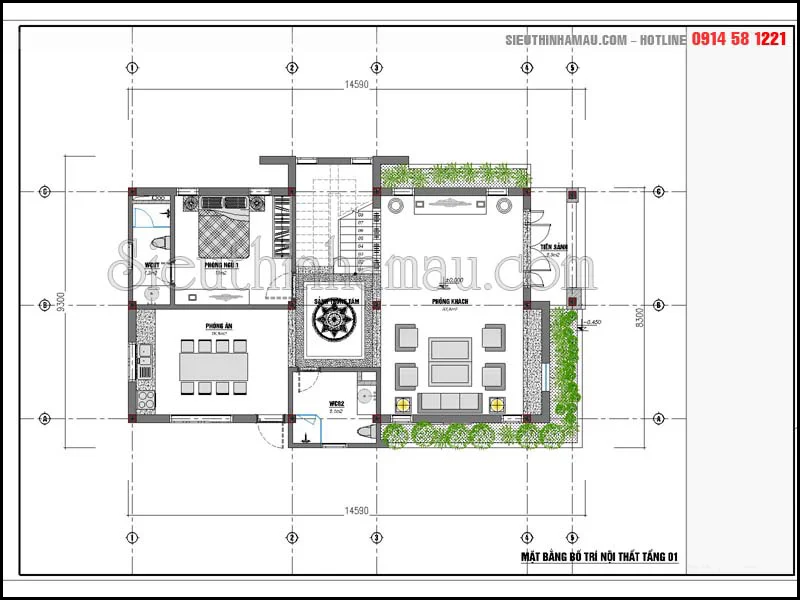
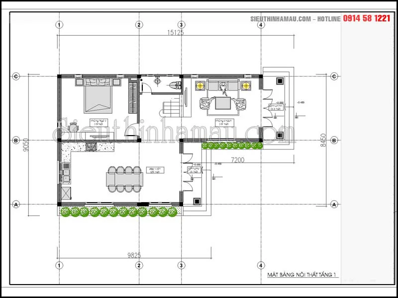
Bản vẽ mặt bằng tầng 1 mẫu biệt thự 2.5 tầng 10x12m

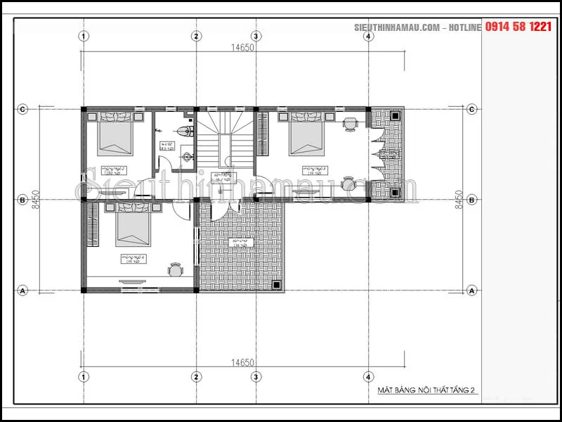
Thiết kế nội thất tầng 2 bản vẽ biệt thự 2.5 tầng 10x12m đẹp

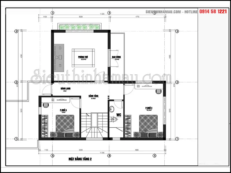
Mặt bằng tầng tum bản vẽ thiết kế biệt thự 10x12m 2.5 tầng
Thiết kế nhà biệt thự 2 tầng rưỡi (2.5 tầng) hay có tầng tum
Tầng tum là gì, vì sao nhà ống 2 tầng thường thiết kế tầng tum đi kèm? Như đã đề cập ở trên, tầng tum giúp tăng tính thẩm mỹ cho căn nhà. Hơn nữa, nó giúp bạn tận dụng tối đa diện tích. Vì thế, những kiểu nhà ống 2 tầng thì nên kết hợp cả tầng tum. Bạn có thể sử dụng nó để làm phòng ngủ hoặc phòng giải trí. Hơn nữa, thiết kế tầng tum còn giúp tiết kiệm chi phí.
Đối với những ngôi nhà ống được thiết kế có tầng tum, đây chính là không gian giúp tăng cường độ thông thoáng, tận dụng được ánh sáng tự nhiên. Vì thế, ngôi nhà sẽ luôn thoáng mát và sạch sẽ. Nhà kiểu 2 tầng 1 tầng tum là kiểu nhà được khá nhiều người lựa chọn hiện nay. Bởi nó không cần quá nhiều diện tích nhưng lại khá thoáng đãng và rộng rãi. Để sở hữu được ngôi nhà đẹp như mong muốn thì hãy chú ý những vấn đề dưới đây:
Trong bản vẽ thiết kế nhà 2.5 tầng đẹp được thiết kế với những kiến trúc tân cổ điển mang đến sự trọng, lịch lãm và thật phong cách, với sự tối giản và đa chức năng. Yếu tố này thể hiện qua cách chọn đồ dùng và bày trí chúng.
Nội thất là điểm nhấn chính. Mặc dù đơn giản nhưng cần phải có điểm nhấn để mang đến vẻ đẹp riêng cho không gian.Tầng tum được thiết kế với mục đích chống nóng và tiết kiệm chi phí thi công. Tuy nhiên, chúng thường được xây dựng cho ngôi nhà ở quê nhiều hơn là thành thị.
Nhà 2 tầng 1 tum có thể tận dụng ánh sáng thiên nhiên. Thiết kế nhà sẽ giúp cho không gian luôn ngập tràn ánh sáng. Vì thế, hãy tận dụng tối đa để tiết kiệm điện. Đặc biệt, không nên sử dụng quá nhiều rèm để che đi. Hãy lựa chọn gam màu trung tính. Đây là gam màu thích hợp cho kiểu thiết kế này. Nó sẽ làm nổi bật lên những món đồ nội thất làm điểm nhấn.

Bản vẽ mặt bằng mái biệt thự 2.5 tầng 10x12m đẹp
Thiết kế nhà 2.5 tầng đẹp có sử dụng mái thái
Vì sao nhà 2.5 tầng sử dụng mái thái?
Bởi vì nhà mái thái có độ dốc khá lớn, bền phù hợp với mọi loại kiến trúc từ thấp tầng đến cao tầng cụ thể trong thiết kế nhà 2.5 tầng đẹp được các kiến trúc sư tư vấn sử dụng mái thái để tăng tính thẩm mỹ. Các bộ phận trong thiết kế từ phần mái, cửa chính, cửa sổ, mái che đều thể hiện nét kiến trúc Thái đặc trưng.
Các bạn biết đấy nhà mái thái được lợp chủ yếu bằng mái ngói Thái. Sau một thời gian, bằng sự sáng tạo, mẫu nhà mái thái được lợp bằng nhiều mẫu ngói mới lạ khác như ngói sóng lớn, ngói sóng nhỏ, ngói tráng men… Kiến trúc của kiểu nhà mái thái có thể kết hợp giữa nhiều phong cách khác nhau từ cổ điển, tân cổ điển đến các mẫu nhà hiện đại theo xu hướng mới. Nhờ đó mang lại cho công trình sự ấn tượng và độc đáo hơn.
Nhà mái thái có rất nhiều đặc điểm những 2 đặc điểm quan trọng dưới đây là quan trọng nhất
Về phong thuỷ thiết kế nhà 2.5 tầng đẹp: Trong phong thủy nhà ở, mái nhà thường được coi là nơi tụ khí, ảnh hưởng đến cả gia đình trong quá trình sinh sống. Kiểu nhà mái thái được đánh giá khá tốt, độ dốc cao, hình chóp nên giúp ngôi nhà tránh được những hiện tượng tích tụ hung khí, ảnh hưởng đến nguồn lưu thông thịnh vượng trong ngôi nhà. Từ đó sẽ giúp mang đến sự may mắn cũng như tốt lành dành cho gia chủ.
Về thẩm mỹ: Dễ dàng nhận thấy, kiến trúc nhà biệt thự 2.5 tầng mái thái khéo léo tôn vinh lên vẻ đẹp thanh thoát, cao ráo của ngôi nhà. Từ những mẫu nhà phố hiện đại khoẻ khắn vuông vức, đến những mẫu nhà vườn dễ dàng thu hút người đối diện được tạo nên từ kiến trúc và tự nhiên.
Về công năng sử dụng: Nhà mái thái thường rất mát mẻ vào mùa hè, hiệu quả tốt trong việc chống nóng, chống ẩm tốt, thích hợp với kiểu khí hậu nhiệt đới. Vào những tháng có lượng mưa cao, nhà mái thái với độ dốc vừa phải giúp nước mưa rơi xuống và thoát nước tự nhiên, không bị ứ đọng lại trên mái nên chống được sự ngấm nước, dột nước, ảnh hưởng đến thẩm mỹ và tường sơn.
Xem thêm nhà biệt thự 2 tầng tân cổ điển để thấy được vẻ đẹp hoàn mỹ trong kiến trúc
Mẫu số 2: Thiết kế bản vẽ nhà 2.5 tầng 115m2 phong cách hiện đại
-
Mã Sản Phẩm
BT951077
-
Số Tầng
2.5 tầng
-
Phong Cách
Nhà biệt thự phong cách hiện đại
-
Mặt Tiền
15m
-
Chiều Sâu
11m
-
Diện Tích
115m2
-
Kinh Phí Đầu Tư
Khoảng 1.6- 1.7 tỷ
-
Kích Thước Đất
800m2
-
Phương Án Móng
Móng Cọc
-
Cấu Tạo Mái
Mái bằng
-
Cấu Tạo Thang
Tay vịn gỗ, mặt gỗ, cổ đá
-
Lát Sàn
T1: Gạch, T2: Gạch, T2.5: Gạch
-
Chất Liệu Cửa
Cửa chính, Thông phòng gỗ, Kính
-
Phòng Khách
26m2
-
Phòng SHC
26m2
-
Phòng Ngủ
N1: 17.5m2, N2: 15m2, N3:17.5m2, N4: 15m2, N5:17.5m2,
-
Phòng Thờ
16m2
-
Phòng Vệ Sinh
wc1:4.2m2, wc2:3.5m2, wc3:3.5m2, wc4: 4.5m2,
-
Gara ô tô
18m2
-
Phòng khác
Phòng bếp + ăn: 16m2
-
Quy cách hồ sơ
Khổ A3, khoảng 150 trang

Hình ảnh 3D thiết kế biệt thự 2.5 tầng 115m hiện đại

Thiết kế chiều ngang nhà biệt thự 2.5 tầng hiện đại diện tích 115m đẹp
Tham khảo ngay các mẫu thiết kế nhà 2 tầng hiện đại

Mặt bằng tầng 1 biệt thự 2.5 tầng hiện đại

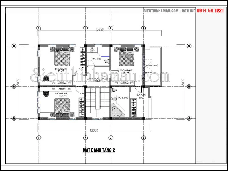
Mặt bằng tầng 2 biệt thự 2.5 tầng hiện đại mặt tiền 15m

Mặt bằng tầng 3 biệt thự 2.5 tầng đẹp hiện đại 115m2
Mẫu số 3: Mẫu thiết kế nhà 2.5 tầng mái bằng diện tích 100m2
-
Mã Sản Phẩm
Mẫu biệt thự BT451077
-
Số Tầng
Biệt thự 2.5 tầng
-
Phong Cách
Biệt thự hiện đại
-
Mặt Tiền
9m
-
Chiều Sâu
14m
-
Diện Tích
100m2
-
Kinh Phí Đầu Tư
Khoảng 1.2 tỷ đồng
-
Kích Thước Đất
504m2
-
Phương Án Móng
Móng Cọc
-
Cấu Tạo Mái
Mái bằng
-
Cấu Tạo Thang
Tay vịn gỗ, mặt gỗ, cổ đá
-
Lát Sàn
T1: Gạch, T2: Gạch, T2.5: Gạch
-
Chất Liệu Cửa
Cửa chính, Thông phòng gỗ, Kính
-
Phòng Khách
34m2
-
Phòng Ngủ
N1: 13m2, N2: 13m2, N3: 16m2, N4: 18m2
-
Phòng Thờ
13m2
-
Phòng Vệ Sinh
wc1: 4m2, wc2: 4m2, wc3: 4m2
-
Phòng khác
Phòng ăn: 16.5m2
-
Quy cách hồ sơ
Khổ A3, khoảng 100 trang

Bản vẽ thiết kế nhà biệt thự hiện đại 2.5 tầng 2 mặt tiền 100m2

Mặt tiền nhà 2.5 tầng biệt thự hiện đại diện tích 100m2 đẹp
Một phá cách trong thiết kế nhà 2.5 tầng đẹp được các kiến trúc sư xử lý mặt tiền bằng cách tạo khối mặt tiền bằng một vách kính dài từ đỉnh mái xuống nền. Vừa tạo cảm giác mới mẻ, hiện đại cũng như 1 điểm nhấn làm cho ngôi nhà thêm phần ấn tượng.
Có thể thấy nhà 2.5 tầng mái bằng được thiết kế ốp toàn bộ mặt tiền bằng vật liệu gạch inax chất liệu tốt, với cách làm này có thể giữ cho ngôi nhà luôn sạch sẽ, không bị rêu mốc do thời tiết mưa gió bảo vệ kết cấu cũng như bền màu với thời gian.

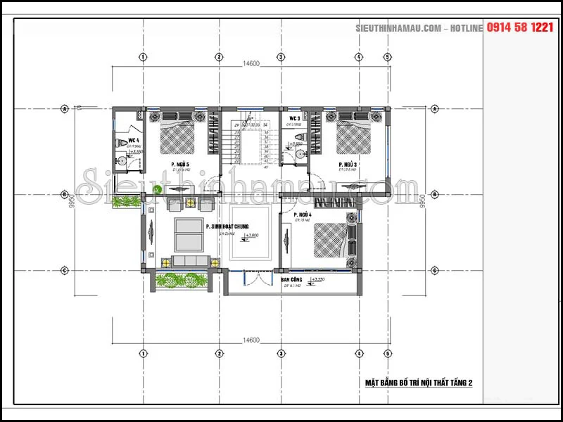
Thiết kế nhà biệt thự 2.5 tầng hiện đại 2 mặt tiền 100m2

Nội thất tầng 2 biệt thự hiện đại 2.5 tầng 2 mặt tiền đẹp

Nội thất tầng 3 mẫu thiết kế nhà biệt thự hiện đại 2.5 tầng 2 mặt tiền
Xem thêm thiết kế nhà 2 tầng mái bằng
Mẫu số 4: Chiêm ngưỡng mẫu thiết kế nhà 2.5 tầng đẹp kích thước 9x12m
-
Mã Sản Phẩm
Mẫu biệt thự BT941077
-
Số Tầng
Biệt thự 2 tầng
-
Phong Cách
Biệt thự hiện đại
-
Mặt Tiền
9m
-
Chiều Sâu
12m
-
Diện Tích
100m2
-
Kinh Phí Đầu Tư
Khoảng 1.3 đến 1.4 tỷ đồng
-
Kích Thước Đất
450m2
-
Phương Án Móng
Móng Cọc
-
Cấu Tạo Mái
Vì kèo
-
Cấu Tạo Thang
Tay vịn gỗ, mặt gỗ, cổ đá
-
Lát Sàn
T1: Gạch, T2: Gạch, T2.5: Gạch
-
Chất Liệu Cửa
Cửa chính, Thông phòng gỗ, Kính
-
Phòng Khách
23m2
-
Phòng SHC
Không có phòng SHC
-
Phòng Ngủ
N1: 17m2, N2: 17m2, N3: 17m2
-
Phòng Thờ
Trống
-
Phòng Vệ Sinh
wc1: 3.5m2, wc2: 4m2
-
Gara ô tô
Không có gara ô tô trong nhà
-
Phòng khác
Phòng bếp ăn: 21m2
-
Quy cách hồ sơ
Khổ A3, khoảng 100 trang

Bản vẽ 3D nhà biệt thự 2.5 tầng 9x12m đẹp
Ngỡ ngàng với những mẫu nhà mái thái

Mẫu thiết kế nhà biệt thự 2.5 tầng 9x12m

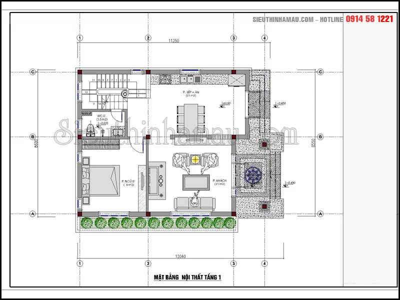
Thiết kế nội thất tầng 1 mẫu biệt thự 9x12m 2.5 tầng

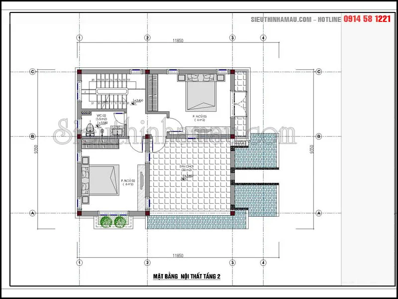
Thiết kế mặt bằng tầng 2 biệt thự 9x12m 2.5 tầng đẹp

Thiết kế mặt bằng tầng tum biệt thự 9x12m 2.5 tầng
Mẫu số 5: Thiết kế nhà 8x15m 2.5 tầng mái thái đẹp
-
Mã Sản Phẩm
Mẫu biệt thự BT718077
-
Số Tầng
Nhà 2 tầng
-
Phong Cách
Biệt thự mang phong cách hiện đại
-
Mặt Tiền
8m
-
Chiều Sâu
15m
-
Diện Tích
100m2
-
Kinh Phí Đầu Tư
Khoảng 1.3 đến 1.4 tỷ đồng
-
Kích Thước Đất
19x26m
-
Phương Án Móng
Móng Cọc
-
Cấu Tạo Mái
Vì kèo
-
Cấu Tạo Thang
Tay vịn gỗ, mặt gỗ, cổ đá
-
Lát Sàn
T1: Gạch, T2: Gạch
-
Chất Liệu Cửa
Cửa chính, Thông phòng gỗ, Kính
-
Phòng Ngủ
N1: 14m2, N2: 13m2, N3: 14m2, N4:14m2
-
Quy cách hồ sơ
Khổ A3, khoảng 100 trang

Kiến trúc nhà 2.5 tầng 8x15m mái thái

Thiết kế mặt tiền nhà 2.5 tầng nhà đẹp kích thước 8x15m

Mặt bằng tầng 1 thiết kế nhà đẹp 2.5 tầng 8x15m

Mặt bằng tầng 2 mẫu thiết kế nhà đẹp 8x15m 2.5 tầng

Bản vẽ mặt bằng thiết kế nhà 2.5 tầng 8x15m
Mẫu số 6: Thiết kế nhà 1 tầng 1 tum diện tích 100m2
-
Mã Sản Phẩm
Mẫu biệt thự BT219077
-
Số Tầng
2 tầng
-
Phong Cách
Biệt thự mang phong cách hiện đại
-
Mặt Tiền
8m
-
Chiều Sâu
12m
-
Diện Tích
100m2
-
Kinh Phí Đầu Tư
Khoảng 1.2 đến 1.3 tỷ đồng
-
Kích Thước Đất
29.5x 14.5m
-
Phương Án Móng
Móng Cọc
-
Cấu Tạo Mái
Bê tông
-
Cấu Tạo Thang
Tay vịn gỗ, mặt gỗ, cổ đá
-
Lát Sàn
T1: Gạch, T2: Gạch
-
Chất Liệu Cửa
Cửa chính, Thông phòng gỗ, Kính
-
Trần Giả
Thạch cao
-
Phòng Khách
45m2
-
Phòng Ngủ
N1: 12.8m2, N2: 18m2, N3: 15m2, N4: 14.5m2
-
Phòng Thờ
Phòng thờ kết hợp với khách
-
Phòng Vệ Sinh
wc1: 3.5m2, wc2: 5m2, wc3: 6.5m2
-
Phòng khác
Phòng ăn: 15.5m2
-
Quy cách hồ sơ
Khổ A3, khoảng 100 trang

Thiết kế nhà 2 tầng rưỡi diện tích 100m2 đẹp
Vẻ đẹp từ mẫu thiết kế nhà 2 tầng 1 tum không thể không bỏ qua

Mặt bằng tầng 1 bản vẽ thiết kế nhà 2 tầng rưỡi mặt tiền 8m

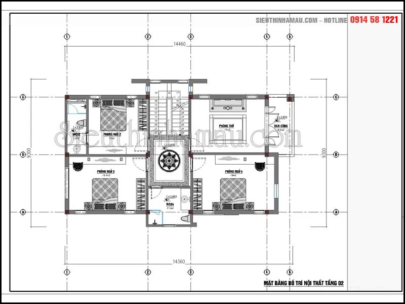
Thiết kế nội thất tầng 2 nhà 2 tầng rưỡi đẹp diện tích 100m2

Tầng tum thiết kế nhà 2 tầng rưỡi đẹp 100m2
Mẫu số 7: Thiết kế nhà 2.5 tầng kích thước 10x11m đẹp
-
Mã Sản Phẩm
Mẫu biệt thự BT318077
-
Số Tầng
Mẫu nhà 2 tầng
-
Phong Cách
Biệt thự mang phong cách hiện đại
-
Mặt Tiền
10m
-
Chiều Sâu
11m
-
Diện Tích
80m2
-
Kinh Phí Đầu Tư
Khoảng 900 triệu- 1 tỷ đồng
-
Kích Thước Đất
15x18m
-
Phương Án Móng
Móng Cọc
-
Cấu Tạo Mái
Vì kèo
-
Cấu Tạo Thang
Tay vịn gỗ, mặt gỗ, cổ đá
-
Lát Sàn
T1: Gạch, T2: Gạch
-
Chất Liệu Cửa
Cửa chính, Thông phòng gỗ, Kính
-
Trần Giả
Thạch cao
-
Phòng Khách
22.5m2
-
Phòng Ngủ
N1: 16.3m2, N2: 12m2, N3: 16.3m2, N4:12m2
-
Phòng Thờ
22.5m2
-
Gara ô tô
Trống
-
Phòng khác
Ban công: 5.3m2
-
Quy cách hồ sơ
Khổ A3, khoảng 100 trang

Hình ảnh phối cảnh thiết kế nhà 10x11m 2.5 tầng

Tầng 1 mẫu thiết kế nhà 10x11m 2.5 tầng đẹp

Thiết kế tầng 2 nhà 2.5 tầng hiện đại 10x11m
Thay cho lời kết qua các mẫu thiết kế nhà 2 tầng rưỡi
Thiết kế nhà 2.5 đẹp hay nhà 2 tầng rưỡi, nhà 2 tầng 1 tun đều là một nó được thiết kế đa dạng về phong cách cũng như kiểu dáng. Mỗi mẫu thiết kế đều mang một cảm xúc và ấn tượng riêng, kết hợp với sân vườn của mỗi ngôi nhà tạo nên một tổ ấm với nhiều cảm xúc khác nhau. Mọi được thiết kế đều rất đẹp mắt đã thuyết phục được gia chủ và nhận được sự ưng ý và hài lòng.
Việc xây nhà là việc hệ trọng cả 1 đời người vì thế việc thiết kế để đảm bảo công năng cũng như kết cấu an toàn là điều các gia đình phải thay đổi nhận thức nên có bản vẽ thiết kế nhà 2.5 tầng đẹp trước khi xây, vừa tiết kiệm được thời gian xây dựng không dây dưa kéo dài làm tốn thêm chi phí và không phải mất công sửa đi sửa lại.
Chúng tôi luôn mong muốn quý khách hàng sẽ luôn có một sự lựa chọn sáng suốt để sở hữu được ngôi nhà ưng ý. Mọi chi tiết về các mẫu thiết kế nhà 2.5 tầng đẹp vui lòng liên hệ Hotline: 0914 581221



