Xây nhà không phải ngày một ngày hai mà là xây cho cả một công trình của “1 đời người” do đó không thể hấp tấp vội vàng. Điều quan trọng nhất gia chủ muốn biết là chi phí xây nhà 2 tầng 140m2 hết bao nhiêu tiền để còn chuẩn bị và định liệu co công trình của gia đình mình?
Không đơn thuần chỉ là các gia đình có điều kiện kinh tế kém mới hỏi, mới quan tâm đến Chi phí xây nhà 2 tầng 140m2 hết bao nhiêu tiền mà kể cả các gia đình có điều kiện kinh tế khác họ cũng rất quan tâm tính toán mà không phải có tiền mà “lo gì”, không phải là họ “tiếc tiền” hay họ chi ly mà biết được chi phí xây dựng để còn biết để dự trù, định liệu đây là cơ sở là điều kiện cần thiết nhất để có thể 1 lộ trình một hướng xây xây trơn tru cho gia đình của mình.
Tìm hiểu về đơn giá thiết kế nhà 2 tầng diện tích 140m2 dân dụng hiện nay
Hiện nay trên thị trường có rất nhiều công ty tư vấn thiết kế và cũng có nhiều mức giá khác nhau tùy thuộc vào công ty đó có nhiều kinh nghiệm và kỹ thuật hay có uy tín hay không nên nếu là so sánh về mặt đơn giá thì có thể không báo giá khá chuẩn xác để gia đình có thể tham khảo về giá cả khi xây nhà.
Đơn giá thiết kế của siêu thị nhà mẫu như sau:
Đối với đơn giá thiết kế nhà 1 tầng
Thiết kế nhà biệt thự 1 tầng diện tích dưới 120m2 (<120m2): 16.000.000đ/Bộ hồ sơ thiết kế chi tiết
Thiết kế nhà biệt thự 1 tầng diện tích 120m2 – 150m2: 18.000.000đ/Bộ hồ sơ thiết kế chi tiết
Thiết kế nhà biệt thự 1 tầng diện tích 150m2 – 200m2: 20.000.000đ/Bộ hồ sơ thiết kế chi tiết
Thiết kế nhà biệt thự 1 tầng diện tích trên 200m2 (>200m2): 100.000đ/m2
Đối với thiết kế nhà biệt thự từ 2 tầng:
Thiết kế biệt thự phong cách hiện đại: 100.000đ/m2 sàn
Thiết kế biệt thự phong cách tân cổ điển: 120.000đ/m2 sàn
Thiết kế biệt thự phong cách cổ điển: 150.000đ/m2 sàn
Vì sao cần phải biết trước kinh phí xây nhà 2 tầng 140m2 hết bao nhiêu tiền?
Khi bắt đầu vào làm hay hoạt động một công việc gì đó, việc đầu tiên là phải lập kế hoạch và áng chừng được khả năng kinh tế để thiết kế và xây dựng môt cách nhanh trơn tru và chủ được về tài chính cũng như kiểm soát được nhân công, vật tư và vật liệu khi bắt đầu vào xây dựng.
Tiền sẽ quyết định chất lượng công trình
Trên thực tế việc kinh tế sẽ quyết định chất lượng công trình là hoàn toàn đúng bởi vì nếu gia chủ không đầu tư tiền bạc vào khi xây dựng sẽ gây ra các hiện tượng “ăn bớt” về nguyên vật liệu thiếu hụt về vật tư vật liệu ảnh hưởng đên chất lượng, công trình không đảm bảo về mặt kỹ thuật sẽ dẫn đến các hậu quả nghiêm trọng.
Hoặc việc đầu tư các nguyên vật liệu giá rẻ, kém chất lượng sẽ là cho các công trình xuống cấp nhanh, không đảm bảo và phải mất thời gian sửa chữa và bảo dưỡng hàng năm.
Các khâu khảo sát, thiết kế, thi công, điều kiện năng lực của các chủ thể tham gia hoạt động xây dựng, quản lý, khai thác vận hành, bảo trì và sự kiểm soát của các cơ quan quản lý nhà nước có liên quan cũng đều cần có kinh phí “tiền” để giải quyết.
Nguyên nhân chủ yếu của việc các công trình xây dựng chưa đảm bảo chất lượng do một số chủ thể tham gia trực tiếp trong quá trình thi công xây dựng công trình (chủ đầu tư và các nhà thầu), chủ quản lý sử dụng công trình chưa tuân thủ nghiêm túc các quy định của pháp luật về quản lý chất lượng công trình xây dựng trong các khâu khảo sát, thiết kế, thi công xây dựng, giám sát thi công, nghiệm thu, bảo hành và bảo trì công trình.
Có tiền để dự trù kinh phí phát sinh
Câu hỏi chi phí xây nhà 2 tầng 140m2 hầu hết được rất nhiều người quan tâm vì nó sẽ là định hướng để cho gia đình có sự tính toán và chuẩn bị đỡ bỡ ngỡ với những phát sinh không đáng có trong quá trình xây dựng. Và việc khái toán bằng “miệng” của một số thợ lành nghề cũng sẽ làm gia đình quyết định có tiếp tục xây tiếp hay dừng lại.
Nhiều gia đình khi xây lên sử dụng những vật liệu ở mức độ trung bình thấy không ưng, không đẹp thì lại muốn đổi sang các trang thiết bị vật liệu cao cấp hơn, như vậy số tiền đưa ra ban đầu sẽ bị thay đổi và độn chi phí lên.
Ví dụ:
Khi bắt đầu lên ý tưởng xây nhà nhiều gia đình đã phải “áng áng” chi phí hết bao nhiêu tiền và muốn xây dựng theo cách nào, sử dụng các trang thiết bị như thế nào, rẻ hay đắt và được thiết cửa bằng gỗ hay bằng nhựa… những chi phí này sẽ làm cho chi phí của bạn đủ nếu sử dụng với các thiết bị cao cấp và đắt tiền hơn. Do đó việc dự trù kinh phí là để giúp cho gia chủ không quá bị “shock” khi làm tốn quá nhiều tiền.
Tiền để trả tiền nhân công theo đúng tiến độ
Bất kể một công trình lớn nhỏ nào nếu thuê đội thợ thi công xây dựng mà bạn nợ tiền công của họ họ sẽ dừng xây dựng công trình đó và bỏ bê hoặc làm việc với tinh thần trách nhiệm kém. Ở đây tiền nhân công được đánh giá là phần quan trọng nhất bởi vì nếu thợ bỏ bê công trình sẽ chậm tiến độ và chậm tiến độ sẽ gây ra kéo dài thời gian và sẽ mất thêm rất nhiều chi phí phát sinh khác.
Trong khi tiền để mua nguyên vật liệu có thể thỏa thuận với các chủ cửa hàng vật liệu xây dựng cho mua chịu được, còn với nhân công việc trả tiền đúng tiến độ cũng là nuôi sống họ hàng ngày như vậy nếu công trình nào lớn mà nợ tiền công nhân thì họ sẽ đình công và bỏ việc. Đó là lý do vì sao tiền lại quan trọng đến vậy.
Thiết kế mẫu nhà 2 tầng mái thái
Việc thiết kế chi phí xây nhà 2 tầng 140m2 là vô cùng khó khăn việc đánh giá chất lượng công trình cũng từ kinh tế mà áp dụng. Từ đó việc dự trù và tính toán kinh phí xây nhà 2 tầng 140m2 sẽ được tính như sau
Chúng tôi xin đưa ra ví dụ về cách tính chi phí xây nhà 2 tầng, mời quý vị tham khảo
Cách tính chi phí xây nhà 2 tầng = Diện tích tầng 1 + diện tích tầng 2 + 50% sàn (phần móng) + 1.5 sàn (phần mái)
Khi đó sẽ tổng m2 xây dựng, nhân với mức xuất đầu tư của gia chủ sẽ ra con số gần đúng
Ví dụ: Xây nhà 2 tầng diện tích 140m2 thì diện tích tầng 1: 140m2, tầng 2: 140 m2, với mức đầu tư trung bình từ 4- 5.5 triệu/m2 tùy thuộc vào từng thời điểm như sau:
Tổng diện tích ngôi nhà 2 tầng ở trên khoảng: 140m2 + 140m2 + 70m2 + 200m2 = 510m2
Con số này nhân với đơn giá xây dựng 1m2: 550m2 x 4 triệu/m2 = 2.2 tỷ
Với mức đầu tư 2.2 tỷ gia chủ đã sở hữu cho mình một ngôi nhà hoàn chỉnh đã hoàn thiện đầy đủ sơn bả, bóng đèn tuýp, cầu thang, cửa đi, thông phòng hay cửa vệ sinh các trang thiết bị bệ bệt…. gia chủ chỉ việc bê đồ đạc vào ở. Cũng còn Tùy vào mức độ đầu tư của gia chủ nhà nên việc thiết kế và xây dựng cũng sẽ được thiết kế với
Ngoài ra,
Nếu bạn và gia đình muốn biết chi tiết hơn về khối lượng, sắt, thép, xi măng, nhân công, gạch, ngói … thì có thể yêu cầu các đơn vị tư vấn thiết kế lên bảng dự toán chi phí xây dựng chi tiết.
Ở bảng này, các kiến trúc sư hay thợ xây dựng phải tổng hợp được kinh phí dự toán cho phần chi phí nguyên vật liệu, nhân công và các chi phí khác trong quá trình thực hiện công trình. Đây được coi là kết quả dự toán cuối cùng có độ chính xác cao, sai sót chỉ nhỏ hơn 5% cho việc định giá một công trình xây dựng nhà.
Thông thường ở bảng dự toán này sẽ do các đơn vị chuyên bóc tách công trình sẽ cập nhật đơn giá hiện tại khu vực, và địa phương đó để có thể tính toán một cách chính xác nhất. Thường chi phí lập dự toán của công trình là từ 2 triệu đồng/ bộ và tùy thuộc vào diện tích lớn nhỏ phí dự toán có thể tăng lên theo diện tích.
Trên đây là cách tính chi phí nhà 2 tầng 140m2 theo m2 đơn giản nhất, tuy nhiên cách tính này không thể đảm bảo chính xác một cách tuyệt đối do đó tùy thuộc vào mức độ đầu tư của gia chủ có thể dự trù kinh phí khi xây dựng để đảm bảo được công trình vẫn sẽ hoàn thành đúng tiến độ
Nào hãy tham khảo các mẫu thiết kế nhà biệt thự 2 tầng 140m2 cùng siêu thị nhà mẫu của chúng tôi nhé
Mẫu số 1: Mẫu thiết kế nhà 2 tầng ông Hiệp – Thường Tín diện tích 120m2
-
Mã Sản Phẩm
Mẫu biệt thự BT719077
-
Số Tầng
Mẫu biệt thự 2 tầng
-
Phong Cách
Biệt thự mang phong cách tân cổ điển
-
Mặt Tiền
12m
-
Chiều Sâu
15m
-
Diện Tích
140m2
-
Kinh Phí Đầu Tư
Khoảng 1.5 đến 1.7 tỷ đồng
-
Kích Thước Đất
26x16m
-
Phương Án Móng
Móng Cọc
-
Cấu Tạo Mái
Vì kèo
-
Cấu Tạo Thang
Tay vịn gỗ, mặt gỗ, cổ đá
-
Lát Sàn
T1: Gạch, T2: Gạch
-
Chất Liệu Cửa
Cửa chính, Thông phòng gỗ, Kính
-
Phòng Khách
25m2
-
Phòng SHC
11.5m2
-
Phòng Ngủ
N1: 14m2, N2: 13m2, N3: 14m2, N4:14m2
-
Phòng Thờ
15m2
-
Phòng Vệ Sinh
wc1: 4.5m2, wc2: 6.4m2
-
Gara ô tô
Không có gara ô tô trong nhà
-
Phòng khác
Phòng ăn: 22m2
-
Quy cách hồ sơ
Khổ A3, khoảng 100 trang

Chi phí thiết kế kiến trúc nhà 2 tầng 12x15m

Chi phí thiết kế nhà 2 tầng 12x15m diện tích 140m2

Chi phí xây nhà 2 tầng 140m2 đẹp 12x15m nội thất tầng 1

Chi phí xây nhà 2 tầng 140m2 đẹp 12x15m nội thất tầng 1

Chi phí xây nhà 12x15m mái nhà 2 tầng 140m2
Chú ý đơn giá của mẫu chi phí xây nhà 2 tầng diện tích 140m2 thiết kế và xây dựng theo phong cách tân cổ điển do đó chi phí sẽ lớn hơn so với phong cách hiện đại vì phong cách tân cổ điển thì sẽ sử dụng nhiều các mảng miếng, đắp vẽ và trang trí nhiều hơn vì thế sẽ làm chênh lệch giữa 2 phong cách này.
Mẫu số 2: Thiết kế nhà biệt thự 2 tầng
-
Mã Sản Phẩm
Mẫu nhà BT116077
-
Số Tầng
Mẫu nhà 2 tầng
-
Phong Cách
Biệt thự mang phong cách hiện đại
-
Mặt Tiền
12.5m
-
Chiều Sâu
12m
-
Diện Tích
140m2
-
Kinh Phí Đầu Tư
Khoảng 1.6- 1.7 tỷ
-
Kích Thước Đất
500m2
-
Phương Án Móng
Móng băng
-
Cấu Tạo Mái
Bê tông
-
Cấu Tạo Thang
Tay vịn gỗ, mặt gỗ, cổ đá
-
Lát Sàn
T1: Gạch, T2: Gạch
-
Chất Liệu Cửa
Cửa chính, Thông phòng gỗ, Kính
-
Quy cách hồ sơ
Khổ A3, khoảng 100 trang

Phối cảnh 3D chi phí xây nhà vuông mái thái 2 tầng 140m2

Góc view bên hông nhà vuông mái thái 2 tầng 140m2

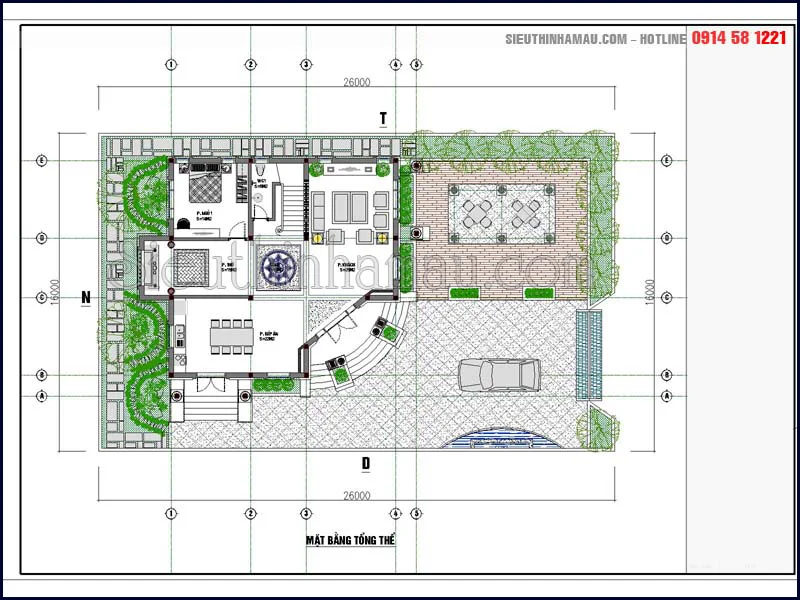
Tổng mặt bằng nhà vuông mái thái 2 tầng 140m2

Nội thất tầng 1 chi phí xây nhà vuông 140m2 mái thái 2 tầng

Chi phí xây nhà vuông mái thái 2 tầng 140m2 nội thất tầng 2

Chi phí xây nhà vuông mái thái 2 tầng 140m2 đẹp
Mẫu số 3: Chi phí thiết kế biệt thự 2 mặt tiền kiểu Pháp 140m2
-
Mã Sản Phẩm
Mẫu biệt thự BT619077
-
Số Tầng
2 tầng
-
Phong Cách
Biệt thự theo phong cách tân cổ điển
-
Mặt Tiền
13.6m
-
Chiều Sâu
26m
-
Diện Tích
140m2
-
Kinh Phí Đầu Tư
Khoảng 1.5 – 1.7 tỷ đồng
-
Kích Thước Đất
16x26m
-
Phương Án Móng
Móng Cọc
-
Cấu Tạo Mái
Vì kèo
-
Cấu Tạo Thang
Tay vịn gỗ, mặt gỗ, cổ đá
-
Lát Sàn
T1: Gạch, T2: Gạch
-
Chất Liệu Cửa
Cửa chính, Thông phòng gỗ, Kính
-
Phòng Khách
25m2
-
Phòng SHC
11.5m2
-
Phòng Ngủ
N1: 14m2, N2: 15m2, N3: 18m2, N4: 14m2
-
Phòng Vệ Sinh
wc1: 5m2, wc2: 6.4m2, wc3: 7.5m2
-
Phòng khác
Phòng bếp ăn: 22m2
-
Quy cách hồ sơ
Khổ A3, khoảng 100 trang

Tính toán chi phí xây nhà 2 mặt tiền kiểu pháp 2 tầng 140m2

Tổng thể mặt bằng nhà 2 mặt tiền kiểu pháp 140m2 2 tầng

Nội thất tầng 1 chi phí xây nhà 2 mặt tiền kiểu pháp 140m2

Nội thất tầng 2 nhà 2 tầng 2 mặt tiền 140m2

Chi phí xây nhà 2 mặt tiền 2 tầng kiểu pháp 140m2 mặt bằng mái
Mẫu số 4: Mẫu thiết kế nhà 2 tầng kiểu Châu Âu diện tích 140m2 của bà Thảo – Sơn La
-
Mã Sản Phẩm
Mẫu biệt thự BT751077
-
Số Tầng
Nhà biệt thự 2 tầng
-
Phong Cách
Biệt thự mang phong cách Châu Âu
-
Chiều Cao Tầng
Trống
-
Mặt Tiền
17m
-
Chiều Sâu
14m
-
Diện Tích
140m2
-
Kinh Phí Đầu Tư
Khoảng 1.7- 1.8 tỷ
-
Kích Thước Đất
600m2
-
Phương Án Móng
Móng Cọc
-
Cấu Tạo Thang
Tay vịn gỗ, mặt gỗ, cổ đá
-
Lát Sàn
T1: Gỗ, T2: Gỗ
-
Chất Liệu Cửa
Cửa chính, Thông phòng gỗ, Kính
-
Trần Giả
Thạch Cao
-
Phòng Khách
24m2
-
Phòng SHC
Không có phòng SHC
-
Phòng Ngủ
N1: 15m2, N2: 14.5m2, N3:15m2
-
Phòng Thờ
16.5m2
-
Phòng Vệ Sinh
wc1:4.5m2
-
Gara ô tô
29m2
-
Phòng khác
Phòng bếp+ ăn: 22m2
-
Quy cách hồ sơ
Khổ A3, khoảng 100 trang

Hình ảnh 3D mẫu nhà 2 tầng kiểu châu âu diện tích 140m2

Chi phí xây mẫu nhà 2 tầng 140m2 kiểu châu âu đẹp

Chiêm ngưỡng mẫu thiết kế nhà 2 tầng kiểu châu âu đẹp 140m2

Nội thất tầng 1 mẫu nhà 2 tầng kiểu châu âu 140m2 hoành tráng

Mặt bằng tầng 2 mẫu nhà 2 tầng kiểu châu âu 140m2
Mẫu số 5: Mẫu thiết kế nhà 2 tầng rưỡi 140m2 đẹp
-
Mã Sản Phẩm
BT461077
-
Số Tầng
2 tầng
-
Phong Cách
Thiết kế biệt thự hiện đại
-
Mặt Tiền
14m
-
Chiều Sâu
14m
-
Diện Tích
140m2
-
Kinh Phí Đầu Tư
Khoảng 1.6 đến 1.7 tỷ đồng
-
Kích Thước Đất
21x24m
-
Phương Án Móng
Móng Băng
-
Cấu Tạo Mái
Vì Kèo
-
Cấu Tạo Thang
Tay vịn gỗ, mặt gỗ, cổ đá
-
Lát Sàn
T1: Gạch, T2: Gạch, T3: Gạch
-
Chất Liệu Cửa
Cửa chính, Thông phòng gỗ, Kính
-
Trần Giả
Thạch Cao
-
Phòng Khách
23m2
-
Phòng Ngủ
N1: 14m2, N2: 14m2, N3:20m2, N4:15m2
-
Phòng Thờ
22.5m2
-
Phòng Vệ Sinh
wc1:4m2, wc2:4m2, wc3:4m2
-
Gara ô tô
25m2
-
Phòng khác
1 phòng giải trí : 30m2
-
Quy cách hồ sơ
Khổ A3, khoảng 100 trang

Kiến trúc 3D nhà 2 tầng rưỡi 140m2

Thiết kế mặt tiền kiến trúc nhà 2 tầng rưỡi đẹp 140m2

Tổng quan kiến trúc nhà 2 tầng rưỡi đẹp 140m2

Nội thất tầng 1 kiến trúc nhà 2 tầng rưỡi 140m2

Chi phí xây nội thất tầng 2 kiến trúc nhà 2 tầng rưỡi 140m2

Mặt bằng tầng áp mái kiến trúc nhà 2 tầng rưỡi 140m2 đẹp
Kết luận về chi phí xây nhà 2 tầng 140m2 hết bao nhiêu tiền để duy trì ngôi nhà bền đẹp
Ngoại thất:
Chi phí xây nhà 2 tầng 140m2 là điều kiện tiên quyết giúp cho ngôi nhà của bạn bền lâu, tươi mới, trường tồn với thời gian và các yếu tố của môi trường tác động vào sẽ làm cho ngôi nhà của bạn xuống cấp do đó việc lựa chọn mức độ đầu tư phù hợp và xác định được nhu cầu ở của gia đình cũng cần được tính toán và xem xét.
Nhà sạch thì mát, kinh nghiệm cha ông truyền lại luôn đúng khi muốn nhà thoáng mát theo nghĩa đen và cả “mát mắt” theo nghĩa bóng, nói lên sự hợp lý và thẩm mỹ gọn ghẽ. “Sạch” ở đây chính là cách chọn lọc giải pháp và vật dụng nội thất không có chi tiết thừa. “Sạch” còn biểu hiện sự thuận tiện thoải mái cho gia chủ sử dụng, chứ không đơn thuần là để trưng bày.
Thiết kế nhà mặt tiền 10m 2 tầng đẹp
Những đồ vật, mảng miếng trang trí đưa vào nội thất luôn cần khai thác hiệu quả sử dụng, đồng thời phải trong “tầm ngắm” được gia chủ quan tâm tu bổ hàng ngày (dọn dẹp), hàng tháng (sắp xếp, sửa chữa vật dụng), hàng năm (tổng vệ sinh, thay đổi đồ nội thất hư cũ). Nếu chỉ xếp đầy đồ đạc vào nhà, trưng bày tranh ảnh chi chít hay khoét hốc âm, đóng kệ tủ dày đặc thì sẽ tạo nên một nội thất không đủ sạch, nhà có rộng thì vẫn hoá chật chội.
Sau một thời gian sử dụng (trung bình khoảng sáu tháng) nên “khám sức khoẻ tổng quát cho nhà” bằng cách rà soát tổng thể và chi tiết nhằm xem nhà có bị “trục trặc” ở đâu và mức độ như thế nào. Các bước kiểm tra nên đi từ đại thể đến chi tiết, từ nội thất đến ngoại thất, từ những nhu cầu mang tính thiết thân đến những vị trí thuần tuý chỉ để trang trí, làm dáng cho ngôi nhà. Tinh thần tối giản của kiến trúc hiện đại đang được nhiều gia chủ, nhất là các bạn trẻ ưa chuộng, nhưng cần lưu ý là điều kiện sống ở nông thôn khác thành thị.
Nhà biệt thự 2 tầng đẹp phong cách hiện đại
ở Việt Nam khác nước ngoài về khí hậu, văn hoá, và cả các mối quan hệ xã hội. Do đó, làm nhà sạch, nhà tối giản không phải là cái hộp trống trơn trắng toát, mà là sự tính toán lược bỏ các trang trí dư thừa, hướng tới hệ thống đồ nội thất giản tiện, đa năng và có gu thẩm mỹ. Cũng là cách vừa khéo bố trí công năng được sử dụng tối đa vừa tiết kiệm được tiền bạc. Chi phí xây nhà 2 tầng 140m2 sẽ trở nên đáng yêu và đáng sống nhất.
Không phải cứ có khoảng trống là phải lấp đầy vật dụng tương ứng, như phòng khách này dù rộng vẫn bố trí bộ ghế tiếp khách khá gọn ghẽ, dành nhiều khoảng trống cho đi lại, nhìn ngắm.
Xem thêm biệt thự 2 tầng đơn giản hiện đại
Mọi nhu cầu về tư vấn thiết kế vui lòng liên hệ Hotline: 0914 581221 để được hỗ trợ



