Khi chuẩn bị xây nhà bạn quan tâm đến cách tính tiền nhân công xây nhà 2 tầng hết bao nhiêu tiền và chi phí xây dựng gồm những khoản nào. Nhưng bạn là người không “rành” về xây dựng vậy làm thế nào để áng chừng được chi phí thiết kế lẫn tiền công xây dựng nhà hết bao nhiêu tiền? Qua bài viết này chúng tôi sẽ hướng dẫn bạn cách tính tiền công xây nhà 2 tầng một cách chi tiết và dễ hiểu nhất nhé.
Nội dung đề cập trong bài viết
-Địa điểm hoặc vị trí xây dựng
-Đơn giá thiết kế nội ngoại thất
-Chi phí cho mua vật tư vật liệu xây dựng
-Cách tính đơn giá xây nhà 2 tầng tính theo mét vuông
-Xây nhà 2 tầng cần lưu ý những gì để tiết kiệm chi phí
I. Các yếu tố ảnh hưởng đến chi phí xây nhà
1.cách tính tiền công xây nhà 2 tầng phụ thuộc vào địa điểm xây nhà

Địa điểm xây dựng ảnh hưởng đến chi phí xây dựng
Việc giao thông đường xá rộng lớn thuận tiện cho việc di chuyển cho các xe chở cát xi măng hay các vật liệu xây dựng hay có bãi trống để tập kết vật tư cũng sẽ là một lợi thế trong xây dựng. Nếu các gia đình xây nhà ở khu vực xa trung tâm phải di chuyển vật liệu xa đường xá khó khăn thì chi phí xây dựng nhà 2 tầng cũng theo đó mà đội giá lên. Nói đơn cử cách tính tiền nhân công xây nhà 2 tầng trong các khu phố cổ của thành phố Hà Nội thôi việc xây dựng chỉ được hoạt động về đêm và đường ngõ chật hẹp chỉ có thể vận chuyển bằng xe máy, xe rùa… đây là yếu tố làm tốn nhiều chi phí nhất của gia chủ khi muốn xây nhà 2 tầng.
Hay một yếu tố khác ảnh hưởng nữa là khu đất có nền đất yếu, đất ao hay đất mượn thì quá trình thi công yêu cầu cần phải gia có nên bằng cách làm móng cọc bằng bê tông cốt thép, để đảm bảo chắc chắn cho kết cấu của ngôi nhà thì việc thuê máy móc, đào xúc và vận chuyển phần đất, đổ chạc cũng làm tốn khá nhiều chi phí của gia chủ so với các loại móng khác.
2. cần cân nhắc giữa việc có nên thuê đơn vị thiết kế hay tự xây
Đề ra phương án nếu thuê đơn vị tư vấn thiết kế là sẽ như thế nào và đơn giá thiết kế cho phần ngoại thất như thế nào và nội thất ra sao. Chi phí thuê thiết kế đơn giá thì ra sao, việc thuê thiết kế có mặt lợi gì, hại ra sao.
Ngày nay khi thông tin truyền thông phát triển việc thiết kế nhà
Báo giá thiết kế nhà 1 tầng của siêu thị nhà mẫu
a. Ngoại thất
Thiết kế nhà biệt thự 1 tầng diện tích dưới 120m2 (<120m2) 16.000.000đ/Bộ hồ sơ thiết kế chi tiết
Thiết kế nhà biệt thự 1 tầng diện tích 120m2 – 150m2 18.000.000đ/Bộ hồ sơ thiết kế chi tiết
Thiết kế nhà biệt thự 1 tầng diện tích 150m2 – 200m2 20.000.000đ/Bộ hồ sơ thiết kế chi tiết
Thiết kế nhà biệt thự 1 tầng diện tích trên 200m2 (>200m2) 100.000đ/m2
Thiết kế nhà 2 tầng được tính với đơn giá như sau
Thiết kế biệt thự phong cách hiện đại 100.000đ/m2 sàn
Thiết kế biệt thự phong cách tân cổ điển 120.000đ/m2 sàn
Thiết kế biệt thự phong cách cổ điển 150.000đ/m2 sàn
Đơn giá thiết kế nhà phố và văn phòng
Thiết kế kiến trúc nhà phố 100.000đ/m2 sàn
Thiết kế kiến trúc nhà phố diện tích lớn hơn 500m2 80.000đ/m2 sàn
b.Nội thất
Báo giá thiết kế nội thất nhà ở, chung cư hiện đại 200.000đ/m2 sàn
Báo giá thiết kế nội thất nhà ở, chung cư tân cổ điển, cổ điển 250.000đ/m2 sàn
Báo giá thiết kế nội thất bar, nhà hàng, cafe 200.000đ/ m2 sàn
Ưu đãi đối với khách hàng thiết kế
-
Công trình có diện tích > 500m2, Giảm 10% so với báo giá thiết kế nhà ở.
-
Giá hợp đồng tối thiểu 1 công trình : 16.000.000đ.
-
Thiết kế > 1 công trình , Giảm 10% so với báo giá thiết kế nhà ở.
-
Thiết kế phải thay đổi kết cấu, tường, BT, đơn giá nhân 1.5.
-
Thiết kế cả kiến trúc và nội thất, nội thất nhân hệ số 0.8.
Ngoài báo giá thiết kế kiến trúc nhà, báo giá thiết kế biệt thự 2 tầng, báo giá thiết kế nhà phố thì chúng tôi hoàn thiện bảng báo gía thiết kế các hạng mục khác như sau:
-
Thiết kế sân vườn , tiểu cảnh
+ Diện tích nhỏ hơn 500m2: 80.000 đ/m2. (Hợp đồng tối thiểu >10.000.000đ).
+ Diện tích từ 500m2-1000m2: 50.000đ/m2.
+ Diện tích từ 1000m2-2000m2: 30.000đ/m2
+Diện tích >2000m2 gọi hotline 0914581221
-
Lập dự toán xây dựng: 10% đơn giá thiết kế.( Hợp đông tối thiểu > 2.000.000 đ).
- Thiết kế hồ sơ cấp phép xây dựng: 2.000.000đ/ hồ sơ
Ngoài ra, quý khách có thể lựa chọn theo cách mua hồ sơ – Hồ sơ thiết kế theo mẫu là hồ sơ thiết kế đã có sẵn hồ sơ. Áp dụng trong trường hợp đất rộng, có thể lấy nguyên mẫu hồ sơ. Đơn giá thiết kế kiến trúc nội thất nhà ở theo mẫu = 50% giá thiết kế mới.
Thứ ba: Vật tư và vật liệu xây dựng
Trên thị trường có rất nhiều loại vật liệu xây dựng với đầy đủ chủng loại và giá thành cũng rất khác nhau việc lựa chọn vật liệu tốt hay loại trung bình cũng đều ảnh hưởng đến cách tính tiền nhân công xây nhà 2 tầng
Việc tính đơn giá xây nhà 2 tầng phụ thuộc vào kinh tế của mỗi gia đình,ì thế việc lựa chọn vật liệu tốt hay trung bình sẽ làm thay đổi chi phí xây dựng đó là vì sao mỗi ngôi nhà xây đều đơn giá khác nhau là vậy.
Cộng thêm một vài yếu tố khác ảnh hưởng đến chi phí xây nhà 2 tầng đó là chi phí xin cấp phép (cái này còn tùy thuộc vào từng địa phương thường ở các thành phố là chủ yếu) hoặc diện tích xây dựng và thời gian thi công kéo dài cũng sẽ ảnh hưởng đến chi phí xây nhà 2 tầng đẹp của các gia đình.
II. Hướng dẫn cách tính chi phí xây nhà 2 tầng đầy đủ chi tiết
Việc xây dựng cất nhấp cách tính tiền nhân công xây nhà 2 tầng là việc hệ trọng của cả một đời người vì vậy chúng tôi muốn hướng dẫn quý vị một cách tính chi phí một cách đơn giản và dễ hiểu nhất. Có thể nhiều bạn nghĩ chẳng có tiền xây nhà nên không cần phải biết nhưng sẽ chẳng mất gì nếu bạn có thể tham khảo và lưu lại nhỡ đâu sau này bạn xây dựng bạn còn tránh vấp phải những điều không đáng có để có thể hiểu và dám sát thợ một cách tốt nhất vừa tiết kiệm được chi phí cho gia đình mình vừa sở hữu được ngôi nhà ưng ý nhé.
Đầu tiên đơn giá nhân công xây dựng dao động từ 1.4 -1.7 triệu /m2 nhiều gia chủ sẽ ngạc nhiên với đơn giá nhân công xây dựng cao như vậy phải không nào. Hiện nay ở các tỉnh thành lân cận ở xung quanh Hà Nội như đội thợ ở Hưng Yên là 1.4 triệu/m2. Còn một số vùng như Ba Vì đơn giá có thể giảm hơn 1 chút khoảng 1.2-1.3 triệu/m2. Phải nói đơn giá cao hay thấp còn phụ thuộc vào tay nghề của đội thợ đóvà đồng thời đội thợ phải biết đọc bản vẽ kết hợp. Cách tính tiền công xây nhà 2 tầng cũng tùy thuộc vào độ khó của ngôi nhà như : lâu đài, biệt thự các chi tiết phào chỉ đắp yêu cầu kỹ thuật cao và đơn giá cao cũng là điều dễ hiểu.
1.Tìm hiểu đơn giá xây dựng hiện nay của nhà 2 tầng tính trên 1 mét vuông
Chi phí xây nhà 2 tầng trọn gói (nhà ở thường)
Vật tư trung bình: 5.000.000 đồng/m2
Vật tư khá : 5.500.000 đồng/m2
Vật tư tốt: 6.000.000 đồng/m2 trở lên
Lưu ý: Cách tính tiền nhân công xây nhà 2 tầng đây là đơn giá dành cho nhà ở dân dụng thường phổ biến hiện nay mang tính tham khảo. Tùy thuộc vào công trình thực tế, diện tích xây dựng, vị trí địa lý, vật liệu hoàn thiện….. sẽ có những mức giá khác nhau. Ngoài ra đối với phần xây dựng nhà biệt thự cần xây dựng với thợ có tay nghề cao chi phí sẽ cao gấp đôi ước tính xây dựng lâu đài hoàn thiện rơi vào khoảng 12 triệu đồng/m2.
Thực tế sau khi có bản vẽ thiết kế chi tiết, khảo sát tổng thể mới tính tiền được giá thành cụ thể trên từng ngôi nhà nhất định.
Thường những phần thô sẽ có mức giá dao động gần bằng nhau, khác biệt nhất là phần hoàn thiện bởi vì tùy thuộc vào kinh phí của từng gia đình mà các công ty đưa ra những phương án thi công xây dựng nhà 2 tầng sao cho phù hợp.
Xem thêm các mẫu thiết kế nhà biệt thự 2 tầng mái thái
2.Cách tính diện tích xây dựng nhà 2 tầng xây bê tông
Qúy vị cần lưu ý về việc xây dựng là chỗ nào có bê tông là tính tiền chỗ đó thường các đơn vị xây dựng sẽ áp dụng như sau
Tầng hầm

Chi phí nhà 2 tầng có tầng hầm
Xây tầng hầm có độ sâu từ 1.0 đến 1.3m so với Code vỉa hè tính 150% diện tích.
Tầng hầm có độ sâu từ 1.3 đến 1.7m so với Code vỉa hè tính 170% diện tích.
Tầng hầm có độ sâu từ 1.7 đến 2.0m so với Code vỉa hè tính 200% diện tích.
Tầng hầm có độ sâu lớn hơn 2.0m so với Code vỉa hè tính 250% diện tích.
Phần Móng

Cách tính phần móng nhà
Công trình thi công móng băng, móng cọc phần móng tính 20% diện tích tầng trệt.
Công trình thi công móng bè, phần móng tính 50% diện tích tầng trệt.
Công năng các tầng
Tầng 1 (trệt): 100% diện tích xây dựng
Các tầng phía trên : 100% diện tích xây dựng/lầu, bao nhiêu tầng, lầu thì nhân lên
Phần mái nhà

Cách tính đơn giá phần mái nhà
Phần diện tích có mái che tính 100% diện tích. (Trệt, lửng, lầu 1, lầu 2,3,… Sân thượng có mái che).
Cách tính tiền nhân công xây nhà 2 tầng phần diện tích không có mái che ngoại trừ sân trước và sân sau tính 50% diện tích. (Sân thượng không mái che, sân phơi…)
Mái Tole tính 30% diện tích (Bao gồm toàn bộ phần xà gỗ sắt hộp và tole lợp) tính theo mặt nghiêng.
Mái bê tông cốt thép tính 50% diện tích.
Mái ngói kèo sắt tính 70% diện tích ( Bao gồm toàn bộ hệ khung kèo và ngói lợp) tính theo mặt nghiêng.
Mái ngói BTCT tính 100% diện tích (Bao gồm hệ ritô và ngói lợp) tính theo mặt nghiêng).
Ví dụ: Cách tính đơn giá nhà 2 tầng kích thước 8x10m diện tích 80m2 sử dụng mái bê tông cốt thép và vật tư trung bình thì hết bao nhiêu tiền?
Cách tính diện tích như sau
Phần móng: 8 x 10 x 50% = 40m2
Tầng 1: 8 x 10 x 100%= 80m2
Tầng 2: 8x 10 x 100%= 80m2
Mái ngói BTCT: 8x 10 x 100%= 80m2
Tổng diện tích sàn cần thi công sẽ là: 280m2
Xem thêm thiết kế nhà 2 tầng mái bằng
Phần thô: 280m2 x 3.5 triệu = 980.000.000 (đơn giá đã bao gồm phần thô + nhân công hoàn thiện)
Thi công trọn gói: 280m2 x 5.000.000 = 1.4 tỷ ( đã bao gồm phần thô + nhân công hoàn thiện + vật liệu hoàn thiện không bao gồm tủ bàn ghế, giường…)
Tham khảo một số mẫu thiết kế nhà 2 tầng đẹp như 1 minh chứng cho cách tính tiền nhân công xây nhà 2 tầng để quý vị có thể cân nhắc và lựa chọn.
Mẫu số 1: Cách tính tiền công xây nhà 2 tầng diện tích 120m2
-
Mã Sản Phẩm
Mẫu biệt thự BT419077
-
Số Tầng
2 tầng
-
Phong Cách
Biệt thự mang phong cách hiện đại
-
Mặt Tiền
7m
-
Chiều Sâu
19m
-
Diện Tích
120m2
-
Kinh Phí Đầu Tư
Khoảng 1.2- 1.3 tỷ đồng
-
Kích Thước Đất
800m2
-
Phương Án Móng
Móng Cọc
-
Cấu Tạo Mái
Vì kèo
-
Cấu Tạo Thang
Tay vịn gỗ, mặt gỗ, cổ đá
-
Lát Sàn
T1: Gạch, T2: Gạch
-
Chất Liệu Cửa
Cửa chính, Thông phòng gỗ, Kính
-
Trần Giả
Thạch cao
-
Phòng Ngủ
N1: 20m2, N2: 15m2, N3: 20.5m2
-
Phòng khác
Phòng ăn:
-
Quy cách hồ sơ
Khổ A3, khoảng 100 trang

Tìm hiểu cách tính chi phí tiền công xây nhà 2 tầng

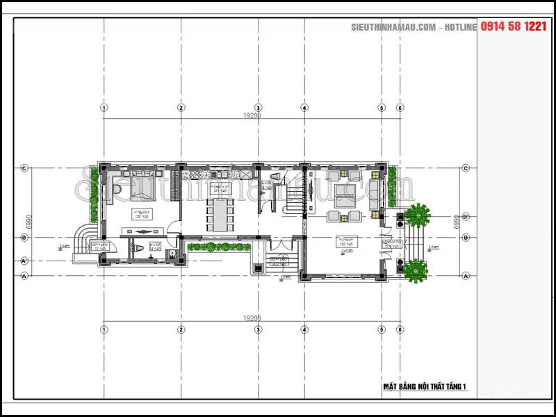
Chi phí xây nhà 2 tầng mặt tiền 7m đẹp – nội thất tầng 1

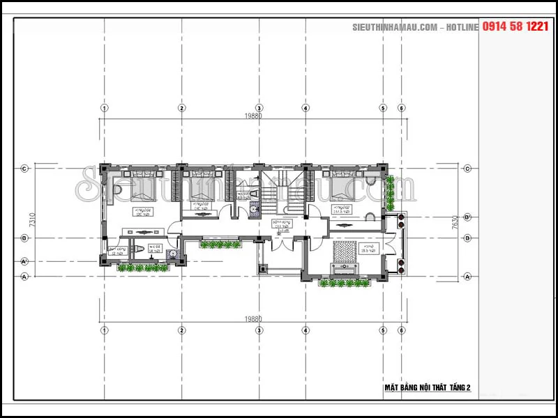
Cách tính tiền công xây nhà mặt tiền 7m – nội thất tầng 2
Mẫu số 2: Bản vẽ thiết kế nhà 2 tầng đẹp 100m2 hết bao nhiêu tiền
-
Mã Sản Phẩm
Mẫu biệt thự BT119077
-
Số Tầng
2 tầng
-
Phong Cách
Biệt thự hiện đại
-
Chiều Cao Tầng
Trống
-
Mặt Tiền
8m
-
Chiều Sâu
14m
-
Diện Tích
100m2
-
Kinh Phí Đầu Tư
Khoảng 1.2 đến 1.3 tỷ đồng
-
Kích Thước Đất
15x20m
-
Phương Án Móng
Móng Cọc
-
Cấu Tạo Mái
Vì kèo
-
Cấu Tạo Thang
Tay vịn gỗ, mặt gỗ, cổ đá
-
Lát Sàn
T1: Gạch, T2: Gạch
-
Chất Liệu Cửa
Cửa chính, Thông phòng gỗ, Kính
-
Trần Giả
Thạch cao
-
Phòng Khách
45m2
-
Phòng Ngủ
N1: 12,8m2, N2: 15.5m2, N3: 15.5m2
-
Phòng Thờ
Phòng thờ kết hợp phòng khách 45m2
-
Phòng Vệ Sinh
wc1: 4m2, wc2: 4m2
-
Phòng khác
Phòng ăn: 15.5m2
-
Quy cách hồ sơ
Khổ A3, khoảng 100 trang

Tham khảo cách tính tiền nhân công xây dựng nhà 2 tầng đẹp

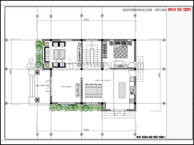
Mặt bằng tầng 1 biệt thự mini 100m2 cách tính tiền công xây dựng nhà 2 tầng

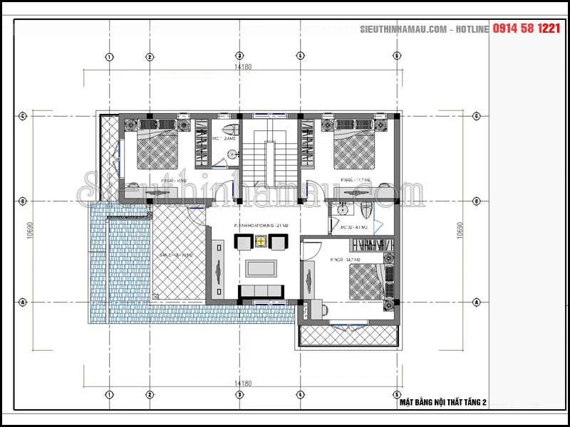
Mặt bằng tầng 2 tìm hiểu giá tiền công xây dựng nhà biệt thự 2 tầng mini 100m2
Có thể tham khảo thêm chi phí xây dựng nhà 2 tầng 100m2 chi tiết tỉ mỉ
Mẫu số 3: Chiêm ngưỡng mẫu thiết kế nhà biệt thự 2 tầng 105m2 ở Hải Dương
-
Mã Sản Phẩm
Mẫu biệt thự BT517077
-
Số Tầng
Mẫu nhà 2 tầng
-
Phong Cách
Biệt thự mang phong cách tân cổ điển
-
Mặt Tiền
8.5m
-
Chiều Sâu
12.5m
-
Diện Tích
105m2
-
Kinh Phí Đầu Tư
Khoảng 1.3 tỷ đồng
-
Kích Thước Đất
584m2
-
Phương Án Móng
Móng Cọc
-
Cấu Tạo Mái
Vì kèo
-
Cấu Tạo Thang
Tay vịn gỗ, mặt gỗ, cổ đá
-
Lát Sàn
T1: Gạch, T2: Gạch
-
Chất Liệu Cửa
Cửa chính, Thông phòng gỗ, Kính
-
Phòng khác
Phòng karaoke
-
Quy cách hồ sơ
Khổ A3, khoảng 100 trang

Phối cảnh nhà biệt thự 105m2 làm thế nào để biết cách tính đơn giá xây nhà 2 tầng

Cách tính tiền nhân công xây nhà 2 tầng 105m2 -nội thất tầng 1

Chi phí xây mặt bằng tầng 2 nhà biệt thự 105m2 2 tầng
Mẫu số 4: Mẫu thiết kế nhà biệt thự 2 tầng 100m2 giá bao nhiêu tiền
-
Mã Sản Phẩm
Mẫu biệt thự BT921077
-
Số Tầng
2 tầng
-
Phong Cách
Biệt thự hiện đại
-
Mặt Tiền
8.6m
-
Chiều Sâu
13m
-
Diện Tích
100m2
-
Kinh Phí Đầu Tư
Khoảng 1.2 tỷ đồng
-
Kích Thước Đất
13.5x38m
-
Phương Án Móng
Móng Cọc
-
Cấu Tạo Mái
Vì kèo thép
-
Cấu Tạo Thang
Tay vịn gỗ, mặt gỗ, cổ đá
-
Lát Sàn
T1: Gạch, T2: Gạch
-
Chất Liệu Cửa
Cửa chính, Thông phòng gỗ, Kính
-
Phòng Khách
17.2m2
-
Phòng SHC
21m2
-
Phòng Ngủ
N1: 14.7m2, N2: 14.7m2, N3: 15m2
-
Phòng Thờ
16.8m2
-
Phòng khác
Phòng bếp ăn: 33m2
-
Quy cách hồ sơ
Khổ A3, khoảng 100 trang

giải đáp xây nhà 2 lầu 4 phòng ngủ hết bao nhiêu tiền

Tầng 1 nhà 2 lầu 4 phòng ngủ đẹp giá bao nhiêu tiền

Cách tính tiền nhân công nhà 2 lầu 4 phòng ngủ hết bao nhiêu tiền- tầng 2
Cách tính tiền nhân công xây nhà 2 tầng đã giúp cho các gia chủ có thể chủ động được trong việc thiết kế và xây dựng ngôi nhà của mình đúng với dự kiến.
III. Chọn thời điểm xây dựng hợp lý

Lựa chọn thời điểm xây dựng hợp lý sẽ tiết kiệm được chi phí
Để cách tính tiền nhân công xây nhà 2 tầng được rẻ và tiết kiệm thì thời gian xây dựng phải tùy vào từng thời điểm vào mùa xây dựng thì giá vật tự xây dựng sẽ tăng giá hoặc vào thời điểm thời tiết mưa nhiều vì thế các vật liệu xây dựng sẽ theo đó mà giảm nhẹ. Có những thời điểm thị trường xây dựng nhộn nhịp, vật tư khan hiếm thì giá thành trở nên đắt đỏ.
Tuy nhiên, theo kinh nghiệm thi công của công ty siêu thị nhà mẫu thì giá vật tư sẽ tăng lên theo thời gian nên có tiền bạn nên xây sớm thì càng tốt hơn và lựa chọn việc thiết kế để sở hữu được ngôi nhà vừa đẹp vừa tận dụng được hết công năng.
Cách tính chi phí xây nhà 2 tầng các gia chủ nên chọn xây dựng vào mua khô ráo, thời tiết này thi công sẽ không bị gián đoạn từ đó tiết kiệm chi phí một cách đáng kể.
Chi phí xây nhà 2 tầng 80m2 thiết kế nhà theo phong cách hiện đại, tối giản sẽ tiết kiệm chi phí nhiều hơn so với phong cách cổ điển hoặc tân cổ bởi các kiến trúc này cần nhiều chi tiết đắp vẽ hay nhiều phào chỉ. Vì thế nếu bạn không có nhiều chi phí hãy chọn kiểu thiết kế kiến trúc này.
Bên cạnh đó những vật liệu hoàn thiện như gạch, sơn hay kệ tủ bếp, cửa…. nên chọn chất liệu tầm trung theo ngân sách của gia đình mình. Ưu tiên những vật liệu hoàn thiện phần chính các mảng lớn trước sau đó mới đến các phần chi tiết nhỏ.
Việc tối giản trong thiết kế còn giúp tiết kiệm diện tích mang đến không gian sống rộng rãi, thoáng mát hơn.
Trên đây là bài viết chúng tôi đưa đến cho bạn và gia đình một cách tính tiền nhân công xây nhà 2 tầng đẹp một cách chi tiết nhất.
Qúy khách có nhu cầu thiết kế nhà 2 tầng chi phí thấp vui lòng liên hệ qua Hotline: 0914 581221



