Thiết kế nhà 2 tầng 2 mặt tiền mái thái mang những đặc điểm và những ưu thế nhất định vì vậy nó được rất nhiều gia đình ưa chuộng và lựa chọn. Bạn có thể sẽ tìm được những mẫu nhà ưng ý phù hợp với nhu cầu của gia đình với những mẫu thiết kế nhà 2 tầng mái thái mang nhiều nét đặc trưng của Việt Nam sẽ là một công trình “để đời” ấn tượng nhất của các gia đình.
Thiết kế nhà 2 tầng 2 mặt tiền mái thái được xem như là một lợi thế
Được biết thiết kế nhà 2 tầng 2 mặt tiền mái thái là những mẫu thiết kế nhà được cho là phù hợp với nhiều gia đình nhất bởi nhà 2 tầng không quá cao cũng như diện tích xây dựng vừa phải đáp ứng được nhu cầu về không gian đủ số lượng như phòng ngủ đủ cho các thành viên trong gia đình.
Khác xa so với những mẫu nhà 1 tầng cần phải sử dụng mặt sàn rộng mới bố trí được số lượng phòng ngủ nhưng với những mẫu thiết kế nhà 2 tầng thì sẽ tiết kiệm được diện tích hơn với cách là tăng chiều cao nhà lên (nhà 2 tầng, 3 tầng …) và những nhà cao tầng thường sẽ phù hợp với những nhà ở phố với
Nhiều gia đình sở hữu những lô đất có diện tích đất rộng lớn là một lợi thế và có giá trị về mặt bất động sản bao giờ nhà có 2 mặt tiền giá sẽ cao hơn so với những mẫu nhà có 1 mặt tiền. Với những gia đình có mặt tiền thoáng đãng cũng được xem trọng hơn những ngôi nhà sâu trong ngõ ngách. Bởi mặt tiền sẽ quyết định được không gian không khí và cách bố trí phòng ốc sao cho có góc view và đón nhận được những ánh sáng tự nhiên từ bên ngoài. Đây chính là điểm đáng giá nhất thiết kế nhà 2 tầng 2 mặt tiền mái thái là vậy.
Không gian kiến trúc của những mẫu thiết kế nhà 2 tầng 2 mặt tiền mái thái
Mặt tiền là nơi để người nhìn ngôi nhà đó tỷ lệ đẹp hay xấu và có thể nhận xét ngôi nhà đó có phù hợp với mục đích của họ hay không vì mặt tiền có thể để phục vụ làm kinh doanh dịch vụ nếu là nhà mặt phố hay nhà có mặt tiền rộng, vì thế mặt tiền vô cùng quan trọng phải không nào?
Thiết kế nhà 2 tầng 2 mặt tiền đẹp có mặt tiền được xem là thiết kế có lợi thế nhất với việc sử dụng mặt tiền có được thiết kế với những kiến trúc đẹp được thiết kế với những kiến trúc đẹp mang đến sự tự tin cũng như niềm tự hào cho gia chủ. Mẫu thiết kế nhà 2 tầng 2 mặt tiền mái thái thiết kế với những kiến trúc trúc rất đa dạng với 2 mặt tiền gia chủ có thể bố trí nhà của mình được thông thoáng hơn và đẹp mắt hơn.
Ngoại thất nhà 2 tầng 2 mặt tiền mái thái ở nông thôn được chú trọng
-Ngoại thất nhà 2 tầng 2 mặt tiền mái thái cần phải được đồng bộ
Thiết kế ngoại thất cần đảm bảo các tiêu chí đạt tính cân đối, tính thẩm mỹ cũng như hài hòa về màu sắc và các khuôn viên phụ trợ đi cùng mới tạo được sự đồng bộ trong thiết kế.
-thiết kế ngoại thất 2 mặt tiền sẽ làm tăng chi phí thiết kế
Đối với nhà 1 mặt tiền chi phí thiết kế với 1 đơn giá và 2 mặt tiền thì chi phí sẽ tăng lên bởi các kiến trúc sư sẽ phải vẽ và cân đối hay trang trí nhiều hơn cần mất nhiều thời gian hơn, hoặc những gia đình nào yêu cầu “độc quyền” các kiến trúc sư cần phải xử lý và sáng tác nhiều hơn và tốn công nhiều hơn.
Mẫu thiết kế nhà 2 tầng 2 mặt tiền luôn đem đến một không gian thoáng đãng
Có thể nói nhiều người quan niệm có mặt tiền đẹp là được không quan tâm đến các yếu tố xung quanh, bởi mặt tiền thoáng sẽ giúp không gian nhà trở nên thoáng đãng, sáng sủa và mát mẻ. Vậy nhà 2 mặt tiền còn giúp không khí lưu thông và đem đến cho gia chủ một cửa hay 1 sảnh để giúp cho ngôi nhà thêm đẹp mắt.
Tham khảo các mẫu thiết kế nhà biệt thự 2 tầng 2 mặt tiền mái thái đẹp nhất
Thiết kế nhà 2 tầng 2 mặt tiền mái thái tân cổ điển được thiết kế đem đến sự thoáng đãng
-
Mã Sản Phẩm
Mẫu biệt thự BT641077
-
Số Tầng
Nhà biệt thự 2 tầng
-
Phong Cách
Biệt thự hiện đại
-
Chiều Cao Tầng
Trống
-
Mặt Tiền
10m
-
Chiều Sâu
12m
-
Diện Tích
100m2
-
Kinh Phí Đầu Tư
Khoảng 1.5 đến 1.7 tỷ đồng
-
Kích Thước Đất
13x16m
-
Phương Án Móng
Móng Cọc
-
Cấu Tạo Mái
Vì kèo
-
Cấu Tạo Thang
Tay vịn gỗ, mặt gỗ, cổ đá
-
Lát Sàn
T1: Gạch, T2: Gạch, T2.5: Gạch
-
Chất Liệu Cửa
Cửa chính, Thông phòng gỗ, Kính
-
Trần Giả
Thạch cao
-
Phòng Khách
31m2
-
Phòng SHC
Không có phòng SHC
-
Phòng Ngủ
N1: 16.5m2, N2: 16.5m2, N3: 17m2
-
Phòng Vệ Sinh
wc1: 3m2, wc2: 4m2
-
Phòng khác
Phòng ăn: 17.5m2
-
Quy cách hồ sơ
Khổ A3, khoảng 100 trang

Thiết kế mặt tiền nhà biệt thự 2 tầng 2 mặt tiền mái thái 10x12m

Bản vẽ thiết kế nhà 2 tầng 2 mặt tiền mái thái đẹp diện tích 120m2

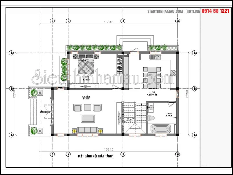
Bản vẽ nội thất tầng 1 biệt thự 10x12m 2 mặt tiền 2 tầng đẹp

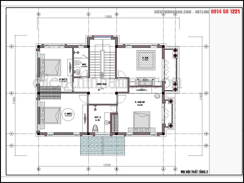
Bản vẽ nội thất tầng 2 mẫu biệt thự 10x12m 2 tầng 2 mặt tiền

Bản vẽ tầng tum bệt thự 2 tầng 10x12m 2 tầng mái thái 2 mặt tiền
Mẫu thứ 2: Mẫu thiết kế nhà 2 tầng 2 mặt tiền hiện đại 150m2 đẹp mái thái
-
Mã Sản Phẩm
Mẫu biệt thự BT121077
-
Số Tầng
2 tầng
-
Phong Cách
Biệt thự mang phong cách hiện đại
-
Chiều Cao Tầng
Trống
-
Mặt Tiền
11.5m
-
Chiều Sâu
14m
-
Diện Tích
150m2
-
Kinh Phí Đầu Tư
Khoảng 1.2 đến 1.3 tỷ đồng
-
Kích Thước Đất
19x21m
-
Phương Án Móng
Móng Băng
-
Cấu Tạo Mái
Vì kèo
-
Cấu Tạo Thang
Tay vịn gỗ, mặt gỗ, cổ đá
-
Lát Sàn
T1: Gạch, T2: Gạch
-
Chất Liệu Cửa
Cửa chính, Thông phòng gỗ, Kính
-
Phòng SHC
Không có phòng SHC
-
Phòng Thờ
26m2
-
Phòng Vệ Sinh
wc1: 4.5m2
-
Gara ô tô
Không có gara ô tô trong nhà
-
Phòng khác
Phòng ăn: Trống
-
Quy cách hồ sơ
Khổ A3, khoảng 100 trang

Bản vẽ thiết kế nhà 2 tầng hoàn chỉnh 2 mặt tiền mái thái

Bản vẽ mặt bằng tầng 1 nhà 2 tầng hoàn chỉnh 2 mặt tiền mái thái đẹp

Bản vẽ tầng 2 mẫu thiết kế nhà 2 tầng hoàn chỉnh mái thái 2 mặt tiền
Mẫu thứ 3: Mẫu thiết kế nhà 2 tầng mái thái 2 mặt tiền diện tích 120m2
-
Mã Sản Phẩm
Mẫu biệt thự BT319077
-
Số Tầng
2 tầng
-
Phong Cách
Biệt thự mang phong cách tân cổ điển
-
Chiều Cao Tầng
Trống
-
Mặt Tiền
7m
-
Chiều Sâu
19m
-
Diện Tích
120m2
-
Kinh Phí Đầu Tư
Khoảng 1.2- 1.3 tỷ đồng
-
Kích Thước Đất
800m2
-
Phương Án Móng
Móng Cọc
-
Cấu Tạo Mái
Vì kèo
-
Cấu Tạo Thang
Tay vịn gỗ, mặt gỗ, cổ đá
-
Lát Sàn
T1: Gạch, T2: Gạch
-
Chất Liệu Cửa
Cửa chính, Thông phòng gỗ, Kính
-
Trần Giả
Thạch cao
-
Phòng Khách
Trống
-
Phòng SHC
Không có phòng SHC
-
Phòng Ngủ
Trống
-
Phòng Thờ
Trống
-
Phòng Vệ Sinh
Trống
-
Gara ô tô
Không có gara ô tô trong nhà
-
Phòng khác
Phòng ăn:
-
Quy cách hồ sơ
Khổ A3, khoảng 100 trang

Nhà đẹp 2 tầng phong cách tân cổ điển mái thái 2 mặt tiền

Mặt bằng tầng 1 nhà 2 tầng mái thái 2 mặt tiền

Mặt bằng tầng 2 nhà 2 tầng 2 mặt tiền diện tích 120m2 mái thái đẹp
Mẫu thứ 4: Mẫu thiết kế nhà 2 tầng 2 mặt tiền mái thái hiện đại diện tích 110m2
-
Mã Sản Phẩm
Mẫu biệt thự BT321077
-
Số Tầng
Nhà biệt thự 2 tầng
-
Phong Cách
Biệt thự mang phong cách hiện đại
-
Chiều Cao Tầng
Trống
-
Mặt Tiền
8m
-
Chiều Sâu
15m
-
Diện Tích
110m2
-
Kinh Phí Đầu Tư
Khoảng 1.3 tỷ đồng
-
Kích Thước Đất
18×17.3m
-
Phương Án Móng
Móng Băng
-
Cấu Tạo Mái
Vì kèo thép
-
Cấu Tạo Thang
Tay vịn gỗ, mặt gỗ, cổ đá
-
Lát Sàn
T1: Gạch, T2: Gạch
-
Chất Liệu Cửa
Cửa chính, Thông phòng gỗ, Kính
-
Trần Giả
Trống
-
Phòng Khách
30m2
-
Phòng SHC
Không có phòng SHC
-
Phòng Ngủ
N1: 18.5m2, N2: 14.5m2, N3: 13.5m2, N4:14.5m2
-
Phòng Thờ
10m2
-
Phòng Vệ Sinh
wc1: 9m2, wc2: 4.5m2
-
Gara ô tô
Không có gara ô tô trong nhà
-
Phòng khác
Phòng bếp ăn: 19m2
-
Quy cách hồ sơ
Khổ A3, khoảng 100 trang

Thiết kế nhà 2 tầng 8x14m 2 mặt tiền mái thái
Thiết kế nhà 2 tầng 2 mặt tiền mái thái sử dụng gam màu sắc để giúp không gian tươi tắn hơn Với việc sử dụng gam màu sắc đa dạng thì gam màu vàng luôn tạo sự ấm áp và nhẹ nhàng cho không gian.
So với các màu khác, thì màu vàng là màu dễ dùng, dễ đẹp trong hình ảnh kiến trúc và các không gian nội thất. Màu vàng có thể biến thiên từ màu vàng cơ bản đến vàng nhạt; từ vàng cho đến đỏ trong dải màu cam, hay từ vàng đến lam trong dải màu xanh lá.
Sắc vàng cũng xuất hiện trong dải màu nâu đặc trưng của gỗ, của đất. Màu vàng cho cảm giác gần gũi, ấm áp… nên nhiều người thích. Sắc vàng đủ ấm áp chứ không chói gắt như màu đỏ, và vì vậy rất thích hợp với không gian nội thất nhà ở gia đình. Ở ngoại thất, bề ngoài kiến trúc, màu vàng rất “được nắng” để tôn cho công trình thêm tươi sáng, hài hòa với cây xanh.
Về mặt ngũ hành, màu vàng thuộc hành thổ, là trung tâm, trung ương. Chính vì vậy mà màu vàng có đủ sự cân bằng, không quá dương tính, cũng không âm tính. Màu vàng có tính trung bình, quân bình. Sắc màu này cũng phù hợp với nhiều lứa tuổi, giới tính.
Màu vàng có thể xuất hiện trên bề mặt công trình kiến trúc, có thể ở trong nội thất với rất nhiều vị trí: đó là sàn, các mảng tường, trần, đồ gỗ, mành, rèm… với nhiều sắc tố và sắc độ khác nhau. Ở một quan niệm khác, màu vàng là màu tượng trưng cho vua chúa, cho giàu sang quyền quý; và đó cũng là lý do nhiều người chọn màu vàng cho không gian của mình.
Màu vàng cũng có thể được tạo bởi ánh sáng (ánh sáng vàng) trong không gian nội thất, ngoại thất. Trên những bề mặt có màu dễ ám sắc như màu trắng, thì sẽ chuyển hóa thành vàng khi được chiếu sáng bởi ánh sáng màu vàng; tạo nên sự biến đổi sắc màu cục bộ, tức thời.
Thực tế cho thấy, màu vàng được sử dụng nhiều hơn ở những không gian mang tính cổ điển hay có âm hưởng xưa cũ; tạo nên sự nhã nhặn, mềm mại, dung hòa. Khi sử dụng màu vàng, nên kết hợp với màu nâu sẫm (cùng tông), hoặc các màu lạnh, màu trắng để có sự cân bằng.

Nội thất tầng 1 mẫu thiết kế nhà 2 tầng mái thái 2 mặt tiền

Thiết kế nhà 2 tầng 8x14m 2 mặt tiền mái thái nội thất tầng 2
Mẫu thứ 5: Thiết kế nhà vườn 2 tầng 2 mặt tiền phong cách tân cổ điển đẹp
-
Mã Sản Phẩm
Nhà vườn biệt thự BT917077
-
Số Tầng
Mẫu nhà vườn 2 tầng
-
Phong Cách
Biệt thự mang phong cách tân cổ điển
-
Chiều Cao Tầng
Trống
-
Mặt Tiền
8.5m
-
Chiều Sâu
12.5m
-
Diện Tích
105m2
-
Kinh Phí Đầu Tư
Khoảng 1.3 tỷ đồng
-
Kích Thước Đất
584m2
-
Phương Án Móng
Móng Cọc
-
Cấu Tạo Mái
Vì kèo
-
Cấu Tạo Thang
Tay vịn gỗ, mặt gỗ, cổ đá
-
Lát Sàn
T1: Gạch, T2: Gạch
-
Chất Liệu Cửa
Cửa chính, Thông phòng gỗ, Kính
-
Trần Giả
Thạch cao
-
Phòng Khách
Trống
-
Gara ô tô
Không có gara ô tô trong nhà
-
Quy cách hồ sơ
Khổ A3, khoảng 100 trang

Phối cảnh nhà vườn tân cổ điển mái thái 2 tầng 2 mặt tiền đẹp

Thiết kế kế nhà vườn tân cổ điển mái thái 2 mặt tiền – nội thất tầng 1

Thiết kế nội thất tầng 2 nhà vườn tân cổ điển mái thái 2 mặt tiền đẹp
Phần nội thất nhà 2 tầng 2 mặt tiền mái thái được xây dựng
Tất cả các thiết kế nhà 2 tầng 2 mặt tiền mái thái mang đậm nét kiến trúc truyền thống của Việt Nam với thiết kế hình vuông, mái lợp ngói ta kiểu mái thái, nhà hẹp chiều ngang, có nhiều lớp sân trong ngăn cách, ngoài cùng là sân. Phía trong có giếng trời để lấy ánh sáng và đón gió tạo cảm giác thư thái, gần gũi với thiên nhiên. Phía sau có vườn làm nơi trồng cây.
Kết cấu chủ yếu của ngôi nhà là hệ thống bê tông với nhiều cửa lùa tiện dụng thay thế cho gỗ. Mái lợp ngói với vì kèo rất tiết kiệm so với đổ mái bê tông. Vật dụng trong nhà hầu hết đều là những món đồ bằng gỗ gợi lên không khí trang trọng mà ấm cúng.
Các cửa chính tất cả các mẫu thiết kế nhà 2 tầng 2 mặt tiền mái thái được làm bằng gỗ được trang trí bằng những hoa văn tinh tế. Bàn thờ tổ tiên với hoành phi câu đối bằng gỗ lim. Phòng ngủ và khu vực tiếp khách riêng được gia chủ kê bàn ghế ở chính giữa, trên tường treo những bức vẽ tùng cúc trúc mai thanh nhã. Toàn bộ nội thất thể hiện sự sung túc và sang trọng của chủ nhân ngôi nhà.
Khu vực bếp nằm sâu trong cùng với những đồ tủ chạn, bếp, bàn bếp mặt bằng đá với đầy đủ như tủ lạnh, lò vi sóng… Cảnh trí sinh hoạt hiện ra ấm áp, yên bình và ngăn nắp như làm sống dậy nếp sống luôn ấm áp vui tươi.
Mái nhà 2 tầng 2 mặt tiền sử dụng mái thái
Hãy lướt qua những mẫu thiết kế nhà 2 tầng 2 mặt tiền mái thái, những nét hoa văn tinh tế của một lối kiến trúc hiện đại có, cổ điển có với những phong cách đan xen không quá cầu kỳ tỉ mỉ nhưng mái thái hiện lên vẻ thanh thoát, nhẹ nhàng cũng như phù hợp với mọi kiến trúc.
Phòng khách nhà 2 tầng 2 mặt tiền mái thái
Phòng khách nhà 2 tầng 2 mặt tiền mái thái thường sẽ được ưu tiên và chọn lựa đặt ở những nơi tiện dụng và tập trung nhất hay nói cách khác là nơi rộng đẹp nhất của ngôi nhà, với lối thiết kế đem đến sự hoàn thiện trong vẻ đẹp của kiến trúc của các hình khối ngôi nhà vuông vắn và cân đối.
Phòng khách là không gian tiếp đón là nơi để bạn bè hàn huyên không gian cần được mở rộng tối đa không gian lịch sự trang trọng, một không gian ấm cúng là nơi để gia đình quay quần và làm cho các thành viên trong gia đình cảm thấy gắn kết.
Một yếu tố decor không thể thiếu trong mỗi ngôi nhà là rèm cửa.
Sử dụng rèm là cách decor để tạo ra những không gian ấm cúng, riêng tư, mềm mại từ những tấm rèm. Ngoài những không gian ngoài trời, rèm hầu như có mặt khắp mọi nơi trong không gian. Rèm sử dụng ở đây không đồng nhất mà đa dạng có chủ đích cho từng không gian riêng. Ở những khu vực khác, những chiếc rèm được bố trí khéo léo giúp tạo ra không gian thật sự riêng tư khi cần cho những câu chuyện làm ăn, và cả những câu chuyện khác.
Một nét dễ thương khác để làm tôn thêm vẻ sang trọng, yên ả của một mẫu thiết kế nhà 2 tầng 2 mặt tiền mái thái bên cạnh những tấm rèm là những bộ bàn ghế êm ái mang đậm vẻ đẹp cổ điển nhưng không trùng lắp. Để cho người ngồi có cảm giác như mình thật sự được tôn trọng. Với đội ngũ thiết kế chuyên nghiệp chúng tôi mang đến những mẫu thiết kế nhà 2 tầng 2 mặt tiền mái thái với những công năng tuyệt hảo.
Không gian phòng ngủ nhà 2 tầng 2 mặt tiền mái thái đẹp
Các tiêu chí khi thiết kế phòng ngủ là thiết kế phòng ngủ phải đủ ánh sáng, thông thoáng cũng như cần phải biết phân chia ánh sáng ngày và đêm bởi nếu ban đêm thắp đèn quá sáng cũng sẽ ảnh hưởng đến giấc ngủ và ban ngày thì ánh sáng cũng cần đủ để sinh hoạt hàng ngày.
Thiết kế phòng ngủ quá nhỏ cũng gây ức chế và bí bách sẽ làm cho người sinh hoạt ở đó cảm thấy thoải mái và di chuyển không bị cản trở. Các thiết kế nhà 2 tầng 2 mặt tiền mái thái được thiết kế với những kiến trúc đẹp mắt ấn tượng sang trọng trong phòng ngủ.
Phòng thờ
Không gian phòng thờ nhà 2 tầng 2 mặt tiền mái thái được thiết kế với những kiến trúc phù hợp với người Á đông việc thiết kế phòng thờ là vô cùng cần thiết nó là không gian thờ cúng đậm nét của người Việt. Gia đạo của gia đình Việt là được thiết kế ban thờ cúng tổ tiên có thể đặt ở vị trí tầng 1 giữa phòng khách hoặc trên tầng 2 tạo độ trang trọng và kín đáo.
Mọi tư vấn giải đáp quý khách hàng vui lòng liên hệ tư vấn miễn phí qua Hotline: 0914 581221



