Tổng hợp 21 mẫu nhà cấp 4 đẹp diện tích từ 100- 120m2 là một gợi ý để bạn và gia đình có thể tham khảo nhằm giúp các gia đình có thể định hình về kiểu dáng kiến trúc hay phong cách có thể áp dụng cho ngôi nhà của bạn sau này một cách dễ dàng nhất.
Những ngày tháng cuối năm cũng là thời điểm thuận lợi để xây dựng, nhưng những mẫu nhà cấp 4 diện tích từ 100- 120m2 lại được bắt đầu chú ý trong thời gian gần đây. Việc xây dựng cũng không phải là điều quá khó đối với nhiều cá nhân và gia đình, nhưng để lựa chọn và tìm ra một phong cách phù hợp với sở thích cũng là một vấn đòi hỏi cần một nhà thầu xây dựng có kinh nghiệm, có con mắt thẩm mĩ nhằm đạt được một công trình hoàn hảo.
Gợi ý 21 mẫu nhà cấp 4 đẹp ở nông thôn sử dụng cho các gia đình có diện tích đất rộng, thoáng đãng và nhiều cây xanh (đặc biệt là một số vùng ở quê).
Có thể nói xây những mẫu nhà cấp 4 ở nông thôn vô cùng đẹp vì không gian thoáng đãng, mật độ xây dựng thấp nên rất phù hợp với những loại kiến trúc này.Hãy cùng tìm hiểu những điểm nổi bật nhất của 21 mẫu nhà cấp 4 đẹp ở nông thônThứ nhất: 21 mẫu nhà cấp 4 đẹp thường chi phí xây dựng không quá cao vì còn tùy thuộc vào diện tích xây dựngBảng tính toán chi phí xây dựng cho 21 mẫu nhà cấp 4 đẹp diện tích từ 100 -120m2 được các kỹ sư tính toán chi tiết để bạn và gia đình có thể tham khảo.
Bảng tính toán chi phí sơ bộ cho mẫu nhà cấp 4 diện tích 100m2
Giá trị tạm tính:
* Đơn giá trung bình xây dựng cho công trình này: 5.500 (Triệu/m2)
* Trường hợp chỉ làm vì kèo lợp ngói, đóng trần chi phí là: 805.000.000
* Trường hợp đổ bê tông mái bằng và mái dốc, chi phí là: 1.100.000.000
Ghi chú:
* Thông số khối lượng tính toán trên chỉ mang tính tham khảo
* Đơn giá vật tư ở mức hoàn thiện cơ bản trung bình
* Đơn giá trên là đơn giá chủ đầu tư trực tiếp thi công
* Chi phí khác: Đào móng, lấp cọc, ép cọc, phát sinh công,….= 10- 15% chi phí tổng
* Đối với nhà cấp 4 mái ngói:
Thứ hai: 21 mẫu nhà cấp 4 đẹp phụ thuộc vào vật liệu xây dựng mà bạn sử dụng. Thông thường công ty siêu thị nhà mẫu chúng tôi áp dụng tính chi phí hoàn thiện xây dựng theo đơn giá hoàn thiện cơ bản xây dựng là 4-6 triệu/m2.
Điểm qua 21 mẫu nhà cấp 4 diện tích 100-120m2 ở nông thôn với mức chi phí vừa phải
Tổng hợp 21 mẫu nhà cấp 4 đẹp ở nông thôn là những mẫu nhà cấp 4 diện tích từ 100 – 120m2 được thiết kế với những phong cách đa dạng từ phong cách kiến trúc, kiểu mái thái, dốc… được chúng tôi tổng hợp với chi phí vừa phải dao động từ 700 triệu đến 1 tỷ để bạn và gia đình có thể dự trù và tính toán cho mẫu thiết kế nhà cấp 4 đẹp của mình sao cho hợp lý.
Dưới đây mời quý vị và các bạn cùng tham khảo 21 mẫu nhà cấp 4 đẹp đã được thi công thực tế, hy vọng bạn và gia đình sẽ lựa chọn được những mẫu nhà ưng ý phù hợp với sở thích và điều kiện gia đình mình.
Mẫu nhà số 1: Nhà cấp 4 của ông Nguyễn Văn Long – Thanh Hóa
- Mã Sản Phẩm
BT207077
- Phong Cách
Biệt thự 1 tầng mang phong cách châu âu cổ điển
- Chiều Cao Tầng
Trống
- Mặt Tiền
9m
- Chiều Sâu
13.6m
- Diện Tích
100m2
- Kinh Phí Đầu Tư
Khoảng 700 triệu đồng
- Kích Thước Đất
12x25m = 300m2
- Phương Án Móng
Móng Băng
- Cấu Tạo Mái
Vì Kèo
- Lát Sàn
T1: Gạch
- Quy cách hồ sơ
Khổ A3, khoảng 100 trang

Mẫu số 1 trong tổng số 21 mẫu nhà cấp 4 đẹp mang phong cách tân cổ điển

Không gian nội thất nhà cấp 4 diện tích 120m2 đẹp ở nông thôn
Mẫu số 2: Thiết kế nhà cấp 4 kích thước 7x14m
- Mã Sản Phẩm
BT101077
- Phong Cách
Biệt thự 1 tầng mang phong cách hiện đại
- Mặt Tiền
7m
- Chiều Sâu
17m
- Diện Tích
120m2
- Kinh Phí Đầu Tư
Khoảng 750 triệu đồng
- Kích Thước Đất
8x20m
- Phương Án Móng
Móng Băng
- Cấu Tạo Mái
Vì Kèo
- Lát Sàn
T1: Gạch
- Chất Liệu Cửa
Cửa chính, Thông phòng gỗ, Kính
- Trần Giả
Trống
- Phòng Khách
20m2
- Quy cách hồ sơ
Khổ A3, khoảng 100 trang

21 mẫu nhà cấp 4 đẹp mẫu số 2 phối cảnh ngoại thất nhà 7x14m

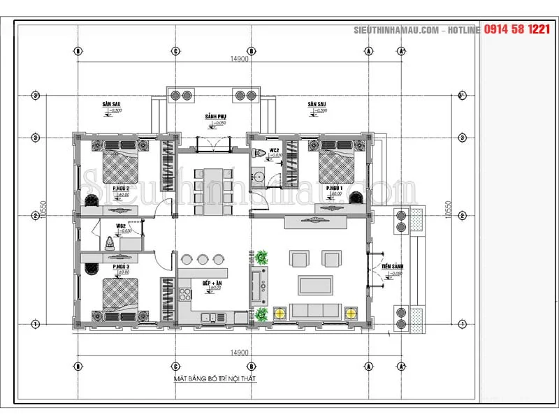
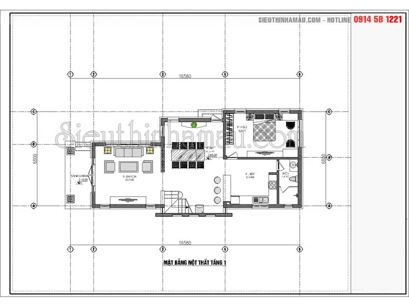
Tham khảo công năng mặt bằng nôi thất nhà cấp 4 100m2 ở nông thôn đẹp mê ly
Mẫu số 3: Mẫu nhà cấp 4 diện tích 120m2 của bà Hòe ở Phú Thọ
- Mã Sản Phẩm
BT613077
- Phong Cách
Thiết kế biệt thự phong cách tân cổ điển đẹp
- Mặt Tiền
11m
- Chiều Sâu
14m
- Diện Tích
120m2
- Kinh Phí Đầu Tư
Khoảng 1.2 tỷ đồng
- Kích Thước Đất
630m2
- Phương Án Móng
Móng Băng
- Cấu Tạo Mái
Vì Kèo
- Lát Sàn
T1: Gạch
- Chất Liệu Cửa
Cửa chính, Thông phòng gỗ, Kính
- Phòng Khách
19.5m2
- Tiền sảnh
7.5m2
- Phòng Ngủ
phòng ngủ 1: 16m2, phòng ngủ 2: 13.5m2, phòng ngủ 3: 21m2
- Phòng Thờ
14m2
- Phòng Vệ Sinh
WC 1: 3.5m2, WC 2: 7.5m2
- Quy cách hồ sơ
Khổ A3, khoảng 100 trang

21 mẫu nhà cấp 4 nông thôn đẹp – mẫu nhà số 3

Góc view tổng thể mẫu nhà số 3 trong bộ sưu tập 21 mẫu nhà cấp 4 đẹp
Mẫu số 4: Mẫu thiết kế nhà cấp 4 theo phong cách hiện đại 3 phòng ngủ
- Mã Sản Phẩm
Mẫu biệt thự đẹp BT209077
- Phong Cách
Kiến trúc hiện Đại
- Mặt Tiền
12m
- Chiều Sâu
10m
- Diện Tích
120m2
- Kinh Phí Đầu Tư
Tối thiểu 3 tỷ đồng
- Kích Thước Đất
500m2
- Phương Án Móng
Móng Cọc
- Cấu Tạo Mái
Vì kèo
- Chất Liệu Cửa
Trống
- Phòng Khách
20m2
- Phòng Ngủ
Phòng ngủ bố mẹ: 18m2,
- Phòng bếp ăn
18m2
- Quy cách hồ sơ
Khổ A3, khoảng 200 trang

Mẫu nhà cấp 4 ở nông thôn cũng vô cùng hoành tráng và đẳng cấp

Một trong số 21 mẫu nhà cấp 4 đẹp được thiết kế ngoại thất hoàn toàn ốp đá

Mặt bằng được bố trí hài hòa cả về công năng kết hợp với thiên nhiên

Thiết kế nội thất rộng rãi phóng khoáng đẹp mắt
Mẫu số 5: Thiết kế nhà cấp 4 2 phòng ngủ diện tích 110m2
- Mã Sản Phẩm
BT507077
- Phong Cách
- Mặt Tiền
8m
- Chiều Sâu
14m
- Diện Tích
110m2
- Kinh Phí Đầu Tư
Khoảng 700 triệu đồng
- Kích Thước Đất
18x50m = 900m2
- Phương Án Móng
Móng Băng
- Cấu Tạo Mái
Vì Kèo
- Lát Sàn
T1: Gạch
- Chất Liệu Cửa
Cửa chính, Thông phòng gỗ, Kính
- Phòng Khách
Trống
- Phòng SHC
Không có phòng SHC
- Phòng Ngủ
2 phòng ngủ
- Quy cách hồ sơ
Khổ A3, khoảng 100 trang

Một mẫu nhà mặt phố đẹp xinh qua bàn tay thiết kế của kiến trúc sư

Cảnh quan kiến trúc nhà cấp 4 đẹp thu hút mọi ánh nhìn

Mặt bằng tổng thể cân đối được cả về không gian các phòng

Tổng quan mặt bằng nhà cấp 4 được được thiết kế vô cùng linh hoạt
Mẫu số 6: Mẫu nhà 1.5 tầng kích thước 7x15m do ông Thuấn – Thanh Hóa
- Mã Sản Phẩm
BT908077
- Số Tầng
1.5 tầng
- Phong Cách
Hiện Đại
- Mặt Tiền
7m
- Chiều Sâu
15m (chưa bao gồm sảnh)
- Diện Tích
100m2
- Kinh Phí Đầu Tư
Khoảng 700 triệu đồng
- Kích Thước Đất
10m x 21m= 210m2
- Phương Án Móng
Móng Băng
- Cấu Tạo Mái
Vì Kèo
- Lát Sàn
T1: Gạch
- Chất Liệu Cửa
Cửa chính, Thông phòng gỗ, Kính
- Phòng Khách
18.5m2
- Phòng Ngủ
Phòng ngủ 1- 10m2; Phòng ngủ 2- 9,5m2- Phòng ngủ 3- 12m2
- Phòng Thờ
10.7m2
- Diện tích mái
90m2
- Quy cách hồ sơ
Khổ A3, khoảng 100 trang

Mẫu nhà cấp 4 đẹp được thiết kế với những đường nét đẹp mắt

Mặt tiền nhà cấp 4 đẹp được thiết kế phù hợp với lô đất của gia chủ

21 mẫu nhà cấp 4 đẹp – mặt bằng nội thất nhà được thiết kế thoáng đãng

Nội thất bên trong nhà cấp 4 có gác lửng đẹp
Mẫu số 7: Nhà 1 tầng chữ L diện tích 100m2 mặt tiền 8m ở Vĩnh Phúc
- Mã Sản Phẩm
BT307077
- Số Tầng
1 tầng
- Phong Cách
Biệt thự 1 tầng mang phong cách hiện đại
- Mặt Tiền
8.3m
- Chiều Sâu
16m
- Diện Tích
100m2
- Kinh Phí Đầu Tư
Khoảng 700 triệu đồng
- Kích Thước Đất
8,3m x 27m = 224m
- Phương Án Móng
Móng Băng
- Cấu Tạo Mái
Vì Kèo
- Lát Sàn
T1: Gạch
- Chất Liệu Cửa
Cửa chính, Thông phòng gỗ, Kính
- Phòng Ngủ
3 phòng ngủ
- Quy cách hồ sơ
Khổ A3, khoảng 100 trang

Mức độ đẹp được thiết kế phụ thuộc vào mức độ đầu tư của gia đình

Mẫu nhà cấp 4 đẹp mang đến cho người nhìn cảm giác sang trọng

Phân chia không gian và công năng linh hoạt và gần gũi gắn kết giữa các thành viên trong gia đình

Mặt bằng nội thất phân chia hợp lý dễ dàng di chuyển
Mẫu số 8: 21 mẫu nhà cấp 4 đẹp của ông Nguyễn Đình Hùng -Thái Bình
- Mã Sản Phẩm
BT108077
- Số Tầng
Nhà 1 tầng
- Phong Cách
Biệt thự 1 tầng phong cách hiện đại
- Mặt Tiền
13.5m
- Chiều Sâu
10.5m
- Diện Tích
100m2
- Kinh Phí Đầu Tư
Khoảng 900 triệu- 1 tỷ đồng
- Kích Thước Đất
500m2
- Phương Án Móng
Móng Băng
- Cấu Tạo Mái
Vì Kèo
- Lát Sàn
T1: Gạch
- Chất Liệu Cửa
Cửa chính, Thông phòng gỗ, Kính
- Phòng Ngủ
3 phòng ngủ
- Phòng Thờ
Trống
- Phòng Vệ Sinh
Trống
- Quy cách hồ sơ
Khổ A3, khoảng 100 trang

Mẫu nhà cấp 4 hình chữ L 100m2 được nhiều gia đình lựa chọn

Mẫu nhà cấp 4 đẹp được thiết kế theo phong cách đơn giản

Mặt bằng nội thất nhà cấp 4 mặt tiền 13.5m
Mẫu số 9: Mẫu nhà cấp 4 đẹp của ông Chu Tiến Thi – Gia Cát – Lạng Sơn
- Mã Sản Phẩm
BT314077
- Phong Cách
Thiết kế biệt thự theo phong cách hiện đại
- Mặt Tiền
8m
- Chiều Sâu
17m
- Diện Tích
100m2
- Kinh Phí Đầu Tư
Khoảng 900 triệu- 1 tỷ
- Kích Thước Đất
11mx31m
- Phương Án Móng
Móng Băng
- Cấu Tạo Mái
Vì Kèo
- Cấu Tạo Thang
Tay vịn gỗ, mặt gỗ, cổ đá
- Lát Sàn
T1: Gạch, T2: Gạch
- Chất Liệu Cửa
Cửa chính, Thông phòng gỗ, Kính
- Phòng Khách
21m2
- Phòng Bếp ăn
21m2
- Phòng Ngủ
N1: 14m2, N2: 14m2, N3:14m2, N4: 14m2
- Phòng Thờ
7m2
- Phòng Vệ Sinh
WC1: 2.8m2, WC2: 3.6m2, WC3: 3.6m2
- Quy cách hồ sơ
Khổ A3, khoảng 100 trang

Phối cảnh ngoại thất nhà cấp 4 đẹp được thiết kế vô cùng chi tiết và đẹp mắt

Với góc nhìn khác mẫu nhà cấp 4 có gác lửng vô cùng rộng rãi

Mặt bằng tổng thể nhà cấp 4 có gác lửng đẹp

Mặt bằng tổng thể nội thất nhà cấp 4 có gác lửng đẹp

Mặt bằng nội thất nhà cấp 4 có gác lửng đẹp
Mẫu số 10: Mẫu nhà cấp 4 mặt tiền 10m của ông Dư – Mai Lĩnh – Hà Nội
- Mã Sản Phẩm
BT808077
- Phong Cách
Hiện Đại
- Mặt Tiền
10m
- Chiều Sâu
12.5m (chưa bao gồm sảnh)
- Diện Tích
120m2
- Kinh Phí Đầu Tư
Khoảng 750 triệu đồng
- Kích Thước Đất
180m2
- Phương Án Móng
Móng Băng
- Cấu Tạo Mái
Vì Kèo
- Lát Sàn
T1: Gạch
- Chất Liệu Cửa
Cửa chính, Thông phòng gỗ, Kính
- Phòng SHC
Không có phòng SHC
- Phòng Ngủ
3 Phòng ngủ
- Quy cách hồ sơ
Khổ A3, khoảng 100 trang

21 mẫu nhà cấp 4 đẹp – nhà cấp 4 được thiết kế rất đơn giản nhưng vô cùng đẹp

21 mẫu thiết kế nhà cấp 4 nông thôn đẹp

Tổng hợp 21 mẫu nhà cấp 4 đẹp qua mặt bằng tổng thể

Nội thất 21 mẫu nhà cấp 4 đẹp vô cùng đẹp mắt
Mẫu số 11: Mẫu nhà cấp 4 diện tích 100m2 ở Phú Thọ do ông Trần Trọng Vệ sở hữu
- Mã Sản Phẩm
BT109077
- Số Tầng
1.5 tầng
- Phong Cách
Hiện Đại
- Chiều Cao Tầng
Trống
- Mặt Tiền
10m
- Chiều Sâu
15,5m (chưa bao gồm sảnh)
- Diện Tích
140m2
- Kinh Phí Đầu Tư
Khoảng 1 tỷ đồng
- Kích Thước Đất
400m2
- Phương Án Móng
Móng Băng
- Cấu Tạo Mái
Vì Kèo
- Lát Sàn
T1: Gạch
- Chất Liệu Cửa
Cửa chính, Thông phòng gỗ, Kính
- Phòng bếp ăn
Trống
- Quy cách hồ sơ
Khổ A3, khoảng 100 trang

21 mẫu nhà cấp 4 đẹp ở nông thôn được thiết kế vô cùng khang trang

Chiêm ngưỡng 21 mẫu nhà cấp 4 đẹp qua cách thiết kế của kiến trúc sư

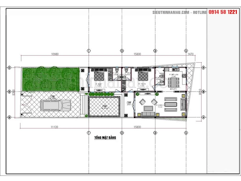
Mặt bằng tổng thể nhà cấp 4 có gác lửng

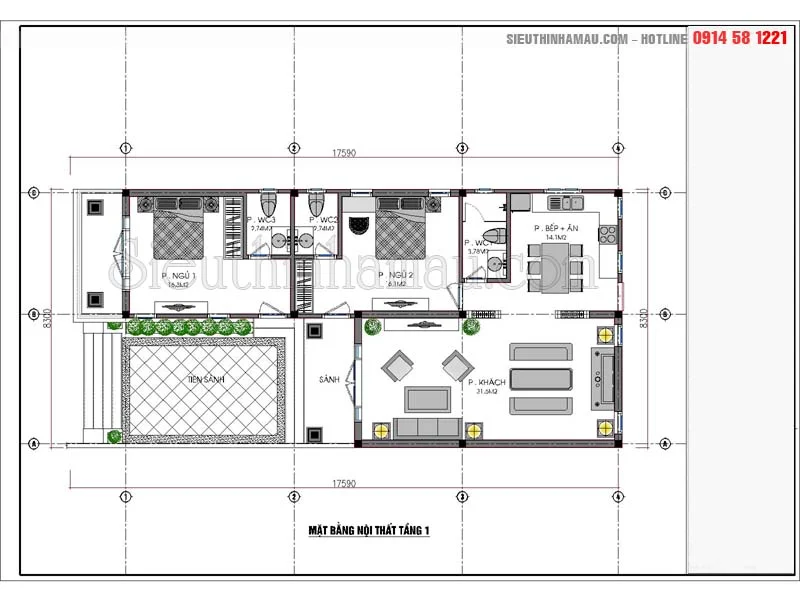
Mặt bằng nội thất nhà cấp 4 120m2 đẹp long lanh
Mẫu nhà số 13: Mẫu nhà cấp 4 đẹp của gia đình ông Lò Văn Cu – Điện Biên diện tích 100m2

Phối cảnh nhà cấp 4 diện tích 100m2 với chi phí 800 triệu đồng

Thiết kế mẫu nhà cấp 4 mặt tiền 7m đẹp

Tổng mặt bằng nhà cấp 4 diện tích 100m2 ở Điện Biên

Mặc dù mặt tiền 7m nhưng nội thất vẫn bố trí công năng đẹp mắt
Mẫu nhà số 14:

Mẫu nhà cấp 4 đẹp có tầng hầm được nhiều gia đình lựa chọn

Thiết kế nhà được cấp 4 có bể bơi được thiết kế như một biệt thự nghỉ dưỡng


Mặt bằng nội thất nhà cấp 4 1 tầng được bố trí hài hòa và hợp lý
Mẫu số 15: Nhà cấp 4 diện tích 120m2 đẹp ở Bắc Ninh do ông Hải làm chủ đầu tư
- Mã Sản Phẩm
BT211077
- Số Tầng
1.5 tầng
- Phong Cách
Hiện Đại
- Mặt Tiền
11m
- Chiều Sâu
Chưa tính sảnh 11m; tính cả sảnh 12,5m
- Diện Tích
120m2
- Kinh Phí Đầu Tư
Khoảng 700- 800 triệu đồng
- Kích Thước Đất
14x26m
- Phương Án Móng
Móng Băng
- Cấu Tạo Mái
Vì Kèo
- Lát Sàn
T1: Gạch
- Chất Liệu Cửa
Cửa chính, Thông phòng gỗ, Kính
- Phòng Khách
14m2
- Sảnh trung tâm
14m2
- Phòng Thờ
8m2
- Phòng bếp ăn
14m2
- Quy cách hồ sơ
Khổ A3, khoảng 100 trang

Mẫu số 15 – mẫu nhà cấp 4 đẹp qua cách thiết kế hiện đại

Hình khối khỏe khoắn, vuông vắn của mẫu nhà cấp 4 đẹp diện tích 120m2 
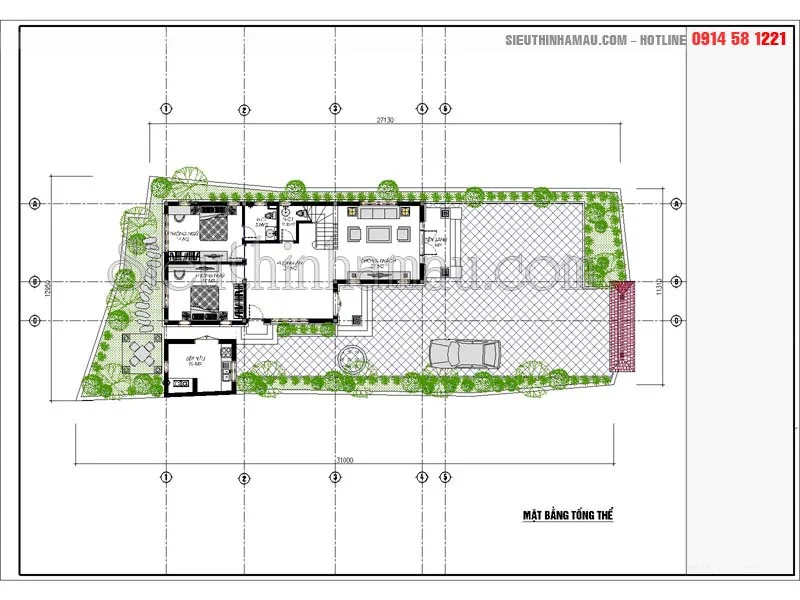
Tổng mặt bằng nhà cấp 4 đẹp được bố trí hài hòa với thiên nhiên

Nội thất nhà cấp 4 đẹp, không gian chức năng bố trí hợp lý
Mẫu số 16: Mẫu thiết kế nhà cấp 4 3 phòng ngủ của ông Vinh – Thái Bình
- Mã Sản Phẩm
BT210077
- Phong Cách
Hiện Đại
- Mặt Tiền
12m
- Chiều Sâu
10m
- Diện Tích
120m2
- Kinh Phí Đầu Tư
Khoảng 800 triệu đồng
- Kích Thước Đất
9m25x13m25
- Phương Án Móng
Móng Băng
- Cấu Tạo Mái
Vì Kèo
- Lát Sàn
T1: Gạch
- Chất Liệu Cửa
Cửa chính, Thông phòng gỗ, Kính
- Trần Giả
Thạch Cao
- Tiền sảnh
6m2
- Phòng Ngủ
Trống
- Phòng bếp ăn
Trống
- Quy cách hồ sơ
Khổ A3, khoảng 100 trang

Biệt thự 1 tầng có bể bơi được coi là mẫu nhà lý tưởng để nghỉ dưỡng

Không gian ngoại thất sang trọng và mắt mẻ, hưởng thụ cuộc sống sung túc

Thiết kế nhà cấp 4 ở nông thôn với mặt bằng hợp lý

Mặt bằng nội thất tầng 1 mẫu nhà cấp 4 3 phòng ngủ
Mẫu số 17: Mẫu thiết kế nhà cấp 4 có gác lửng của gia đình ông Đại 100m2
- Mã Sản Phẩm
BT309077
- Số Tầng
1.5 tầng
- Phong Cách
Hiện Đại
- Chiều Cao Tầng
Trống
- Mặt Tiền
7.7m
- Chiều Sâu
17.5m
- Diện Tích
100m2
- Kinh Phí Đầu Tư
Khoảng 600 – 700 triệu đồng
- Kích Thước Đất
10,5x25m= 262m
- Phương Án Móng
Móng Băng
- Cấu Tạo Mái
Vì Kèo
- Lát Sàn
T1: Gạch
- Chất Liệu Cửa
Cửa chính, Thông phòng gỗ, Kính
- Quy cách hồ sơ
Khổ A3, khoảng 100 trang

Thiết kế nhà cấp 4 được thiết kế có gác lửng

Hình ảnh thiết kế ngoại thất mẫu nhà cấp 4 có gác lửng

Mặt bằng tổng thể nhà cấp 4 diện tích 110m2

Mặt bằng nội thất nhà cấp 4 diện tích 100m2

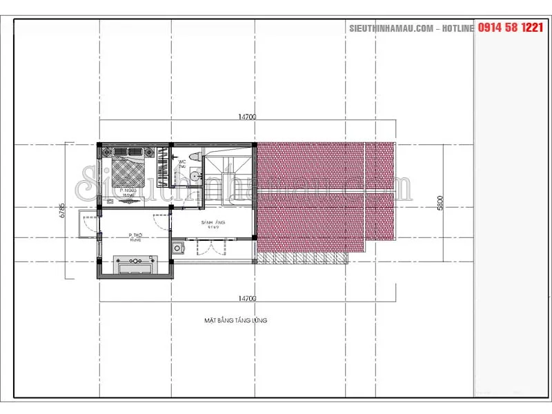
Mặt bằng nội thất tầng 2 mẫu nhà cấp 4 nông thôn đẹp
Mẫu số 18:

Mẫu nhà cấp 4 đẹp được thiết kế với 2 mặt tiền đẹp

Thiết kế nhà cấp 4 đẹp hình khối chắc chắn và đẹp mắt

Mặt bằng tầng 1 của 21 mẫu nhà cấp 4 đẹp ở nông thôn
Mẫu số 19: nhà cấp 4 diện tích 120m2 ở Thanh Hóa
- Mã Sản Phẩm
BT813077
- Phong Cách
Thiết kế biệt thự phong cách hiện đại
- Mặt Tiền
13m
- Chiều Sâu
11m
- Diện Tích
120m2
- Kinh Phí Đầu Tư
900 – 1 tỷ đồng
- Kích Thước Đất
677m2
- Phương Án Móng
Móng Băng
- Cấu Tạo Mái
Vì Kèo
- Lát Sàn
T1: Gạch
- Chất Liệu Cửa
Cửa chính, Thông phòng gỗ, Kính
- Phòng Khách
28m2
- Sảnh chính
11.5m2
- Phòng Ngủ
phòng ngủ 1: 14m2, phòng ngủ 2: 16m2, phòng ngủ master 15.5m2
- Phòng Thờ
11m2
- Phòng Vệ Sinh
wc1:3.8m2
- Phòng bếp ăn
18m2
- Quy cách hồ sơ
Khổ A3, khoảng 100 trang

Phối cảnh nhà cấp bốn nông thôn đẹp
Mẫu số 20: Nhà cấp 4 mái lệch 2 phòng ngủ ở Quảng Bình
- Mã Sản Phẩm
BT310077
- Phong Cách
Hiện Đại
- Chiều Cao Tầng
Trống
- Mặt Tiền
8m
- Chiều Sâu
12m
- Diện Tích
100m2
- Kinh Phí Đầu Tư
Khoảng 600 triệu đồng
- Kích Thước Đất
9m25x13m25
- Phương Án Móng
Móng Băng
- Cấu Tạo Mái
Vì Kèo
- Lát Sàn
T1: Gạch
- Chất Liệu Cửa
Cửa chính, Thông phòng gỗ, Kính
- Trần Giả
Thạch Cao
- Phòng Khách
25m2
- Tiền sảnh
6m2
- Phòng Ngủ
phòng ngủ 1 10m2, phòng ngủ 2 13,6m2
- Phòng Thờ
13.6m2
- Phòng Vệ Sinh
7.4m2
- Phòng bếp ăn
12m2
- Quy cách hồ sơ
Khổ A3, khoảng 100 trang

Bộ sưu tập 21 mẫu nhà cấp 4 đẹp không thể thiếu nhà mái dốc hiện đại

Tổng mặt bằng nhà cấp 4 mái dốc

Mặt bằng tầng 1 mẫu nhà cấp 4 đẹp
Mẫu số 21: Mẫu thiết kế nhà biệt thự 1 tầng chữ L của Bà Quỳnh ở Hải Phòng
- Mã Sản Phẩm
BT311077
- Số Tầng
Thiết kế nhà vườn 1 tầng
- Phong Cách
Hiện Đại
- Chiều Cao Tầng
Trống
- Mặt Tiền
10m
- Chiều Sâu
17m (cả sảnh: 18.5m)
- Diện Tích
120m2
- Kinh Phí Đầu Tư
Khoảng 800 triệu đồng
- Kích Thước Đất
32x20m
- Phương Án Móng
Móng Băng
- Cấu Tạo Mái
Vì Kèo
- Cấu Tạo Thang
Trống
- Lát Sàn
T1: Gạch
- Chất Liệu Cửa
Cửa chính, Thông phòng gỗ, Kính
- Trần Giả
Thạch Cao
- Phòng Khách
23m2
- Sảnh chính
9m2
- Phòng Ngủ
phòng ngủ 1 : 15m2 phòng ngủ 2 : 15m2, phòng ngủ 3: 15m2.
- Phòng Thờ
Phòng thờ kết hợp phòng khách: 23m2
- Phòng Vệ Sinh
Trống
- Gara ô tô
Trống
- Phòng bếp ăn
19m2
- Quy cách hồ sơ
Khổ A3, khoảng 100 trang
Xem thêm bộ sưu tập các mẫu nhà biệt thự 1 tầng 100m2

Mẫu nhà cấp 4 diện tích 120m2 đẹp mê ly

Công năng được thiết kế nhà cấp 4 nông thôn đẹp 120m2
Điểm nhấn 21 mẫu nhà cấp 4 đẹp ở nông thôn
Tổng hợp 21 mẫu nhà cấp 4 đẹp ở nông thôn được siêu thị nhà mẫu được thiết kế với qua cách xử lý đơn giản nhất, thông dụng và hữu ích tạo cảm giác thoải mái và gần gũi với toàn thể các thành viên trong gia đình. Cấu trúc của 21 mẫu nhà cấp 4 đẹp tạo nên một bức tranh thiên nhiên hài hòa, sinh động. Mặt tiền của tòa nhà, xen kẽ giữa các ô cửa trong suốt và mờ đục, cho phép người ở bên trong được bảo vệ trước ánh nắng mặt trời nhưng vẫn có thể nhìn bao quát cảnh quan xung quanh. Quần thể kiến trúc xung quanh được dẫn lối bởi những hàng cột oai phong, vững chãi.
Mọi chi tiết liên hệ Hotline: 0914581221
Xem thêm : bộ sưu tập nhà biệt thự 1 tầng 120m2



