Xu hướng thiết kế những mẫu nhà 3 tầng đơn giản là tổ hợp những mẫu nhà được thiết kế theo phong cách vô cùng hiện đại khang trang và thiên về phong cách khá đơn giản. Nhằm xóa bớt những gánh nặng về tài chính cho gia đình, đồng thời sự đơn giản sẽ “dễ sài” và “dễ sửa” nó phù hợp với mọi đối tượng.
Mẫu nhà 3 tầng đơn giản đẹp là “cơ ngơi” của mỗi gia đình
Điểm qua những mẫu nhà 3 tầng đơn giản đẹp, trước tiên những mẫu nhà đơn giản này dù là nhà to hay nhà nhỏ nó cũng được coi là một “cơ ngơi” của mỗi gia đình. Đôi khi, xây được một ngôi nhà khi đó bạn bè hàng xóm xung quanh mới không chê cười hay lúc đó mới “nở mày nở mặt” còn người không xây được nhà sẽ bị người ngoài đánh giá là “kém cỏi”…
Bởi lẽ không phải tự nhiên ông cha ta có câu “có an cư thì mới lạc nghiệp” khi đó có nhà là có chỗ “chui ra chui vào” mới an tâm mà làm ăn, phát triển được. Trong khi nhà cửa chưa có thì cả đời cũng chỉ mong muốn kiếm tiền để mua nhà để ở mà thôi không thể lo làm việc khác nữa.
Bộ sưu tập những mẫu nhà 3 tầng đơn giản đẹp để bạn và gia đình có thể tiết kiệm được chi phí
Những mẫu thiết kế nhà 3 đơn giản là những mẫu thiết kế với những hình khối đơn giản, hạn chế trang trí nhiều chi tiết và rườm rà sẽ hạn chế được chi phí thiết kế để phù hợp với diện tích sử dụng cũng như được thiết kế với. nhà mới của Với với kiểu được thiết kế với kiểu kiến trúc được thiết kế mang phong cách đơn giản vừa tiện dụng thuận tiện được thiết kế với kiểu kiến trúc hiện đại
Để xây nhà được vấn đề đầu tiên luôn là vấn đề về tài chính. Những mẫu thiết kế với nhà cấp 3 đơn giản được thiết kế tiết kiệm được chi phí cho chủ nhà “Chúng tôi đã chuẩn bị được một khoản tiền là 650 triệu đồng để xây nhà. Tôi mong muốn ngôi nhà thiết kế đơn giản, phần mặt tiền có kiến trúc hiện đại và độc đáo, với công năng phân chia như sau”.
-
Mã Sản Phẩm
BT312013
-
Số Tầng
3 tầng
-
Phong Cách
Hiện Đại
-
Mặt Tiền
10m
-
Chiều Sâu
13m
-
Diện Tích
120m2
-
Kinh Phí Đầu Tư
Khoảng 1.8 tỷ đồng
-
Kích Thước Đất
15,5m x 23m
-
Phương Án Móng
Móng Cọc
-
Cấu Tạo Mái
Vì Kèo
-
Cấu Tạo Thang
Tay vịn gỗ, mặt gỗ, cổ đá
-
Lát Sàn
T1: Gạch, T2: Gỗ
-
Chất Liệu Cửa
Cửa chính, Thông phòng gỗ, Kính
-
Trần Giả
Thạch Cao
-
Phòng Khách
20m2
-
Quy cách hồ sơ
Khổ A3, khoảng 100 trang
Giới thiệu mẫu nhà 3 tầng đơn giản qua hình khối kiến trúc
Mẫu nhà 3 tầng đơn giản được thiết kế theo nhu cầu sử dụng của chủ nhà. Nên kể cả có xây nhà 1 tầng, 2 tầng hay 3 đến 4 tầng đi chăng nữa nhưng điều quan trọng vẫn là phù hợp với điều kiện cũng như số lượng thành viên trong gia đình. được thiết kế với kiểu kiến trúc hiện đại luôn phù hợp với mọi thời đại.
mẫu nhà 3 tầng phong cách đơn giản mang đến sự thanh thoát, sáng sủa và khang trang nên vô cùng được thiết kế phù hợp với những người yêu thích sự đơn giản.
Với mẫu nhà 3 tầng đơn giản được thiết kế cho gia đình ông gia đình với kiểu kiến trúc được thiết kế với kiểu kiến trúc khá đơn giản nhưng vẫn chứa đựng đầy đủ các chức năng để thuận tiện cho việc sinh hoạt.
– Tầng 1 gồm có 1 phòng ngủ, 1 phòng khách, phòng bếp và bàn ăn.
– Tầng 2 bố trí 01 phòng sinh hoạt chung với 03 phòng ngủ và 1 phòng tắm.
– Tầng 3 bố trí phòng giải trí, 01 phòng ngủ cùng với 1 phòng thờ và sân phơi và sân chơi

Mẫu nhà 3 tầng đơn giản được thiết kế với kiểu kiến trúc hiện đại
Phối cảnh nhà 3 tầng đơn giản được vô cùng cân đối và hài hòa được thiết kế với kiểu kiến trúc hiện đại Mẫu thiết kế nhà 3 tầng phong cách đơn giản đẹp được các kiến trúc thiết kế với các hình khối vuông vắn, khối vuông lớn được xem rất hài hòa.

Quang cảnh ngoại thất nhà biệt thự 3 tầng mái thái đơn giản
Thiết kế nhà 3 tầng đơn giản đem đến sự hài hòa về kiến trúc. Để sự tối giản không đơn điệu về kiến trúc nên kiến trúc sư đã tìm ra cách để giúp cho nó có điểm nhấn luôn tạo được điểm nhấn và có sức hút.

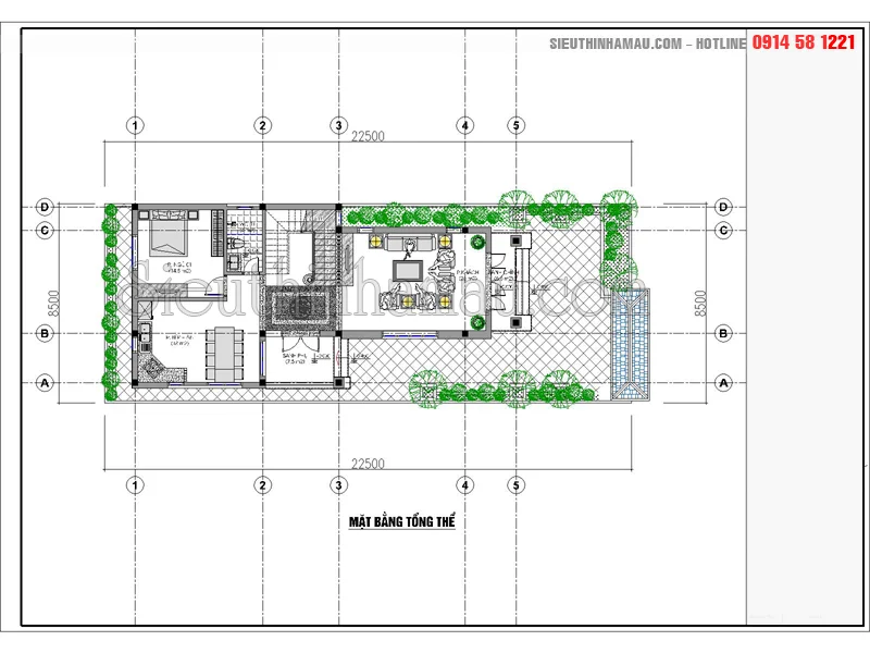
Mặt bằng tổng thể mẫu nhà 3 tầng đơn giản hiện đại được thiết kế với khuôn viên đất rộng rãi
Cách qui hoạch mặt bằng tổng thể với kiến trúc được thiết kế mang đến khuôn viên thoáng đãng, mát mẻ.

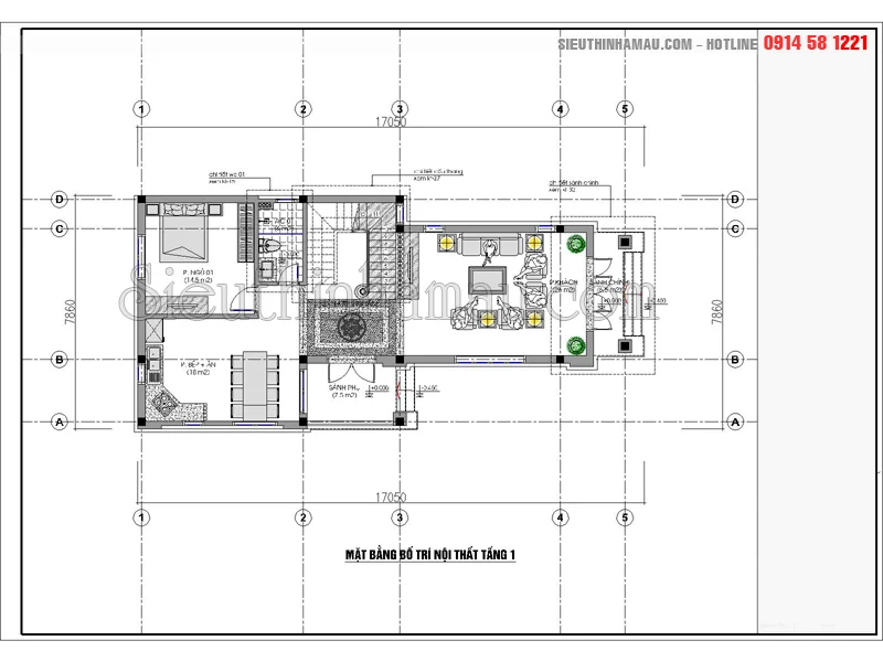
Mặt bằng tầng 1 nhà 3 tầng đơn giản tạo được sự hòa hợp với kiến trúc
Mẫu nhà biệt thự 3 tầng đơn giản bố trí mặt bằng linh hoạt
Gia chủ yêu thích sự tối giản nên các kiến trúc sư đã truyền cảm hứng cho toàn bộ ngôi nhà đặc biệt là phòng bếp ăn mọi không gian đều hòa hợp với nhau và tạo được tiếng nói chung. Theo gia chủ nếu không gian phòng bếp nhà ba tầng đơn giản đều được thiết kế tối giản sẽ giúp cho tất cả các thành viên lấy lại cân bằng và cảm thấy thoải mái, thư thái và dễ chịu sau những ngày làm việc căng thẳng.
Yếu tố phong thủy đặc biệt được các kiến trúc sư quan tâm như cách thiết kế bếp từ màu sắc đến vị trí sắp xếp bài trí vật dụng.. tất cả đều được chăm chút để phù hợp với gia chủ và giao hòa với các khu vực xung quanh.
Vật dụng không gian bếp được đặt ở các vị trí khác nhau cũng được sắp xếp để hòa hợp về tổng thể và chức năng sử dụng. Cụ thể, tủ lạnh đặt gần bồn rửa hơn so với bếp nấu vì thực phẩm phải đi qua bồn rửa rồi mới chuyển qua khu vực bếp nấu qua cách thiết kế như vậy sẽ thuận tiện hơn so với người sử dụng.
Phòng khách và khu bếp ăn nằm giữa đóng vai trò không gian trung tâm theo nhiều nghĩa. Không gian này liên thông như vẫn thường thấy ở các căn hộ hiện đại, được xử lý với tông màu trầm ấm áp.
Tuy nhiên mẫu nhà 3 tầng đơn giản vẫn thể hiện được màu sắc và cá tính của mình qua các mảng sáng từ màu sơn trắng được bố trí xen kẽ tạo nên sự tương phản ấn tượng. Phòng khách và bếp ăn mang một không khí ấm cúng, lịch lãm đúng như mong muốn của chủ nhân.
Từ sảnh vào mẫu nhà 3 tầng đơn giản được bố trí một khoảng không gian rộng như sự chuyển tiếp mượt mà và đồng thời cũng là một điểm nhấn. Cửa vào phòng ngủ chính được làm bằng gỗ như lẫn với bức tường. Các mảng trang trí tường, trần vừa phải, đem đến sự hấp dẫn nhưng không cầu kỳ, rườm rà.

Mẫu nhà 3 tầng đơn giản với thiết kế gọn gàng, ngăn nắp
Tôi nghĩ mỗi một công trình đều có một khí chất riêng, được tạo bởi ánh sáng, tông màu và mùi hương. Một không gian đẹp cần phải toát ra khí chất tích cực, giúp người sống trong đó cảm thấy hạnh phúc và thoải mái nhất”.
Theo như chủ nhà 3 tầng đơn giản đẹp yêu cầu bố trí các phòng chức năng như gia đình mong muốn vì phù hợp với diện tích cũng như đủ cho 06 thành viên sử dụng. Với diện tích khu đất hơn 150m2, không quá lớn nhưng cũng không quá nhỏ, để có thể xây dựng được một ngôi nhà 3 tầng khang trang và hiện đại. Sau khi xem xét số tiền gia đình chuẩn bị, đánh giá số tiền này đủ để gia chủ cân nhắc tính toán chi phí xây dựng và trang bị nội thất cơ bản.

Mặt bằng tầng 3 mẫu thiết kế nhà 3 tầng đơn giản
Nội thất mẫu nhà 3 tầng đơn giản rất dễ phối đồ bởi gu kiến trúc hiện đại thiên về sự phóng khoáng, mát mẻ rộng rãi nhường cho sự thư thái và yên tĩnh, do đó ăn khớp với hình khối kiến trúc hiện đại các đồ trang trí cũng đều phải tuân theo phong cách hiện đại và trẻ trung.
Cũng với đường nét đơn giản, cùng gam màu trắng chủ đạo. Việc bố trí đồ đạc nội thất được tiết chế vừa đủ để tạo nên những không gian thoáng đãng và đầy ấn tượng.
Những mảng kính lớn tạo nên sự kết nối giữa nội thất và không gian, cảnh quan bên ngoài đầy hấp dẫn. Có thể nói, cuộc “đại phẫu” này đã lột xác làm cho gia chủ vô cùng bất ngờ.
Mặt bằng ngôi biệt thự 3 tầng đơn giản tương đối chặt chẽ và hợp lý, kiến trúc sư cơ bản giữ nguyên bố cục và cấu trúc. Tuy nhiên, để hoàn hảo hơn, kiến trúc sư đã điều chỉnh cửa vào phòng ngủ chính nhằm giúp phòng khách có một sự liền mạch xuyên suốt.

Mặt bằng mái nhà 3 tầng đơn giản kích thước 10x13m đẹp
Mẫu 2: mẫu nhà 3 tầng đơn giản đẹp với sự kết hợp độc đáo, khỏe khoắn

Mẫu nhà biệt thự 3 tầng đơn giản
Chiêm ngưỡng mẫu nhà 3 tầng đơn giản được bao quanh bởi vườn cây trồng tự nhiên ngôi nhà được luôn tạo cảm giác thanh thản mát lành. căn biệt thự được thiết kế với hình khối mạnh và tiết giản đường nét. Nhìn từ phía ngoài đường, khối công trình được phủ màu trắng, nằm lẩn khuất trong màu xanh cây lá. Đây là không gian sống của một gia đình ba thế hệ.
Thông số tổng quát về mẫu nhà 3 tầng đơn giản
-
Mã Sản Phẩm
BT129013
-
Số Tầng
Biệt thự 3 tầng
-
Phong Cách
Biệt thự hiện đại
-
Chiều Cao Tầng
Trống
-
Mặt Tiền
9m
-
Chiều Sâu
13m
-
Diện Tích
90m2
-
Kinh Phí Đầu Tư
1.3 tỷ- 1.4 tỷ
-
Kích Thước Đất
35mx10m
-
Phương Án Móng
Móng Cọc
-
Trần Giả
Trống
-
Phòng Khách
30m2
-
Phòng SHC
Không có phòng SHC
-
Phòng Ngủ
N1: 18.7m2, Ngủ 2 (18.7m2) , Ngủ 3 ( 11.6m2), Ngủ 4( 20,6m2),
-
Phòng Thờ
Phòng thờ ( 18.7m2)
-
Phòng Vệ Sinh
WC1( 2.3m2), Wc2 (4m2), WC3 (7.5m2), WC4 ( 4m2)
-
Gara ô tô
Không có gara ô tô trong nhà
-
Phòng khác
Karaoke ( 16m2), Phòng bếp ăn ( 16m2)
-
Quy cách hồ sơ
Khổ A3, khoảng 100 trang
Ngôi nhà có quy mô một trệt hai lầu với những khối đua ra lùi vào để tận dụng tầm nhìn, ban công đưa ra phía trước kiêm vai trò mái che ở cửa chính, đoạn hành lang trên cao dẫn ra sân thượng, cầu thang trong nhà được bố trí ở hai đầu công trình, chừa trọn vẹn khu vực trung tâm cho các không gian chức năng.
Màu sắc cũng như hình khối kiến trúc khá đơn giản, vuông vắn kết hợp với màu sắc ngói cũng như các mảng tường trang trí mang đậm màu truyền thống như một màu đỏ của sự may mắn.
Nhà 3 tầng hơn giản thiết kế cho nhu cầu sinh hoạt ngoài trời cho gia đình rất được ưu ái với thiết kế có nhiều khu vực chức năng khác nhau. Sân dành cho những bữa tụ họp của đại gia đình. Khu vực nghỉ ngoài trời, bên dưới sân thượng, nhìn ra mảng vườn phía trước nhà. Sự gần gũi với thiên nhiên còn được đưa vào tổ ấm qua chất liệu mộc mạc của đồ nội thất, những mảng tường sáng bóng chứa đầy gió, ánh sáng tự nhiên có được nhờ hệ thống cửa – cửa sổ kính khung gỗ bố trí xung quanh nhà.
Biệt thự nhà 3 tầng đơn giản đẹp bắt mắt với hình khối sắc cạnh

Đường nét góc cạnh từ mẫu thiết kế nhà 3 tầng đơn giản
Một điều thú vị của không gian sống này cách thiết kế giật cấp của mặt tiền để tạo khoảng lùi để thuận tiện cho việc đi lại vô cùng đẹp mắt tạo hình chữ L vừa tiết kiệm được diện tích. Hình khối vuông thành sắc cạnh rất cân đối và sắc nét tạo được nét kiến trúc hiện đại và lịch lãm.
Mẫu nhà 3 tầng đơn giản còn được chăm chút từ cách phối màu với gam màu nóng: màu đỏ của mái ngói và màu nâu cafe qua màu sơn tường, nhìn mẫu thiết tạo cho ta cảm giác chắc chắn, dày dặn màu sắc nồng ấm và tràn đầy năng lượng.
Đứng nhìn từ trên tầng cao gia chủ có thể quan sát được toàn bộ quang cảnh thiên nhiên mà không bị che khuất tầm nhìn, bởi không gian vô cùng thoáng đãng, tinh thần sẽ thoải mái và thư thái khi sống trong một không gian thoáng đãng mát mẻ như vậy.
Tổng mặt bằng nhà 3 tầng đơn giản thiết kế thiên về sự đơn giản.
Theo các kiến trúc sư quy hoạch mặt bằng theo nhà ống phát triển theo chiều sâu. Mẫu nhà 3 tầng đơn giản với mặt tiền 10m sẽ đem đến cảm giác ngôi nhà như rộng lớn hơn so với hiện trạng thự tế của nó.

Mặt bằng nội thất tầng 1 nhà 3 tầng đơn giản đẹp
Mẫu thiết kế nhà 3 tầng đơn giản đẹp được bố trí công năng logic cũng như không gian hợp lý các không gian cơ bản như phòng khách, bếp ăn, phòng ngủ sang trọng qua cách xử lý rất hợp lý. Không gian phòng khách sở hữu ngay khu vực trung tâm để tiếp khách và là nơi để tăng thêm giá trị của người sử dụng.
Cùng với đó là các “thủ pháp” xử lý không gian: Phòng ăn nhà 3 tầng được giật cấp và dùng vách ngăn phân chia ước lệ với phòng khách, tạo nên cái nhìn xuyên suốt liền mạch. Các phòng ngủ tuy có diện tích vừa phải nhưng vẫn đủ thoải mái. Đặc biệt, các yếu tố thiên nhiên được sử dụng trong khu vực ngủ, vệ sinh… giúp những nơi này trở nên rộng rãi và thư giãn tốt hơn.
Cũng cần phải kể đến khoảng thông tầng đã được kiến trúc sư tính toán diện tích vừa đủ, các phòng được “nhìn ra” giếng trời, tạo nên sự thông thoáng cần thiết cho cả ngôi nhà.

Tham khảo mặt bằng nội thất tầng 2 công năng linh hoạt trong mẫu nhà 3 tầng đơn giản mái thái đẹp
Mẫu thiết kế nhà 3 tầng đẹp qua cách thiết kế tầng 2 với ba phòng ngủ không nặng về bày biện. Phần hồn ngôi nhà theo đó được tạo nên từ chính các không gian sống và nội thất chắt lọc vừa đủ. 3 phòng ngủ cũng là một cách đo ni đóng giày Ngủ 1: 18.7m2, Ngủ 2 (18.7m2) , Ngủ 3 ( 11.6m2), Ngủ 4( 20,6m2), cho phù hợp với điều kiện sinh hoạt số lượng người sinh sống trong ngôi nhà vô cùng ấm cúng, quây quần.

Mặt bằng công năng mẫu nhà 3 tầng đơn giản đẹp
Không thể bỏ qua mẫu nhà 3 tầng đơn giản với kiến trúc với kiểu cách nhấn nhá với cách thiết kế đạt được sự khác biệt. Mẫu thiết kế nhà 3 tầng đơn giản bỗ trí 1 phòng sinh hoạt chung nhỏ ở trên tầng 3 nhằm tạo ra sự khác biệt cho không gian phòng ngủ, gia chủ có thể sử dung để tiếp khách, nghỉ ngơi thư giãn tại căn phòng này một cách yên tĩnh.Từ đó, từng bước đạt được những thành tựu của riêng mình.
>>>Cùng chiêm ngưỡng mẫu nhà đẹp 3.5 tầng làm mê đắm lòng người
Mẫu 3: sự hiện đại trong cách thiết kế nhà 3 tầng đơn giản đẹp
Điểm qua thông số kỹ thuật qua mặt bằng công năng mẫu thiết kế nhà 3 tầng đơn giản
-
Mã Sản Phẩm
BT211023
-
Số Tầng
3 tầng
-
Phong Cách
Biệt thự mái thái
-
Chiều Cao Tầng
T1: 3.9m, T2: 7.5m, T3: 10.8m, Chiều cao mái: 14.95m
-
Mặt Tiền
8m
-
Chiều Sâu
16.6m
-
Diện Tích
120m2
-
Kinh Phí Đầu Tư
Khoảng 1.4 đến 1.5 tỷ đồng
-
Kích Thước Đất
191m2
-
Trần Giả
Trống
-
Phòng Khách
26m2
-
Phòng SHC
Phòng SHC Tầng 2 : 18m2
-
Phòng Ngủ
N1: 14.5m2, N2: 14.5m2, N3:26m2, N4: 17m2, N5: 18m2,
-
Phòng Thờ
4m2
-
Phòng Vệ Sinh
wc1:4m2, wc2:4m2, wc3:4m2
-
Gara ô tô
Không có gara ô tô trong nhà
-
Phòng khác
Phòng bếp ăn: 19m2,
-
Quy cách hồ sơ
Khổ A3, khoảng 150 trang

Mẫu biệt thự 3 tầng đơn giản đẹp thuộc sở hữu của anh Tâm – Cầu Giấy
Gam màu sắc dịu dàng thanh thoát đến từ mẫu nhà 3 tầng đơn giản
Được thiết kế với kiểu kiến trúc đầy đủ những tiện ích cơ bản cho một cá nhân hoặc cặp đôi nhờ cách bố trí nội thất hợp lý cũng như có những thiết bị nhỏ gọn được sản xuất riêng cho loại nhà này. Đơn cử mặt tiền 8.5m của nhà anh tâm với màu sắc mát dịu qua cách ốp đá màu ghi sáng,

Quy hoạch mặt bằng tổng thể nhà 3 tầng kích thước 16.6m chiều sâu
Các khái niệm phong thủy, kiêng cữ, hướng nắng, hướng gió, khu chức năng này phòng chức năng kia… trở nên vô nghĩa vì thế giới phút chốc bỗng dưng bé lại bằng 120m2. Trong không gian “vừa đủ” ấy, ta trở thành người theo chủ nghĩa tối giản từ hồi nào không hay không biết.

Nội thất tầng 1 đơn giản nhưng vẫn tiện nghi qua thiết kế của các kiến trúc sư
“Sống tối giản trong xã hội đang thay đổi từng ngày chẳng dễ dàng. Thế mà cũng thật hay, căn nhà 130m2 ấy đã giúp tôi thực hành kiểm soát nhu cầu. Bạn phải mua sắm lượng thức ăn trong một tuần sao cho khỏi chất tràn ra ngoài tủ lạnh. Bạn luôn cân nhắc thật kỹ giữa thiết kế sa hoa và đơn giản trước khi quyết định làm nhà – ông Tâm cho hay”.
Nhà 3 tầng đơn giản nổi bật với 3 phòng ngủ, cạnh giường là một tủ quần áo, Vách ngoài tủ áo còn được tận dụng làm giá treo áo khoác. Đối diện giường ngủ là một chiếc tivi màn hình phẳng đời mới để tiện theo dõi và giải trí. Khu vực bếp – chỗ nấu nướng (gọi thế có lẽ chính xác hơn là “bếp”) có mỗi chiếc bếp hồng ngoại hiện đại không kém phần tiện nghi.

Mặt bằng bố trí nội thất tầng 2 mẫu nhà 3 tầng đơn giản đẹp
Bên cạnh đó phòng ngủ lớn trên tầng 2 là một ô cửa sổ nhỏ có ban công nhìn ra ngoài. Khoảng không gian dôi ra ở góc phòng rộng chừng 1,5m2 được tận dụng làm ban công tiện cho bạn có thể dạo bước, trồng thêm một vài cây xanh ngày ngày chăm bón, cũng là một gợi ý lý tưởng cho cuộc sống an nhàn, thanh bình.

Bố trí không gian nội thất tầng 3 biệt thự 3 tầng đơn giản mặt tiền 8.4m

Chi tiết mặt bằng tầng áp mái được thiết kế gọn ghẽ để chứa bể nước của nhà 3 tầng đơn giản
>>> Xem ngay bộ sưu tập nhà 3 tầng kết hợp kinh doanh ở tại miền bắc

Mẫu nhà 3 tầng đơn giản được thiết kế với mái thái vô cùng đẹp và mát mẻ
Mẫu nhà 3 tầng đơn giản được thoáng đãng về mặt công năng. Từ đó, việc thiết kế cải tạo tập trung vào hai yếu tố chính là diện mạo công trình và tổ chức không gian, với một chi phí rất hạn chế.
Tổng hợp các mẫu nhà 3 tầng đơn giản được thiết kế với nhiều màu sắc khác nhau từ kiến trúc đến không gian, mỗi ngôi nhà đều mang một xu hướng hiện đại và đơn giản, đơn giản không vì nó sơ sài, thiếu hụt về nội tâm – nội thất, mà nó đơn giản, thanh thoát, nhưng vô cùng sang trọng “đơn giản luôn đẹp” so với chi tiết, rối răm, rườm rà.
Mỗi một màu sắc đều được truyền tải cả nỗi lòng của mỗi gia chủ, nhìn ngắm “thành quả” đã xây dựng được nhà 3 tầng đơn giản gia chủ luôn cảm thấy như một nguồn động viên và tự hào với những nỗ lực của mình.
Chia sẻ cảm nhận của bạn về mẫu nhà 3 tầng đơn giản này nhé!
Chúng tôi hỗ trợ 24/24 qua Hotline: 0914581221



