Nói đến ở quê nghe rất “quê” và có vẻ xa xôi nhưng hiện nay việc xây biệt thự ở phố không còn “HOT” bằng xây nhà biệt thự cấp 4 1 tầng ở quê. Khi điều kiện kinh tế phát triển thông tin được phủ rộng các gia đình ở quê đã tìm đến các đơn vị thiết kế để có thể đưa ra các phương án thiết kế và xây dựng ngôi nhà của mình một cách khang trang hiện đại hơn và mới mẻ hơn.
Thiết kế nhà biệt thự vườn cấp 4 có rất nhiều lợi thế
Do cuộc sống ở các thành phố lớn rất ngột ngạt khiến nhiều người mong muốn quay về nơi thôn quê xây nhà tận hưởng không khí trong lành và hòa mình vào thiên nhiên để cùng gia đình về nghỉ ngơi được thiết kế với những kiến trúc hiện đại hoặc truyền thống để có một không gian yên tĩnh. Đối với mô hình nhà vườn thì việc thiết kế nhà là quan trọng tuy vẻ bề ngoài không cầu kì như thiết kế ở thành thị nhưng bên trong lại đặc biệt ấm cúng gần gũi và hài hòa với thiên nhiên.
Việc thiết kế nhà biệt thự vườn 1 tầng sẽ đem đến cho gia chủ cảm giác được thiết kế với thiết kế và được thiết kế với những kiến trúc đẹp mắt đem đến cho chủ nhà sự thoải mái và an tâm hơn nên sẽ được thiết kế đầy đủ theo nhu cầu của thực tế.
Xây nhà biệt thự cần phải đảm bảo các yếu tố về thẩm mỹ
Hình ảnh bên ngoài các mẫu thiết kế nhà biệt thự vườn cấp 4 chắc hẳn bạn sẽ rất thích và ấn tượng, song sẽ còn hấp dẫn hơn nếu các bạn hiểu rõ quá trình thiết kế và những xử lý mang nhiều ý nghĩa chứ không đơn thuần chỉ là thẩm mỹ của căn nhà.
Mỗi căn nhà có diện tích và vị trí khác nhau, và mỗi gia chủ có 1 cá tính và sở thích khác nhau và đặc biệt có một điểm chung là mang tinh thần xây dựng mang phong cách biệt thự sân vườn, cho nên các mẫu thiết kế đều có sân vườn tiểu cảnh và cây xanh. Điều này vô cùng quan trọng và nó là điểm nhấn, là hình nền để tôn được vẻ đẹp của ngôi nhà.
Hiện nay, khi nhu cầu ăn mặc đầy đủ rồi con người cần tính đến việc thẩm mỹ, bắt mắt hơn chứ không đơn điệu như trước nữa, việc thiết kế với những nhà đơn giản thì có thể tự xây dựng, nhưng kiểu biệt thự vườn thì cần phải có sự kết hợp giữa không gian và thời gian
Thiết kế nhà biệt thự vườn cấp 4 cần phải đảm bảo nhà, nhà vườn thường được thiết kế với những kiến trúc đẹp đẹp được thiết kế với những kiến trúc hiện đại mới mẻ được thiết kế với những nét phá cách và được thể
Báo giá thiết kế nhà vườn 1 tầng được xem là một xu hướng đang rất được ưa chuộng và đang ngày càng phát triển
Vậy cách tính chi phí xây dựng nhà 1 tầng ra sao?
Chi phí luôn là nỗi băn khoăn bởi không phải ai cũng có đủ điều kiện dư giả để đáp ứng hết được nhu cầu đó. Vì vậy, bài viết này chúng tôi sẽ cung cấp thông tin giúp bạn xác định được mức chi phí khi xây nhà cấp 4 để bạn có thể dự trù được ngân sách đầu tư cụ thể nhất cho ngôi nhà của mình nhé.
Thiết kế nhà vườn đem lại cho người nhìn sự mát mẻ, yên tĩnh và được thiết kế một cách chu đáo do vậy việc thiết kế nhà trở nên ấn tượng và tạo cho không gian có sự hòa quyện cùng với những kiến trúc đa dạng, độc đáo và được thiết kế với những kiến trúc đẹp và đem đến những kiến trúc hiện đại đem đến không gian sống cho gia đình bạn có sự mới mẻ.

Phối cảnh nhà vườn 1 tầng ở Vĩnh Phúc
Ẩn mình bên trong một khu đất bao bọc bởi những cây cối cùng sông hồ bao quanh tràn đầy gió mát và thoáng đãng được ví như một thiên đường ẩn dật hoàn hảo.
Chuẩn theo lối thiết kế “từ trong ra ngoài” các không gian xây dựng và chưa xây dựng được đối xử một cách bình đẳng và hoàn toàn được vỗ về bởi thiên nhiên. Nằm giữa một khu đất rộng lớn, vào bên trong là một ngôi nhà 5 gian mang đậm nét truyền thống nổi bật hòa quyện với sức sống của thiên nhiên.

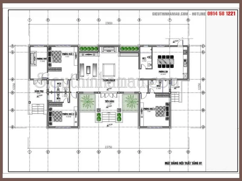
Mặt bằng nội thất nhà biệt thư vườn 1 tầng ở Vĩnh Phúc
Gia chủ xây nhà kiểu 5 gian truyền thống nhằm để đền ơn đáp nghĩa với bậc cha mẹ đã sinh thành ra mình. Gia đình cùng tận hưởng cuộc sống sung túc vui vẻ là niềm hạnh phúc lớn lao của ông bà cha mẹ. Con cái hiếu thuận lại càng hạnh phúc hơn.

Mặt bằng mái nhà biệt thự vườn 1 tầng ở Vĩnh Phúc
Theo yêu cầu của chủ đầu tư phần mái sẽ sử dụng ngói màu đỏ vừa hợp với mệnh của chủ nhà vừa đem lại sự đồng bộ trong màu sắc của toàn bộ ngôi nhà. Việc sử dụng mái ngói giúp cho ngôi nhà thêm phần mát mẻ, mỗi khi trời mưa gió thì mái ngói sẽ giúp cho tốc độ thoát nước mưa nhanh và giảm tiếng ồn so với mái tôn.
Phần mái nhà cũng tăng tính thẩm mỹ cho ngôi nhà và đồng thời mái cũng chính là phần quan trọng nhất cho nên lựa chọn các phương án thi công cần phải vô cùng chắc chắn và hợp lý.
Mẫu số 2: Thiết kế nhà biệt thự vườn ở Hải Dương
- Mã Sản PhẩmMẫu biệt thự đẹp BT209077
- Số Tầng1 tầng
- Phong CáchKiến trúc hiện Đại
- Chiều Cao TầngTrống
- Mặt Tiền12m
- Chiều Sâu10m
- Diện Tích120m2
- Kinh Phí Đầu TưTối thiểu 3 tỷ đồng
- Kích Thước Đất500m2
- Phương Án MóngMóng Cọc
- Cấu Tạo MáiVì kèo
- Trần GiảTrống
- Phòng Khách20m2
- Phòng NgủPhòng ngủ bố mẹ: 18m2,
- Phòng bếp ăn18m2
- Quy cách hồ sơKhổ A3, khoảng 200 trang

Chiêm ngưỡng mẫu thiết kế nhà biệt thự vườn 1 tầng ở Hải Dương
Có thể nhận xét qua hình ảnh 3D mà ta thấy được mức độ đầu tư của chủ nhà đối với mẫu thiết kế biệt thự 1 tầng này. Cách thiết kế dày dặn, vuông vắn tạo nên một khối kiến trúc vững trãi và kiên cố bền bỉ theo thời gian.
Với hình ảnh bên ngoài ngôi nhà 1 tầng 120m2 này được các kiến trúc sư cân đối tỉ mỉ các hình khối như tạo nên một công trình kiến trúc của hiện tại và tương lai. Chăm chút từ những chi tiết nhỏ như từ con tiện, vật liệu đá ốp mặt tiền những góc cạnh của tường đều được thiết kế để bảo vệ công trình khỏi các tác động của mưa gió là phần che chở và bảo vệ cho con người sinh sống trong ngôi nhà đó.

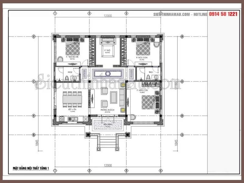
Thiết kế nội thất tầng 1 nhà biệt thự vườn ở quê Hải Dương
Nội thất bao gồm 3 phòng ngủ 1 khách và 1 bếp + ăn và 1 phòng thờ, không gian cơ bản cho 1 gia đình có đầy đủ 3 thế hệ cùng sinh sống. Với công năng và cách sắp xếp của các kiến trúc sư đã làm hài lòng nhu cầu của khách hàng.

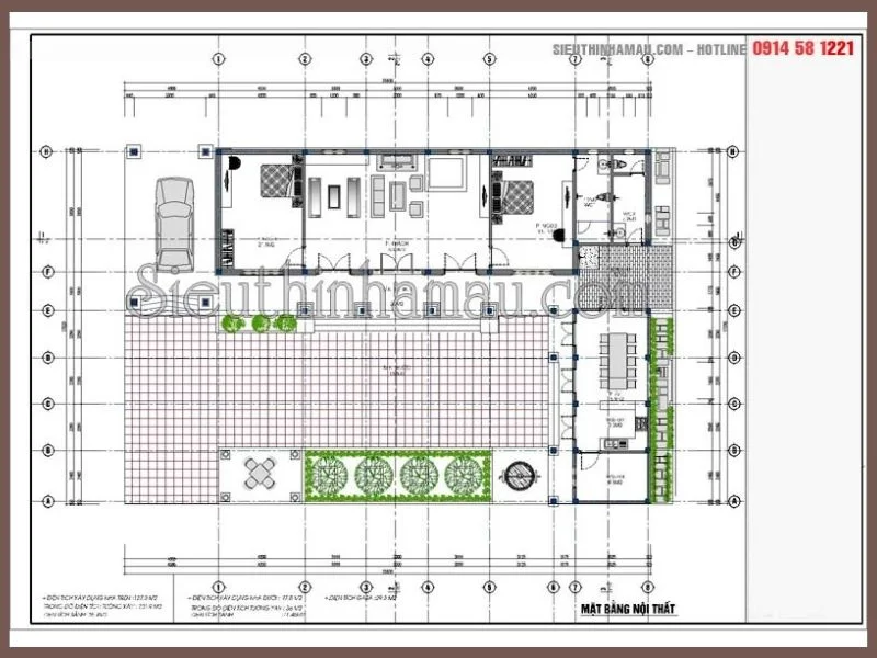
Mặt bằng nhà vườn 1 tầng diện tích 120m2
Trong thế giới tấp nập xô bồ, hầu hết mọi người đều xem ngôi nhà như lối thoát khỏi những phiền nhiễu xung quanh. Nắm bắt tâm lý ấy, các nhà kiến trúc sư đã đang loại bỏ sự “phô trương” và trang trí không cần thiết để hướng đến một không gian tôn nghiêm vẻ đẹp tĩnh tại, tông màu tự nhiên, vật liệu bền vững và gợi cảm giác đơn giản mà tinh tế. Cách tiếp cận này biến năng lượng nhà ở trở nên an lành, ấm áp, vỗ về tâm hồn mệt mỏi sau những giờ làm việc căng thẳng.
Theo như kiến trúc sư chia sẻ:”giờ đây khách có xu hướng mua những chất liệu tự nhiên, vì thế, chúng tôi cố gắng thể hiện nét sang trọng và độc đáo thông qua việc sử dụng gỗ – đá – kim loại thô. Quyết định đến những vật liệu có nguồn gốc khiến các chủ nhà có cảm giác hài lòng hơn.
Mẫu số 3: Mẫu thiết kế nhà biệt thự vườn 1 tầng hình chữ u diện tích 250m2
- Mã Sản PhẩmBT114077
- Số TầngBiệt thự nhà vườn 1 tầng
- Phong CáchHiện Đại
- Chiều Cao Tầng3.9m
- Mặt Tiền25m
- Chiều Sâu10m
- Diện Tích200m2
- Kinh Phí Đầu TưKhoảng 1.2 tỷ đồng
- Kích Thước ĐấtKhoảng 1.7 hecta
- Phương Án MóngMóng Băng
- Cấu Tạo MáiVì Kèo
- Cấu Tạo ThangTrống
- Lát SànT1: Gạch
- Chất Liệu CửaCửa chính, Thông phòng gỗ, Kính
- Trần GiảThạch Cao
- Phòng Khách50m2
- Phòng SHCKhông có SHC
- Phòng NgủPhòng ngủ 1: 21m2, Phòng ngủ 2: 16.5m2, Phòng ngủ 3: 20m2
- Phòng Thờ11.5m2
- Phòng Vệ SinhWC1: 5.3m2, WC2: 5.4m2, WC3: 5.1m2, WC4: 4.1m2.
- Phòng ăn26.5m2
- Tiền sảnh11.3m2
- Quy cách hồ sơKhổ A3, khoảng 100 trang

Cảm nhận về mẫu thiết kế nhà biệt thự vườn 1 tầng hình chữ U

Nội thất nhà biệt thự vườn ở quê 250m2
Mẫu số 4: Thiết kế biệt thự vườn 1 tầng ở quê diện tích 190m2
- Mã Sản PhẩmBT612077
- Số TầngNhà biệt thự 1 tầng
- Phong CáchBiệt thự phong cách tân cổ điển
- Mặt Tiền18m
- Chiều Sâu12.6m
- Diện Tích190m2
- Kinh Phí Đầu TưKhoảng 1.5 tỷ đồng
- Kích Thước Đất1900m2
- Phương Án MóngMóng Băng
- Cấu Tạo MáiVì Kèo
- Cấu Tạo ThangTrống
- Lát SànT1: Gạch
- Chất Liệu CửaCửa chính, Thông phòng gỗ, Kính
- Trần GiảThạch Cao
- Phòng Khách34m2
- Phòng SHCKhông có phòng sinh hoạt chung
- Phòng Ngủphòng ngủ 1: 15.7m2, phòng ngủ 2: 15.2m2, phòng ngủ 3: 17.2m2
- Phòng ThờPhòng thờ kết hợp khách 37.5m2
- Phòng Vệ Sinhwc 1: 4.7m2, wc 2: 4m2
- Gara ô tôKhông có gara ô tô
- Phòng bếp ăn23m2
- Quy cách hồ sơKhổ A3, khoảng 100 trang

Hình ảnh phối cảnh nhà biệt thự vườn ở quê phong cách tân cổ điển
Tham khảo bộ sưu tập nhà cấp 4 1 tầng mái ngói

Mặt bằng nội thất nhà biệt thự vườn 1 tầng đẹp
Thiết kế nhà biệt thự vườn sử dụng các gam màu để truyền tải cảm hứng cho người ở.
Một nghiên cứu khoa học cho thấy con nguời dành đến 87% cuộc đời mình ở trong nhà. Môi trường có tác động trực tiếp đến tâm trạng lẫn sực khỏe tinh thần của con người cư ngụ trong đó. Đây là lý do vì sao thiết kế nội thất đóng vai trào vô cùng quan trọng, qua cách thiết kế các kiến trúc sư đã phân tích tỷ lệ ánh sáng cùng chọn lựa phân bổ vật liệu ảnh hưởng đến trải nghiệm sống của con người.
Nhằm nâng cấp trải nghiệm không gian, nhà thiết kế chú ý nhiều hơn đến cách sơn bề mặt, sử dụng vật liệu hay các lớp phủ khác nhau. Màu sáng và mát giúp không gian trong rộng hơn, trong khi đó màu tối khiến không gian kín và nhỏ hơn
Phóng to không gian
Để tạo cảm giác rộng rãi cho môi trường, phương pháp tốt nhất là sử dụng màu sáng chúng giúp phản chiếu ánh sáng tự nhiên và làm các bề mặt tỏa ra rộng hơn.
Thu gọn không gian
Mặt khác, khi ý tưởng làm cho căn phòng trông gọn gàng hownm nhỏ hơn và ấm cúng hơn thì việc sử dụng màu sắc mạnh trên bề mặt tường là lựa chọn hoàn hảo. Chúng sẽ hấp thụ hầu hết ánh sáng tự nhiên tạo cảm giác bao bọc. Xem thêm thiết kế biệt thự 1 tầng kiểu thái
Hạ trần nhà
Đôi khi việc hạ thấp chiều cao của trần nhà khiến không gian trở nên dễ chịu hơn và mang đến cảm giác chào đón. Khi sơn màu tối lên trần hoạc giữ vật liệu trần thô, cách tiếp cận này khiến trần nhà được hạ thấp.
Kéo cao không gian
Trong một số tình huống khác, có những căn hộ thấp hơn tạo cảm giác ngột ngạt, sơn tường màu đậm hơn và trần nhà màu trắng sẽ mang đến cảm giác rằng không gian cao hơn. Hàng ngàn mẫu thiết kế nhà cấp 4 ở quê đẹp
Làm không gian rộng hơn
Sơn tường sau và trần nhà màu đậm hơn, giữ hai bức tường hai bên sáng hơn sẽ khiến không gian rộng và thoáng hơn. Đây là kỹ thuật sử dụng phổ biến ở hành lang và phòng hẹp.
Rút ngắn không gian
Nếu bạn có một không gian rất lớn trong nhà và muốn nó trở nên gần gũi hơn hãy sơn tông màu tối ở bức tường phía sau tương phản với màu sáng ở những góc khác nhau.
Tổng hợp các mẫu thiết kế nhà biệt thự vườn ở quê đã mở ra cho sự sáng tạo và đồng thời giúp cho người ở quê dần tiếp cận được với kiến trúc với cái đẹp “thời thượng”.
Việc thay đổi về tư duy trong kiến trúc ở nông thôn đã góp phần xây dựng nên một kiến trúc lên một tầm cao mới, để có thể tạo nên sự đồng bộ hóa và được phát triển lên ở một vị trí cao hơn.
Kết Luận
Việc xây nhà ở quê đang trở thành một xu hướng đôi khi chỉ là để nghỉ ngơi nghỉ dưỡng vào những dịp cuối tuần và những dịp lễ tết. Việc xây nhà ở quê một phần các chủ nhà cũng để báo hiếu cha mẹ. Xem thêm vì sao nên xây nhà cấp 4 đổ mái bằng
Bên cạnh đó việc bạn lựa chọn nhà thầu xây dựng biệt thự nhà vườn 1 tầng ở quê cũng là một trong những yếu tố có thể làm ảnh hưởng đến chi phí xây dựng. Trên thị trường xây dựng hiện nay để các chủ đầu tư có thể lựa chọn được một nhà thầu thì cũng không quá khó khăn cho bất kì ai, bởi có vô số nhà thầu có nhiều năm kinh nghiệm và rất uy tín. Siêu thị nhà mẫu chúng tôi cũng là một trong những đơn vị tư vấn thiết kế và thi công hàng đầu về chất lượng. Với nhiều đội ngũ kiến trúc sư và kỹ sư dày dặn kinh nghiệm sẽ đem đến cho bạn một ngôi nhà ưng ý và đẹp mắt.
Tuy nhiên để lựa chọn được một nhà thầu uy tín, chất lượng với giá thành hợp lí thì không phải là một điều dễ dàng. Chắc chắn sẽ có nhiều đơn vị đưa ra những mức giá rẻ hấp dẫn thu hút sự quan tâm của các chủ đầu tư. Nhưng bạn cần phải có sự tham khảo kĩ lưỡng trước khi đưa ra quyết định. Vì những đơn vị đưa ra mức giá rẻ chưa chắc đã có chi phí thấp vì trong quá trình xây dựng họ sẽ tự đẻ ra những hạng mục ngoài hợp đồng khiến chi phí phát sinh lớn.
Mọi thông tin chi tiết vui lòng liên hệ hotline: 0914 58 1221



