Câu hỏi xây nhà mất bao lâu thì xong ? là câu hỏi mà rất nhiều gia chủ gọi điện đến để xin các KTS tư vấn. Bởi để chuẩn bị xây một ngôi nhà mới với bao ước muốn và hy vọng gia chủ không khỏi băn khoăn khi xây dựng sẽ có những lưu ý gì, tốn hết bao nhiêu tiền và sắt, thép, vật tư vật liệu hết bao nhiêu. Ngoài ra, gia chủ cũng quan tâm đến thời gian xây nhà mất bao lâu để còn tính toán lên kế hoạch để đi thuê nhà, hoặc dựng lán ở tạm…
Những điều băn khoăn lo lắng kể cả những người đã từng xây nhà nhiều hay chưa xây nhà bao giờ câu hỏi đặt ra là “xây nhà mất bao lâu? đều rất dễ hiểu vì trong quá trình xây dựng là cả một quá trình phức tạp và nếu thời gian thi công xây dựng kéo dài sẽ phát sinh thêm nhiều chi phí và nhiều rắc rối cho gia chủ.
Và câu trả lời sẽ được các kiến trúc sư giải đáp qua một số yếu tố sau:
Thứ nhất: Xây nhà mất bao lâu còn phụ thuộc vào thời điểm xây nhà:

Nên xây dựng nhà ở vào thời gian nào?
Như đã biết Việt Nam là nước có điều kiện thời tiết nóng ẩm mưa nhiều, các khoảng thời gian được chia theo từng mùa rõ rệt nhưng với thời thiết nắng mưa thất thường việc nắm bắt được thời gian xây dựng nhà mất bao lâu sẽ tính toán được thời điểm xây dựng hợp lý.
Theo quan điểm của ông cha ta thì nện chọn thời điểm xây nhà hợp lý để tránh việc xây dựng kéo dài từ năm này qua năm khác tức qua năm mới sẽ khiến mọi khó khăn ảnh hưởng đến chi phí và tiền bạc cũng như công sức nhất định của gia chủ.
Yếu tố thời tiết cũng ảnh hưởng nhiều đến việc xây nhà mất bao lâu. Thông thường xây nhà mùa mưa bão sẽ gặp nhiều khó khăn, gián đoạn vì thể thời gian xây dựng thường kéo dài hơn so với những mùa thời tiết khô và nắng ráo. Vì thời tiết mưa bão việc cát xây dựng sẽ bị ướt hoặc lẫn bùn, việc làm việc ngoài trời cũng khó khăn hơn.
Thứ hai: Xây nhà bao lâu thì xong phụ thuộc vào diện tích xây dựng nhà

Thời gian xây nhà phụ thuộc vào diện tích xây dựng
Thời gian xây nhà nhanh hay chậm phụ thuộc vào diện tích nhà lớn hay nhỏ, điều này là hoàn toàn đúng. Với những ngôi nhà có diện tích lớn thì sẽ có thời gian thi công lâu sẽ hơn, và những ngôi nhà có diện khối lượng ít sẽ thi công nhanh hơn. Ví dụ: một công trình xây dựng như biệt thự, lâu đài có thời gian xây dựng lên đến 1 hoặc 2 năm, còn những nhà cấp 4 1 tầng hay nhà ống chỉ mất từ 3-6 tháng.
Số lượng thợ cũng sẽ ảnh hưởng đến thời gian xây dựng do đó cần sự chuẩn bị kỹ lưỡng từ 2 phía đó là chủ đầu tư- thợ thi công.
Thứ ba: Xây nhà trong khoảng thời gian bao lâu phụ thuộc vào địa điểm xây dựng
Thời điểm xây dựng: Những địa điểm xây dựng thuận tiện, gần với nơi tập kết vật tư vật liệu, hoặc đường xá ngõ ngách đi lại thuận tiện thì việc hoàn thiện xây dựng cũng sẽ nhanh chóng và dễ dàng hơn. Ví dụ như xây nhà ở các khu ngõ hẻm của phố cổ Hà Nội thì việc xây dựng khá khó khăn, vật tư vật liệu không có chỗ tập kết và việc chở vật tư phải vào ban đêm, và chở bằng xe máy, và phải đảm bảo vệ sinh an toàn khu phố do vậy gây ảnh hưởng không nhỏ đến quá trình xây dựng.
Thời điểm xây dựng nhà 1 tầng được xem là có thời gian xây dựng ít nhất vì nhà 1 tầng không trải qua nhiều giai đoạn đổ mái nhiều so với những nhà 2 tầng hay 3 tầng trở lên.
Nếu nhận xét vậy thì cũng không hẳn vì nó phụ thuộc vào yếu tố diện tích, các bề mặt trang trí cầu kì hay đơn giản như đã đề cập ở trên…
Thứ tư: muốn xây nhà nhanh phải có bản vẽ thiết kế

Có hồ sơ thiết kế nhà sẽ giúp thời gian thi công nhà nhanh hơn
Vì sao muốn xây dựng nhanh lại cần phải có bản vẽ thiết kế. Đúng vậy, theo như các kiến trúc sư cho rằng việc tìm đến một đơn vị tư vấn thiết kế hiện nay đều không có gì khó khăn. Và có rất nhiều chủ nhà tìm đến các công ty tư vấn bởi vì họ nhận ra rằng những ngôi nhà ngày xưa mà họ tự xây lên qua quá trình ở, sinh hoạt nó đều có những bất cập riêng và không hợp lý bởi do một số thợ “làng” xây dựng theo kiểu sao chép cứ xây hết từ nhà này sang nhà kia nhà cùng một kiểu nên cũng rất nhàm chán và không có sự đổi mới. Do đó, việc thiết kế một ngôi nhà mới đã trở nên phổ biến và được các chủ đầu tư ở vùng quê xa xôi cũng đã tìm đến để thuê thiết kế. Qua đó cũng thấy được rằng con người không chỉ dừng lại ở việc xây cất nhà cửa có mái ấm là xong mà ngày nay họ còn quan tâm đến thẩm mỹ và công năng sử dụng sao cho tối ưu và hiệu quả nhất nữa.
Hiện nay có rất nhiều đơn vị tư vấn xây dựng nhưng tùy vào kinh nghiệm cũng như tay nghề của từng kiến trúc sư mà đơn gía có sự chênh lệch. Để sở hữu được một ngôi nhà ưng ý và đẹp mắt bạn và gia đình nên lựa chọn các đơn vị tư vấn thiết kế lâu năm có kinh nghiệm xử lý các công trình lớn nhỏ rồi như vậy mới có thể tính toán và giải quyết được cho nhu cầu của gia đình bạn.
Việc công trình hoàn thiện nhanh hay chậm cũng là vấn đề được rất nhiều người quan tâm bởi nếu kéo dài thời gian xây dựng sẽ làm phát sinh và tốn thêm chi phí gây thiệt hại cho chủ đầu tư.
Hiện nay, đã có máy móc phụ trợ trong giai đoạn thi công nhiều công đoạn như: trộn bê tông thì đã có bê tông tươi hay còn gọi là bê tông thương phẩm đối với các nhà có diện tích sàn lớn đa phần đều đổ bê tông tươi chứ không còn trộn bê tông bằng tay như trước đây nhằm rút ngắn thời gian cũng như giảm bớt được thợ mà công tác nhanh vừa đảm bảo được tiến độ công trình.
Thời gian xây dựng nhà 1 tầng
Theo như kinh nghiệm của các đội thợ thi công đánh gía việc thi công xây dựng cũng có một vài khó khăn nhất định, nếu với sự chuẩn bị về số lượng nhân công đầy đủ và thời tiết ổn định sẽ giúp cho việc thi công vô cùng nhanh chóng và gọn lẹ.
Các công đoạn chuẩn bị cho xây dựng bao gồm:
Dọn dẹp mặt bằng tập kết vật liệu khoảng 2 ngày
Thời gian ép cọc gia cố móng, nền khoảng 7 ngày – 10 ngày
Hoàn thành bê tông móng và sàn trệt khoảng 15 – 20 ngày
Xây tường bao tầng trệt khoảng 3 ngày
Công tác gia công coffa, cốt thép, đổ bê tông cột, sàn tầng 1 khoảng 15- 20 ngày
Thi công đổ sàn sân thượng, mái tôn, bê tông cốt thép, ngói khoảng 10 – 15 ngày
Thời gian thi công hoàn thiện tô trát trong ngoài, trần thạch cao, lát nền, ốp gạch, sơn tường, lắp thiết bị điện nước khoảng 35 ngày.
Như vây thời gian xây dựng nhà 1 tầng mái thái a rơi vào khoảng 04 tháng hay cũng có thể chậm hơn do chủ nhà có làm việc có giám sát với đội thi công áp tiến độ hay đưa ra các mức “phạt” với đội thi công hay không để họ có làm việc nghiêm túc.
Đối với những đội thi công chuyên nghiệp sẽ làm việc một cách làm việc hiệu quả hơn do vây họ tạo được sự uy tín hơn.
Lưu ý:
Trên thực tế thời gian xây dựng còn phụ thuộc vào rất nhiều yếu tố như
- Thợ không đủ số lượng
- Thợ hay xin nghỉ về quê có người ốm, hoặc về quê vì đến mùa gặt
- Thợ nhận thêm nhiều công trình khác nên cứ “chạy chỗ này vá chỗ khác”
Là thợ ở quê chưa chuyên nghiệp nên có rất nhiều đội thợ làm ẩu dẫn đến phải đục phá, gây kéo dài thời gian và làm chậm thời gian thi công của chủ đầu tư gây ra rất nhiều phát sinh và tổn hại về kinh tế.
Do đó, khi chuẩn bị xây dựng nhà, muốn biết thời gian xây dựng mất bao lâu các chủ đầu tư chưa kỹ càng, chủ đổi ý thay đổi phương án xây dựng hoặc một lý do ngoài ý muốn hay có kiện tụng liên quan đến tranh chấp hoặc hồ sơ. Vì vậy, muốn bảo đảm các công trình được diễn ra suôn sẻ cả chủ nhà và đội thi công đều phải có thời gian chuẩn bị và đảm bảo không phát sinh đảm bảo được giải quyết, khắc phục nhanh chóng.
Một số mẫu nhà 1 tầng do siêu thị nhà mẫu thiết kế, ngoài ra có thể có rất nhiều mẫu tại sieuthinhamau.com để quý khách tham khảo.
Mẫu số 1: thiết kế nhà biệt thự nhà vườn 1 tầng mái nhật đẹp
Thông số kỹ thuât:
Mã số biệt thự: BT607077
Chủ đầu tư: Bà Hòe
Diện tích xây dựng: 130m2
Địa điểm xây dựng: Vĩnh Phúc
Với ưu thế diện tích đất rộng và có cây cối xung quanh bao phủ xanh mướt bà Hòe đã có ý tưởng muốn xây một biệt thự vườn mang dáng vẻ hiện đại, phá cách để các không gian bên trong đều có thể nhìn ngắm được cảnh vật thiên nhiên bên ngoài vì vậy mẫu thiết kế biệt thự 2 tầng 130m2 được ra đời.

Hình ảnh nhà cấp 4 mái nhật 130m2 đẹp
Đặc điểm đầu tiên của nét nhà truyền thống Nhật Bản đó là tính linh hoạt, sự tự do trong bố trí, sắp xếp không gian trong nhà. Kết cấu một ngôi nhà truyền thống Nhật chỉ gồm sàn nhà, bộ khung mái và các cột đỡ, không có tường bê tông như nhà hiện đại, tạo thành không gian mở và thoáng.
Cửa là những tấm cửa trượt có khung gỗ dán giấy gạo (hay còn gọi là shoji), được sử dụng cho cả hai vách tường phòng trong và phòng ngoài. Ngoài ra, còn có những tấm màn kéo (fusuma) vừa đóng vai trò như cửa ra vào, vừa có thể làm tường chắn khi cần không gian riêng và có thể tháo ra để tạo không gian rộng hơn.
Ngày nay, trong các căn hộ chung cư không mấy rộng rãi, những cánh cửa trượt vẫn được áp dụng như một cách lưu giữ nét đặc trưng của phong cách Nhật truyền thống, nhưng được thay đổi chất liệu thành ván gỗ thay, vì khung gỗ dán giấy để phù hợp với hoàn cảnh hơn.
Đặc điểm thứ hai của nhà truyền thống Nhật Bản là sự trân trọng và yêu quý thiên nhiên, tận dụng những chất liệu từ thiên nhiên, đặc biệt là gỗ. Cho đến tận ngày nay, những ngôi nhà Nhật vẫn sử dụng kết cấu gỗ, hoặc trúc trong căn hộ, từ khung nhà, ván sàn, cửa trượt, cửa sổ, cho đến các vật dụng trong nhà, tạo cảm giác gần gũi với thiên nhiên. Do vậy mẫu thiết kế nhà vườn 130m2 này cũng không ngoài ý định đó.
Xem thêm mẫu nhà biệt thự vườn mái nhật 1 tầng vô cùng ấn tượng

Thời gian xây nhà cấp 4 mái nhật 130m2 mất bao lâu
Mẫu số 2: Mẫu thiết kế nhà cấp 4 mái thái lợp ngói 180m2 ở Hưng Yên
Thông số kỹ thuật
Mã biệt thự: BT312077
Số tầng: 1 tầng
Phong cách thiết kế: biệt thự nhà vườn
Mặt tiền: 16.5m
Chiều sâu: 11.5m
Diện tích: 180m2
Kinh phí đầu tư: 1.3 tỷ đồng

Hình ảnh phối cảnh nhà cấp 4 mái thái lợp ngói ở Hưng Yên

Nội thất nhà cấp 4 1 tầng đẹp mái thái lợp ngói ở Hưng Yên
Mẫu số 3: Bản vẽ thiết kế nhà vườn kiểu 3 gian 130m2 đẹp mê ly
Thông số kỹ thuật
Mã biệt thự: BT312077
Số tầng: 1 tầng
Phong cách thiết kế: biệt thự nhà vườn
Mặt tiền: 16.5m
Chiều sâu: 11.5m
Diện tích: 180m2
Kinh phí đầu tư: 1.3 tỷ đồng

Xây nhà vườn 180m2 mất bao lâu thì xong

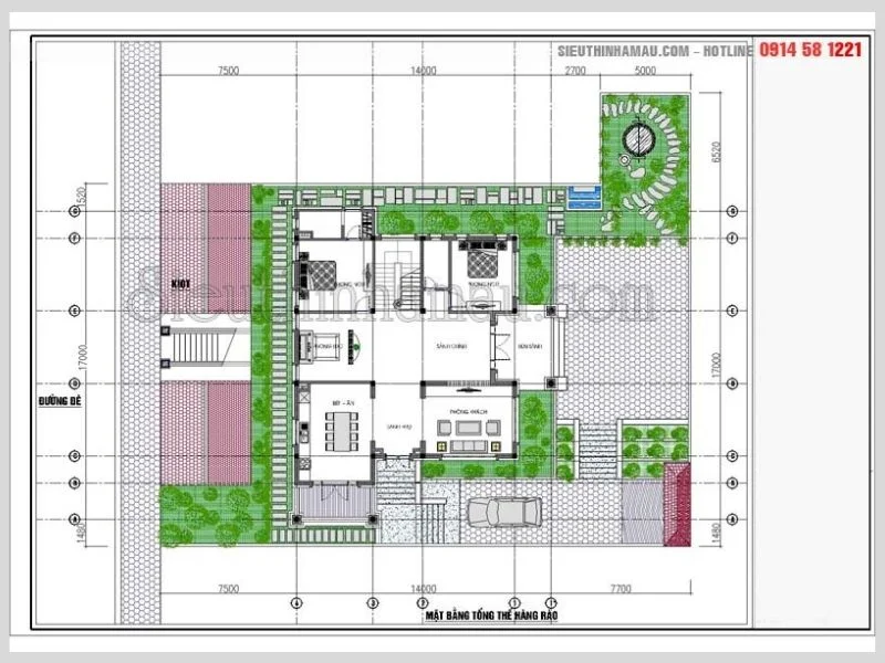
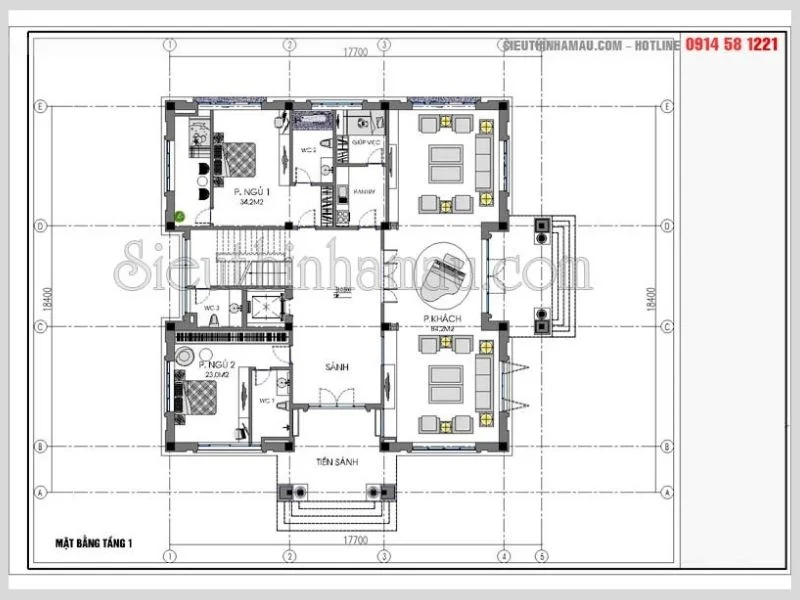
Mặt bằng nhà vườn 180m2 đẹp mê ly
Xem thêm các mẫu nhà biệt thự vườn hiện đại 1 tầng
Mẫu số 4: Mẫu biệt thự 2 tầng mái thái có sân vườn đẹp diện tích 200m2
Thông số kỹ thuật
Mã biệt thự: BT715077
Số tầng: 2 tầng
Phong cách thiết kế: biệt thự hiện đại
Mặt tiền: 18m
Chiều sâu: 15m
Diện tích: 200m2
Kinh phí đầu tư: 2.8 tỷ đồng

Thiết kế nhà mái thái có sân vườn 2 tầng đẹp

Bản vẽ nội thất tầng 1 có sân vườn đẹp 2 tầng 200m2

Nội thất tầng 2 nhà 2 tầng mái thái có sân vườn đẹp
Mẫu số 5: thiết kế biệt thự 3 tầng kiểu châu âu ở Sơn La đẹp long lanh
Thông số kỹ thuật
Mã biệt thự: BT751077
Số tầng: 2 tầng
Phong cách thiết kế: biệt thự hiện đại
Mặt tiền: 17m
Chiều sâu: 14m
Diện tích: 140m2
Kinh phí đầu tư: 1.8 tỷ đồng

Phối cảnh nhà 2 tầng phong cách Châu âu đẹp

Bản vẽ nội thất tầng 1 nhà biệt thự 2 tầng theo phong cách Châu âu

Hình ảnh bản vẽ thiết kế nội thất tầng 2 phong cách châu âu ở Sơn La
Các mẫu thiết kế biệt thự cổ điển sẽ không làm bạn thất vọng bởi sự cầu kì tỉ mỉ đến từng chi tiết.
Mẫu số 6: thiết kế nhà biệt thự 3 tầng theo phong cách Châu âu diện tích 300m2
Thông số kỹ thuật
Mã biệt thự: BT751077
Số tầng: 3 tầng
Phong cách thiết kế: biệt thự hiện đại
Mặt tiền: 16m
Chiều sâu: 16m
Diện tích: 300m2
Kinh phí đầu tư: 6 tỷ đồng

Chiêm ngưỡng mẫu thiết kế nhà 3 tầng kiểu Châu âu diện tích 300m2

Bản vẽ nội thất tầng 1 mẫu biệt thự kiểu châu âu
Ngoài ra có thể tham khảo các mẫu thiết kế biệt thự 3 tầng cổ điển châu âu

Nội thất tầng 2 mẫu biệt thự kiểu châu âu sang trọng

Nội thất tầng 3 biệt thự 3 tầng kiểu châu âu đẹp
Siêu thị nhà mẫu chúng tôi là một đơn vị tư vấn thiết kế với 15 năm trong nghề sở hữu hàng ngàn bộ hồ sơ đã được thiết kế và thi công để có thể giúp quý khách lựa chọn gói thiết kế hoặc gói mua hồ sơ với giá rẻ chỉ bằng 50% so với đơn giá thiết kế mới.
Chắc hẳn bạn cũng quan tâm đến chi phí thiết kế và báo giá
Thiết kế nhà biệt thự 1 tầng diện tích dưới 120m2 : 16.000.000đ/Bộ hồ sơ thiết kế chi tiết
Thiết kế nhà biệt thự 1 tầng diện tích 120m2 – 150m2: 18.000.000đ/Bộ hồ sơ thiết kế chi tiết
Thiết kế nhà biệt thự 1 tầng diện tích 150m2 – 200m2: 20.000.000đ/Bộ hồ sơ thiết kế chi tiết
Thiết kế nhà biệt thự 1 tầng diện tích trên 200m2 (>200m2)
– Đối vơi thiết kế nhà biệt thự > 2 tầng:
Thiết kế biệt thự phong cách hiện đại: 100.000đ/m2 sàn
Thiết kế biệt thự phong cách tân cổ điển: 120.000đ/m2 sàn
Thiết kế biệt thự phong cách cổ điển: 150.000đ/m2 sàn
Đặc biệt, chúng tôi có những ưu đãi khi bạn lựa chọn kiến trúc Angcovat trở thành đơn vị thiết kế nhà ở như sau.
- Công trình có diện tích > 500m2, Giảm 10% so với báo giá thiết kế nhà ở.
- Giá trị hợp đồng tối thiểu 1 công trình : 16.000.000đ
- Thiết kế > 1 công trình , Giảm 10% so với báo giá thiết kế nhà ở.
Miễn phí 100% giá thiết kế nhà ở cho các phần sau.
- Quy hoạch về mặt định hướng cảnh quan sân vườn
- Hồ sơ thiết kế cổng, hàng rào.
Đối với những khách hàng thực hiện gói thiết kế kiến trúc, chúng tôi luôn bảo đảm về chất lượng hồ sơ cũng như tính chính xác của toàn bộ những chi tiết thiết kế của công trình. Để giúp khách hàng hình dung rõ vể báo giá thiết kế chi tiết hơn
Mọi chi tiết vui lòng liên hệ Hotline: 0914 581221



